Property Introduction
Persoonallisesti suunniteltu kerrostalokoti rauhalliselta ja lapsiystävälliseltä Gunnarlan alueelta. Tässä kohteessa voi yhdistää kerrostaloasumisen ja luonnosta nauttimisen.
Koulut ja päiväkoti ovat lähietäisyydellä, uimahalliin lyhyehkö matka. Tervetuloa viihtymään Gunnarlaan.
Why Asuntosäätiö?
We believe that a happy home and quality living are for everyone. We do not seek immediate profit or financial benefit. We use the assets gained from our operations to develop our real estate. Over 33,000 Finns have already chosen a home offered by Asuntosäätiö. Pets are also welcome in all our homes.
Basic house info
- Form of housing Right-of-occupancy
- Average right-of-occupancy payment / jm² 195,19€
- Elevators 6
- House sauna No
- Laundry room Yes
- Drying room Yes
- Apartment count 50
- Building count 2
- Residence charge / month / jm² 11,48€
- Construction year 1994
- Renovated 2025
- Staircases 6
- Energy class E, D
- Heating Kauko + aurinkosähkö
- Parking spaces 46
- Clubroom 2
- Broadband DNA Welho
- TV-antenna system Kaapeli
- CableTV DNA
- Roof material Pelti
- House frame material Betoni
- Pets Allowed
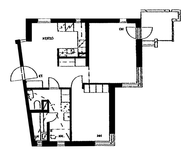
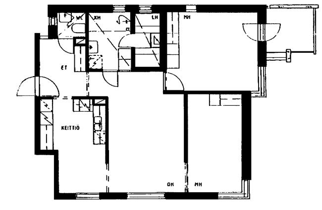
Apartments and floor plans: Eloniemenkatu 2-4, Piharakennus, Kerrostalo
Add all the apartment types you want to your application. Your opportunity to get an apartment increases when we are able to offer you all of the apartment types that may be available later on in this property. You are automatically in queue for these apartment types.
Eloniemenkatu 4 B 17
1h+tk+s
, Kerrostalo
39 m2
3/
Eloniemenkatu 4 B 17
1h+tk+s
, Kerrostalo
39 m2
Floor 3/
Eloniemenkatu 4 D 33
1h+tk+s
, Kerrostalo
39 m2
3/
Eloniemenkatu 4 D 33
1h+tk+s
, Kerrostalo
39 m2
Floor 3/
Eloniemenkatu 4 C 25
1h+tk+s
, Kerrostalo
39 m2
3/
Eloniemenkatu 4 C 25
1h+tk+s
, Kerrostalo
39 m2
Floor 3/
Eloniemenkatu 4 B 14
1h+tk+s
, Kerrostalo
39 m2
2/
Eloniemenkatu 4 B 14
1h+tk+s
, Kerrostalo
39 m2
Floor 2/
Eloniemenkatu 4 D 27
1h+tk+s
, Kerrostalo
39 m2
1/
Eloniemenkatu 4 D 27
1h+tk+s
, Kerrostalo
39 m2
Floor 1/
Eloniemenkatu 4 C 19
1h+tk+s
, Kerrostalo
39 m2
1/
Eloniemenkatu 4 C 19
1h+tk+s
, Kerrostalo
39 m2
Floor 1/
Eloniemenkatu 4 A 9
1h+tk+s
, Kerrostalo
39 m2
4/
Eloniemenkatu 4 A 9
1h+tk+s
, Kerrostalo
39 m2
Floor 4/
Eloniemenkatu 4 A 3
1h+tk+s
, Kerrostalo
39 m2
2/
Eloniemenkatu 4 A 3
1h+tk+s
, Kerrostalo
39 m2
Floor 2/
Eloniemenkatu 4 D 30
1h+tk+s
, Kerrostalo
39 m2
2/
Eloniemenkatu 4 D 30
1h+tk+s
, Kerrostalo
39 m2
Floor 2/
Eloniemenkatu 4 B 11
1h+tk+s
, Kerrostalo
39 m2
1/
Eloniemenkatu 4 B 11
1h+tk+s
, Kerrostalo
39 m2
Floor 1/
Eloniemenkatu 4 C 22
1h+tk+s
, Kerrostalo
39 m2
2/
Eloniemenkatu 4 C 22
1h+tk+s
, Kerrostalo
39 m2
Floor 2/
Eloniemenkatu 4 A 6
1h+tk+s
, Kerrostalo
39 m2
3/
Eloniemenkatu 4 A 6
1h+tk+s
, Kerrostalo
39 m2
Floor 3/
Eloniemenkatu 2 A 4
1h+tk+s
, Kerrostalo
39 m2
2/3
Eloniemenkatu 2 A 4
1h+tk+s
, Kerrostalo
39 m2
Floor 2/3
Eloniemenkatu 2 A 7
1h+tk+s
, Kerrostalo
39 m2
3/3
Eloniemenkatu 2 A 7
1h+tk+s
, Kerrostalo
39 m2
Floor 3/3
Eloniemenkatu 2 B 12
1h+tk+s
, Kerrostalo
39 m2
2/3
Eloniemenkatu 2 B 12
1h+tk+s
, Kerrostalo
39 m2
Floor 2/3
Eloniemenkatu 2 B 15
1h+tk+s
, Kerrostalo
39 m2
3/3
Eloniemenkatu 2 B 15
1h+tk+s
, Kerrostalo
39 m2
Floor 3/3
Eloniemenkatu 2 A 1
1h+tk+s
, Kerrostalo
39 m2
1/3
Eloniemenkatu 2 A 1
1h+tk+s
, Kerrostalo
39 m2
Floor 1/3
Eloniemenkatu 4 A 2
2h+k+s
, Kerrostalo
59.5 m2
2/
Eloniemenkatu 4 A 2
2h+k+s
, Kerrostalo
59.5 m2
Floor 2/
Eloniemenkatu 4 A 5
2h+k+s
, Kerrostalo
59.5 m2
3/
Eloniemenkatu 4 A 5
2h+k+s
, Kerrostalo
59.5 m2
Floor 3/
Eloniemenkatu 4 A 8
2h+k+s
, Kerrostalo
59.5 m2
4/
Eloniemenkatu 4 A 8
2h+k+s
, Kerrostalo
59.5 m2
Floor 4/
Eloniemenkatu 2 A 3
2h+k+s
, Kerrostalo
59.5 m2
2/3
Eloniemenkatu 2 A 3
2h+k+s
, Kerrostalo
59.5 m2
Floor 2/3
Eloniemenkatu 2 A 6
2h+k+s
, Kerrostalo
59.5 m2
3/3
Eloniemenkatu 2 A 6
2h+k+s
, Kerrostalo
59.5 m2
Floor 3/3
Eloniemenkatu 4 C 24
2h+k+s
, Kerrostalo
61 m2
3/
Eloniemenkatu 4 C 24
2h+k+s
, Kerrostalo
61 m2
Floor 3/
Eloniemenkatu 4 D 32
2h+k+s
, Kerrostalo
61 m2
3/
Eloniemenkatu 4 D 32
2h+k+s
, Kerrostalo
61 m2
Floor 3/
Eloniemenkatu 4 C 21
2h+k+s
, Kerrostalo
61 m2
2/
Eloniemenkatu 4 C 21
2h+k+s
, Kerrostalo
61 m2
Floor 2/
Eloniemenkatu 4 B 13
2h+k+s
, Kerrostalo
61 m2
2/
Eloniemenkatu 4 B 13
2h+k+s
, Kerrostalo
61 m2
Floor 2/
Eloniemenkatu 4 B 16
2h+k+s
, Kerrostalo
61 m2
3/
Eloniemenkatu 4 B 16
2h+k+s
, Kerrostalo
61 m2
Floor 3/
Eloniemenkatu 4 D 29
2h+k+s
, Kerrostalo
61 m2
2/
Eloniemenkatu 4 D 29
2h+k+s
, Kerrostalo
61 m2
Floor 2/
Eloniemenkatu 2 B 14
2h+k+s
, Kerrostalo
61 m2
3/3
Eloniemenkatu 2 B 14
2h+k+s
, Kerrostalo
61 m2
Floor 3/3
Eloniemenkatu 2 B 11
2h+k+s
, Kerrostalo
61 m2
2/3
Eloniemenkatu 2 B 11
2h+k+s
, Kerrostalo
61 m2
Floor 2/3
Eloniemenkatu 2 B 9
2h+kk+s
, Kerrostalo
52 m2
1/3
Eloniemenkatu 2 B 9
2h+kk+s
, Kerrostalo
52 m2
Floor 1/3
Eloniemenkatu 4 A 4
3h+k+s
, Kerrostalo
78 m2
2/
Eloniemenkatu 4 A 4
3h+k+s
, Kerrostalo
78 m2
Floor 2/
Eloniemenkatu 4 B 12
3h+k+s
, Kerrostalo
78 m2
1/
Eloniemenkatu 4 B 12
3h+k+s
, Kerrostalo
78 m2
Floor 1/
Eloniemenkatu 4 C 23
3h+k+s
, Kerrostalo
78 m2
2/
Eloniemenkatu 4 C 23
3h+k+s
, Kerrostalo
78 m2
Floor 2/
Eloniemenkatu 4 B 18
3h+k+s
, Kerrostalo
78 m2
3/
Eloniemenkatu 4 B 18
3h+k+s
, Kerrostalo
78 m2
Floor 3/
Eloniemenkatu 4 B 15
3h+k+s
, Kerrostalo
78 m2
2/
Eloniemenkatu 4 B 15
3h+k+s
, Kerrostalo
78 m2
Floor 2/
Eloniemenkatu 4 A 10
3h+k+s
, Kerrostalo
78 m2
4/
Eloniemenkatu 4 A 10
3h+k+s
, Kerrostalo
78 m2
Floor 4/
Eloniemenkatu 4 A 7
3h+k+s
, Kerrostalo
78 m2
3/
Eloniemenkatu 4 A 7
3h+k+s
, Kerrostalo
78 m2
Floor 3/
Eloniemenkatu 4 C 20
3h+k+s
, Kerrostalo
78 m2
1/
Eloniemenkatu 4 C 20
3h+k+s
, Kerrostalo
78 m2
Floor 1/
Eloniemenkatu 4 A 1
3h+k+s
, Kerrostalo
78 m2
1/
Eloniemenkatu 4 A 1
3h+k+s
, Kerrostalo
78 m2
Floor 1/
Eloniemenkatu 4 C 26
3h+k+s
, Kerrostalo
78 m2
3/
Eloniemenkatu 4 C 26
3h+k+s
, Kerrostalo
78 m2
Floor 3/
Eloniemenkatu 2 A 8
3h+k+s
, Kerrostalo
78 m2
3/3
Eloniemenkatu 2 A 8
3h+k+s
, Kerrostalo
78 m2
Floor 3/3
Eloniemenkatu 2 A 5
3h+k+s
, Kerrostalo
78 m2
2/3
Eloniemenkatu 2 A 5
3h+k+s
, Kerrostalo
78 m2
Floor 2/3
Eloniemenkatu 2 A 2
3h+k+s
, Kerrostalo
78 m2
1/3
Eloniemenkatu 2 A 2
3h+k+s
, Kerrostalo
78 m2
Floor 1/3
Eloniemenkatu 4 D 34
3h+k+s
, Kerrostalo
80.5 m2
3/
Eloniemenkatu 4 D 34
3h+k+s
, Kerrostalo
80.5 m2
Floor 3/
Eloniemenkatu 4 D 31
3h+k+s
, Kerrostalo
80.5 m2
2/
Eloniemenkatu 4 D 31
3h+k+s
, Kerrostalo
80.5 m2
Floor 2/
Eloniemenkatu 4 D 28
3h+k+s
, Kerrostalo
80.5 m2
1/
Eloniemenkatu 4 D 28
3h+k+s
, Kerrostalo
80.5 m2
Floor 1/
Eloniemenkatu 2 B 13
3h+k+s
, Kerrostalo
80.5 m2
2/3
Eloniemenkatu 2 B 13
3h+k+s
, Kerrostalo
80.5 m2
Floor 2/3
Eloniemenkatu 2 B 16
3h+k+s
, Kerrostalo
80.5 m2
3/3
Eloniemenkatu 2 B 16
3h+k+s
, Kerrostalo
80.5 m2
Floor 3/3
Eloniemenkatu 2 B 10
4h+k+s
, Kerrostalo
94 m2
1/3
Eloniemenkatu 2 B 10
4h+k+s
, Kerrostalo
94 m2
Floor 1/3