Property Introduction
Meri-Toppilan alueella sijaitseva kerrostalokohde. Hyvät ulkoilureitit meren rannassa, alueella on myös frisbeegolfkenttä. Nopea kulku yliopistolle ja Teknologiakylään. Lähellä on kauppapalvelut. Turvallinen ja viihtyisä sisäpiha, jossa on lapsille leikkialue. Kohde käsittää yhden 5-kerroksisen ja kaksi 4-kerroksista hissillistä asuinkerrostaloa. Auton saat säältä suojaan autohalliin, jossa on lämmityspistokkeet.
Why Asuntosäätiö?
We believe that a happy home and quality living are for everyone. We do not seek immediate profit or financial benefit. We use the assets gained from our operations to develop our real estate. Over 33,000 Finns have already chosen a home offered by Asuntosäätiö. Pets are also welcome in all our homes.
Basic house info
- Form of housing Right-of-occupancy
- Average right-of-occupancy payment / jm² 282,71€
- Elevators 3
- House sauna No
- Laundry room Yes
- Drying room Yes
- Apartment count 49
- Building count 3
- Residence charge / month / jm² 8,55€
- Construction year 1994
- Staircases 3
- Energy class E
- Heating Kauko
- Parking spaces 53
- Clubroom 1
- Broadband DNA Welho
- TV-antenna system Kaapeli
- CableTV DNA
- Roof material Pelti
- House frame material Betoni
- Pets Allowed
Apartments and floor plans: Kuorimokatu 2, Piharakennus, Kerrostalo
Add all the apartment types you want to your application. Your opportunity to get an apartment increases when we are able to offer you all of the apartment types that may be available later on in this property. You are automatically in queue for these apartment types.
Kuorimokatu 2 A 21
2h+k+s
, Kerrostalo
60.5 m2
5/5
Kuorimokatu 2 A 21
2h+k+s
, Kerrostalo
60.5 m2
Floor 5/5
Kuorimokatu 2 A 6
2h+k+s
, Kerrostalo
60.5 m2
2/5
Kuorimokatu 2 A 6
2h+k+s
, Kerrostalo
60.5 m2
Floor 2/5
Kuorimokatu 2 A 16
2h+k+s
, Kerrostalo
60.5 m2
4/5
Kuorimokatu 2 A 16
2h+k+s
, Kerrostalo
60.5 m2
Floor 4/5
Kuorimokatu 2 A 1
2h+k+s
, Kerrostalo
62.5 m2
1/5
Kuorimokatu 2 A 1
2h+k+s
, Kerrostalo
62.5 m2
Floor 1/5
Kuorimokatu 2 B 26
2h+k+s
, Kerrostalo
63 m2
2/4
Kuorimokatu 2 B 26
2h+k+s
, Kerrostalo
63 m2
Floor 2/4
Kuorimokatu 2 B 34
2h+k+s
, Kerrostalo
63 m2
4/4
Kuorimokatu 2 B 34
2h+k+s
, Kerrostalo
63 m2
Floor 4/4
Kuorimokatu 2 B 30
2h+k+s
, Kerrostalo
63 m2
3/4
Kuorimokatu 2 B 30
2h+k+s
, Kerrostalo
63 m2
Floor 3/4
Kuorimokatu 2 C 48
2h+k+s
, Kerrostalo
63 m2
4/4
Kuorimokatu 2 C 48
2h+k+s
, Kerrostalo
63 m2
Floor 4/4
Kuorimokatu 2 C 40
2h+k+s
, Kerrostalo
63 m2
2/4
Kuorimokatu 2 C 40
2h+k+s
, Kerrostalo
63 m2
Floor 2/4
Kuorimokatu 2 C 44
2h+k+s
, Kerrostalo
63 m2
3/4
Kuorimokatu 2 C 44
2h+k+s
, Kerrostalo
63 m2
Floor 3/4
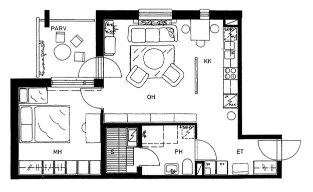
Kuorimokatu 2 A 9
2h+kk+s
, Kerrostalo
50.5 m2
3/5
Kuorimokatu 2 A 9
2h+kk+s
, Kerrostalo
50.5 m2
Floor 3/5
Kuorimokatu 2 A 19
2h+kk+s
, Kerrostalo
50.5 m2
5/5
Kuorimokatu 2 A 19
2h+kk+s
, Kerrostalo
50.5 m2
Floor 5/5
Kuorimokatu 2 A 14
2h+kk+s
, Kerrostalo
50.5 m2
4/5
Kuorimokatu 2 A 14
2h+kk+s
, Kerrostalo
50.5 m2
Floor 4/5
Kuorimokatu 2 A 4
2h+kk+s
, Kerrostalo
50.5 m2
2/5
Kuorimokatu 2 A 4
2h+kk+s
, Kerrostalo
50.5 m2
Floor 2/5
Kuorimokatu 2 A 18
2h+kk+s
, Kerrostalo
53 m2
5/5
Kuorimokatu 2 A 18
2h+kk+s
, Kerrostalo
53 m2
Floor 5/5
Kuorimokatu 2 A 8
2h+kk+s
, Kerrostalo
53 m2
3/5
Kuorimokatu 2 A 8
2h+kk+s
, Kerrostalo
53 m2
Floor 3/5
Kuorimokatu 2 A 13
2h+kk+s
, Kerrostalo
53 m2
4/5
Kuorimokatu 2 A 13
2h+kk+s
, Kerrostalo
53 m2
Floor 4/5
Kuorimokatu 2 A 3
2h+kk+s
, Kerrostalo
53 m2
2/5
Kuorimokatu 2 A 3
2h+kk+s
, Kerrostalo
53 m2
Floor 2/5
Kuorimokatu 2 B 32
2h+kk+s
, Kerrostalo
53 m2
4/4
Kuorimokatu 2 B 32
2h+kk+s
, Kerrostalo
53 m2
Floor 4/4
Kuorimokatu 2 B 28
2h+kk+s
, Kerrostalo
53 m2
3/4
Kuorimokatu 2 B 28
2h+kk+s
, Kerrostalo
53 m2
Floor 3/4
Kuorimokatu 2 B 25
2h+kk+s
, Kerrostalo
53 m2
2/4
Kuorimokatu 2 B 25
2h+kk+s
, Kerrostalo
53 m2
Floor 2/4
Kuorimokatu 2 B 22
2h+kk+s
, Kerrostalo
53 m2
1/4
Kuorimokatu 2 B 22
2h+kk+s
, Kerrostalo
53 m2
Floor 1/4
Kuorimokatu 2 B 24
2h+kk+s
, Kerrostalo
53 m2
2/4
Kuorimokatu 2 B 24
2h+kk+s
, Kerrostalo
53 m2
Floor 2/4
Kuorimokatu 2 B 29
2h+kk+s
, Kerrostalo
53 m2
3/4
Kuorimokatu 2 B 29
2h+kk+s
, Kerrostalo
53 m2
Floor 3/4
Kuorimokatu 2 B 33
2h+kk+s
, Kerrostalo
53 m2
4/4
Kuorimokatu 2 B 33
2h+kk+s
, Kerrostalo
53 m2
Floor 4/4
Kuorimokatu 2 C 36
2h+kk+s
, Kerrostalo
53 m2
1/4
Kuorimokatu 2 C 36
2h+kk+s
, Kerrostalo
53 m2
Floor 1/4
Kuorimokatu 2 C 38
2h+kk+s
, Kerrostalo
53 m2
2/4
Kuorimokatu 2 C 38
2h+kk+s
, Kerrostalo
53 m2
Floor 2/4
Kuorimokatu 2 C 42
2h+kk+s
, Kerrostalo
53 m2
3/4
Kuorimokatu 2 C 42
2h+kk+s
, Kerrostalo
53 m2
Floor 3/4
Kuorimokatu 2 C 46
2h+kk+s
, Kerrostalo
53 m2
4/4
Kuorimokatu 2 C 46
2h+kk+s
, Kerrostalo
53 m2
Floor 4/4
Kuorimokatu 2 C 39
2h+kk+s
, Kerrostalo
53 m2
2/4
Kuorimokatu 2 C 39
2h+kk+s
, Kerrostalo
53 m2
Floor 2/4
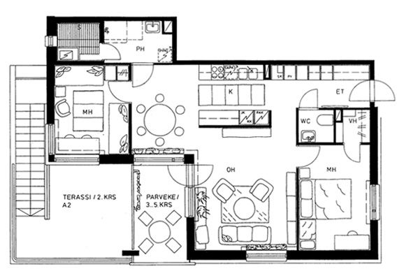
Kuorimokatu 2 A 12
3h+k+s
, Kerrostalo
81 m2
4/5
Kuorimokatu 2 A 12
3h+k+s
, Kerrostalo
81 m2
Floor 4/5
Kuorimokatu 2 A 17
3h+k+s
, Kerrostalo
81 m2
5/5
Kuorimokatu 2 A 17
3h+k+s
, Kerrostalo
81 m2
Floor 5/5
Kuorimokatu 2 A 2
3h+k+s
, Kerrostalo
81 m2
2/5
Kuorimokatu 2 A 2
3h+k+s
, Kerrostalo
81 m2
Floor 2/5
Kuorimokatu 2 A 7
3h+k+s
, Kerrostalo
81 m2
3/5
Kuorimokatu 2 A 7
3h+k+s
, Kerrostalo
81 m2
Floor 3/5
Kuorimokatu 2 B 35
3h+k+s
, Kerrostalo
81.5 m2
4/4
Kuorimokatu 2 B 35
3h+k+s
, Kerrostalo
81.5 m2
Floor 4/4
Kuorimokatu 2 B 31
3h+k+s
, Kerrostalo
81.5 m2
3/4
Kuorimokatu 2 B 31
3h+k+s
, Kerrostalo
81.5 m2
Floor 3/4
Kuorimokatu 2 C 49
3h+k+s
, Kerrostalo
81.5 m2
4/4
Kuorimokatu 2 C 49
3h+k+s
, Kerrostalo
81.5 m2
Floor 4/4
Kuorimokatu 2 C 45
3h+k+s
, Kerrostalo
81.5 m2
3/4
Kuorimokatu 2 C 45
3h+k+s
, Kerrostalo
81.5 m2
Floor 3/4
Kuorimokatu 2 A 10
3h+k+s
, Kerrostalo
83 m2
3/5
Kuorimokatu 2 A 10
3h+k+s
, Kerrostalo
83 m2
Floor 3/5
Kuorimokatu 2 A 20
3h+k+s
, Kerrostalo
83 m2
5/5
Kuorimokatu 2 A 20
3h+k+s
, Kerrostalo
83 m2
Floor 5/5
Kuorimokatu 2 A 5
3h+k+s
, Kerrostalo
83 m2
2/5
Kuorimokatu 2 A 5
3h+k+s
, Kerrostalo
83 m2
Floor 2/5
Kuorimokatu 2 A 15
3h+k+s
, Kerrostalo
83 m2
4/5
Kuorimokatu 2 A 15
3h+k+s
, Kerrostalo
83 m2
Floor 4/5
Kuorimokatu 2 B 23
4h+k+s
, Kerrostalo
98.5 m2
1/4
Kuorimokatu 2 B 23
4h+k+s
, Kerrostalo
98.5 m2
Floor 1/4
Kuorimokatu 2 C 37
4h+k+s
, Kerrostalo
98.5 m2
1/4
Kuorimokatu 2 C 37
4h+k+s
, Kerrostalo
98.5 m2
Floor 1/4


