Property Introduction
Viihtyisä pienkerrostalokohde lähellä Porvoon keskustaa. Asunnot ovat 1-4 huoneen ja erillisen keittiön huoneistoja, joissa on oma sauna ja osassa myös parveke. Kohde on peruskorjattu 2022.
Vehreät ulkoilumaastot Porvoonjoen rannassa tai lukuisissa läheisissä puistoissa. Koulu lähes tien toisella puolella. Alueella on myös päiväkoti. Kätevät liikenneyhteydet: Lyhyt siirtymä Helsingin moottoritielle. Lähellä myös bussipysäkki.
Why Asuntosäätiö?
We believe that a happy home and quality living are for everyone. We do not seek immediate profit or financial benefit. We use the assets gained from our operations to develop our real estate. Over 33,000 Finns have already chosen a home offered by Asuntosäätiö. Pets are also welcome in all our homes.
Basic house info
- Form of housing Right-of-occupancy
- Average right-of-occupancy payment / jm² 191,2€
- Elevators No
- House sauna No
- Laundry room Yes
- Drying room Yes
- Apartment count 40
- Building count 2
- Residence charge / month / jm² 12,91€
- Construction year 1993
- Renovated 2022
- Staircases 6
- Energy class D
- Heating Kauko
- Parking spaces 41
- Clubroom 1
- Broadband Elisa
- TV-antenna system Kaapeli
- CableTV Elisa
- Roof material Pelti
- House frame material Betoni
- Pets Allowed
Apartments and floor plans: Kesätuulentie 4-6, Kerrostalo, Piharakennus
Add all the apartment types you want to your application. Your opportunity to get an apartment increases when we are able to offer you all of the apartment types that may be available later on in this property. You are automatically in queue for these apartment types.
Kesätuulentie 4-6 D 9
1h+k+s
, Kerrostalo
38 m2
1/3
Kesätuulentie 4-6 D 9
1h+k+s
, Kerrostalo
38 m2
Floor 1/3
Kesätuulentie 4-6 D 16
1h+k+s
, Kerrostalo
41.5 m2
3/3
Kesätuulentie 4-6 D 16
1h+k+s
, Kerrostalo
41.5 m2
Floor 3/3
Kesätuulentie 4-6 D 10
1h+k+s
, Kerrostalo
41.5 m2
1/3
Kesätuulentie 4-6 D 10
1h+k+s
, Kerrostalo
41.5 m2
Floor 1/3
Kesätuulentie 4-6 D 13
1h+k+s
, Kerrostalo
41.5 m2
2/3
Kesätuulentie 4-6 D 13
1h+k+s
, Kerrostalo
41.5 m2
Floor 2/3
Kesätuulentie 4-6 G 29
1h+k+s
, Kerrostalo
41.5 m2
2/3
Kesätuulentie 4-6 G 29
1h+k+s
, Kerrostalo
41.5 m2
Floor 2/3
Kesätuulentie 4-6 G 32
1h+k+s
, Kerrostalo
41.5 m2
3/3
Kesätuulentie 4-6 G 32
1h+k+s
, Kerrostalo
41.5 m2
Floor 3/3
Kesätuulentie 4-6 D 11
1h+k+s
, Kerrostalo
45 m2
1/3
Kesätuulentie 4-6 D 11
1h+k+s
, Kerrostalo
45 m2
Floor 1/3
Kesätuulentie 4-6 D 15
1h+k+s
, Kerrostalo
45 m2
3/3
Kesätuulentie 4-6 D 15
1h+k+s
, Kerrostalo
45 m2
Floor 3/3
Kesätuulentie 4-6 D 17
1h+k+s
, Kerrostalo
45 m2
3/3
Kesätuulentie 4-6 D 17
1h+k+s
, Kerrostalo
45 m2
Floor 3/3
Kesätuulentie 4-6 D 12
1h+k+s
, Kerrostalo
45 m2
2/3
Kesätuulentie 4-6 D 12
1h+k+s
, Kerrostalo
45 m2
Floor 2/3
Kesätuulentie 4-6 D 14
1h+k+s
, Kerrostalo
45 m2
2/3
Kesätuulentie 4-6 D 14
1h+k+s
, Kerrostalo
45 m2
Floor 2/3
Kesätuulentie 4-6 G 31
1h+k+s
, Kerrostalo
45 m2
3/3
Kesätuulentie 4-6 G 31
1h+k+s
, Kerrostalo
45 m2
Floor 3/3
Kesätuulentie 4-6 G 33
1h+k+s
, Kerrostalo
45 m2
3/3
Kesätuulentie 4-6 G 33
1h+k+s
, Kerrostalo
45 m2
Floor 3/3
Kesätuulentie 4-6 G 28
1h+k+s
, Kerrostalo
45 m2
2/3
Kesätuulentie 4-6 G 28
1h+k+s
, Kerrostalo
45 m2
Floor 2/3
Kesätuulentie 4-6 G 30
1h+k+s
, Kerrostalo
45 m2
2/3
Kesätuulentie 4-6 G 30
1h+k+s
, Kerrostalo
45 m2
Floor 2/3
Kesätuulentie 4-6 G 26
2h+k+s
, Kerrostalo
58 m2
1/3
Kesätuulentie 4-6 G 26
2h+k+s
, Kerrostalo
58 m2
Floor 1/3
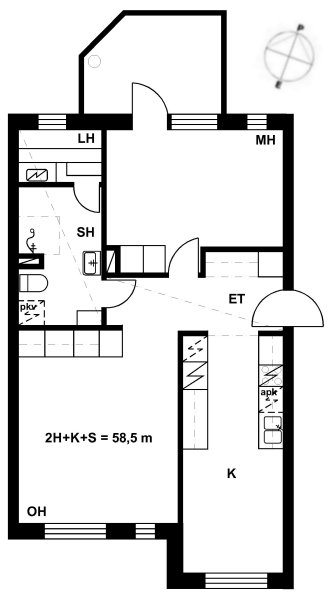
Kesätuulentie 4-6 G 27
2h+k+s
, Kerrostalo
58.5 m2
1/3
Kesätuulentie 4-6 G 27
2h+k+s
, Kerrostalo
58.5 m2
Floor 1/3
Kesätuulentie 4-6 H 34
3h+k+s
, Kerrostalo
70 m2
1/3
Kesätuulentie 4-6 H 34
3h+k+s
, Kerrostalo
70 m2
Floor 1/3
Kesätuulentie 4-6 H 36
3h+k+s
, Kerrostalo
77 m2
2/3
Kesätuulentie 4-6 H 36
3h+k+s
, Kerrostalo
77 m2
Floor 2/3
Kesätuulentie 4-6 H 38
3h+k+s
, Kerrostalo
77 m2
3/3
Kesätuulentie 4-6 H 38
3h+k+s
, Kerrostalo
77 m2
Floor 3/3
Kesätuulentie 4-6 E 20
3h+k+s
, Kerrostalo
78.5 m2
2/3
Kesätuulentie 4-6 E 20
3h+k+s
, Kerrostalo
78.5 m2
Floor 2/3
Kesätuulentie 4-6 C 4
3h+k+s
, Kerrostalo
78.5 m2
1/3
Kesätuulentie 4-6 C 4
3h+k+s
, Kerrostalo
78.5 m2
Floor 1/3
Kesätuulentie 4-6 C 8
3h+k+s
, Kerrostalo
78.5 m2
3/3
Kesätuulentie 4-6 C 8
3h+k+s
, Kerrostalo
78.5 m2
Floor 3/3
Kesätuulentie 4-6 C 6
3h+k+s
, Kerrostalo
78.5 m2
2/3
Kesätuulentie 4-6 C 6
3h+k+s
, Kerrostalo
78.5 m2
Floor 2/3
Kesätuulentie 4-6 E 19
3h+k+s
, Kerrostalo
78.5 m2
1/3
Kesätuulentie 4-6 E 19
3h+k+s
, Kerrostalo
78.5 m2
Floor 1/3
Kesätuulentie 4-6 H 35
3h+k+s
, Kerrostalo
78.5 m2
1/3
Kesätuulentie 4-6 H 35
3h+k+s
, Kerrostalo
78.5 m2
Floor 1/3
Kesätuulentie 4-6 F 23
3h+k+s
, Kerrostalo
78.5 m2
1/3
Kesätuulentie 4-6 F 23
3h+k+s
, Kerrostalo
78.5 m2
Floor 1/3
Kesätuulentie 4-6 H 37
3h+k+s
, Kerrostalo
78.5 m2
2/3
Kesätuulentie 4-6 H 37
3h+k+s
, Kerrostalo
78.5 m2
Floor 2/3
Kesätuulentie 4-6 H 39
3h+k+s
, Kerrostalo
78.5 m2
3/3
Kesätuulentie 4-6 H 39
3h+k+s
, Kerrostalo
78.5 m2
Floor 3/3
Kesätuulentie 4-6 F 25
3h+k+s
, Kerrostalo
78.5 m2
2/3
Kesätuulentie 4-6 F 25
3h+k+s
, Kerrostalo
78.5 m2
Floor 2/3
Kesätuulentie 4-6 F 22
3h+k+s
, Kerrostalo
79.5 m2
1/3
Kesätuulentie 4-6 F 22
3h+k+s
, Kerrostalo
79.5 m2
Floor 1/3
Kesätuulentie 4-6 E 18
3h+k+s
, Kerrostalo
81 m2
1/3
Kesätuulentie 4-6 E 18
3h+k+s
, Kerrostalo
81 m2
Floor 1/3
Kesätuulentie 4-6 C 3
4h+k+s
, Kerrostalo
87 m2
1/3
Kesätuulentie 4-6 C 3
4h+k+s
, Kerrostalo
87 m2
Floor 1/3
Kesätuulentie 4-6 E 21
4h+k+s
, Kerrostalo
92.5 m2
2/3
Kesätuulentie 4-6 E 21
4h+k+s
, Kerrostalo
92.5 m2
Floor 2/3
Kesätuulentie 4-6 F 24
4h+k+s
, Kerrostalo
92.5 m2
2/3
Kesätuulentie 4-6 F 24
4h+k+s
, Kerrostalo
92.5 m2
Floor 2/3
Kesätuulentie 4-6 C 5
4h+k+s
, Kerrostalo
94 m2
Floor 2/3
Kesätuulentie 4-6 C 7
4h+k+s
, Kerrostalo
94 m2
3/3
Kesätuulentie 4-6 C 7
4h+k+s
, Kerrostalo
94 m2
Floor 3/3
Kesätuulentie 4-6 A 1
4h+k+s
, Kerrostalo
95 m2
1-2/3
Kesätuulentie 4-6 A 1
4h+k+s
, Kerrostalo
95 m2
Floor 1-2/3
Kesätuulentie 4-6 B 2
4h+k+s
, Kerrostalo
95 m2
1-2/3
Kesätuulentie 4-6 B 2
4h+k+s
, Kerrostalo
95 m2
Floor 1-2/3
Kesätuulentie 4-6 I 40
4h+k+s
, Kerrostalo
95 m2
1-2/3
Kesätuulentie 4-6 I 40
4h+k+s
, Kerrostalo
95 m2
Floor 1-2/3
