Property Introduction
Rivitaloasunnot ovat pienestä yksiöstä isoihin viisiöihin. Asunnoissa isot valoa tuovat ikkunat.
Useampi ruokakauppa lyhyen kävelymatkan päässä. Melkein vieressä urheilukenttä, frisbeegolf-rata, skeittipuisto ja urheiluareena. Sipoonkorven kansallispuiston läheisyydessä löytyy ihanaa luontoa ja rauhaa. Moottoritietä pitkin pääsee nopeasti Helsinkiin vain puolessa tunnissa. Lähimmälle terveysasemalle ja kirjastoon matkaa puolisen kilometriä. Bussit kulkevat Porvooseen ja Helsinkiin pari kertaa tunnissa.
Why Asuntosäätiö?
We believe that a happy home and quality living are for everyone. We do not seek immediate profit or financial benefit. We use the assets gained from our operations to develop our real estate. Over 33,000 Finns have already chosen a home offered by Asuntosäätiö. Pets are also welcome in all our homes.
Basic house info
- Form of housing Right-of-occupancy
- Average right-of-occupancy payment / jm² 372,42€
- Elevators No
- House sauna No
- Apartment count 15
- Building count 3
- Residence charge / month / jm² 13,82€
- Construction year 1999
- Energy class D
- Heating Kauko
- Parking spaces 26
- Broadband Elisa
- TV-antenna system Kaapeli
- CableTV Elisa
- Roof material Tiili
- House frame material Betoni
- Pets Allowed
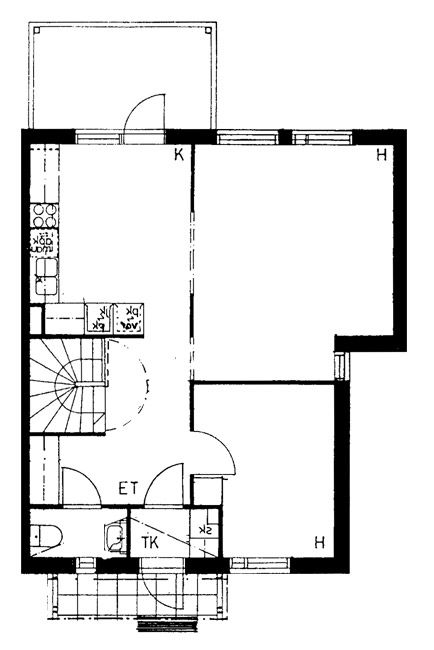
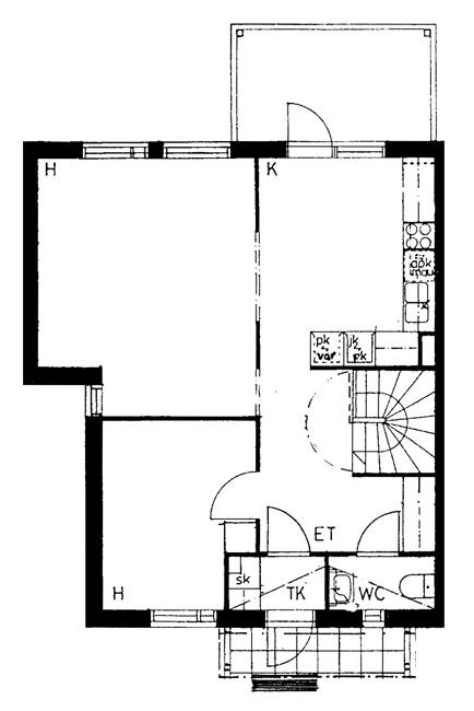
Apartments and floor plans: Mäntykaari 4, Rivitalo
Add all the apartment types you want to your application. Your opportunity to get an apartment increases when we are able to offer you all of the apartment types that may be available later on in this property. You are automatically in queue for these apartment types.
Mäntykaari 4 A 3
3h+k+s
, Rivitalo
79 m2
1-2/2
Mäntykaari 4 A 3
3h+k+s
, Rivitalo
79 m2
Floor 1-2/2
Mäntykaari 4 A 4
3h+k+s
, Rivitalo
79 m2
1-2/2
Mäntykaari 4 A 4
3h+k+s
, Rivitalo
79 m2
Floor 1-2/2
Mäntykaari 4 A 5
4h+k+s
, Rivitalo
79 m2
1-2/2
Mäntykaari 4 A 5
4h+k+s
, Rivitalo
79 m2
Floor 1-2/2
Mäntykaari 4 C 13
4h+k+s
, Rivitalo
86.5 m2
1-2/2
Mäntykaari 4 C 13
4h+k+s
, Rivitalo
86.5 m2
Floor 1-2/2
Mäntykaari 4 B 9
4h+k+s
, Rivitalo
87 m2
1-2/2
Mäntykaari 4 B 9
4h+k+s
, Rivitalo
87 m2
Floor 1-2/2
Mäntykaari 4 B 10
4h+k+s
, Rivitalo
87 m2
1-2/2
Mäntykaari 4 B 10
4h+k+s
, Rivitalo
87 m2
Floor 1-2/2
Mäntykaari 4 C 14
4h+k+s
, Rivitalo
87.5 m2
1-2/2
Mäntykaari 4 C 14
4h+k+s
, Rivitalo
87.5 m2
Floor 1-2/2
Mäntykaari 4 B 8
4h+k+s
, Rivitalo
87.5 m2
1-2/2
Mäntykaari 4 B 8
4h+k+s
, Rivitalo
87.5 m2
Floor 1-2/2
Mäntykaari 4 C 15
5h+k+s
, Rivitalo
92.5 m2
1-2/2
Mäntykaari 4 C 15
5h+k+s
, Rivitalo
92.5 m2
Floor 1-2/2
Mäntykaari 4 B 7
5h+k+s
, Rivitalo
92.5 m2
1-2/2
Mäntykaari 4 B 7
5h+k+s
, Rivitalo
92.5 m2
Floor 1-2/2
Mäntykaari 4 C 12
5h+k+s
, Rivitalo
93.5 m2
1-2/2
Mäntykaari 4 C 12
5h+k+s
, Rivitalo
93.5 m2
Floor 1-2/2
Mäntykaari 4 B 11
5h+k+s
, Rivitalo
93.5 m2
1-2/2
Mäntykaari 4 B 11
5h+k+s
, Rivitalo
93.5 m2
Floor 1-2/2
Mäntykaari 4 A 6
5h+k+s
, Rivitalo
95.5 m2
1-4/2
Mäntykaari 4 A 6
5h+k+s
, Rivitalo
95.5 m2
Floor 1-4/2
Mäntykaari 4 A 2
5h+k+s
, Rivitalo
104.5 m2
1-2/2
Mäntykaari 4 A 2
5h+k+s
, Rivitalo
104.5 m2
Floor 1-2/2
Mäntykaari 4 A 1
5h+k+s
, Rivitalo
105 m2
1-2/2
Mäntykaari 4 A 1
5h+k+s
, Rivitalo
105 m2
Floor 1-2/2