Property Introduction
Hyrylän keskustan reunamilla 3-4-kerroksinen kerrostalo, joka on peruskorjattu 2021-2022. Talo sijaitsee tien päässä, metsän reunassa. Viihtyisässä pihapiirissä asukkaat tapaavat toisiaan ja grillailevat kesäisin.
Kävelymatkan päässä on mm. Rykmentinpuiston uusi koulu, päiväkoti, uimahalli ja urheilukeskus uimarantoineen. Näkemistä riittää runsaasti läheisestä Ilmantorjuntamuseosta Tuusulanjärven kulttuurikohteisiin.
Why Asuntosäätiö?
We believe that a happy home and quality living are for everyone. We do not seek immediate profit or financial benefit. We use the assets gained from our operations to develop our real estate. Over 33,000 Finns have already chosen a home offered by Asuntosäätiö. Pets are also welcome in all our homes.
Basic house info
- Form of housing Right-of-occupancy
- Average right-of-occupancy payment / jm² 200,03€
- Elevators No
- House sauna No
- Drying room Yes
- Apartment count 21
- Building count 1
- Residence charge / month / jm² 13,57€
- Construction year 1993
- Renovated 2022
- Staircases 2
- Energy class D
- Heating Kauko
- Parking spaces 22
- Hobby room 1
- Broadband Elisa
- TV-antenna system Kaapeli
- CableTV Elisa
- Roof material Pelti
- House frame material Betoni
- Pets Allowed
Apartments and floor plans: Kievarinkaari 5, Piharakennus, Kerrostalo
Add all the apartment types you want to your application. Your opportunity to get an apartment increases when we are able to offer you all of the apartment types that may be available later on in this property. You are automatically in queue for these apartment types.
Kievarinkaari 5 B 10
2h+k+s
, Kerrostalo
60.5 m2
1/
Kievarinkaari 5 B 10
2h+k+s
, Kerrostalo
60.5 m2
Floor 1/
Kievarinkaari 5 B 18
2h+k+s
, Kerrostalo
60.5 m2
3/
Kievarinkaari 5 B 18
2h+k+s
, Kerrostalo
60.5 m2
Floor 3/
Kievarinkaari 5 B 14
2h+k+s
, Kerrostalo
60.5 m2
2/
Kievarinkaari 5 B 14
2h+k+s
, Kerrostalo
60.5 m2
Floor 2/
Kievarinkaari 5 A 1
2h+k+s
, Kerrostalo
62 m2
1/
Kievarinkaari 5 A 1
2h+k+s
, Kerrostalo
62 m2
Floor 1/
Kievarinkaari 5 A 4
2h+k+s
, Kerrostalo
62 m2
2/
Kievarinkaari 5 A 4
2h+k+s
, Kerrostalo
62 m2
Floor 2/
Kievarinkaari 5 A 2
2h+k+s
, Kerrostalo
64 m2
1/
Kievarinkaari 5 A 2
2h+k+s
, Kerrostalo
64 m2
Floor 1/
Kievarinkaari 5 A 5
2h+k+s
, Kerrostalo
64 m2
2/
Kievarinkaari 5 A 5
2h+k+s
, Kerrostalo
64 m2
Floor 2/
Kievarinkaari 5 B 19
2h+kk+s
, Kerrostalo
42 m2
3/
Kievarinkaari 5 B 19
2h+kk+s
, Kerrostalo
42 m2
Floor 3/
Kievarinkaari 5 B 11
2h+kk+s
, Kerrostalo
42 m2
1/
Kievarinkaari 5 B 11
2h+kk+s
, Kerrostalo
42 m2
Floor 1/
Kievarinkaari 5 B 16
2h+kk+s
, Kerrostalo
42 m2
2/
Kievarinkaari 5 B 16
2h+kk+s
, Kerrostalo
42 m2
Floor 2/
Kievarinkaari 5 B 12
2h+kk+s
, Kerrostalo
42 m2
1/
Kievarinkaari 5 B 12
2h+kk+s
, Kerrostalo
42 m2
Floor 1/
Kievarinkaari 5 B 15
2h+kk+s
, Kerrostalo
42 m2
2/
Kievarinkaari 5 B 15
2h+kk+s
, Kerrostalo
42 m2
Floor 2/
Kievarinkaari 5 B 20
2h+kk+s
, Kerrostalo
42 m2
3/
Kievarinkaari 5 B 20
2h+kk+s
, Kerrostalo
42 m2
Floor 3/
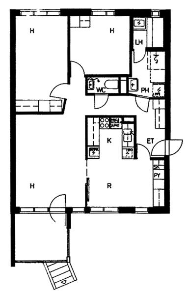
Kievarinkaari 5 B 17
3h+k+s
, Kerrostalo
71.5 m2
2/
Kievarinkaari 5 B 17
3h+k+s
, Kerrostalo
71.5 m2
Floor 2/
Kievarinkaari 5 B 21
3h+k+s
, Kerrostalo
71.5 m2
3/
Kievarinkaari 5 B 21
3h+k+s
, Kerrostalo
71.5 m2
Floor 3/
Kievarinkaari 5 B 13
3h+k+s
, Kerrostalo
71.5 m2
1/
Kievarinkaari 5 B 13
3h+k+s
, Kerrostalo
71.5 m2
Floor 1/
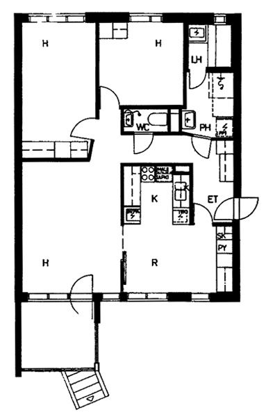
Kievarinkaari 5 A 9
3h+k+s
, Kerrostalo
72.5 m2
3/
Kievarinkaari 5 A 9
3h+k+s
, Kerrostalo
72.5 m2
Floor 3/
Kievarinkaari 5 A 3
3h+k+s
, Kerrostalo
72.5 m2
1/
Kievarinkaari 5 A 3
3h+k+s
, Kerrostalo
72.5 m2
Floor 1/
Kievarinkaari 5 A 6
3h+k+s
, Kerrostalo
72.5 m2
2/
Kievarinkaari 5 A 6
3h+k+s
, Kerrostalo
72.5 m2
Floor 2/
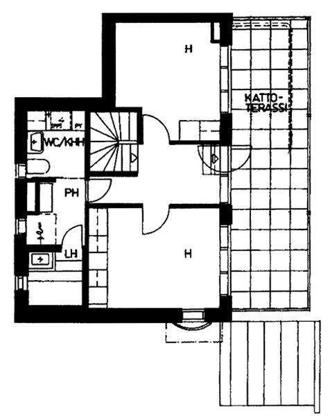
Kievarinkaari 5 A 8
4h+k+s
, Kerrostalo
103 m2
3-4/
Kievarinkaari 5 A 8
4h+k+s
, Kerrostalo
103 m2
Floor 3-4/
