Property Introduction
Valoisa kerrostalokohde Jokiniemessä. Asunnot ovat kaksioita ja kolmioita.
Alueella on päiväkodit ja koulut. Vantaan keskustassa laajat palvelut. Keravanjoen tuntumassa vehreät ulkoilumaastot. Bussipysäkki lähes talon edessä, Tikkurilan juna-asemalle parinsadan metrin kävelymatka.
Why Asuntosäätiö?
We believe that a happy home and quality living are for everyone. We do not seek immediate profit or financial benefit. We use the assets gained from our operations to develop our real estate. Over 33,000 Finns have already chosen a home offered by Asuntosäätiö. Pets are also welcome in all our homes.
Basic house info
- Form of housing Right-of-occupancy
- Average right-of-occupancy payment / jm² 274,8€
- Elevators 1
- House sauna 2
- Laundry room Yes
- Drying room Yes
- Apartment count 41
- Building count 2
- Residence charge / month / jm² 14,45€
- Construction year 1992
- Renovated 2023
- Staircases 4
- Energy class D
- Heating Kauko
- Parking spaces 41
- Clubroom 1
- Broadband DNA Welho
- TV-antenna system Kaapeli
- CableTV DNA
- Roof material Tiili
- House frame material Betoni
- Pets Allowed
Apartments and floor plans: Albert Petreliuksen katu 5, Piharakennus, Kerrostalo
Add all the apartment types you want to your application. Your opportunity to get an apartment increases when we are able to offer you all of the apartment types that may be available later on in this property. You are automatically in queue for these apartment types.
Albert Petreliuksen katu 5 C 20
2h+k
, Kerrostalo
55.5 m2
1/3
Albert Petreliuksen katu 5 C 20
2h+k
, Kerrostalo
55.5 m2
Floor 1/3
Albert Petreliuksen katu 5 B 11
2h+k
, Kerrostalo
55.5 m2
1/3
Albert Petreliuksen katu 5 B 11
2h+k
, Kerrostalo
55.5 m2
Floor 1/3
Albert Petreliuksen katu 5 D 32
2h+k
, Kerrostalo
65 m2
2/5
Albert Petreliuksen katu 5 D 32
2h+k
, Kerrostalo
65 m2
Floor 2/5
Albert Petreliuksen katu 5 D 39
2h+k
, Kerrostalo
65 m2
5/5
Albert Petreliuksen katu 5 D 39
2h+k
, Kerrostalo
65 m2
Floor 5/5
Albert Petreliuksen katu 5 D 36
2h+k
, Kerrostalo
65 m2
4/5
Albert Petreliuksen katu 5 D 36
2h+k
, Kerrostalo
65 m2
Floor 4/5
Albert Petreliuksen katu 5 D 38
2h+k
, Kerrostalo
65 m2
4/5
Albert Petreliuksen katu 5 D 38
2h+k
, Kerrostalo
65 m2
Floor 4/5
Albert Petreliuksen katu 5 D 41
2h+k
, Kerrostalo
65 m2
5/5
Albert Petreliuksen katu 5 D 41
2h+k
, Kerrostalo
65 m2
Floor 5/5
Albert Petreliuksen katu 5 D 35
2h+k
, Kerrostalo
65 m2
3/5
Albert Petreliuksen katu 5 D 35
2h+k
, Kerrostalo
65 m2
Floor 3/5
Albert Petreliuksen katu 5 D 33
2h+k
, Kerrostalo
65 m2
3/5
Albert Petreliuksen katu 5 D 33
2h+k
, Kerrostalo
65 m2
Floor 3/5
Albert Petreliuksen katu 5 D 27
2h+k
, Kerrostalo
65 m2
1/5
Albert Petreliuksen katu 5 D 27
2h+k
, Kerrostalo
65 m2
Floor 1/5
Albert Petreliuksen katu 5 D 29
2h+k
, Kerrostalo
65 m2
1/5
Albert Petreliuksen katu 5 D 29
2h+k
, Kerrostalo
65 m2
Floor 1/5
Albert Petreliuksen katu 5 D 30
2h+k
, Kerrostalo
65 m2
2/5
Albert Petreliuksen katu 5 D 30
2h+k
, Kerrostalo
65 m2
Floor 2/5
Albert Petreliuksen katu 5 C 23
2h+k
, Kerrostalo
65 m2
2/3
Albert Petreliuksen katu 5 C 23
2h+k
, Kerrostalo
65 m2
Floor 2/3
Albert Petreliuksen katu 5 A 5
2h+k
, Kerrostalo
65 m2
2/3
Albert Petreliuksen katu 5 A 5
2h+k
, Kerrostalo
65 m2
Floor 2/3
Albert Petreliuksen katu 5 B 17
2h+k
, Kerrostalo
65 m2
3/3
Albert Petreliuksen katu 5 B 17
2h+k
, Kerrostalo
65 m2
Floor 3/3
Albert Petreliuksen katu 5 B 14
2h+k
, Kerrostalo
65 m2
2/3
Albert Petreliuksen katu 5 B 14
2h+k
, Kerrostalo
65 m2
Floor 2/3
Albert Petreliuksen katu 5 C 26
2h+k
, Kerrostalo
65 m2
3/3
Albert Petreliuksen katu 5 C 26
2h+k
, Kerrostalo
65 m2
Floor 3/3
Albert Petreliuksen katu 5 A 8
2h+k
, Kerrostalo
65 m2
3/3
Albert Petreliuksen katu 5 A 8
2h+k
, Kerrostalo
65 m2
Floor 3/3
Albert Petreliuksen katu 5 D 28
2h+kk
, Kerrostalo
45 m2
1/5
Albert Petreliuksen katu 5 D 28
2h+kk
, Kerrostalo
45 m2
Floor 1/5
Albert Petreliuksen katu 5 D 31
2h+kk
, Kerrostalo
45 m2
2/5
Albert Petreliuksen katu 5 D 31
2h+kk
, Kerrostalo
45 m2
Floor 2/5
Albert Petreliuksen katu 5 D 34
2h+kk
, Kerrostalo
45 m2
3/5
Albert Petreliuksen katu 5 D 34
2h+kk
, Kerrostalo
45 m2
Floor 3/5
Albert Petreliuksen katu 5 D 40
2h+kk
, Kerrostalo
45 m2
5/5
Albert Petreliuksen katu 5 D 40
2h+kk
, Kerrostalo
45 m2
Floor 5/5
Albert Petreliuksen katu 5 D 37
2h+kk
, Kerrostalo
45 m2
4/5
Albert Petreliuksen katu 5 D 37
2h+kk
, Kerrostalo
45 m2
Floor 4/5
Albert Petreliuksen katu 5 A 4
2h+kk
, Kerrostalo
45 m2
2/3
Albert Petreliuksen katu 5 A 4
2h+kk
, Kerrostalo
45 m2
Floor 2/3
Albert Petreliuksen katu 5 B 13
2h+kk
, Kerrostalo
45 m2
2/3
Albert Petreliuksen katu 5 B 13
2h+kk
, Kerrostalo
45 m2
Floor 2/3
Albert Petreliuksen katu 5 C 19
2h+kk
, Kerrostalo
45 m2
1/3
Albert Petreliuksen katu 5 C 19
2h+kk
, Kerrostalo
45 m2
Floor 1/3
Albert Petreliuksen katu 5 C 22
2h+kk
, Kerrostalo
45 m2
2/3
Albert Petreliuksen katu 5 C 22
2h+kk
, Kerrostalo
45 m2
Floor 2/3
Albert Petreliuksen katu 5 B 10
2h+kk
, Kerrostalo
45 m2
1/3
Albert Petreliuksen katu 5 B 10
2h+kk
, Kerrostalo
45 m2
Floor 1/3
Albert Petreliuksen katu 5 C 25
2h+kk
, Kerrostalo
45 m2
3/3
Albert Petreliuksen katu 5 C 25
2h+kk
, Kerrostalo
45 m2
Floor 3/3
Albert Petreliuksen katu 5 A 7
2h+kk
, Kerrostalo
45 m2
3/3
Albert Petreliuksen katu 5 A 7
2h+kk
, Kerrostalo
45 m2
Floor 3/3
Albert Petreliuksen katu 5 B 16
2h+kk
, Kerrostalo
45 m2
3/3
Albert Petreliuksen katu 5 B 16
2h+kk
, Kerrostalo
45 m2
Floor 3/3
Albert Petreliuksen katu 5 A 2
2h+kk
, Kerrostalo
45 m2
1/3
Albert Petreliuksen katu 5 A 2
2h+kk
, Kerrostalo
45 m2
Floor 1/3
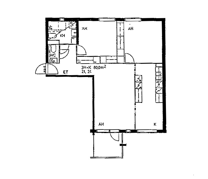
Albert Petreliuksen katu 5 A 6
3h+k
, Kerrostalo
80 m2
3/3
Albert Petreliuksen katu 5 A 6
3h+k
, Kerrostalo
80 m2
Floor 3/3
Albert Petreliuksen katu 5 C 18
3h+k
, Kerrostalo
80 m2
1/3
Albert Petreliuksen katu 5 C 18
3h+k
, Kerrostalo
80 m2
Floor 1/3
Albert Petreliuksen katu 5 A 1
3h+k
, Kerrostalo
80 m2
1/3
Albert Petreliuksen katu 5 A 1
3h+k
, Kerrostalo
80 m2
Floor 1/3
Albert Petreliuksen katu 5 B 12
3h+k
, Kerrostalo
80 m2
2/3
Albert Petreliuksen katu 5 B 12
3h+k
, Kerrostalo
80 m2
Floor 2/3
Albert Petreliuksen katu 5 B 9
3h+k
, Kerrostalo
80 m2
1/3
Albert Petreliuksen katu 5 B 9
3h+k
, Kerrostalo
80 m2
Floor 1/3
Albert Petreliuksen katu 5 A 3
3h+k
, Kerrostalo
80 m2
2/3
Albert Petreliuksen katu 5 A 3
3h+k
, Kerrostalo
80 m2
Floor 2/3
Albert Petreliuksen katu 5 B 15
3h+k
, Kerrostalo
80 m2
3/3
Albert Petreliuksen katu 5 B 15
3h+k
, Kerrostalo
80 m2
Floor 3/3
Albert Petreliuksen katu 5 C 24
3h+k
, Kerrostalo
80 m2
3/3
Albert Petreliuksen katu 5 C 24
3h+k
, Kerrostalo
80 m2
Floor 3/3
Albert Petreliuksen katu 5 C 21
3h+k
, Kerrostalo
80 m2
2/3
Albert Petreliuksen katu 5 C 21
3h+k
, Kerrostalo
80 m2
Floor 2/3