Property Introduction
Valoisa kerrostalokohde Leinelässä.
Palvelut ovat Leinelässä kävelyetäisyydellä. Leinelässä on oma päiväkoti sekä ruokakauppa. Alueen läheisyydestä löytyy muun muassa ylä- ja alakouluja. Luontoa on säilytetty alueen rakentamisessa erityisen paljon, ja muun muassa alueen keskellä olevaan Kukkukallion puistoon on jätetty luonnontilaista mäntymetsää ja muuta kasvillisuutta. Lisäksi Leinelän läpi kulkee mukavia kävelyreittejä. Alueesta omaleimaisen tekee ympäristötaide, jonka teemana on elämän kiertokulku. Leinelän juna-asema kävelyetäisyydellä.
Vesimittarit käytössä.
Why Asuntosäätiö?
We believe that a happy home and quality living are for everyone. We do not seek immediate profit or financial benefit. We use the assets gained from our operations to develop our real estate. Over 33,000 Finns have already chosen a home offered by Asuntosäätiö. Pets are also welcome in all our homes.
Basic house info
- Form of housing Right-of-occupancy
- Average right-of-occupancy payment / jm² 606,7€
- Elevators 2
- House sauna 2
- Drying room Yes
- Apartment count 72
- Building count 2
- Residence charge / month / jm² 16,8€
- Construction year 2016
- Staircases 2
- Energy class C
- Heating Kauko + aurinkosähkö
- Parking spaces 50
- Broadband DNA Welho
- TV-antenna system Kaapeli
- CableTV DNA
- Roof material Huopa
- House frame material Betoni
- Pets Allowed
Apartments and floor plans: Leinelänkaari 11, Kerrostalo
Add all the apartment types you want to your application. Your opportunity to get an apartment increases when we are able to offer you all of the apartment types that may be available later on in this property. You are automatically in queue for these apartment types.
Leinelänkaari 11 B 50
1h+kk
, Kerrostalo
38.5 m2
3/7
Leinelänkaari 11 B 50
1h+kk
, Kerrostalo
38.5 m2
Floor 3/7
Leinelänkaari 11 B 68
1h+kk
, Kerrostalo
38.5 m2
6/7
Leinelänkaari 11 B 68
1h+kk
, Kerrostalo
38.5 m2
Floor 6/7
Leinelänkaari 11 B 56
1h+kk
, Kerrostalo
38.5 m2
4/7
Leinelänkaari 11 B 56
1h+kk
, Kerrostalo
38.5 m2
Floor 4/7
Leinelänkaari 11 B 62
1h+kk
, Kerrostalo
38.5 m2
5/7
Leinelänkaari 11 B 62
1h+kk
, Kerrostalo
38.5 m2
Floor 5/7
Leinelänkaari 11 B 44
1h+kk
, Kerrostalo
38.5 m2
2/7
Leinelänkaari 11 B 44
1h+kk
, Kerrostalo
38.5 m2
Floor 2/7
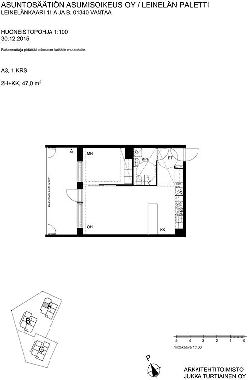
Leinelänkaari 11 A 19
2h+k
, Kerrostalo
46.5 m2
Floor 4/7
Leinelänkaari 11 A 13
2h+k
, Kerrostalo
46.5 m2
3/7
Leinelänkaari 11 A 13
2h+k
, Kerrostalo
46.5 m2
Floor 3/7
Leinelänkaari 11 A 25
2h+k
, Kerrostalo
46.5 m2
5/7
Leinelänkaari 11 A 25
2h+k
, Kerrostalo
46.5 m2
Floor 5/7
Leinelänkaari 11 A 31
2h+k
, Kerrostalo
46.5 m2
Floor 6/7
Leinelänkaari 11 A 7
2h+k
, Kerrostalo
46.5 m2
2/7
Leinelänkaari 11 A 7
2h+k
, Kerrostalo
46.5 m2
Floor 2/7
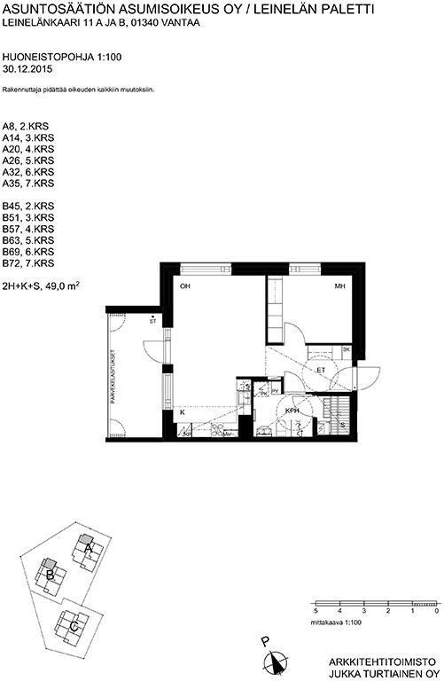
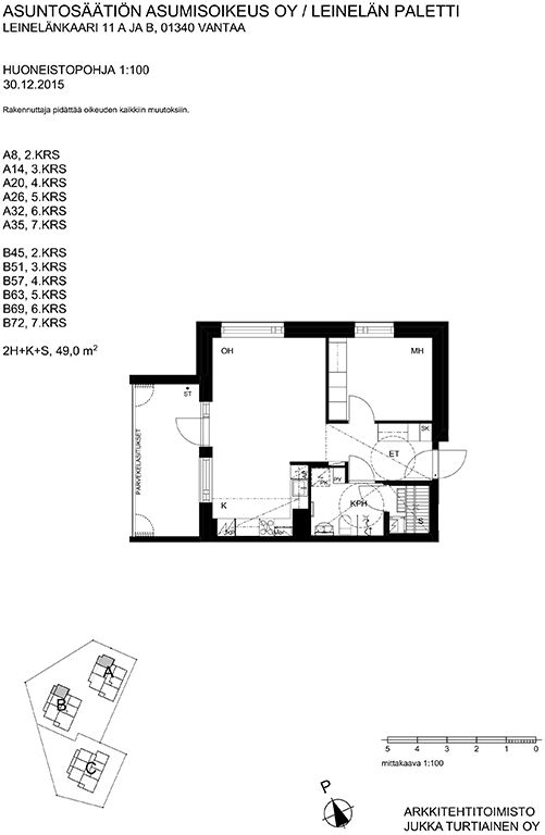
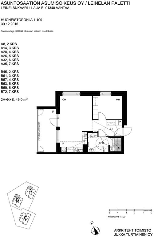
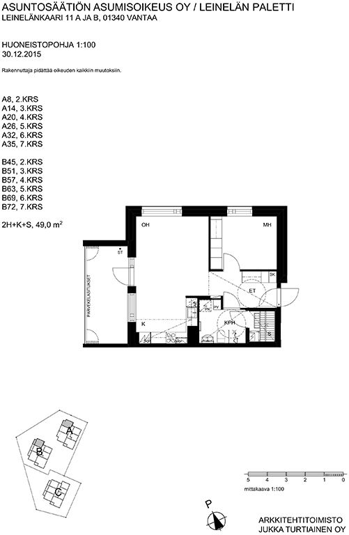
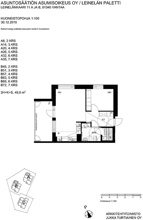
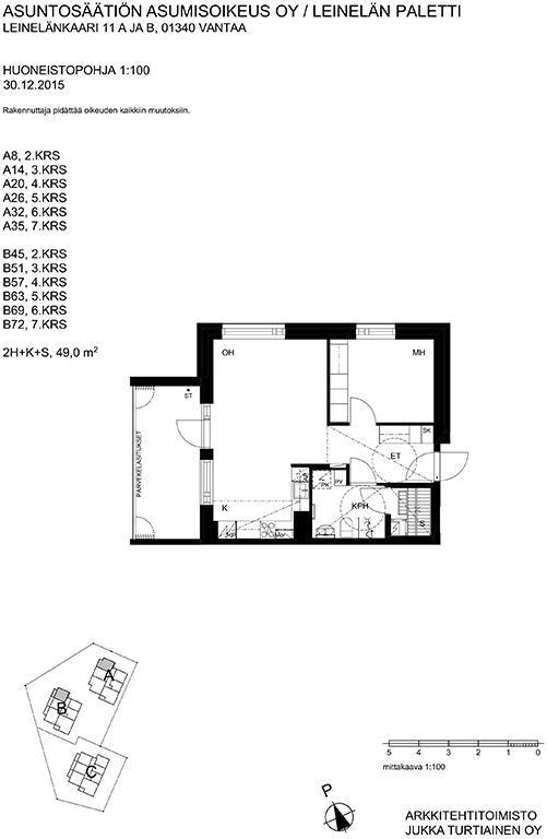
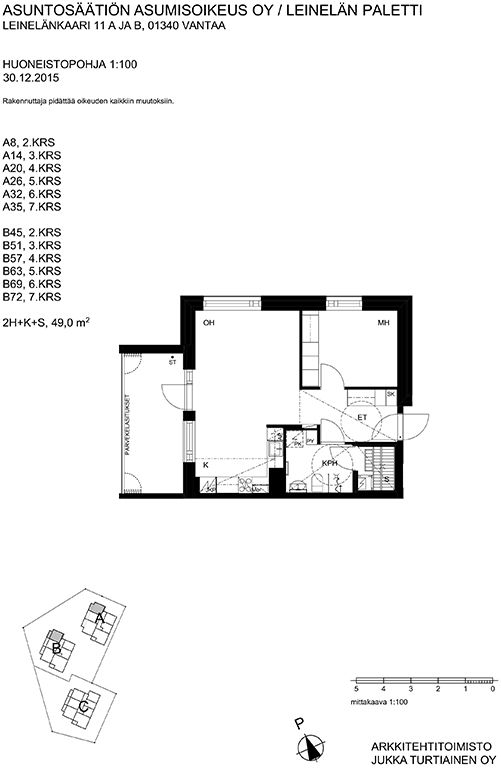
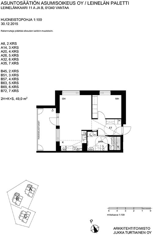
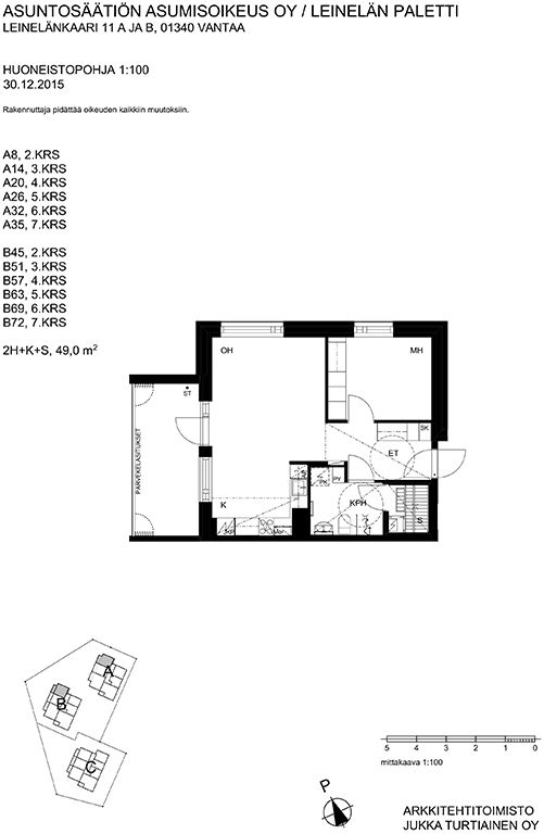
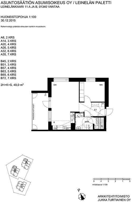
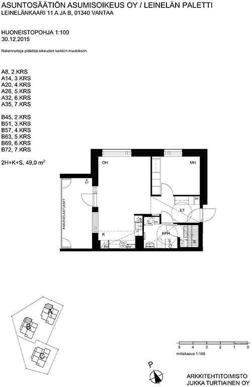
Leinelänkaari 11 A 35
2h+k+s
, Kerrostalo
49 m2
7/7
Leinelänkaari 11 A 35
2h+k+s
, Kerrostalo
49 m2
Floor 7/7
Leinelänkaari 11 A 14
2h+k+s
, Kerrostalo
49 m2
3/7
Leinelänkaari 11 A 14
2h+k+s
, Kerrostalo
49 m2
Floor 3/7
Leinelänkaari 11 A 26
2h+k+s
, Kerrostalo
49 m2
5/7
Leinelänkaari 11 A 26
2h+k+s
, Kerrostalo
49 m2
Floor 5/7
Leinelänkaari 11 A 2
2h+k+s
, Kerrostalo
49 m2
1/7
Leinelänkaari 11 A 2
2h+k+s
, Kerrostalo
49 m2
Floor 1/7
Leinelänkaari 11 A 32
2h+k+s
, Kerrostalo
49 m2
6/7
Leinelänkaari 11 A 32
2h+k+s
, Kerrostalo
49 m2
Floor 6/7
Leinelänkaari 11 A 20
2h+k+s
, Kerrostalo
49 m2
4/7
Leinelänkaari 11 A 20
2h+k+s
, Kerrostalo
49 m2
Floor 4/7
Leinelänkaari 11 A 8
2h+k+s
, Kerrostalo
49 m2
2/7
Leinelänkaari 11 A 8
2h+k+s
, Kerrostalo
49 m2
Floor 2/7
Leinelänkaari 11 B 63
2h+k+s
, Kerrostalo
49 m2
5/7
Leinelänkaari 11 B 63
2h+k+s
, Kerrostalo
49 m2
Floor 5/7
Leinelänkaari 11 B 57
2h+k+s
, Kerrostalo
49 m2
4/7
Leinelänkaari 11 B 57
2h+k+s
, Kerrostalo
49 m2
Floor 4/7
Leinelänkaari 11 B 69
2h+k+s
, Kerrostalo
49 m2
6/7
Leinelänkaari 11 B 69
2h+k+s
, Kerrostalo
49 m2
Floor 6/7
Leinelänkaari 11 B 39
2h+k+s
, Kerrostalo
49 m2
1/7
Leinelänkaari 11 B 39
2h+k+s
, Kerrostalo
49 m2
Floor 1/7
Leinelänkaari 11 B 45
2h+k+s
, Kerrostalo
49 m2
2/7
Leinelänkaari 11 B 45
2h+k+s
, Kerrostalo
49 m2
Floor 2/7
Leinelänkaari 11 B 72
2h+k+s
, Kerrostalo
49 m2
7/7
Leinelänkaari 11 B 72
2h+k+s
, Kerrostalo
49 m2
Floor 7/7
Leinelänkaari 11 B 51
2h+k+s
, Kerrostalo
49 m2
3/7
Leinelänkaari 11 B 51
2h+k+s
, Kerrostalo
49 m2
Floor 3/7
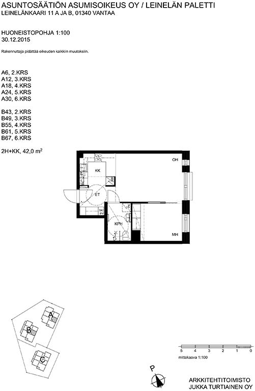
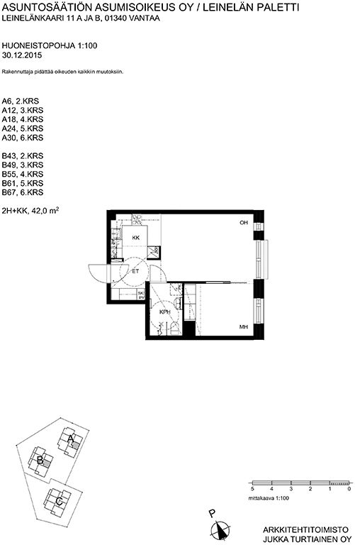
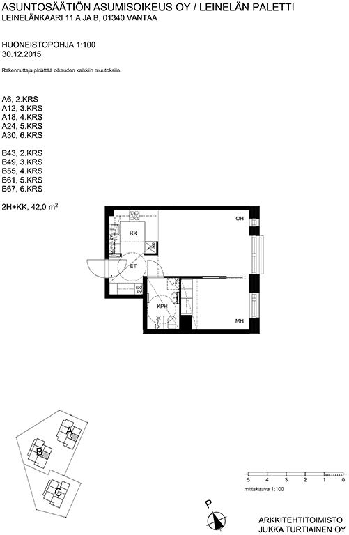
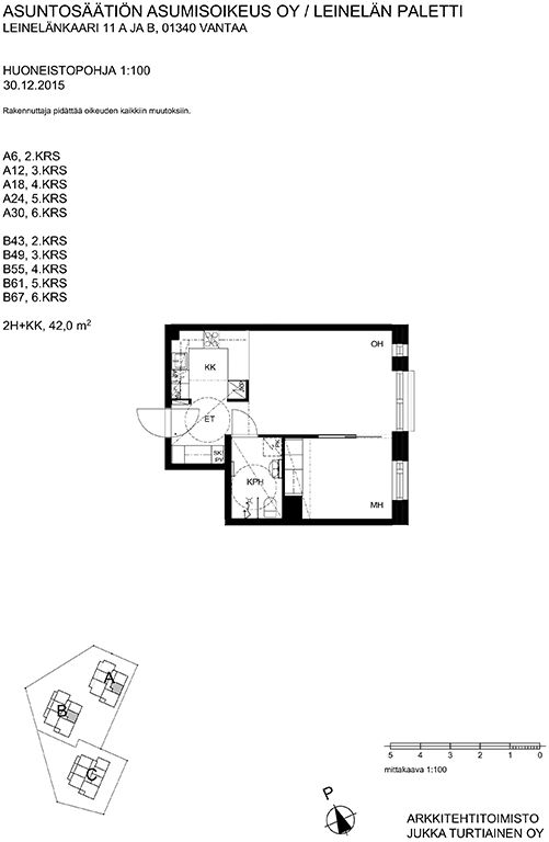
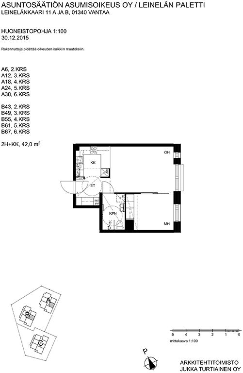
Leinelänkaari 11 A 12
2h+kk
, Kerrostalo
42 m2
3/7
Leinelänkaari 11 A 12
2h+kk
, Kerrostalo
42 m2
Floor 3/7
Leinelänkaari 11 A 30
2h+kk
, Kerrostalo
42 m2
6/7
Leinelänkaari 11 A 30
2h+kk
, Kerrostalo
42 m2
Floor 6/7
Leinelänkaari 11 A 6
2h+kk
, Kerrostalo
42 m2
2/7
Leinelänkaari 11 A 6
2h+kk
, Kerrostalo
42 m2
Floor 2/7
Leinelänkaari 11 B 55
2h+kk
, Kerrostalo
42 m2
4/7
Leinelänkaari 11 B 55
2h+kk
, Kerrostalo
42 m2
Floor 4/7
Leinelänkaari 11 B 61
2h+kk
, Kerrostalo
42 m2
5/7
Leinelänkaari 11 B 61
2h+kk
, Kerrostalo
42 m2
Floor 5/7
Leinelänkaari 11 B 67
2h+kk
, Kerrostalo
42 m2
6/7
Leinelänkaari 11 B 67
2h+kk
, Kerrostalo
42 m2
Floor 6/7
Leinelänkaari 11 B 43
2h+kk
, Kerrostalo
42 m2
2/7
Leinelänkaari 11 B 43
2h+kk
, Kerrostalo
42 m2
Floor 2/7
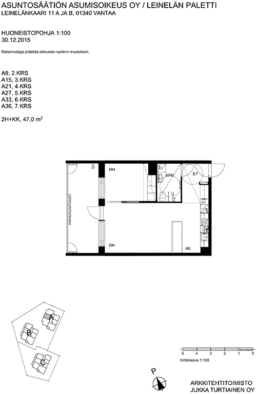
Leinelänkaari 11 A 3
2h+kk
, Kerrostalo
47 m2
1/7
Leinelänkaari 11 A 3
2h+kk
, Kerrostalo
47 m2
Floor 1/7
Leinelänkaari 11 A 33
2h+kk
, Kerrostalo
47 m2
6/7
Leinelänkaari 11 A 33
2h+kk
, Kerrostalo
47 m2
Floor 6/7
Leinelänkaari 11 A 27
2h+kk
, Kerrostalo
47 m2
5/7
Leinelänkaari 11 A 27
2h+kk
, Kerrostalo
47 m2
Floor 5/7
Leinelänkaari 11 A 21
2h+kk
, Kerrostalo
47 m2
4/7
Leinelänkaari 11 A 21
2h+kk
, Kerrostalo
47 m2
Floor 4/7
Leinelänkaari 11 A 9
2h+kk
, Kerrostalo
47 m2
2/7
Leinelänkaari 11 A 9
2h+kk
, Kerrostalo
47 m2
Floor 2/7
Leinelänkaari 11 A 36
2h+kk
, Kerrostalo
47 m2
7/7
Leinelänkaari 11 A 36
2h+kk
, Kerrostalo
47 m2
Floor 7/7
Leinelänkaari 11 A 15
2h+kk
, Kerrostalo
47 m2
3/7
Leinelänkaari 11 A 15
2h+kk
, Kerrostalo
47 m2
Floor 3/7
Leinelänkaari 11 B 70
2h+kk
, Kerrostalo
47 m2
7/7
Leinelänkaari 11 B 70
2h+kk
, Kerrostalo
47 m2
Floor 7/7
Leinelänkaari 11 B 64
2h+kk
, Kerrostalo
47 m2
6/7
Leinelänkaari 11 B 64
2h+kk
, Kerrostalo
47 m2
Floor 6/7
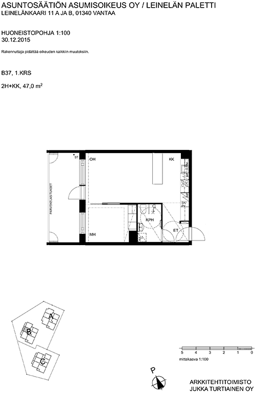
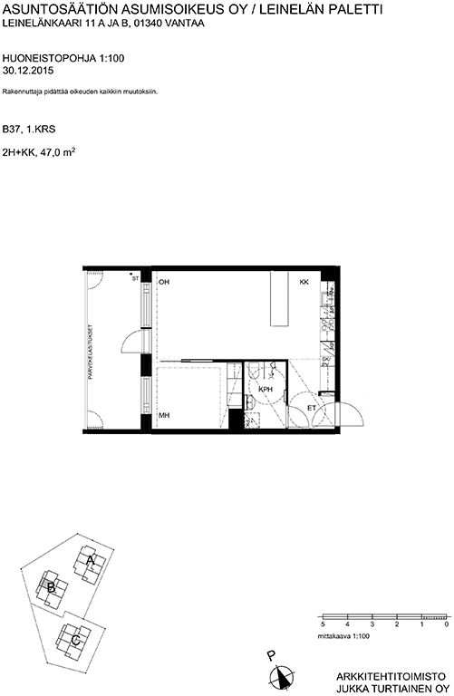
Leinelänkaari 11 B 37
2h+kk
, Kerrostalo
47 m2
1/7
Leinelänkaari 11 B 37
2h+kk
, Kerrostalo
47 m2
Floor 1/7
Leinelänkaari 11 B 58
2h+kk
, Kerrostalo
47 m2
5/7
Leinelänkaari 11 B 58
2h+kk
, Kerrostalo
47 m2
Floor 5/7
Leinelänkaari 11 B 40
2h+kk
, Kerrostalo
47 m2
2/7
Leinelänkaari 11 B 40
2h+kk
, Kerrostalo
47 m2
Floor 2/7
Leinelänkaari 11 B 46
2h+kk
, Kerrostalo
47 m2
3/7
Leinelänkaari 11 B 46
2h+kk
, Kerrostalo
47 m2
Floor 3/7
Leinelänkaari 11 B 52
2h+kk
, Kerrostalo
47 m2
4/7
Leinelänkaari 11 B 52
2h+kk
, Kerrostalo
47 m2
Floor 4/7
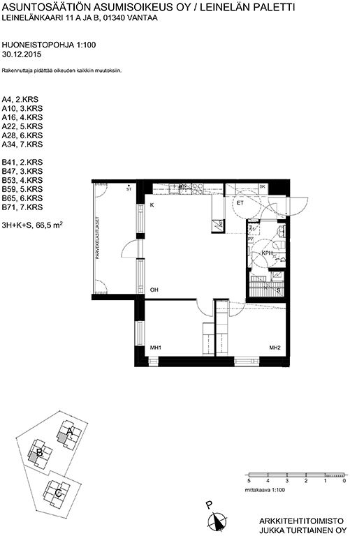
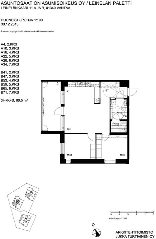
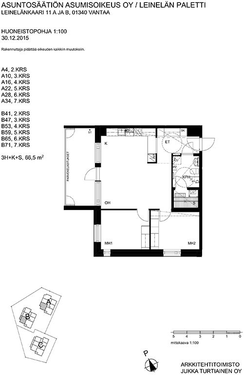
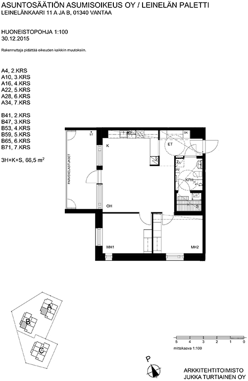
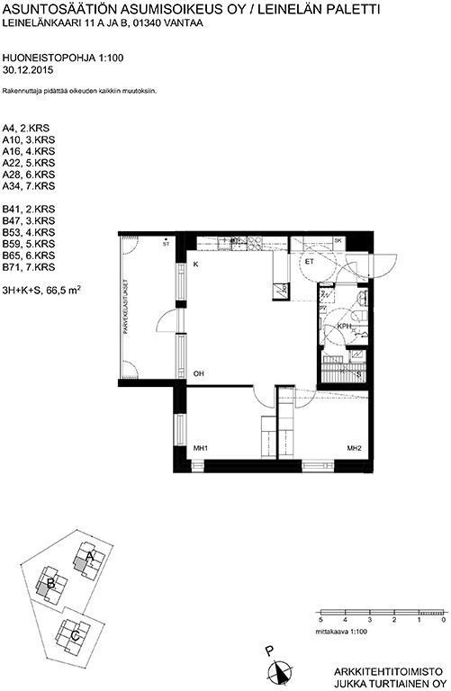
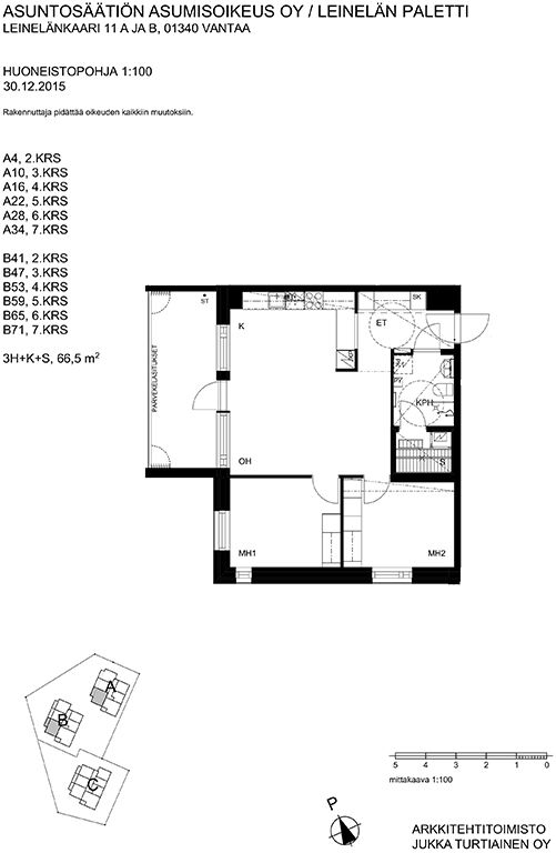
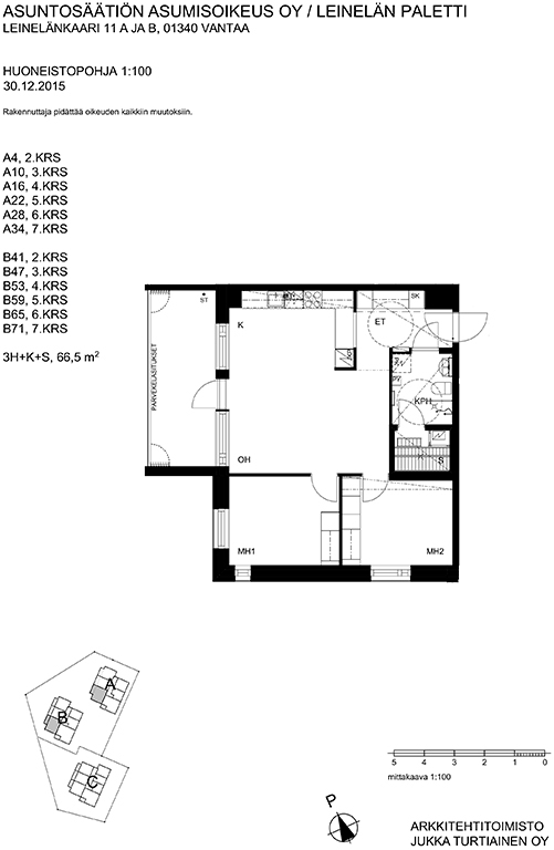
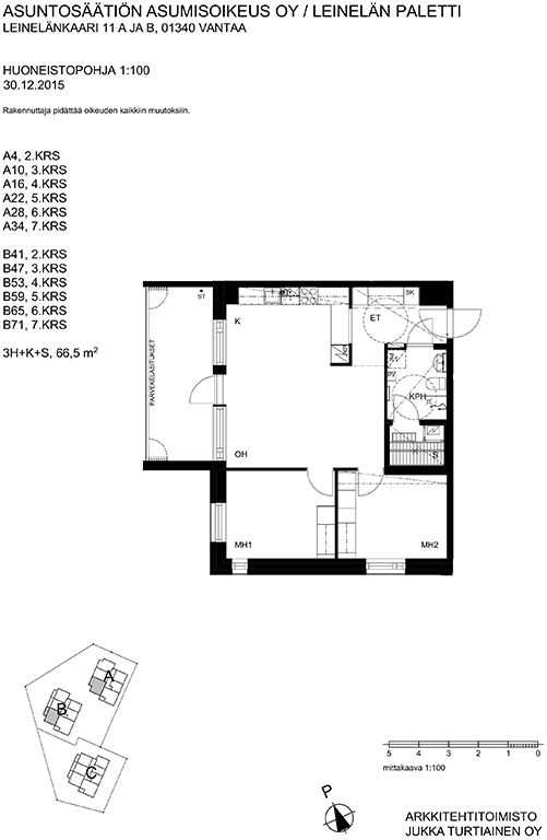
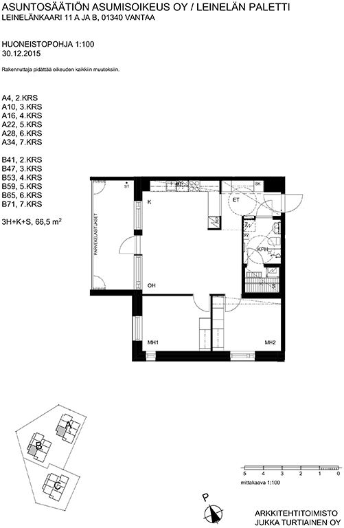
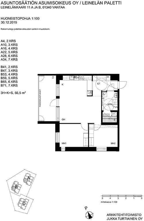
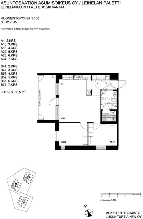
Leinelänkaari 11 A 16
3h+k+s
, Kerrostalo
66.5 m2
4/7
Leinelänkaari 11 A 16
3h+k+s
, Kerrostalo
66.5 m2
Floor 4/7
Leinelänkaari 11 A 28
3h+k+s
, Kerrostalo
66.5 m2
6/7
Leinelänkaari 11 A 28
3h+k+s
, Kerrostalo
66.5 m2
Floor 6/7
Leinelänkaari 11 A 10
3h+k+s
, Kerrostalo
66.5 m2
3/7
Leinelänkaari 11 A 10
3h+k+s
, Kerrostalo
66.5 m2
Floor 3/7
Leinelänkaari 11 A 4
3h+k+s
, Kerrostalo
66.5 m2
2/7
Leinelänkaari 11 A 4
3h+k+s
, Kerrostalo
66.5 m2
Floor 2/7
Leinelänkaari 11 A 22
3h+k+s
, Kerrostalo
66.5 m2
5/7
Leinelänkaari 11 A 22
3h+k+s
, Kerrostalo
66.5 m2
Floor 5/7
Leinelänkaari 11 A 34
3h+k+s
, Kerrostalo
66.5 m2
7/7
Leinelänkaari 11 A 34
3h+k+s
, Kerrostalo
66.5 m2
Floor 7/7
Leinelänkaari 11 A 1
3h+k+s
, Kerrostalo
66.5 m2
1/7
Leinelänkaari 11 A 1
3h+k+s
, Kerrostalo
66.5 m2
Floor 1/7
Leinelänkaari 11 B 59
3h+k+s
, Kerrostalo
66.5 m2
5/7
Leinelänkaari 11 B 59
3h+k+s
, Kerrostalo
66.5 m2
Floor 5/7
Leinelänkaari 11 B 65
3h+k+s
, Kerrostalo
66.5 m2
6/7
Leinelänkaari 11 B 65
3h+k+s
, Kerrostalo
66.5 m2
Floor 6/7
Leinelänkaari 11 B 41
3h+k+s
, Kerrostalo
66.5 m2
2/7
Leinelänkaari 11 B 41
3h+k+s
, Kerrostalo
66.5 m2
Floor 2/7
Leinelänkaari 11 B 71
3h+k+s
, Kerrostalo
66.5 m2
7/7
Leinelänkaari 11 B 71
3h+k+s
, Kerrostalo
66.5 m2
Floor 7/7
Leinelänkaari 11 B 53
3h+k+s
, Kerrostalo
66.5 m2
4/7
Leinelänkaari 11 B 53
3h+k+s
, Kerrostalo
66.5 m2
Floor 4/7
Leinelänkaari 11 B 47
3h+k+s
, Kerrostalo
66.5 m2
3/7
Leinelänkaari 11 B 47
3h+k+s
, Kerrostalo
66.5 m2
Floor 3/7
Leinelänkaari 11 B 38
3h+k+s
, Kerrostalo
66.5 m2
1/7
Leinelänkaari 11 B 38
3h+k+s
, Kerrostalo
66.5 m2
Floor 1/7
Leinelänkaari 11 A 23
3h+k+s
, Kerrostalo
76 m2
5/7
Leinelänkaari 11 A 23
3h+k+s
, Kerrostalo
76 m2
Floor 5/7
Leinelänkaari 11 A 5
3h+k+s
, Kerrostalo
76 m2
2/7
Leinelänkaari 11 A 5
3h+k+s
, Kerrostalo
76 m2
Floor 2/7
Leinelänkaari 11 A 17
3h+k+s
, Kerrostalo
76 m2
4/7
Leinelänkaari 11 A 17
3h+k+s
, Kerrostalo
76 m2
Floor 4/7
Leinelänkaari 11 A 11
3h+k+s
, Kerrostalo
76 m2
3/7
Leinelänkaari 11 A 11
3h+k+s
, Kerrostalo
76 m2
Floor 3/7
Leinelänkaari 11 A 29
3h+k+s
, Kerrostalo
76 m2
6/7
Leinelänkaari 11 A 29
3h+k+s
, Kerrostalo
76 m2
Floor 6/7
Leinelänkaari 11 B 66
4h+k+s
, Kerrostalo
88 m2
6/7
Leinelänkaari 11 B 66
4h+k+s
, Kerrostalo
88 m2
Floor 6/7
Leinelänkaari 11 B 42
4h+k+s
, Kerrostalo
88 m2
2/7
Leinelänkaari 11 B 42
4h+k+s
, Kerrostalo
88 m2
Floor 2/7
Leinelänkaari 11 B 54
4h+k+s
, Kerrostalo
88 m2
4/7
Leinelänkaari 11 B 54
4h+k+s
, Kerrostalo
88 m2
Floor 4/7
Leinelänkaari 11 B 48
4h+k+s
, Kerrostalo
88 m2
3/7
Leinelänkaari 11 B 48
4h+k+s
, Kerrostalo
88 m2
Floor 3/7
Leinelänkaari 11 B 60
4h+k+s
, Kerrostalo
88 m2
5/7
Leinelänkaari 11 B 60
4h+k+s
, Kerrostalo
88 m2
Floor 5/7


