Property Introduction
Why Asuntosäätiö?
We believe that a happy home and quality living are for everyone. We do not seek immediate profit or financial benefit. We use the assets gained from our operations to develop our real estate. Over 33,000 Finns have already chosen a home offered by Asuntosäätiö. Pets are also welcome in all our homes.
Basic house info
- Form of housing Right-of-occupancy
- Average right-of-occupancy payment / jm² 210,03€
- Elevators No
- House sauna No
- Drying room Yes
- Apartment count 30
- Building count 4
- Residence charge / month / jm² 14,78€
- Construction year 1993
- Renovated 2023
- Staircases 1
- Energy class D, E
- Heating Kauko
- Parking spaces 30
- Hobby room 1
- Broadband DNA Welho
- TV-antenna system Kaapeli
- CableTV DNA
- Roof material Tiili
- House frame material Betoni
- Pets Allowed
Apartments and floor plans: Saagatie 10, Piharakennus, Pienkerrostalo, Kerrostalo
Add all the apartment types you want to your application. Your opportunity to get an apartment increases when we are able to offer you all of the apartment types that may be available later on in this property. You are automatically in queue for these apartment types.
Saagatie 10 F 22
2h+k+s
, Pienkerrostalo
62 m2
2/2
Saagatie 10 F 22
2h+k+s
, Pienkerrostalo
62 m2
Floor 2/2
Saagatie 10 B 3
2h+k+s
, Pienkerrostalo
62 m2
1/2
Saagatie 10 B 3
2h+k+s
, Pienkerrostalo
62 m2
Floor 1/2
Saagatie 10 B 4
2h+k+s
, Pienkerrostalo
62 m2
2/2
Saagatie 10 B 4
2h+k+s
, Pienkerrostalo
62 m2
Floor 2/2
Saagatie 10 I 27
2h+k+s
, Pienkerrostalo
62 m2
1/2
Saagatie 10 I 27
2h+k+s
, Pienkerrostalo
62 m2
Floor 1/2
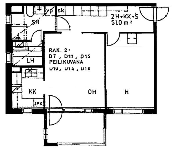
Saagatie 10 D 16
2h+kk+s
, Kerrostalo
51 m2
3/3
Saagatie 10 D 16
2h+kk+s
, Kerrostalo
51 m2
Floor 3/3
Saagatie 10 D 13
2h+kk+s
, Kerrostalo
51 m2
2/3
Saagatie 10 D 13
2h+kk+s
, Kerrostalo
51 m2
Floor 2/3
Saagatie 10 D 18
2h+kk+s
, Kerrostalo
51 m2
3/3
Saagatie 10 D 18
2h+kk+s
, Kerrostalo
51 m2
Floor 3/3
Saagatie 10 D 10
2h+kk+s
, Kerrostalo
51 m2
1/3
Saagatie 10 D 10
2h+kk+s
, Kerrostalo
51 m2
Floor 1/3
Saagatie 10 D 8
2h+kk+s
, Kerrostalo
51 m2
Floor 1/3
Saagatie 10 D 12
2h+kk+s
, Kerrostalo
51 m2
2/3
Saagatie 10 D 12
2h+kk+s
, Kerrostalo
51 m2
Floor 2/3
Saagatie 10 D 9
2h+kk+s
, Kerrostalo
51 m2
1/3
Saagatie 10 D 9
2h+kk+s
, Kerrostalo
51 m2
Floor 1/3
Saagatie 10 D 15
2h+kk+s
, Kerrostalo
51 m2
3/3
Saagatie 10 D 15
2h+kk+s
, Kerrostalo
51 m2
Floor 3/3
Saagatie 10 D 14
2h+kk+s
, Kerrostalo
51 m2
2/3
Saagatie 10 D 14
2h+kk+s
, Kerrostalo
51 m2
Floor 2/3
Saagatie 10 D 17
2h+kk+s
, Kerrostalo
51 m2
3/3
Saagatie 10 D 17
2h+kk+s
, Kerrostalo
51 m2
Floor 3/3
Saagatie 10 D 11
2h+kk+s
, Kerrostalo
51 m2
2/3
Saagatie 10 D 11
2h+kk+s
, Kerrostalo
51 m2
Floor 2/3
Saagatie 10 D 7
2h+kk+s
, Kerrostalo
51 m2
1/3
Saagatie 10 D 7
2h+kk+s
, Kerrostalo
51 m2
Floor 1/3
Saagatie 10 H 25
3h+k+s
, Pienkerrostalo
75.5 m2
1/2
Saagatie 10 H 25
3h+k+s
, Pienkerrostalo
75.5 m2
Floor 1/2
Saagatie 10 H 26
3h+k+s
, Pienkerrostalo
75.5 m2
2/2
Saagatie 10 H 26
3h+k+s
, Pienkerrostalo
75.5 m2
Floor 2/2
Saagatie 10 C 6
3h+k+s
, Pienkerrostalo
76 m2
2/2
Saagatie 10 C 6
3h+k+s
, Pienkerrostalo
76 m2
Floor 2/2
Saagatie 10 J 29
3h+k+s
, Pienkerrostalo
76 m2
1/2
Saagatie 10 J 29
3h+k+s
, Pienkerrostalo
76 m2
Floor 1/2
Saagatie 10 C 5
3h+k+s
, Pienkerrostalo
76 m2
1/2
Saagatie 10 C 5
3h+k+s
, Pienkerrostalo
76 m2
Floor 1/2
Saagatie 10 A 1
3h+k+s
, Pienkerrostalo
76 m2
1/2
Saagatie 10 A 1
3h+k+s
, Pienkerrostalo
76 m2
Floor 1/2
Saagatie 10 A 2
3h+k+s
, Pienkerrostalo
76 m2
2/2
Saagatie 10 A 2
3h+k+s
, Pienkerrostalo
76 m2
Floor 2/2
Saagatie 10 G 23
3h+k+s
, Pienkerrostalo
76 m2
1/2
Saagatie 10 G 23
3h+k+s
, Pienkerrostalo
76 m2
Floor 1/2
Saagatie 10 E 19
3h+k+s
, Pienkerrostalo
76 m2
1/2
Saagatie 10 E 19
3h+k+s
, Pienkerrostalo
76 m2
Floor 1/2
Saagatie 10 E 20
3h+k+s
, Pienkerrostalo
76 m2
2/2
Saagatie 10 E 20
3h+k+s
, Pienkerrostalo
76 m2
Floor 2/2
Saagatie 10 J 30
3h+k+s
, Pienkerrostalo
76 m2
2/2
Saagatie 10 J 30
3h+k+s
, Pienkerrostalo
76 m2
Floor 2/2


