Property Introduction
Kodikas rivitalokohde vehreällä pientaloalueella. Asunnot 3-5 huoneen ja keittiön huoneistoja, joissa on oma sauna ja piha. Tunnelmaa ja talvella myös lisälämpöä asuntoihin tuovat huoneistokohtaiset takat. Kohteessa on sähkölämmitys ja omatoimiviherhoito.
Lähellä on useita päiväkoteja ja kouluja. Alueella on hyvät ulkoilumahdollisuudet, puistoja ja koirapuistoja. Hyvät liikenneyhteydet sekä omalla autolla että julkisilla.
Why Asuntosäätiö?
We believe that a happy home and quality living are for everyone. We do not seek immediate profit or financial benefit. We use the assets gained from our operations to develop our real estate. Over 33,000 Finns have already chosen a home offered by Asuntosäätiö. Pets are also welcome in all our homes.
Basic house info
- Form of housing Right-of-occupancy
- Average right-of-occupancy payment / jm² 387,85€
- Elevators No
- House sauna No
- Apartment count 6
- Building count 2
- Residence charge / month / jm² 16,68€
- Construction year 1997
- Energy class D
- Heating Sähkö
- Parking spaces 9
- Broadband DNA 4G
- TV-antenna system Harava
- Roof material Tiili
- House frame material Puu
- Pets Allowed
Apartments and floor plans: Viestitie 34, Piharakennus, Paritalo, Rivitalo
Add all the apartment types you want to your application. Your opportunity to get an apartment increases when we are able to offer you all of the apartment types that may be available later on in this property. You are automatically in queue for these apartment types.
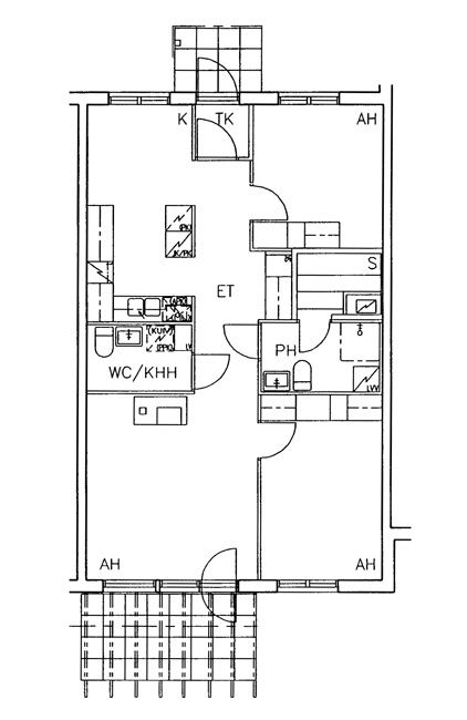
Viestitie 34 A 3
3h+k+s
, Rivitalo
75 m2
1/1
Viestitie 34 A 3
3h+k+s
, Rivitalo
75 m2
Floor 1/1
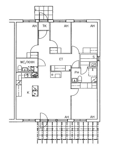
Viestitie 34 A 4
3h+k+s
, Rivitalo
75 m2
1/1
Viestitie 34 A 4
3h+k+s
, Rivitalo
75 m2
Floor 1/1
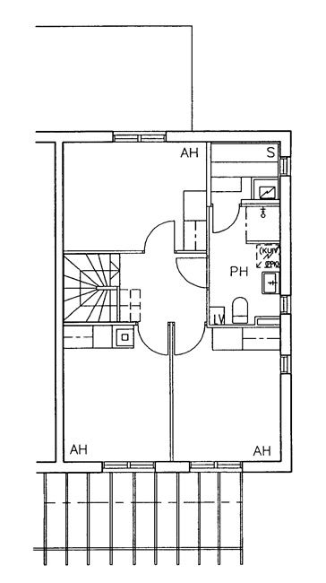
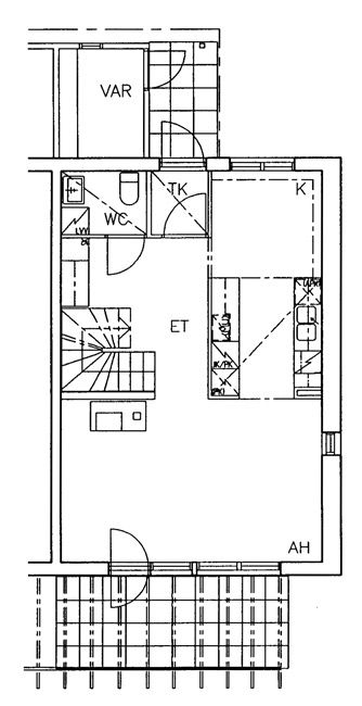
Viestitie 34 B 6
4h+k+s
, Paritalo
94 m2
1-2/2
Viestitie 34 B 6
4h+k+s
, Paritalo
94 m2
Floor 1-2/2
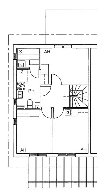
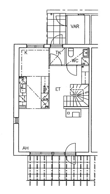
Viestitie 34 B 5
4h+k+s
, Paritalo
94 m2
1-2/2
Viestitie 34 B 5
4h+k+s
, Paritalo
94 m2
Floor 1-2/2
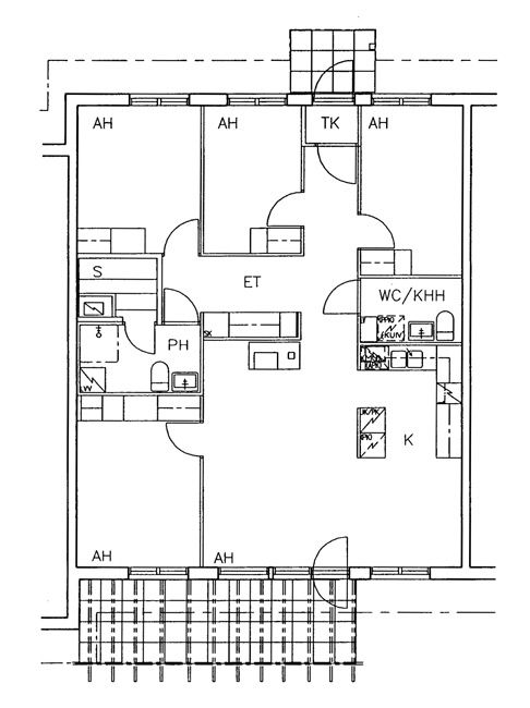
Viestitie 34 A 2
5h+k+s
, Rivitalo
100 m2
1/1
Viestitie 34 A 2
5h+k+s
, Rivitalo
100 m2
Floor 1/1
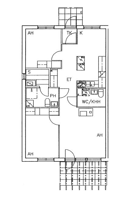
Viestitie 34 A 1
5h+k+s
, Rivitalo
100 m2
1/1
Viestitie 34 A 1
5h+k+s
, Rivitalo
100 m2
Floor 1/1