Property Introduction
Viihtyisä rivitalokohde Rekolassa. Asunnot ovat 2-6 huoneen ja erillisen keittiön huoneistoja, joihin kuuluu oma sauna ja piha.
Alueella on päiväkodit ja koulut sekä laajat päivittäistavarakaupat. Hyvät liikenneyhteydet: juna-asema muutaman sadan metrin päässä.
Why Asuntosäätiö?
We believe that a happy home and quality living are for everyone. We do not seek immediate profit or financial benefit. We use the assets gained from our operations to develop our real estate. Over 33,000 Finns have already chosen a home offered by Asuntosäätiö. Pets are also welcome in all our homes.
Basic house info
- Form of housing Right-of-occupancy
- Average right-of-occupancy payment / jm² 389,42€
- Elevators No
- House sauna No
- Drying room Yes
- Apartment count 22
- Building count 11
- Residence charge / month / jm² 15,87€
- Construction year 1997
- Energy class D
- Heating Kauko
- Parking spaces 23
- Clubroom 1
- Broadband DNA Netti
- TV-antenna system Kaapeli
- CableTV DNA
- Roof material Tiili
- House frame material Betoni
- Pets Allowed
Apartments and floor plans: Timontie 9 ja Keijontie 11, Piharakennus, Paritalo
Add all the apartment types you want to your application. Your opportunity to get an apartment increases when we are able to offer you all of the apartment types that may be available later on in this property. You are automatically in queue for these apartment types.
Keijontie 14 A 11
2h+k+s
, Paritalo
54 m2
1/1
Keijontie 14 A 11
2h+k+s
, Paritalo
54 m2
Floor 1/1
Keijontie 10 A 7
2h+k+s
, Paritalo
54 m2
Floor 1/1
Keijontie 17 B 16
2h+k+s
, Paritalo
54 m2
1/1
Keijontie 17 B 16
2h+k+s
, Paritalo
54 m2
Floor 1/1
Keijontie 16 A A 13
2h+k+s
, Paritalo
54 m2
1/1
Keijontie 16 A A 13
2h+k+s
, Paritalo
54 m2
Floor 1/1
Keijontie 11 A 21
2h+k+s
, Paritalo
54 m2
1/1
Keijontie 11 A 21
2h+k+s
, Paritalo
54 m2
Floor 1/1
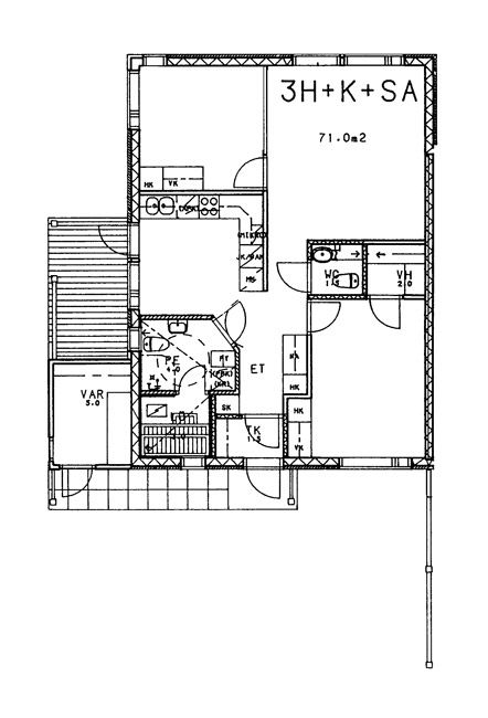
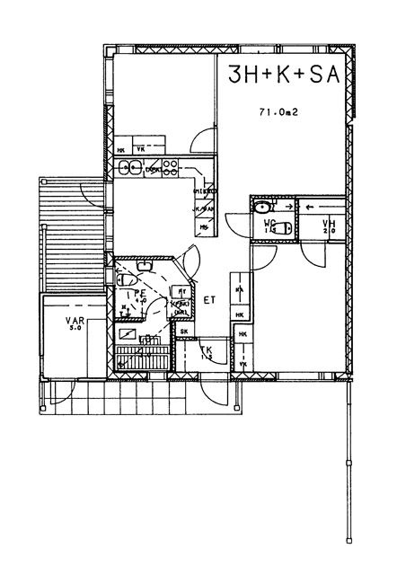
Timontie 11 A 3
3h+k+s
, Paritalo
71 m2
1/1
Timontie 11 A 3
3h+k+s
, Paritalo
71 m2
Floor 1/1
Timontie 9 A 5
3h+k+s
, Paritalo
71 m2
1/1
Timontie 9 A 5
3h+k+s
, Paritalo
71 m2
Floor 1/1
Keijontie 15 A 17
3h+k+s
, Paritalo
71 m2
1/1
Keijontie 15 A 17
3h+k+s
, Paritalo
71 m2
Floor 1/1
Timontie 11 B 4
4h+k+s
, Paritalo
87 m2
1/1
Timontie 11 B 4
4h+k+s
, Paritalo
87 m2
Floor 1/1
Keijontie 12 B 10
4h+k+s
, Paritalo
87 m2
1/1
Keijontie 12 B 10
4h+k+s
, Paritalo
87 m2
Floor 1/1
Keijontie 16 B A 1
4h+k+s
, Paritalo
87 m2
1/1
Keijontie 16 B A 1
4h+k+s
, Paritalo
87 m2
Floor 1/1
Timontie 13 B 2
4h+k+s
, Paritalo
87 m2
1/1
Timontie 13 B 2
4h+k+s
, Paritalo
87 m2
Floor 1/1
Timonpolku 2 B 6
4h+k+s
, Paritalo
87 m2
1/1
Timonpolku 2 B 6
4h+k+s
, Paritalo
87 m2
Floor 1/1
Keijontie 13 B 20
4h+k+s
, Paritalo
87 m2
1/1
Keijontie 13 B 20
4h+k+s
, Paritalo
87 m2
Floor 1/1
Keijontie 13 A 19
4h+k+s
, Paritalo
87 m2
1/1
Keijontie 13 A 19
4h+k+s
, Paritalo
87 m2
Floor 1/1
Keijontie 14 B 12
5h+k+s
, Paritalo
100 m2
1/1
Keijontie 14 B 12
5h+k+s
, Paritalo
100 m2
Floor 1/1
Keijontie 12 A 9
5h+k+s
, Paritalo
100 m2
1/1
Keijontie 12 A 9
5h+k+s
, Paritalo
100 m2
Floor 1/1
Keijontie 17 A 15
5h+k+s
, Paritalo
100 m2
1/1
Keijontie 17 A 15
5h+k+s
, Paritalo
100 m2
Floor 1/1
Keijontie 15 B 18
5h+k+s
, Paritalo
100 m2
1/1
Keijontie 15 B 18
5h+k+s
, Paritalo
100 m2
Floor 1/1
Keijontie 10 B 8
6h+k+s
, Paritalo
110 m2
1/1
Keijontie 10 B 8
6h+k+s
, Paritalo
110 m2
Floor 1/1
Keijontie 11 B 22
6h+k+s
, Paritalo
110 m2
1/1
Keijontie 11 B 22
6h+k+s
, Paritalo
110 m2
Floor 1/1
