Skip to content

Tilanhoitajankaari 7 B 39, Helsinki, VIIKKI

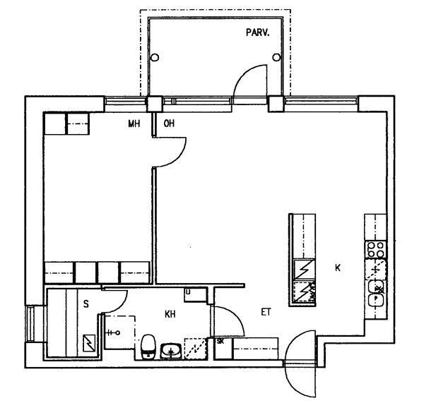
59 m2, 2H+K+S

Sales agent

Saana Hintsanen

Asunto on vaihtoehtoisesti mahdollista vuokrata, mutta asuntoa tarjotaan ensisijaisesti asumisoikeusasiakkaille. Lähetä vuokrahakemus sivuiltamme www.asuntosaatio.fi

If you would like to receive more information about this apartment, please contact our salesperson.

Welcome to your future home!

Asunto on vaihtoehtoisesti mahdollista vuokrata, mutta asuntoa tarjotaan ensisijaisesti asumisoikeusasiakkaille. Lähetä vuokrahakemus sivuiltamme www.asuntosaatio.fi

If you would like to receive more information about this apartment, please contact our salesperson.

Apartment info

Housing costs

  • Rent 1070€
  • Security deposit 1070€
  • Water fee/person/month 25€
  • Parking fees
    • — Autopaikkamaksu 1 27,00€
    • — Autokatos 1 35,00€
    • — Autohallimaksu 1 42,00€

Apartment basic info

  • Housing type Apartment house
  • Energy class E
  • Apartment type 2H+K+S
  • Living area 59.00 m²
  • Floor 3
  • Balcony 1
  • Own sauna Yes
  • Elevator Yes
  • Available Available now
  • Condition Good
  • Pets Allowed
  • Broadband DNA Welho

Extra info

Smoking in our apartments

It has been a long-term policy of ours to make all of our new residential properties completely non-smoking. We are gradually making all of our apartments non-smoking; the agreements of new residents will forbid smoking in the apartments and on the balconies from 1 January 2021 onwards. The property may not be completely non-smoking due to other apartments that may be subject to old agreements with no smoking prohibitions.

Alterations made to this home

2012 Lattiapäällysteen vaihtaminen laminaattilattiaksi Tila: Muut tilat

Property Introduction

Viisikerroksinen kerrostalo Viikin puutarhakaupunginosassa. Kaikissa asunnoissa on oma sauna. Alimmassa kerroksessa pienet omat pihat. Kaukolämpö.

Alueella päiväkoti, koulut peruskoulusta yliopistoon asti ja urheilupuisto, jossa mm. ilmaisia tenniskenttiä. Ulkoilijalle ihanteelliset reitit Viikin pelloista yliopiston upeaan puupuistoon ja lintutorneista Lammassaareen saakka.

Why Asuntosäätiö?

We believe that a happy home and quality living are for everyone. We do not seek immediate profit or financial benefit. We use the assets gained from our operations to develop our real estate. Over 33,000 Finns have already chosen a home offered by Asuntosäätiö. Pets are also welcome in all our homes.

Property Introduction

Viisikerroksinen kerrostalo Viikin puutarhakaupunginosassa. Kaikissa asunnoissa on oma sauna. Alimmassa kerroksessa pienet omat pihat. Kaukolämpö. Alueella päiväkoti, koulut peruskoulusta yliopistoon asti ja urheilupuisto, jossa mm. ilmaisia tenniskenttiä. Ulkoilijalle ihanteelliset reitit Viikin pelloista yliopiston upeaan puupuistoon ja lintutorneista Lammassaareen saakka.

Basic house info

  • Form of housing Rental home
  • Elevators 2
  • House sauna No
  • Laundry room Yes
  • Drying room Yes
  • Apartment count 49

Apartments and floor plans: Tilanhoitajankaari 7, Piharakennus, Kerrostalo

Apply for apartment type

Tilanhoitajankaari 7 B 39

2h+k+s

, Kerrostalo

59 m2

Floor 3/5

Apply for apartment type

Tilanhoitajankaari 7 A 20

3h+k+s

, Kerrostalo

76 m2

Floor 4/5