Property Introduction
Puistojen välissä sijaitseva kerrostalokohde Leppävaarassa. Kaikissa asunnoissa on oma sauna ja osassa myös parveke.
Lähellä on neuvola, useampi päiväkoti, koulu ja kaikki kauppakeskus Sellon palvelut. Ulkoilemaan kutsuu läheiset puistot, Säterinmetsä ja Säterinniityn urheilupaikat. Kesällä uimaan pääsee Leppävaaran maauimalaan. Erinomaiset liikenneyhteydet: Sellon toiselta puolelta olevalta Leppävaaran asemalta kulkee junia lyhyillä vuoroväleillä. Nopeat kulkuyhteydet myös omalla autolla.
Why Asuntosäätiö?
We believe that a happy home and quality living are for everyone. We do not seek immediate profit or financial benefit. We use the assets gained from our operations to develop our real estate. Over 33,000 Finns have already chosen a home offered by Asuntosäätiö. Pets are also welcome in all our homes.
Basic house info
- Form of housing Right-of-occupancy
- Average right-of-occupancy payment / jm² 497,87€
- Elevators 2
- House sauna No
- Apartment count 31
- Building count 1
- Residence charge / month / jm² 16,52€
- Construction year 2002
- Staircases 2
- Energy class F
- Heating Kauko
- Parking spaces 14
- Broadband DNA Welho
- TV-antenna system Kaapeli
- CableTV DNA
- Roof material Tiili
- House frame material Betoni
- Pets Allowed
Apartments and floor plans: Leppäviita 3, Kerrostalo, Piharakennus
Add all the apartment types you want to your application. Your opportunity to get an apartment increases when we are able to offer you all of the apartment types that may be available later on in this property. You are automatically in queue for these apartment types.
Leppäviita 3 B 20
2h+k+s
, Kerrostalo
51 m2
2/4
Leppäviita 3 B 20
2h+k+s
, Kerrostalo
51 m2
Floor 2/4
Leppäviita 3 B 17
2h+k+s
, Kerrostalo
51 m2
1/4
Leppäviita 3 B 17
2h+k+s
, Kerrostalo
51 m2
Floor 1/4
Leppäviita 3 B 28
2h+k+s
, Kerrostalo
51 m2
4/4
Leppäviita 3 B 28
2h+k+s
, Kerrostalo
51 m2
Floor 4/4
Leppäviita 3 B 24
2h+k+s
, Kerrostalo
51 m2
3/4
Leppäviita 3 B 24
2h+k+s
, Kerrostalo
51 m2
Floor 3/4
Leppäviita 3 B 25
2h+k+s
, Kerrostalo
57 m2
3/4
Leppäviita 3 B 25
2h+k+s
, Kerrostalo
57 m2
Floor 3/4
Leppäviita 3 A 10
2h+k+s
, Kerrostalo
57 m2
3/4
Leppäviita 3 A 10
2h+k+s
, Kerrostalo
57 m2
Floor 3/4
Leppäviita 3 B 21
2h+k+s
, Kerrostalo
57 m2
2/4
Leppäviita 3 B 21
2h+k+s
, Kerrostalo
57 m2
Floor 2/4
Leppäviita 3 A 6
2h+k+s
, Kerrostalo
57 m2
2/4
Leppäviita 3 A 6
2h+k+s
, Kerrostalo
57 m2
Floor 2/4
Leppäviita 3 B 18
2h+k+s
, Kerrostalo
57 m2
1/4
Leppäviita 3 B 18
2h+k+s
, Kerrostalo
57 m2
Floor 1/4
Leppäviita 3 A 14
2h+k+s
, Kerrostalo
57 m2
4/4
Leppäviita 3 A 14
2h+k+s
, Kerrostalo
57 m2
Floor 4/4
Leppäviita 3 B 29
2h+k+s
, Kerrostalo
57 m2
4/4
Leppäviita 3 B 29
2h+k+s
, Kerrostalo
57 m2
Floor 4/4
Leppäviita 3 A 2
2h+k+s
, Kerrostalo
57 m2
1/4
Leppäviita 3 A 2
2h+k+s
, Kerrostalo
57 m2
Floor 1/4
Leppäviita 3 A 4
2h+kk+s
, Kerrostalo
42.5 m2
1/4
Leppäviita 3 A 4
2h+kk+s
, Kerrostalo
42.5 m2
Floor 1/4
Leppäviita 3 B 30
2h+kk+s
, Kerrostalo
46.5 m2
4/4
Leppäviita 3 B 30
2h+kk+s
, Kerrostalo
46.5 m2
Floor 4/4
Leppäviita 3 B 22
2h+kk+s
, Kerrostalo
46.5 m2
2/4
Leppäviita 3 B 22
2h+kk+s
, Kerrostalo
46.5 m2
Floor 2/4
Leppäviita 3 A 7
2h+kk+s
, Kerrostalo
46.5 m2
2/4
Leppäviita 3 A 7
2h+kk+s
, Kerrostalo
46.5 m2
Floor 2/4
Leppäviita 3 A 15
2h+kk+s
, Kerrostalo
46.5 m2
4/4
Leppäviita 3 A 15
2h+kk+s
, Kerrostalo
46.5 m2
Floor 4/4
Leppäviita 3 A 11
2h+kk+s
, Kerrostalo
46.5 m2
3/4
Leppäviita 3 A 11
2h+kk+s
, Kerrostalo
46.5 m2
Floor 3/4
Leppäviita 3 A 3
2h+kk+s
, Kerrostalo
46.5 m2
1/4
Leppäviita 3 A 3
2h+kk+s
, Kerrostalo
46.5 m2
Floor 1/4
Leppäviita 3 B 19
2h+kk+s
, Kerrostalo
46.5 m2
1/4
Leppäviita 3 B 19
2h+kk+s
, Kerrostalo
46.5 m2
Floor 1/4
Leppäviita 3 B 26
2h+kk+s
, Kerrostalo
46.5 m2
3/4
Leppäviita 3 B 26
2h+kk+s
, Kerrostalo
46.5 m2
Floor 3/4
Leppäviita 3 A 1
2h+kk+s
, Kerrostalo
51 m2
1/4
Leppäviita 3 A 1
2h+kk+s
, Kerrostalo
51 m2
Floor 1/4
Leppäviita 3 A 5
2h+kk+s
, Kerrostalo
51 m2
2/4
Leppäviita 3 A 5
2h+kk+s
, Kerrostalo
51 m2
Floor 2/4
Leppäviita 3 A 13
2h+kk+s
, Kerrostalo
51 m2
4/4
Leppäviita 3 A 13
2h+kk+s
, Kerrostalo
51 m2
Floor 4/4
Leppäviita 3 A 9
2h+kk+s
, Kerrostalo
51 m2
3/4
Leppäviita 3 A 9
2h+kk+s
, Kerrostalo
51 m2
Floor 3/4
Leppäviita 3 B 31
3h+k+s
, Kerrostalo
75 m2
4/4
Leppäviita 3 B 31
3h+k+s
, Kerrostalo
75 m2
Floor 4/4
Leppäviita 3 B 23
3h+k+s
, Kerrostalo
75 m2
2/4
Leppäviita 3 B 23
3h+k+s
, Kerrostalo
75 m2
Floor 2/4
Leppäviita 3 B 27
3h+k+s
, Kerrostalo
75 m2
3/4
Leppäviita 3 B 27
3h+k+s
, Kerrostalo
75 m2
Floor 3/4
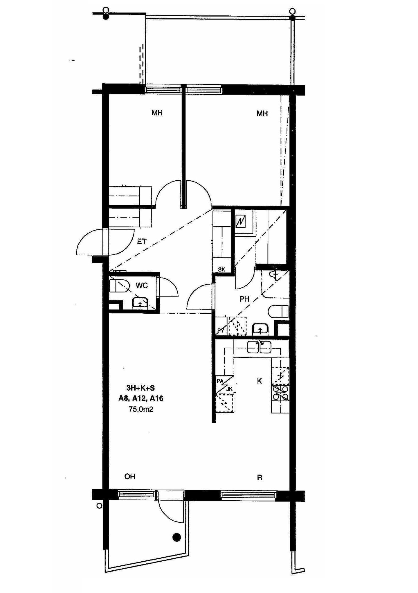
Leppäviita 3 A 16
3h+k+s
, Kerrostalo
75 m2
4/4
Leppäviita 3 A 16
3h+k+s
, Kerrostalo
75 m2
Floor 4/4
Leppäviita 3 A 12
3h+k+s
, Kerrostalo
75 m2
3/4
Leppäviita 3 A 12
3h+k+s
, Kerrostalo
75 m2
Floor 3/4
