Kohteen esittely
Puistojen välissä sijaitseva kerrostalokohde Leppävaarassa. Kaikissa asunnoissa on oma sauna ja osassa myös parveke.
Lähellä on neuvola, useampi päiväkoti, koulu ja kaikki kauppakeskus Sellon palvelut. Ulkoilemaan kutsuu läheiset puistot, Säterinmetsä ja Säterinniityn urheilupaikat. Kesällä uimaan pääsee Leppävaaran maauimalaan. Erinomaiset liikenneyhteydet: Sellon toiselta puolelta olevalta Leppävaaran asemalta kulkee junia lyhyillä vuoroväleillä. Nopeat kulkuyhteydet myös omalla autolla.
Miksi Asuntosäätiö?
Me uskomme, että onnellinen koti ja laadukas asuminen kuuluvat kaikille. Emme tavoittele voittoa, vaan käytämme kaikki vastikkeista ja vuokrista saadut tulot toimintamme kehittämiseen. Jo yli 33 000 suomalaista on valinnut Asuntosäätiön tarjoaman kodin. Tiesithän, että myös lemmikit ovat tervetulleita kaikkiin koteihimme!
Rakennuksen tiedot
- Asumismuoto Asokoti
- Keskimääräinen asumisoikeusmaksu / jm² 497,87€
- Hissit 2
- Talosauna Ei
- Asuntoja 31
- Asuinrakennuksia 1
- Käyttövastike / kk / jm² 16,52€
- Valmistumisvuosi 2002
- Porrashuoneet 2
- Energialuokka F
- Lämmitysmuoto Kauko
- Autopaikat 14
- Laajakaista DNA Welho
- Antennijärjestelmä Kaapeli
- KaapeliTV DNA
- Kattomateriaali Tiili
- Runkomateriaali Betoni
- Lemmikit Sallittu
Huoneistot ja pohjakuvat: Leppäviita 3, Kerrostalo, Piharakennus
Lisää hakemukselle kaikki haluamasi asuntotyypit. Mahdollisuutesi asunnon saamiseksi paranevat, kun voimme tarjota sinulle kaikkia valitsemasi asuntotyypin asuntoja, jotka mahdollisesti vapautuvat myöhemmin tästä kohteesta. Olet automaattisesti näiden asuntotyyppien hakuprosessissa.
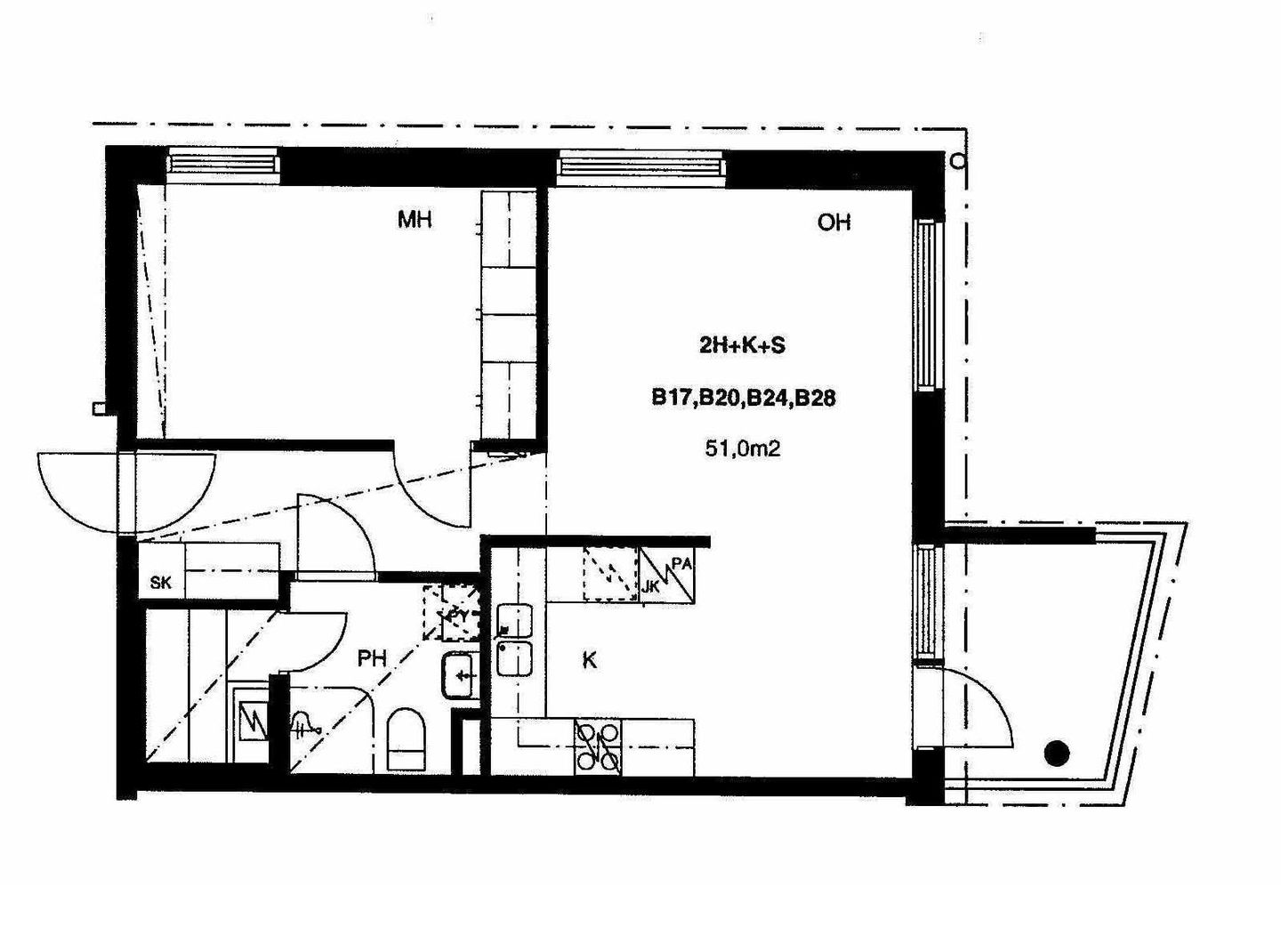
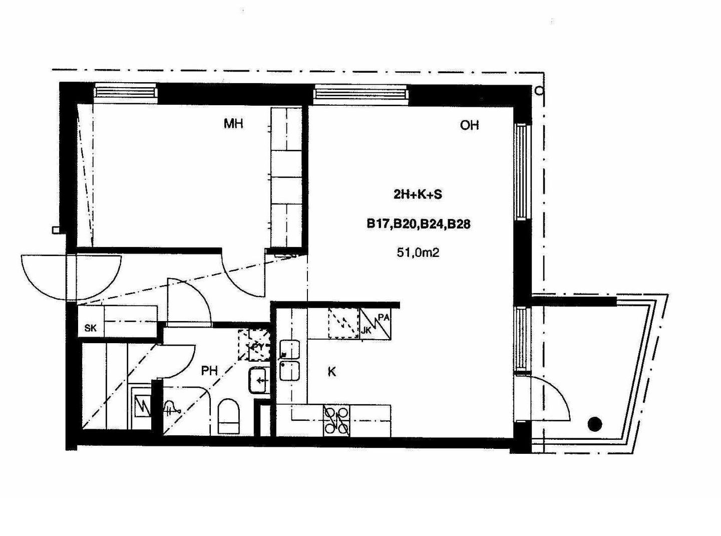
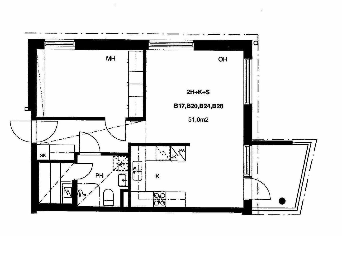
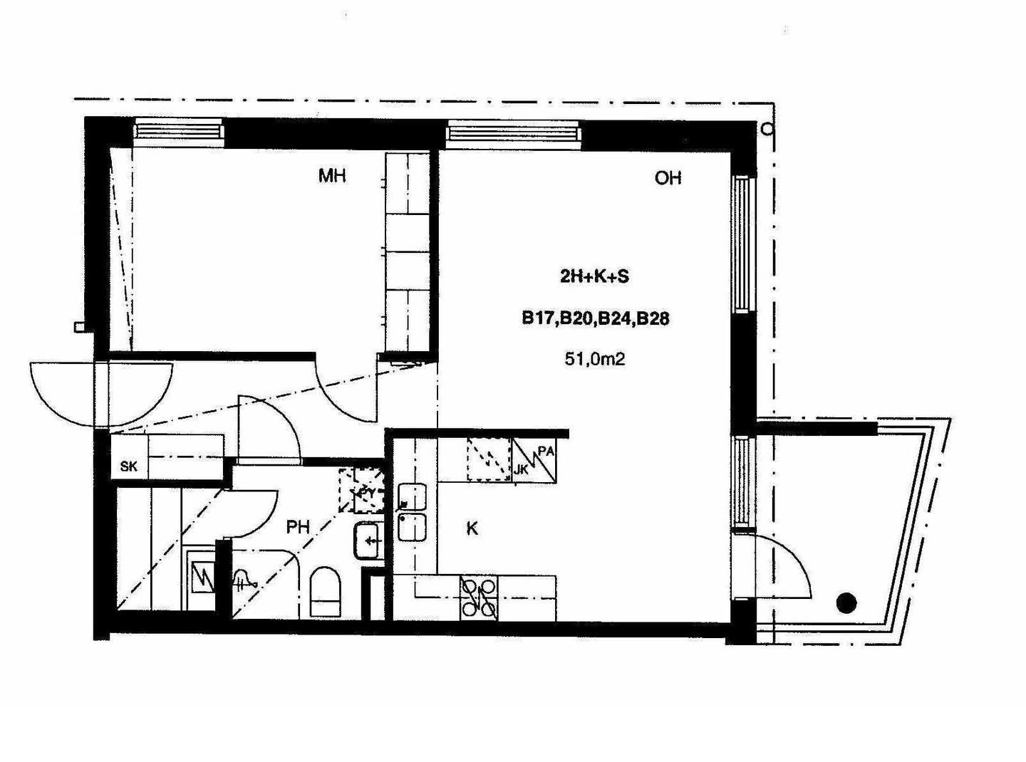
Leppäviita 3 B 20
2h+k+s
, Kerrostalo
51 m2
2/4
Leppäviita 3 B 20
2h+k+s
, Kerrostalo
51 m2
Kerros 2/4
Leppäviita 3 B 17
2h+k+s
, Kerrostalo
51 m2
1/4
Leppäviita 3 B 17
2h+k+s
, Kerrostalo
51 m2
Kerros 1/4
Leppäviita 3 B 28
2h+k+s
, Kerrostalo
51 m2
4/4
Leppäviita 3 B 28
2h+k+s
, Kerrostalo
51 m2
Kerros 4/4
Leppäviita 3 B 24
2h+k+s
, Kerrostalo
51 m2
3/4
Leppäviita 3 B 24
2h+k+s
, Kerrostalo
51 m2
Kerros 3/4
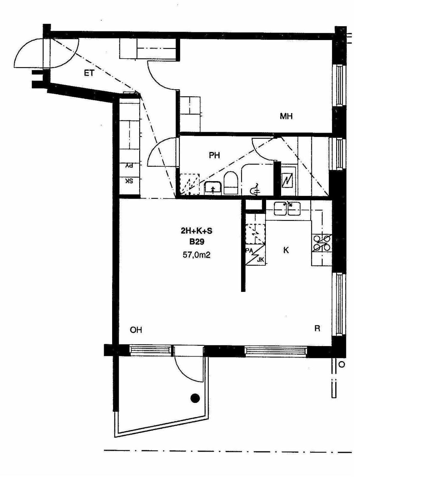
Leppäviita 3 B 25
2h+k+s
, Kerrostalo
57 m2
3/4
Leppäviita 3 B 25
2h+k+s
, Kerrostalo
57 m2
Kerros 3/4
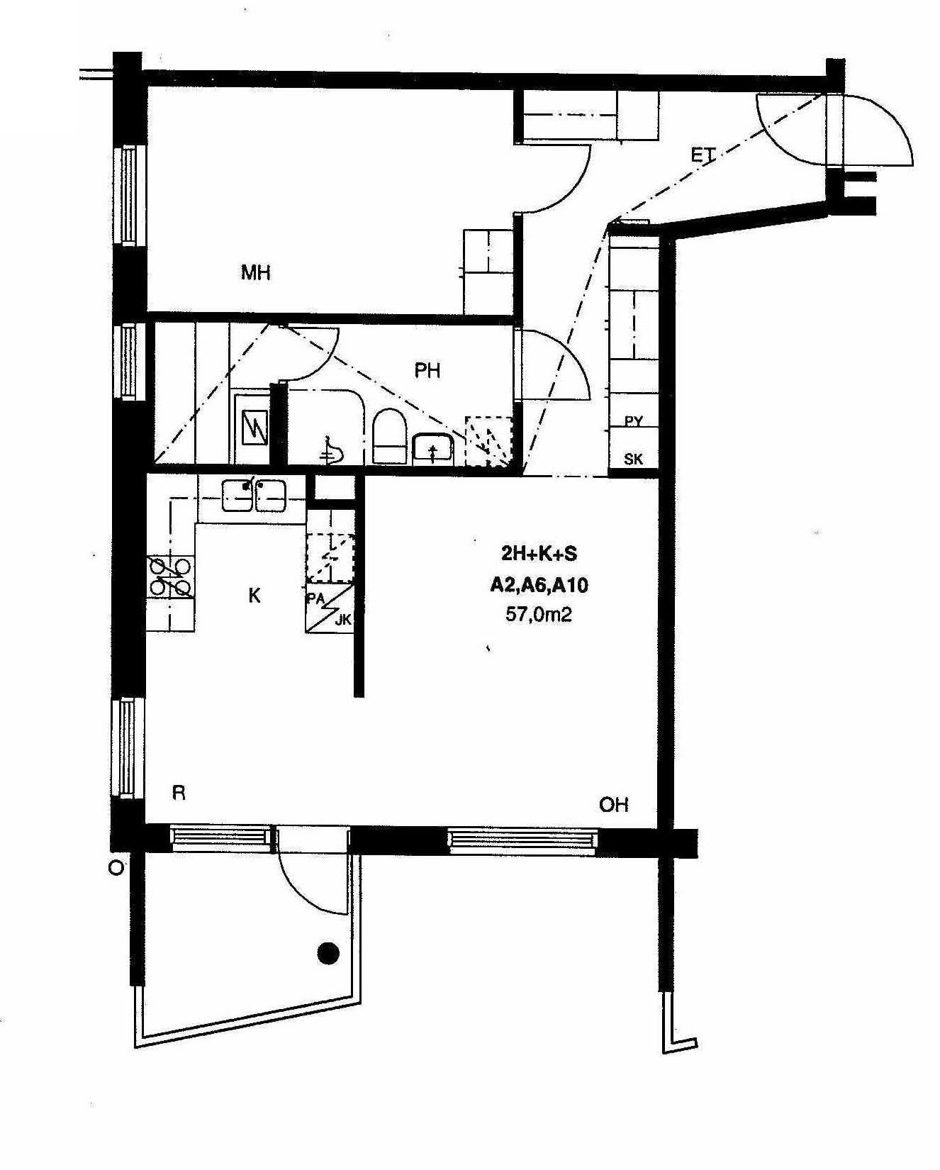
Leppäviita 3 A 10
2h+k+s
, Kerrostalo
57 m2
3/4
Leppäviita 3 A 10
2h+k+s
, Kerrostalo
57 m2
Kerros 3/4
Leppäviita 3 B 21
2h+k+s
, Kerrostalo
57 m2
2/4
Leppäviita 3 B 21
2h+k+s
, Kerrostalo
57 m2
Kerros 2/4
Leppäviita 3 A 6
2h+k+s
, Kerrostalo
57 m2
2/4
Leppäviita 3 A 6
2h+k+s
, Kerrostalo
57 m2
Kerros 2/4
Leppäviita 3 B 18
2h+k+s
, Kerrostalo
57 m2
1/4
Leppäviita 3 B 18
2h+k+s
, Kerrostalo
57 m2
Kerros 1/4
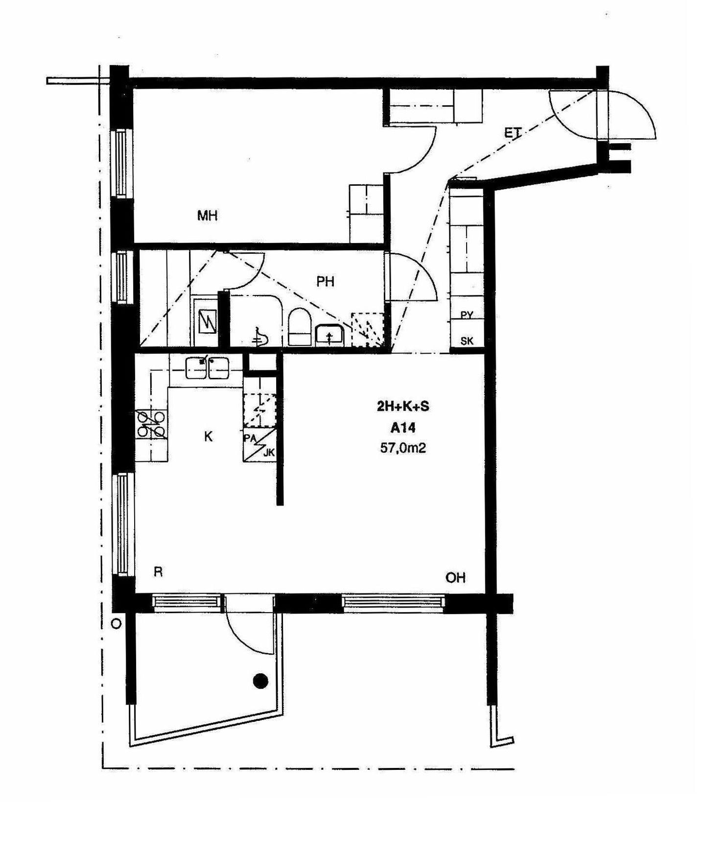
Leppäviita 3 A 14
2h+k+s
, Kerrostalo
57 m2
4/4
Leppäviita 3 A 14
2h+k+s
, Kerrostalo
57 m2
Kerros 4/4
Leppäviita 3 B 29
2h+k+s
, Kerrostalo
57 m2
4/4
Leppäviita 3 B 29
2h+k+s
, Kerrostalo
57 m2
Kerros 4/4
Leppäviita 3 A 2
2h+k+s
, Kerrostalo
57 m2
1/4
Leppäviita 3 A 2
2h+k+s
, Kerrostalo
57 m2
Kerros 1/4
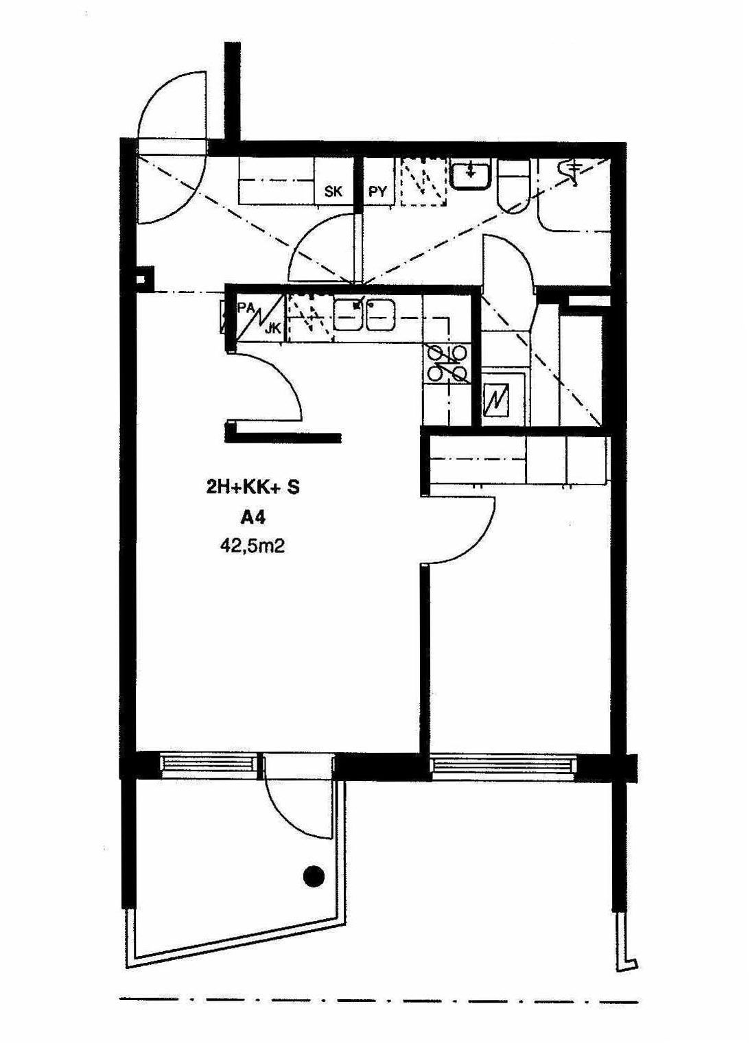
Leppäviita 3 A 4
2h+kk+s
, Kerrostalo
42.5 m2
1/4
Leppäviita 3 A 4
2h+kk+s
, Kerrostalo
42.5 m2
Kerros 1/4
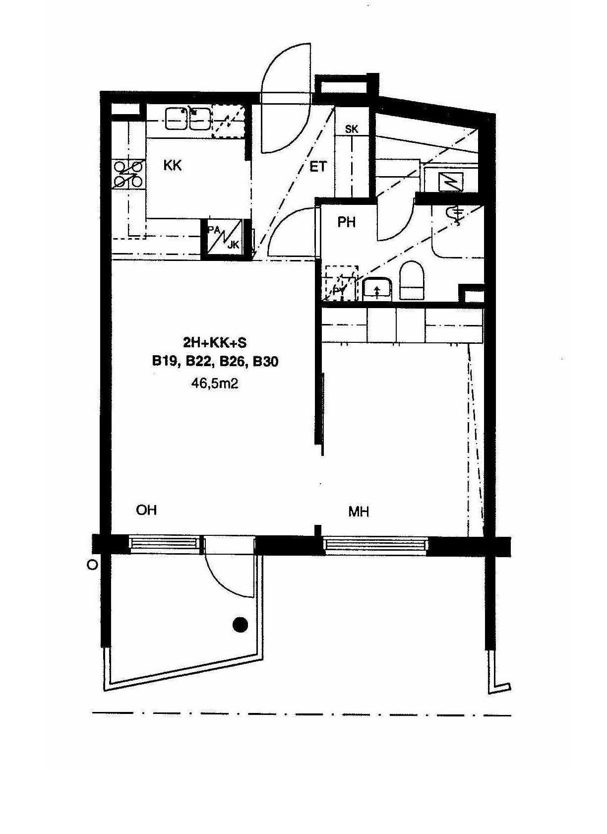
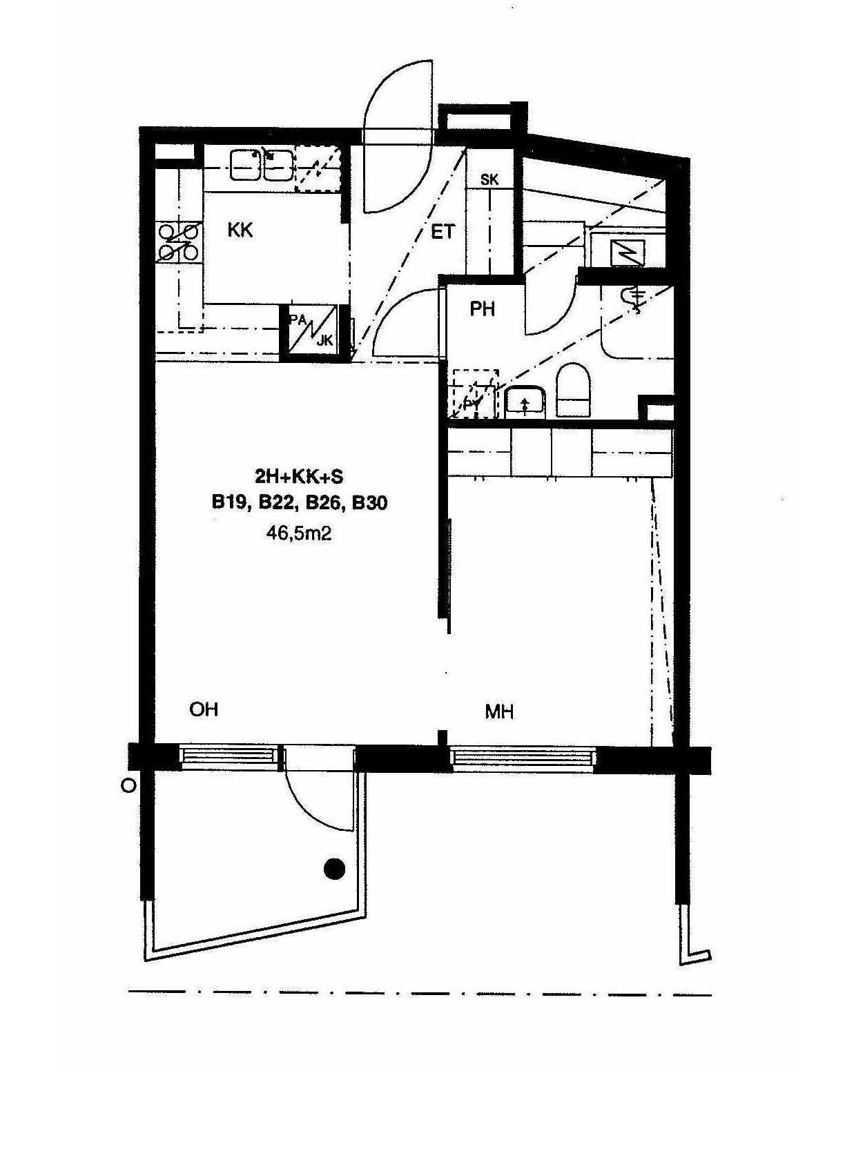
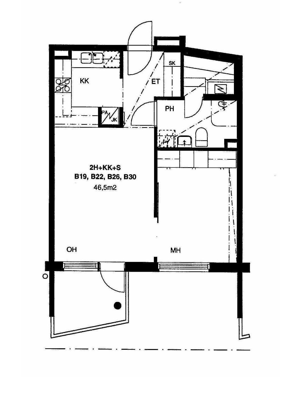
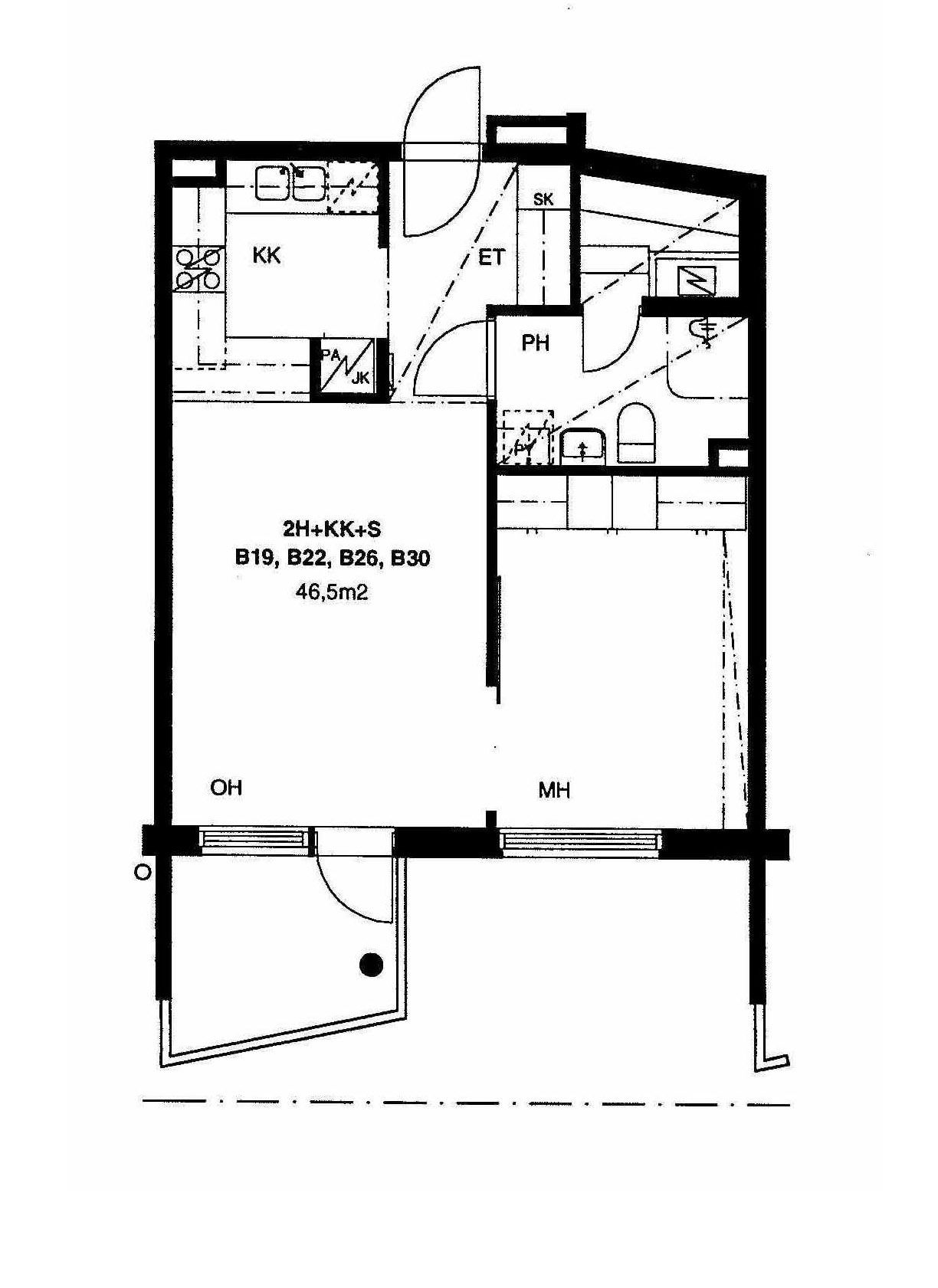
Leppäviita 3 B 30
2h+kk+s
, Kerrostalo
46.5 m2
4/4
Leppäviita 3 B 30
2h+kk+s
, Kerrostalo
46.5 m2
Kerros 4/4
Leppäviita 3 B 22
2h+kk+s
, Kerrostalo
46.5 m2
2/4
Leppäviita 3 B 22
2h+kk+s
, Kerrostalo
46.5 m2
Kerros 2/4
Leppäviita 3 A 7
2h+kk+s
, Kerrostalo
46.5 m2
2/4
Leppäviita 3 A 7
2h+kk+s
, Kerrostalo
46.5 m2
Kerros 2/4
Leppäviita 3 A 15
2h+kk+s
, Kerrostalo
46.5 m2
4/4
Leppäviita 3 A 15
2h+kk+s
, Kerrostalo
46.5 m2
Kerros 4/4
Leppäviita 3 A 11
2h+kk+s
, Kerrostalo
46.5 m2
3/4
Leppäviita 3 A 11
2h+kk+s
, Kerrostalo
46.5 m2
Kerros 3/4
Leppäviita 3 A 3
2h+kk+s
, Kerrostalo
46.5 m2
1/4
Leppäviita 3 A 3
2h+kk+s
, Kerrostalo
46.5 m2
Kerros 1/4
Leppäviita 3 B 19
2h+kk+s
, Kerrostalo
46.5 m2
1/4
Leppäviita 3 B 19
2h+kk+s
, Kerrostalo
46.5 m2
Kerros 1/4
Leppäviita 3 B 26
2h+kk+s
, Kerrostalo
46.5 m2
3/4
Leppäviita 3 B 26
2h+kk+s
, Kerrostalo
46.5 m2
Kerros 3/4
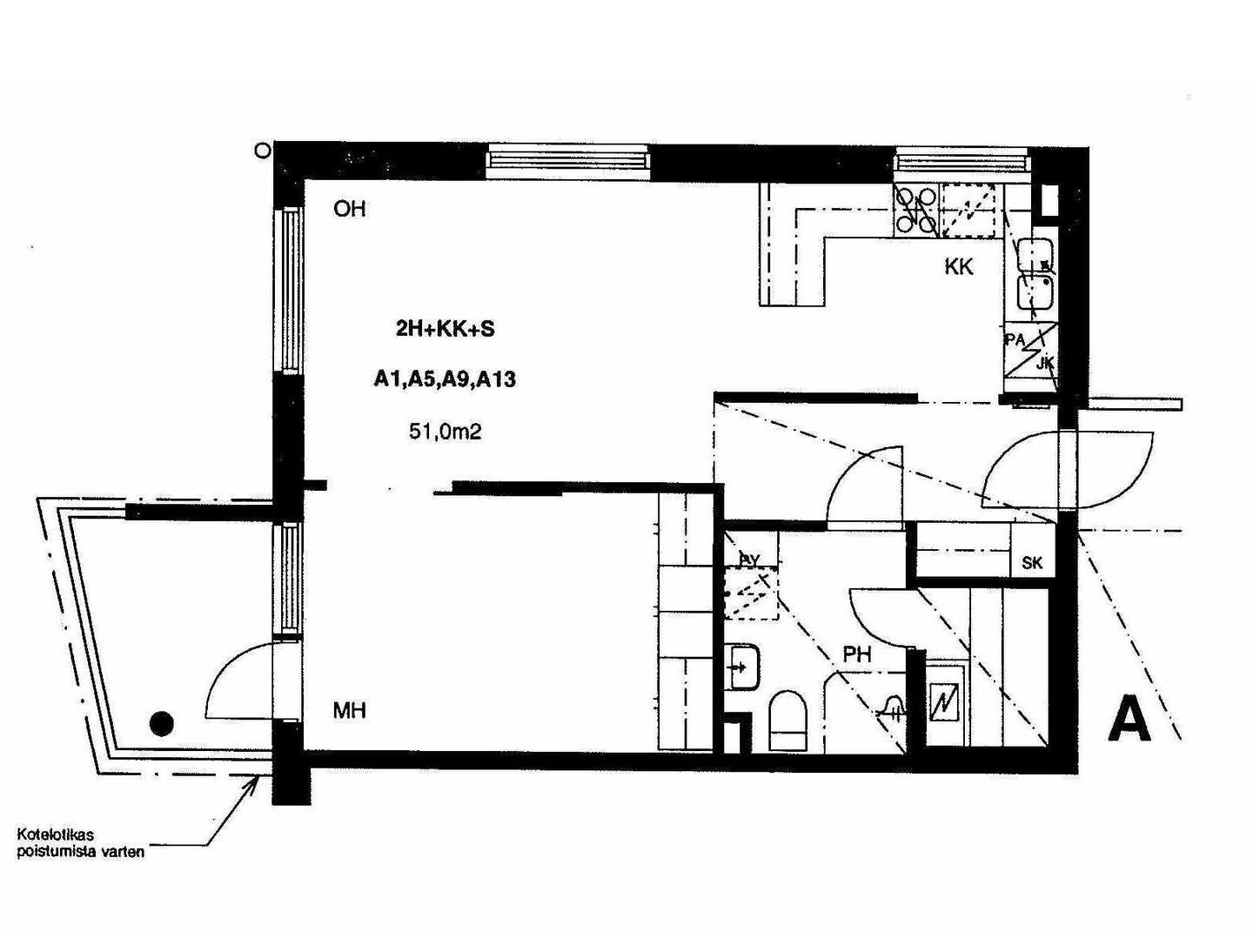
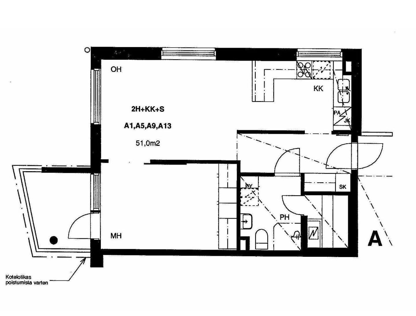
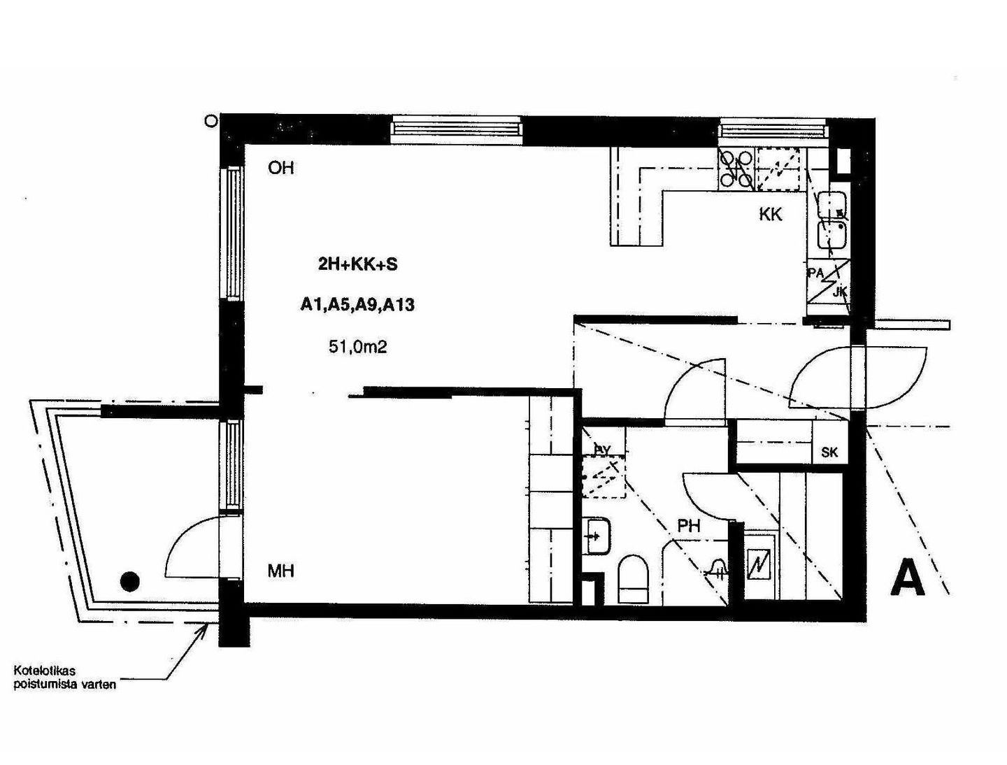
Leppäviita 3 A 1
2h+kk+s
, Kerrostalo
51 m2
1/4
Leppäviita 3 A 1
2h+kk+s
, Kerrostalo
51 m2
Kerros 1/4
Leppäviita 3 A 5
2h+kk+s
, Kerrostalo
51 m2
2/4
Leppäviita 3 A 5
2h+kk+s
, Kerrostalo
51 m2
Kerros 2/4
Leppäviita 3 A 13
2h+kk+s
, Kerrostalo
51 m2
4/4
Leppäviita 3 A 13
2h+kk+s
, Kerrostalo
51 m2
Kerros 4/4
Leppäviita 3 A 9
2h+kk+s
, Kerrostalo
51 m2
3/4
Leppäviita 3 A 9
2h+kk+s
, Kerrostalo
51 m2
Kerros 3/4
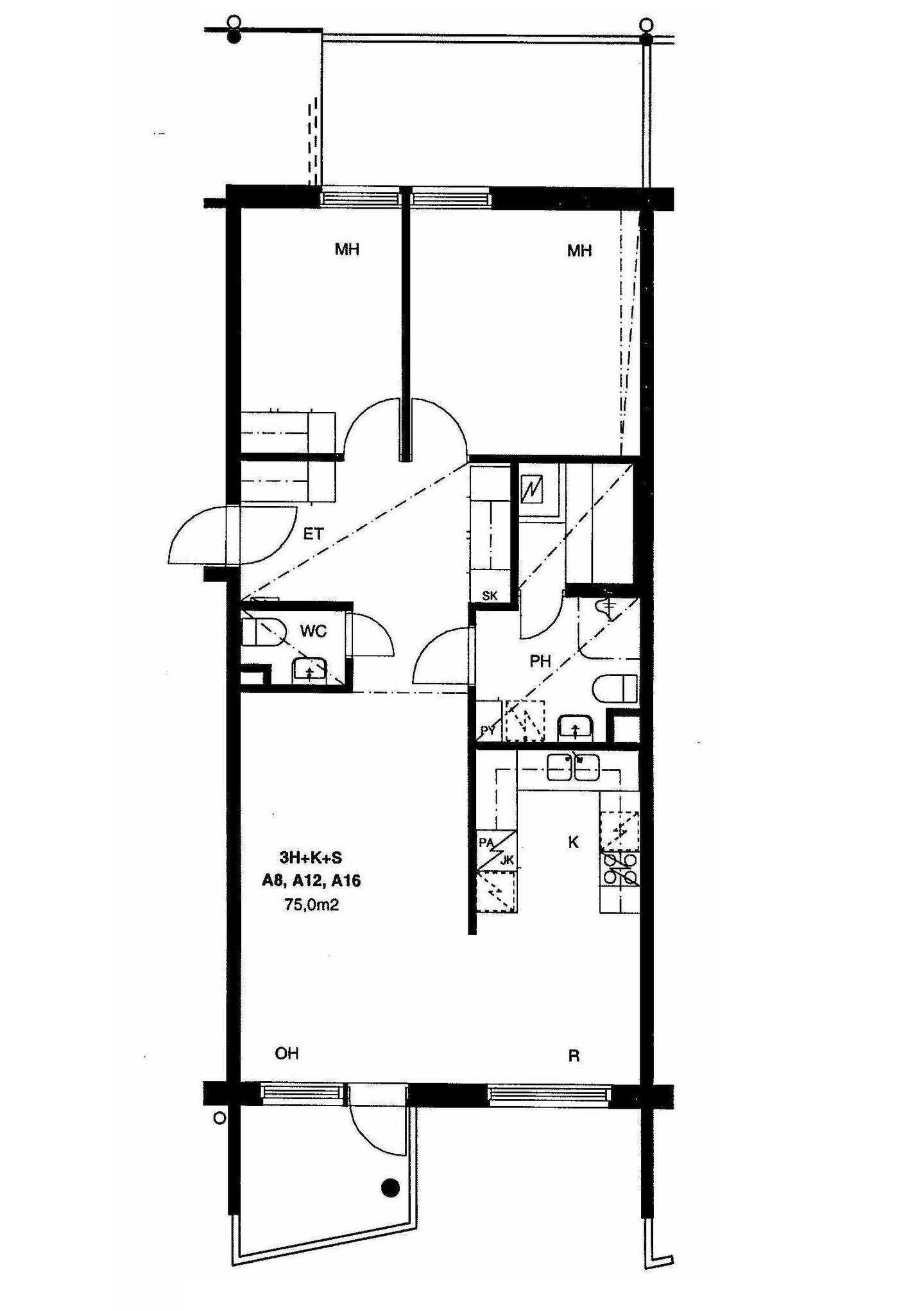
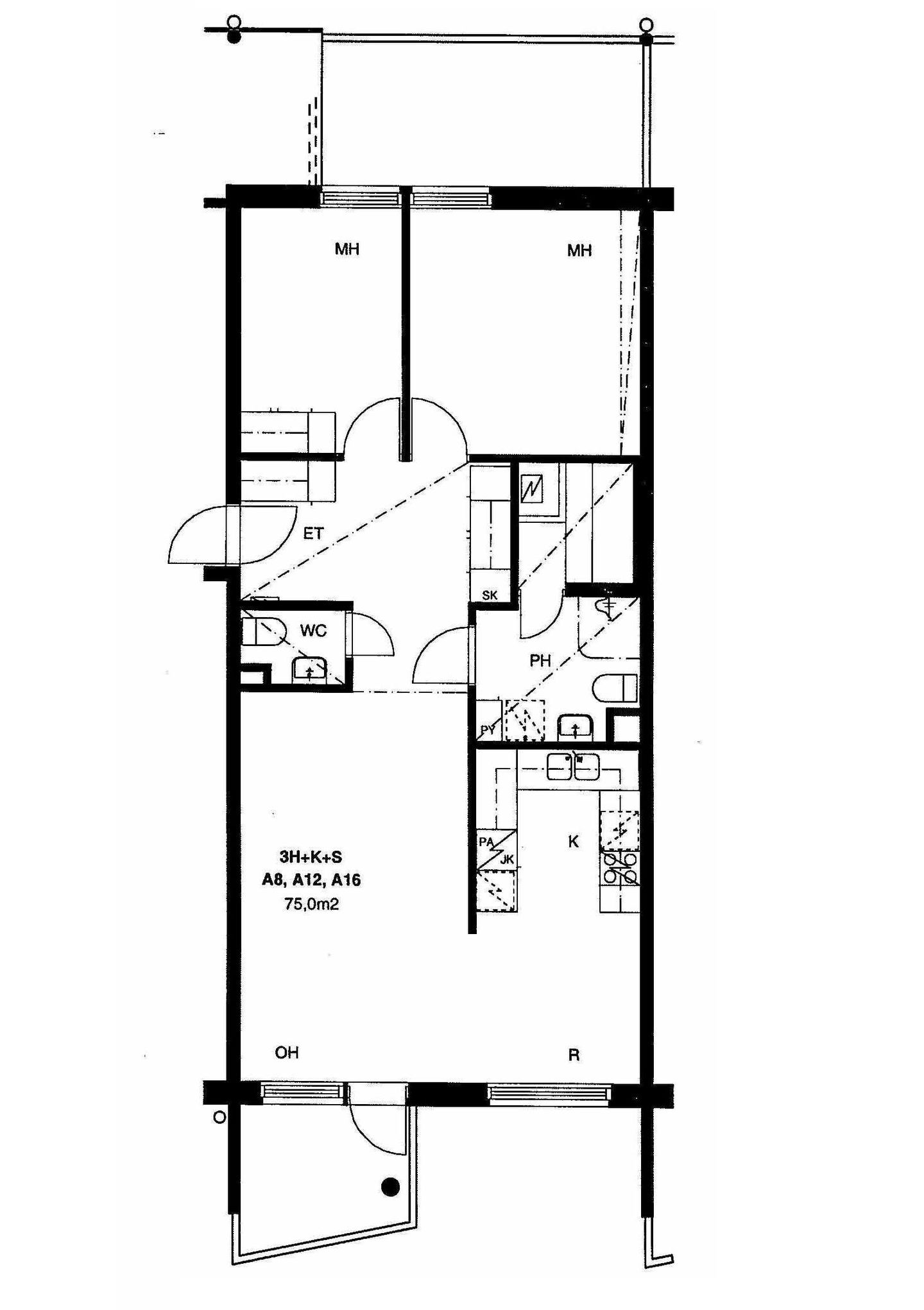
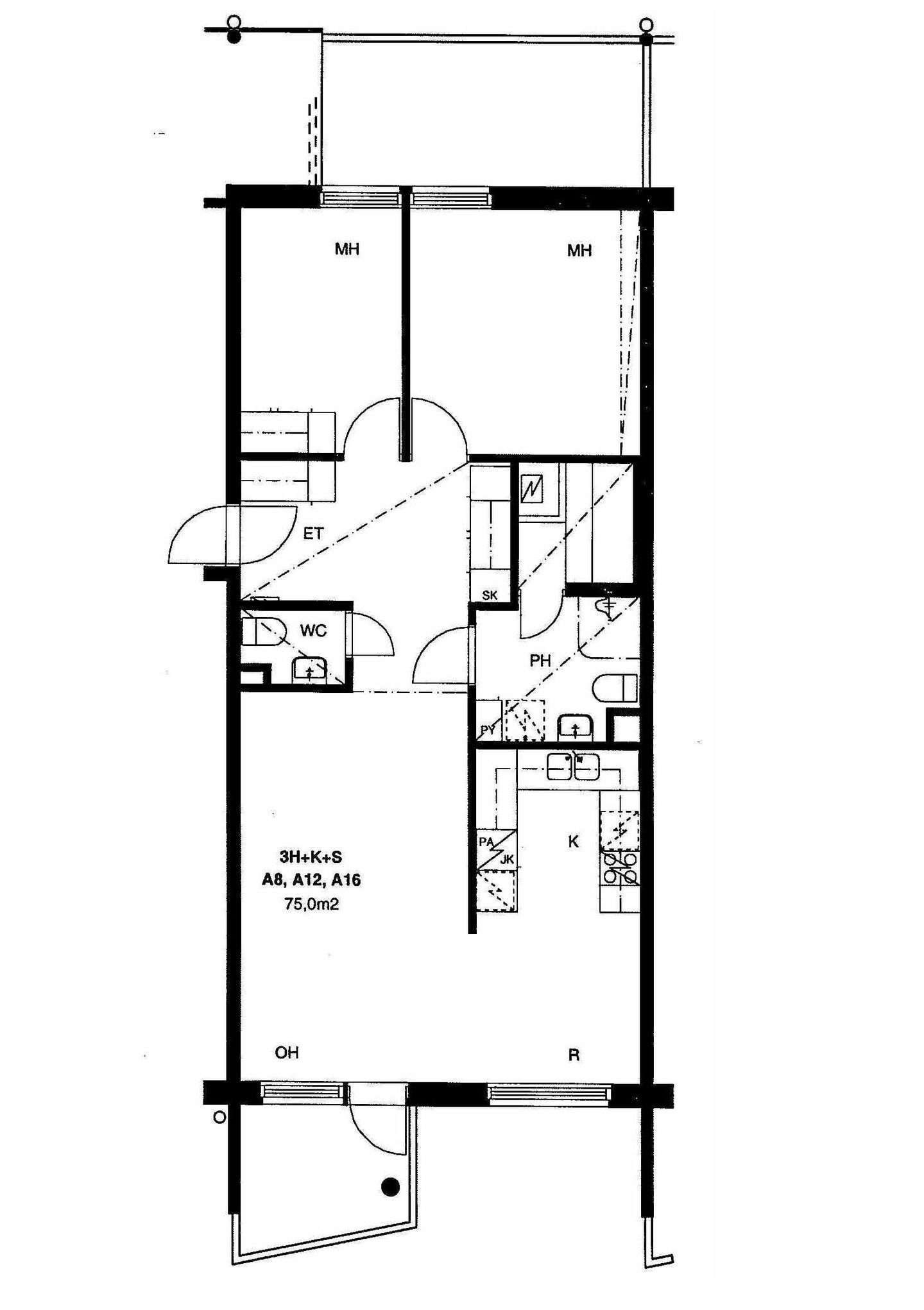
Leppäviita 3 B 31
3h+k+s
, Kerrostalo
75 m2
4/4
Leppäviita 3 B 31
3h+k+s
, Kerrostalo
75 m2
Kerros 4/4
Leppäviita 3 B 23
3h+k+s
, Kerrostalo
75 m2
2/4
Leppäviita 3 B 23
3h+k+s
, Kerrostalo
75 m2
Kerros 2/4
Leppäviita 3 B 27
3h+k+s
, Kerrostalo
75 m2
3/4
Leppäviita 3 B 27
3h+k+s
, Kerrostalo
75 m2
Kerros 3/4
Leppäviita 3 A 16
3h+k+s
, Kerrostalo
75 m2
4/4
Leppäviita 3 A 16
3h+k+s
, Kerrostalo
75 m2
Kerros 4/4
Leppäviita 3 A 12
3h+k+s
, Kerrostalo
75 m2
3/4
Leppäviita 3 A 12
3h+k+s
, Kerrostalo
75 m2
Kerros 3/4
