Property Introduction
Espoon Matinkylässä sijaitseva Nelikkotie 14 on 48 huoneiston talo, josta löytyy huoneistoja kaksioista viisiöihin, 45,5 – 99 m2. Talossa on kaksi hissiä sekä pesula ja kaksi kuivaushuonetta. Osassa huoneistoista on lasitetut parvekkeet.
Kohde sijaitsee Ison Omenan ja Matinkylän metroaseman naapurissa. Alueen muihin palveluihin lukeutuvat lisäksi useampi päiväkoti ja terveysasema. Useat lähellä olevat puistot sekä kävelymatkan päässä sijaitseva merenranta takaavat myös monipuoliset mahdollisuudet ulkoiluun.
Why Asuntosäätiö?
We believe that a happy home and quality living are for everyone. We do not seek immediate profit or financial benefit. We use the assets gained from our operations to develop our real estate. Over 33,000 Finns have already chosen a home offered by Asuntosäätiö. Pets are also welcome in all our homes.
Basic house info
- Form of housing Right-of-occupancy
- Average right-of-occupancy payment / jm² 478,06€
- Elevators 2
- House sauna No
- Laundry room Yes
- Drying room Yes
- Apartment count 48
- Building count 1
- Residence charge / month / jm² 16,57€
- Construction year 2002
- Staircases 2
- Energy class E
- Heating Kauko
- Parking spaces 36
- Broadband DNA Welho
- TV-antenna system Kaapeli
- CableTV DNA
- Roof material Huopa
- House frame material Betoni
- Pets Allowed
Apartments and floor plans: Nelikkotie 14, Kerrostalo
Add all the apartment types you want to your application. Your opportunity to get an apartment increases when we are able to offer you all of the apartment types that may be available later on in this property. You are automatically in queue for these apartment types.
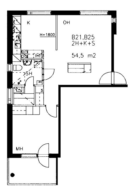
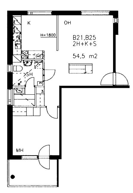
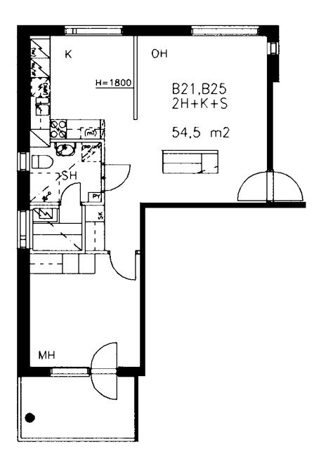
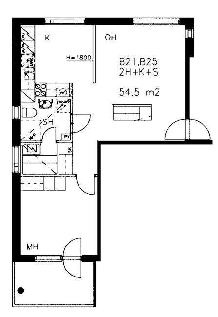
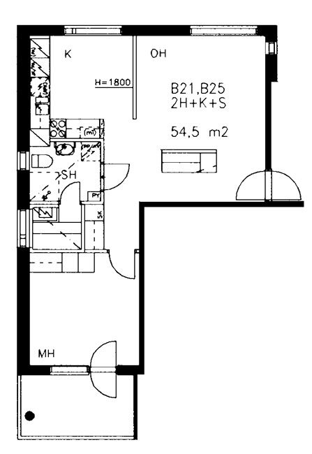
Nelikkotie 14 B 21
2h+k+s
, Kerrostalo
54.5 m2
1/9
Nelikkotie 14 B 21
2h+k+s
, Kerrostalo
54.5 m2
Floor 1/9
Nelikkotie 14 B 29
2h+k+s
, Kerrostalo
54.5 m2
3/9
Nelikkotie 14 B 29
2h+k+s
, Kerrostalo
54.5 m2
Floor 3/9
Nelikkotie 14 B 37
2h+k+s
, Kerrostalo
54.5 m2
5/9
Nelikkotie 14 B 37
2h+k+s
, Kerrostalo
54.5 m2
Floor 5/9
Nelikkotie 14 B 33
2h+k+s
, Kerrostalo
54.5 m2
4/9
Nelikkotie 14 B 33
2h+k+s
, Kerrostalo
54.5 m2
Floor 4/9
Nelikkotie 14 B 25
2h+k+s
, Kerrostalo
54.5 m2
2/9
Nelikkotie 14 B 25
2h+k+s
, Kerrostalo
54.5 m2
Floor 2/9
Nelikkotie 14 B 41
2h+k+s
, Kerrostalo
54.5 m2
6/9
Nelikkotie 14 B 41
2h+k+s
, Kerrostalo
54.5 m2
Floor 6/9
Nelikkotie 14 B 31
2h+kk+s
, Kerrostalo
45.5 m2
3/9
Nelikkotie 14 B 31
2h+kk+s
, Kerrostalo
45.5 m2
Floor 3/9
Nelikkotie 14 B 43
2h+kk+s
, Kerrostalo
45.5 m2
6/9
Nelikkotie 14 B 43
2h+kk+s
, Kerrostalo
45.5 m2
Floor 6/9
Nelikkotie 14 B 39
2h+kk+s
, Kerrostalo
45.5 m2
5/9
Nelikkotie 14 B 39
2h+kk+s
, Kerrostalo
45.5 m2
Floor 5/9
Nelikkotie 14 A 14
2h+kk+s
, Kerrostalo
45.5 m2
4/9
Nelikkotie 14 A 14
2h+kk+s
, Kerrostalo
45.5 m2
Floor 4/9
Nelikkotie 14 B 47
2h+kk+s
, Kerrostalo
45.5 m2
7/9
Nelikkotie 14 B 47
2h+kk+s
, Kerrostalo
45.5 m2
Floor 7/9
Nelikkotie 14 B 22
2h+kk+s
, Kerrostalo
45.5 m2
1/9
Nelikkotie 14 B 22
2h+kk+s
, Kerrostalo
45.5 m2
Floor 1/9
Nelikkotie 14 B 34
2h+kk+s
, Kerrostalo
45.5 m2
4/9
Nelikkotie 14 B 34
2h+kk+s
, Kerrostalo
45.5 m2
Floor 4/9
Nelikkotie 14 B 38
2h+kk+s
, Kerrostalo
45.5 m2
5/9
Nelikkotie 14 B 38
2h+kk+s
, Kerrostalo
45.5 m2
Floor 5/9
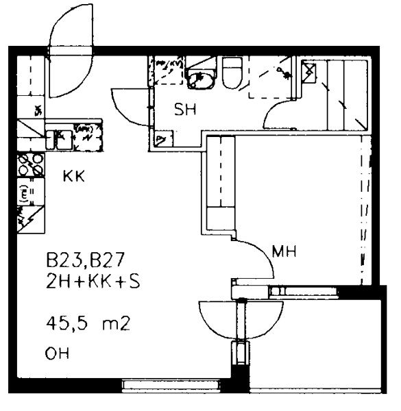
Nelikkotie 14 B 23
2h+kk+s
, Kerrostalo
45.5 m2
1/9
Nelikkotie 14 B 23
2h+kk+s
, Kerrostalo
45.5 m2
Floor 1/9
Nelikkotie 14 B 26
2h+kk+s
, Kerrostalo
45.5 m2
2/9
Nelikkotie 14 B 26
2h+kk+s
, Kerrostalo
45.5 m2
Floor 2/9
Nelikkotie 14 B 35
2h+kk+s
, Kerrostalo
45.5 m2
4/9
Nelikkotie 14 B 35
2h+kk+s
, Kerrostalo
45.5 m2
Floor 4/9
Nelikkotie 14 A 15
2h+kk+s
, Kerrostalo
45.5 m2
4/9
Nelikkotie 14 A 15
2h+kk+s
, Kerrostalo
45.5 m2
Floor 4/9
Nelikkotie 14 A 11
2h+kk+s
, Kerrostalo
45.5 m2
3/9
Nelikkotie 14 A 11
2h+kk+s
, Kerrostalo
45.5 m2
Floor 3/9
Nelikkotie 14 A 3
2h+kk+s
, Kerrostalo
45.5 m2
1/9
Nelikkotie 14 A 3
2h+kk+s
, Kerrostalo
45.5 m2
Floor 1/9
Nelikkotie 14 A 10
2h+kk+s
, Kerrostalo
45.5 m2
3/9
Nelikkotie 14 A 10
2h+kk+s
, Kerrostalo
45.5 m2
Floor 3/9
Nelikkotie 14 A 2
2h+kk+s
, Kerrostalo
45.5 m2
1/9
Nelikkotie 14 A 2
2h+kk+s
, Kerrostalo
45.5 m2
Floor 1/9
Nelikkotie 14 A 7
2h+kk+s
, Kerrostalo
45.5 m2
2/9
Nelikkotie 14 A 7
2h+kk+s
, Kerrostalo
45.5 m2
Floor 2/9
Nelikkotie 14 B 30
2h+kk+s
, Kerrostalo
45.5 m2
3/9
Nelikkotie 14 B 30
2h+kk+s
, Kerrostalo
45.5 m2
Floor 3/9
Nelikkotie 14 B 48
3h+k+s
, Kerrostalo
72.5 m2
7/9
Nelikkotie 14 B 48
3h+k+s
, Kerrostalo
72.5 m2
Floor 7/9
Nelikkotie 14 B 44
3h+k+s
, Kerrostalo
72.5 m2
6/9
Nelikkotie 14 B 44
3h+k+s
, Kerrostalo
72.5 m2
Floor 6/9
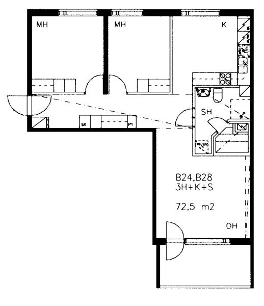
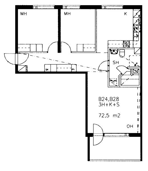
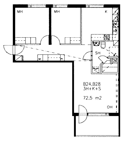
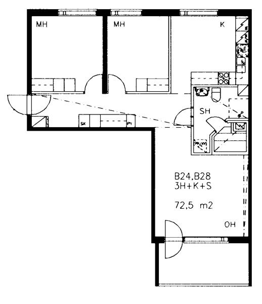
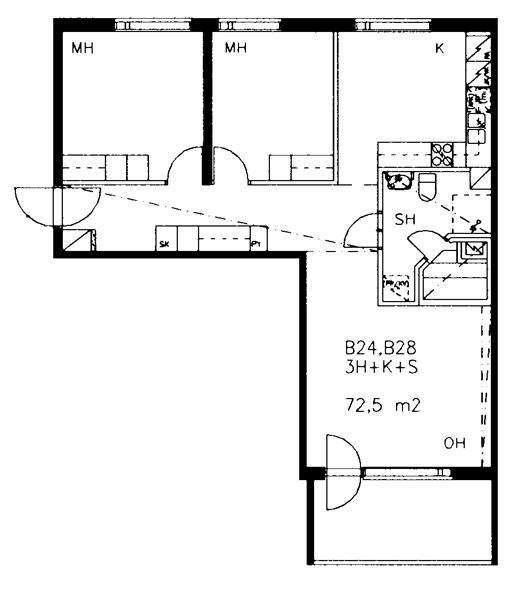
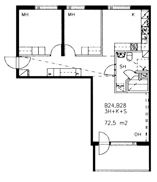
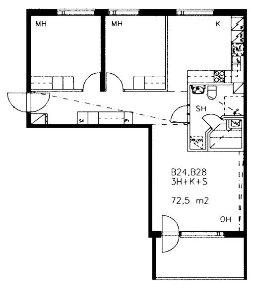
Nelikkotie 14 B 24
3h+k+s
, Kerrostalo
72.5 m2
1/9
Nelikkotie 14 B 24
3h+k+s
, Kerrostalo
72.5 m2
Floor 1/9
Nelikkotie 14 B 36
3h+k+s
, Kerrostalo
72.5 m2
4/9
Nelikkotie 14 B 36
3h+k+s
, Kerrostalo
72.5 m2
Floor 4/9
Nelikkotie 14 B 32
3h+k+s
, Kerrostalo
72.5 m2
3/9
Nelikkotie 14 B 32
3h+k+s
, Kerrostalo
72.5 m2
Floor 3/9
Nelikkotie 14 B 28
3h+k+s
, Kerrostalo
72.5 m2
2/9
Nelikkotie 14 B 28
3h+k+s
, Kerrostalo
72.5 m2
Floor 2/9
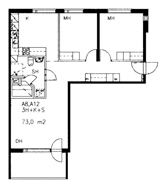
Nelikkotie 14 A 16
3h+k+s
, Kerrostalo
73 m2
4/9
Nelikkotie 14 A 16
3h+k+s
, Kerrostalo
73 m2
Floor 4/9
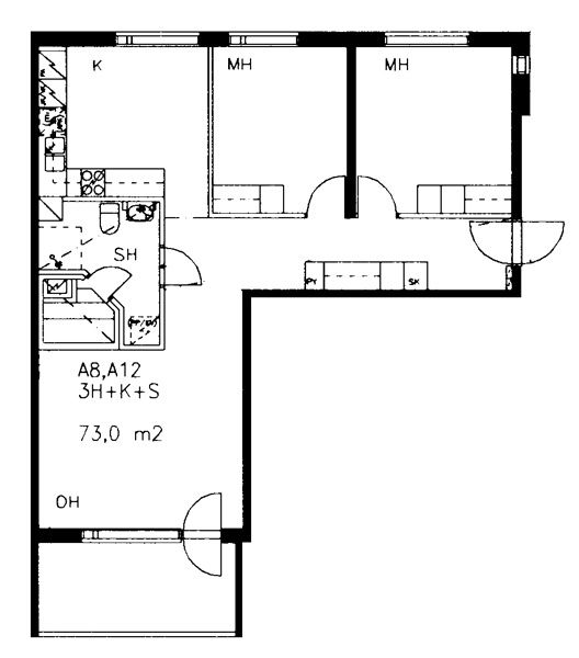
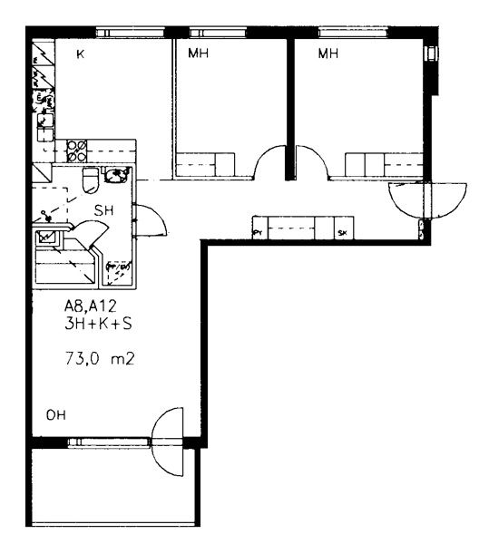
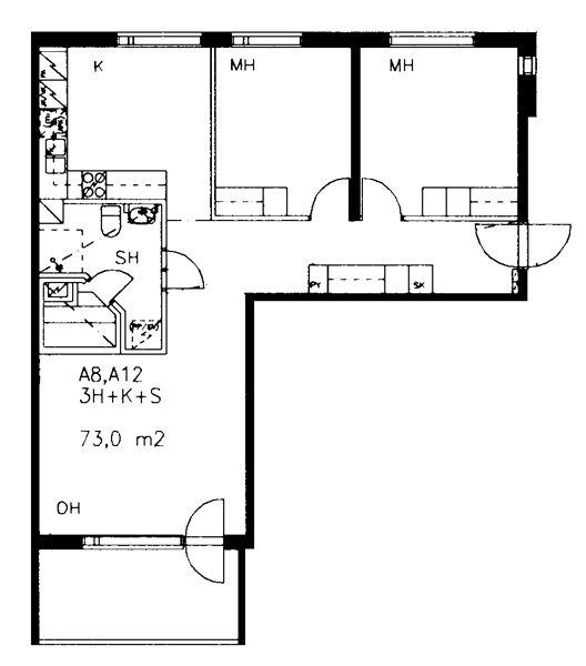
Nelikkotie 14 A 8
3h+k+s
, Kerrostalo
73 m2
2/9
Nelikkotie 14 A 8
3h+k+s
, Kerrostalo
73 m2
Floor 2/9
Nelikkotie 14 A 4
3h+k+s
, Kerrostalo
73 m2
1/9
Nelikkotie 14 A 4
3h+k+s
, Kerrostalo
73 m2
Floor 1/9
Nelikkotie 14 A 20
3h+k+s
, Kerrostalo
73 m2
6/9
Nelikkotie 14 A 20
3h+k+s
, Kerrostalo
73 m2
Floor 6/9
Nelikkotie 14 A 12
3h+k+s
, Kerrostalo
73 m2
3/9
Nelikkotie 14 A 12
3h+k+s
, Kerrostalo
73 m2
Floor 3/9
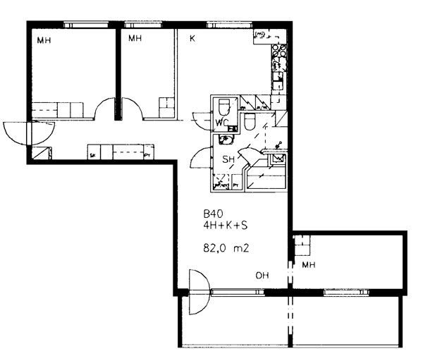
Nelikkotie 14 B 40
4h+k+s
, Kerrostalo
82 m2
5/9
Nelikkotie 14 B 40
4h+k+s
, Kerrostalo
82 m2
Floor 5/9
Nelikkotie 14 A 1
4h+k+s
, Kerrostalo
86 m2
1/9
Nelikkotie 14 A 1
4h+k+s
, Kerrostalo
86 m2
Floor 1/9
Nelikkotie 14 A 13
4h+k+s
, Kerrostalo
86 m2
4/9
Nelikkotie 14 A 13
4h+k+s
, Kerrostalo
86 m2
Floor 4/9
Nelikkotie 14 A 17
4h+k+s
, Kerrostalo
86 m2
5/9
Nelikkotie 14 A 17
4h+k+s
, Kerrostalo
86 m2
Floor 5/9
Nelikkotie 14 A 5
4h+k+s
, Kerrostalo
86 m2
2/9
Nelikkotie 14 A 5
4h+k+s
, Kerrostalo
86 m2
Floor 2/9
Nelikkotie 14 A 9
4h+k+s
, Kerrostalo
86 m2
3/9
Nelikkotie 14 A 9
4h+k+s
, Kerrostalo
86 m2
Floor 3/9
Nelikkotie 14 A 18
4h+k+s
, Kerrostalo
87.5 m2
5-6/9
Nelikkotie 14 A 18
4h+k+s
, Kerrostalo
87.5 m2
Floor 5-6/9
Nelikkotie 14 B 46
4h+k+s
, Kerrostalo
87.5 m2
7-8/9
Nelikkotie 14 B 46
4h+k+s
, Kerrostalo
87.5 m2
Floor 7-8/9
Nelikkotie 14 B 45
4h+k+s
, Kerrostalo
91 m2
7-8/9
Nelikkotie 14 B 45
4h+k+s
, Kerrostalo
91 m2
Floor 7-8/9
Nelikkotie 14 A 19
5h+k+s
, Kerrostalo
99 m2
5-6/9
Nelikkotie 14 A 19
5h+k+s
, Kerrostalo
99 m2
Floor 5-6/9


