Kohteen esittely
Espoon Matinkylässä sijaitseva Nelikkotie 14 on 48 huoneiston talo, josta löytyy huoneistoja kaksioista viisiöihin, 45,5 – 99 m2. Talossa on kaksi hissiä sekä pesula ja kaksi kuivaushuonetta. Osassa huoneistoista on lasitetut parvekkeet.
Kohde sijaitsee Ison Omenan ja Matinkylän metroaseman naapurissa. Alueen muihin palveluihin lukeutuvat lisäksi useampi päiväkoti ja terveysasema. Useat lähellä olevat puistot sekä kävelymatkan päässä sijaitseva merenranta takaavat myös monipuoliset mahdollisuudet ulkoiluun.
Miksi Asuntosäätiö?
Me uskomme, että onnellinen koti ja laadukas asuminen kuuluvat kaikille. Emme tavoittele voittoa, vaan käytämme kaikki vastikkeista ja vuokrista saadut tulot toimintamme kehittämiseen. Jo yli 33 000 suomalaista on valinnut Asuntosäätiön tarjoaman kodin. Tiesithän, että myös lemmikit ovat tervetulleita kaikkiin koteihimme!
Rakennuksen tiedot
- Asumismuoto Asokoti
- Keskimääräinen asumisoikeusmaksu / jm² 478,06€
- Hissit 2
- Talosauna Ei
- Pyykkitupa Kyllä
- Kuivaushuone Kyllä
- Asuntoja 48
- Asuinrakennuksia 1
- Käyttövastike / kk / jm² 16,57€
- Valmistumisvuosi 2002
- Porrashuoneet 2
- Energialuokka E
- Lämmitysmuoto Kauko
- Autopaikat 36
- Laajakaista DNA Welho
- Antennijärjestelmä Kaapeli
- KaapeliTV DNA
- Kattomateriaali Huopa
- Runkomateriaali Betoni
- Lemmikit Sallittu
Huoneistot ja pohjakuvat: Nelikkotie 14, Kerrostalo
Lisää hakemukselle kaikki haluamasi asuntotyypit. Mahdollisuutesi asunnon saamiseksi paranevat, kun voimme tarjota sinulle kaikkia valitsemasi asuntotyypin asuntoja, jotka mahdollisesti vapautuvat myöhemmin tästä kohteesta. Olet automaattisesti näiden asuntotyyppien hakuprosessissa.
Nelikkotie 14 B 21
2h+k+s
, Kerrostalo
54.5 m2
1/9
Nelikkotie 14 B 21
2h+k+s
, Kerrostalo
54.5 m2
Kerros 1/9
Nelikkotie 14 B 29
2h+k+s
, Kerrostalo
54.5 m2
3/9
Nelikkotie 14 B 29
2h+k+s
, Kerrostalo
54.5 m2
Kerros 3/9
Nelikkotie 14 B 37
2h+k+s
, Kerrostalo
54.5 m2
5/9
Nelikkotie 14 B 37
2h+k+s
, Kerrostalo
54.5 m2
Kerros 5/9
Nelikkotie 14 B 33
2h+k+s
, Kerrostalo
54.5 m2
4/9
Nelikkotie 14 B 33
2h+k+s
, Kerrostalo
54.5 m2
Kerros 4/9
Nelikkotie 14 B 25
2h+k+s
, Kerrostalo
54.5 m2
2/9
Nelikkotie 14 B 25
2h+k+s
, Kerrostalo
54.5 m2
Kerros 2/9
Nelikkotie 14 B 41
2h+k+s
, Kerrostalo
54.5 m2
6/9
Nelikkotie 14 B 41
2h+k+s
, Kerrostalo
54.5 m2
Kerros 6/9
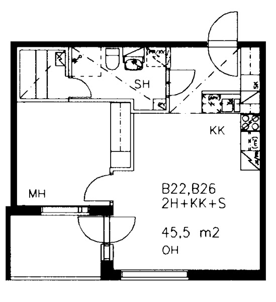
Nelikkotie 14 B 31
2h+kk+s
, Kerrostalo
45.5 m2
3/9
Nelikkotie 14 B 31
2h+kk+s
, Kerrostalo
45.5 m2
Kerros 3/9
Nelikkotie 14 B 43
2h+kk+s
, Kerrostalo
45.5 m2
6/9
Nelikkotie 14 B 43
2h+kk+s
, Kerrostalo
45.5 m2
Kerros 6/9
Nelikkotie 14 B 39
2h+kk+s
, Kerrostalo
45.5 m2
5/9
Nelikkotie 14 B 39
2h+kk+s
, Kerrostalo
45.5 m2
Kerros 5/9
Nelikkotie 14 A 14
2h+kk+s
, Kerrostalo
45.5 m2
4/9
Nelikkotie 14 A 14
2h+kk+s
, Kerrostalo
45.5 m2
Kerros 4/9
Nelikkotie 14 B 47
2h+kk+s
, Kerrostalo
45.5 m2
7/9
Nelikkotie 14 B 47
2h+kk+s
, Kerrostalo
45.5 m2
Kerros 7/9
Nelikkotie 14 B 22
2h+kk+s
, Kerrostalo
45.5 m2
1/9
Nelikkotie 14 B 22
2h+kk+s
, Kerrostalo
45.5 m2
Kerros 1/9
Nelikkotie 14 B 34
2h+kk+s
, Kerrostalo
45.5 m2
4/9
Nelikkotie 14 B 34
2h+kk+s
, Kerrostalo
45.5 m2
Kerros 4/9
Nelikkotie 14 B 38
2h+kk+s
, Kerrostalo
45.5 m2
5/9
Nelikkotie 14 B 38
2h+kk+s
, Kerrostalo
45.5 m2
Kerros 5/9
Nelikkotie 14 B 23
2h+kk+s
, Kerrostalo
45.5 m2
1/9
Nelikkotie 14 B 23
2h+kk+s
, Kerrostalo
45.5 m2
Kerros 1/9
Nelikkotie 14 B 26
2h+kk+s
, Kerrostalo
45.5 m2
2/9
Nelikkotie 14 B 26
2h+kk+s
, Kerrostalo
45.5 m2
Kerros 2/9
Nelikkotie 14 B 35
2h+kk+s
, Kerrostalo
45.5 m2
4/9
Nelikkotie 14 B 35
2h+kk+s
, Kerrostalo
45.5 m2
Kerros 4/9
Nelikkotie 14 A 6
2h+kk+s
, Kerrostalo
45.5 m2
2/9
Nelikkotie 14 A 6
2h+kk+s
, Kerrostalo
45.5 m2
Kerros 2/9
Nelikkotie 14 A 15
2h+kk+s
, Kerrostalo
45.5 m2
4/9
Nelikkotie 14 A 15
2h+kk+s
, Kerrostalo
45.5 m2
Kerros 4/9
Nelikkotie 14 A 11
2h+kk+s
, Kerrostalo
45.5 m2
3/9
Nelikkotie 14 A 11
2h+kk+s
, Kerrostalo
45.5 m2
Kerros 3/9
Nelikkotie 14 A 3
2h+kk+s
, Kerrostalo
45.5 m2
1/9
Nelikkotie 14 A 3
2h+kk+s
, Kerrostalo
45.5 m2
Kerros 1/9
Nelikkotie 14 A 10
2h+kk+s
, Kerrostalo
45.5 m2
3/9
Nelikkotie 14 A 10
2h+kk+s
, Kerrostalo
45.5 m2
Kerros 3/9
Nelikkotie 14 A 2
2h+kk+s
, Kerrostalo
45.5 m2
1/9
Nelikkotie 14 A 2
2h+kk+s
, Kerrostalo
45.5 m2
Kerros 1/9
Nelikkotie 14 A 7
2h+kk+s
, Kerrostalo
45.5 m2
2/9
Nelikkotie 14 A 7
2h+kk+s
, Kerrostalo
45.5 m2
Kerros 2/9
Nelikkotie 14 B 30
2h+kk+s
, Kerrostalo
45.5 m2
3/9
Nelikkotie 14 B 30
2h+kk+s
, Kerrostalo
45.5 m2
Kerros 3/9
Nelikkotie 14 B 48
3h+k+s
, Kerrostalo
72.5 m2
7/9
Nelikkotie 14 B 48
3h+k+s
, Kerrostalo
72.5 m2
Kerros 7/9
Nelikkotie 14 B 44
3h+k+s
, Kerrostalo
72.5 m2
6/9
Nelikkotie 14 B 44
3h+k+s
, Kerrostalo
72.5 m2
Kerros 6/9
Nelikkotie 14 B 24
3h+k+s
, Kerrostalo
72.5 m2
1/9
Nelikkotie 14 B 24
3h+k+s
, Kerrostalo
72.5 m2
Kerros 1/9
Nelikkotie 14 B 36
3h+k+s
, Kerrostalo
72.5 m2
4/9
Nelikkotie 14 B 36
3h+k+s
, Kerrostalo
72.5 m2
Kerros 4/9
Nelikkotie 14 B 32
3h+k+s
, Kerrostalo
72.5 m2
3/9
Nelikkotie 14 B 32
3h+k+s
, Kerrostalo
72.5 m2
Kerros 3/9
Nelikkotie 14 B 28
3h+k+s
, Kerrostalo
72.5 m2
2/9
Nelikkotie 14 B 28
3h+k+s
, Kerrostalo
72.5 m2
Kerros 2/9
Nelikkotie 14 A 16
3h+k+s
, Kerrostalo
73 m2
4/9
Nelikkotie 14 A 16
3h+k+s
, Kerrostalo
73 m2
Kerros 4/9
Nelikkotie 14 A 8
3h+k+s
, Kerrostalo
73 m2
2/9
Nelikkotie 14 A 8
3h+k+s
, Kerrostalo
73 m2
Kerros 2/9
Nelikkotie 14 A 4
3h+k+s
, Kerrostalo
73 m2
1/9
Nelikkotie 14 A 4
3h+k+s
, Kerrostalo
73 m2
Kerros 1/9
Nelikkotie 14 A 20
3h+k+s
, Kerrostalo
73 m2
6/9
Nelikkotie 14 A 20
3h+k+s
, Kerrostalo
73 m2
Kerros 6/9
Nelikkotie 14 A 12
3h+k+s
, Kerrostalo
73 m2
3/9
Nelikkotie 14 A 12
3h+k+s
, Kerrostalo
73 m2
Kerros 3/9
Nelikkotie 14 B 40
4h+k+s
, Kerrostalo
82 m2
5/9
Nelikkotie 14 B 40
4h+k+s
, Kerrostalo
82 m2
Kerros 5/9
Nelikkotie 14 A 1
4h+k+s
, Kerrostalo
86 m2
1/9
Nelikkotie 14 A 1
4h+k+s
, Kerrostalo
86 m2
Kerros 1/9
Nelikkotie 14 A 13
4h+k+s
, Kerrostalo
86 m2
4/9
Nelikkotie 14 A 13
4h+k+s
, Kerrostalo
86 m2
Kerros 4/9
Nelikkotie 14 A 17
4h+k+s
, Kerrostalo
86 m2
5/9
Nelikkotie 14 A 17
4h+k+s
, Kerrostalo
86 m2
Kerros 5/9
Nelikkotie 14 A 5
4h+k+s
, Kerrostalo
86 m2
2/9
Nelikkotie 14 A 5
4h+k+s
, Kerrostalo
86 m2
Kerros 2/9
Nelikkotie 14 A 9
4h+k+s
, Kerrostalo
86 m2
3/9
Nelikkotie 14 A 9
4h+k+s
, Kerrostalo
86 m2
Kerros 3/9
Nelikkotie 14 A 18
4h+k+s
, Kerrostalo
87.5 m2
5-6/9
Nelikkotie 14 A 18
4h+k+s
, Kerrostalo
87.5 m2
Kerros 5-6/9
Nelikkotie 14 B 46
4h+k+s
, Kerrostalo
87.5 m2
7-8/9
Nelikkotie 14 B 46
4h+k+s
, Kerrostalo
87.5 m2
Kerros 7-8/9
Nelikkotie 14 B 45
4h+k+s
, Kerrostalo
91 m2
7-8/9
Nelikkotie 14 B 45
4h+k+s
, Kerrostalo
91 m2
Kerros 7-8/9
Nelikkotie 14 A 19
5h+k+s
, Kerrostalo
99 m2
5-6/9
Nelikkotie 14 A 19
5h+k+s
, Kerrostalo
99 m2
Kerros 5-6/9

