Property Introduction
Suvelantie 14 on uudistuvassa Espoon Suvelassa sijaitseva nelikerroksinen kerrostalo kallioisella tontilla omassa kulmassaan. Talosta löytyy hissit, pesula sekä kerhohuone.
Nämä 44 kotiamme ovat loistavien liikenneyhteyksien ja palvelujen äärellä: juna-asemalle on matkaa 800 metriä ja kahden kilometrin päässä sijaitsevasta Espoon keskuksesta löytyy peruspalvelujen lisäksi mm. kauppakeskus. 5 minuutin kävelymatkan päässä aukeaa Espoon keskuspuisto, jossa pääsee liikkumaan niin kesällä kuin talvellakin.
Why Asuntosäätiö?
We believe that a happy home and quality living are for everyone. We do not seek immediate profit or financial benefit. We use the assets gained from our operations to develop our real estate. Over 33,000 Finns have already chosen a home offered by Asuntosäätiö. Pets are also welcome in all our homes.
Basic house info
- Form of housing Right-of-occupancy
- Average right-of-occupancy payment / jm² 433,78€
- Elevators 2
- House sauna No
- Laundry room Yes
- Drying room Yes
- Apartment count 44
- Building count 2
- Residence charge / month / jm² 12,61€
- Construction year 2001
- Staircases 2
- Energy class E
- Heating Kauko
- Parking spaces 44
- Clubroom 1
- Broadband DNA Netti
- TV-antenna system Kaapeli
- CableTV DNA
- Roof material Pelti
- House frame material Betoni
- Pets Allowed
Apartments and floor plans: Suvelantie 14, Kerrostalo, Piharakennus
Add all the apartment types you want to your application. Your opportunity to get an apartment increases when we are able to offer you all of the apartment types that may be available later on in this property. You are automatically in queue for these apartment types.
Suvelantie 14 B 40
2h+k+s
, Kerrostalo
57.5 m2
4/4
Suvelantie 14 B 40
2h+k+s
, Kerrostalo
57.5 m2
Floor 4/4
Suvelantie 14 B 28
2h+k+s
, Kerrostalo
57.5 m2
2/4
Suvelantie 14 B 28
2h+k+s
, Kerrostalo
57.5 m2
Floor 2/4
Suvelantie 14 B 34
2h+k+s
, Kerrostalo
57.5 m2
3/4
Suvelantie 14 B 34
2h+k+s
, Kerrostalo
57.5 m2
Floor 3/4
Suvelantie 14 B 31
2h+k+s
, Kerrostalo
59.5 m2
2/4
Suvelantie 14 B 31
2h+k+s
, Kerrostalo
59.5 m2
Floor 2/4
Suvelantie 14 B 43
2h+k+s
, Kerrostalo
59.5 m2
4/4
Suvelantie 14 B 43
2h+k+s
, Kerrostalo
59.5 m2
Floor 4/4
Suvelantie 14 B 37
2h+k+s
, Kerrostalo
59.5 m2
3/4
Suvelantie 14 B 37
2h+k+s
, Kerrostalo
59.5 m2
Floor 3/4
Suvelantie 14 B 25
2h+k+s
, Kerrostalo
59.5 m2
1/4
Suvelantie 14 B 25
2h+k+s
, Kerrostalo
59.5 m2
Floor 1/4
Suvelantie 14 B 24
2h+k+s
, Kerrostalo
62 m2
1/4
Suvelantie 14 B 24
2h+k+s
, Kerrostalo
62 m2
Floor 1/4
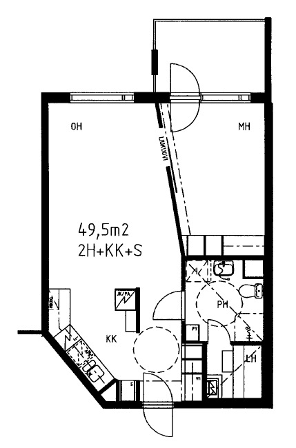
Suvelantie 14 B 44
2h+kk+s
, Kerrostalo
49.5 m2
4/4
Suvelantie 14 B 44
2h+kk+s
, Kerrostalo
49.5 m2
Floor 4/4
Suvelantie 14 B 32
2h+kk+s
, Kerrostalo
49.5 m2
2/4
Suvelantie 14 B 32
2h+kk+s
, Kerrostalo
49.5 m2
Floor 2/4
Suvelantie 14 B 33
2h+kk+s
, Kerrostalo
49.5 m2
3/4
Suvelantie 14 B 33
2h+kk+s
, Kerrostalo
49.5 m2
Floor 3/4
Suvelantie 14 B 23
2h+kk+s
, Kerrostalo
49.5 m2
1/4
Suvelantie 14 B 23
2h+kk+s
, Kerrostalo
49.5 m2
Floor 1/4
Suvelantie 14 B 27
2h+kk+s
, Kerrostalo
49.5 m2
2/4
Suvelantie 14 B 27
2h+kk+s
, Kerrostalo
49.5 m2
Floor 2/4
Suvelantie 14 B 39
2h+kk+s
, Kerrostalo
49.5 m2
4/4
Suvelantie 14 B 39
2h+kk+s
, Kerrostalo
49.5 m2
Floor 4/4
Suvelantie 14 B 38
2h+kk+s
, Kerrostalo
49.5 m2
3/4
Suvelantie 14 B 38
2h+kk+s
, Kerrostalo
49.5 m2
Floor 3/4
Suvelantie 14 B 26
2h+kk+s
, Kerrostalo
49.5 m2
1/4
Suvelantie 14 B 26
2h+kk+s
, Kerrostalo
49.5 m2
Floor 1/4
Suvelantie 14 A 5
2h+kk+s
, Kerrostalo
49.5 m2
2/4
Suvelantie 14 A 5
2h+kk+s
, Kerrostalo
49.5 m2
Floor 2/4
Suvelantie 14 A 17
2h+kk+s
, Kerrostalo
49.5 m2
4/4
Suvelantie 14 A 17
2h+kk+s
, Kerrostalo
49.5 m2
Floor 4/4
Suvelantie 14 A 16
2h+kk+s
, Kerrostalo
49.5 m2
3/4
Suvelantie 14 A 16
2h+kk+s
, Kerrostalo
49.5 m2
Floor 3/4
Suvelantie 14 A 11
2h+kk+s
, Kerrostalo
49.5 m2
3/4
Suvelantie 14 A 11
2h+kk+s
, Kerrostalo
49.5 m2
Floor 3/4
Suvelantie 14 A 10
2h+kk+s
, Kerrostalo
49.5 m2
2/4
Suvelantie 14 A 10
2h+kk+s
, Kerrostalo
49.5 m2
Floor 2/4
Suvelantie 14 A 1
2h+kk+s
, Kerrostalo
49.5 m2
1/4
Suvelantie 14 A 1
2h+kk+s
, Kerrostalo
49.5 m2
Floor 1/4
Suvelantie 14 A 22
2h+kk+s
, Kerrostalo
49.5 m2
4/4
Suvelantie 14 A 22
2h+kk+s
, Kerrostalo
49.5 m2
Floor 4/4
Suvelantie 14 A 4
2h+kk+s
, Kerrostalo
49.5 m2
1/4
Suvelantie 14 A 4
2h+kk+s
, Kerrostalo
49.5 m2
Floor 1/4
Suvelantie 14 B 35
3h+k+s
, Kerrostalo
76.5 m2
3/4
Suvelantie 14 B 35
3h+k+s
, Kerrostalo
76.5 m2
Floor 3/4
Suvelantie 14 B 29
3h+k+s
, Kerrostalo
76.5 m2
2/4
Suvelantie 14 B 29
3h+k+s
, Kerrostalo
76.5 m2
Floor 2/4
Suvelantie 14 B 42
3h+k+s
, Kerrostalo
77 m2
4/4
Suvelantie 14 B 42
3h+k+s
, Kerrostalo
77 m2
Floor 4/4
Suvelantie 14 B 30
3h+k+s
, Kerrostalo
77 m2
2/4
Suvelantie 14 B 30
3h+k+s
, Kerrostalo
77 m2
Floor 2/4
Suvelantie 14 B 36
3h+k+s
, Kerrostalo
77 m2
3/4
Suvelantie 14 B 36
3h+k+s
, Kerrostalo
77 m2
Floor 3/4
Suvelantie 14 A 21
3h+k+s
, Kerrostalo
77 m2
4/4
Suvelantie 14 A 21
3h+k+s
, Kerrostalo
77 m2
Floor 4/4
Suvelantie 14 A 2
3h+k+s
, Kerrostalo
77 m2
1/4
Suvelantie 14 A 2
3h+k+s
, Kerrostalo
77 m2
Floor 1/4
Suvelantie 14 A 12
3h+k+s
, Kerrostalo
77 m2
3/4
Suvelantie 14 A 12
3h+k+s
, Kerrostalo
77 m2
Floor 3/4
Suvelantie 14 A 18
3h+k+s
, Kerrostalo
77 m2
4/4
Suvelantie 14 A 18
3h+k+s
, Kerrostalo
77 m2
Floor 4/4
Suvelantie 14 A 9
3h+k+s
, Kerrostalo
77 m2
2/4
Suvelantie 14 A 9
3h+k+s
, Kerrostalo
77 m2
Floor 2/4
Suvelantie 14 A 6
3h+k+s
, Kerrostalo
77 m2
2/4
Suvelantie 14 A 6
3h+k+s
, Kerrostalo
77 m2
Floor 2/4
Suvelantie 14 A 3
3h+k+s
, Kerrostalo
80 m2
1/4
Suvelantie 14 A 3
3h+k+s
, Kerrostalo
80 m2
Floor 1/4
Suvelantie 14 A 7
4h+k+s
, Kerrostalo
94 m2
2/4
Suvelantie 14 A 7
4h+k+s
, Kerrostalo
94 m2
Floor 2/4
Suvelantie 14 A 13
4h+k+s
, Kerrostalo
94 m2
3/4
Suvelantie 14 A 13
4h+k+s
, Kerrostalo
94 m2
Floor 3/4
Suvelantie 14 A 19
4h+k+s
, Kerrostalo
94 m2
4/4
Suvelantie 14 A 19
4h+k+s
, Kerrostalo
94 m2
Floor 4/4
Suvelantie 14 A 20
4h+k+s
, Kerrostalo
94.5 m2
4/4
Suvelantie 14 A 20
4h+k+s
, Kerrostalo
94.5 m2
Floor 4/4
Suvelantie 14 A 14
4h+k+s
, Kerrostalo
94.5 m2
3/4
Suvelantie 14 A 14
4h+k+s
, Kerrostalo
94.5 m2
Floor 3/4
Suvelantie 14 A 8
4h+k+s
, Kerrostalo
94.5 m2
2/4
Suvelantie 14 A 8
4h+k+s
, Kerrostalo
94.5 m2
Floor 2/4

