Kohteen esittely
Suvelantie 14 on uudistuvassa Espoon Suvelassa sijaitseva nelikerroksinen kerrostalo kallioisella tontilla omassa kulmassaan. Talosta löytyy hissit, pesula sekä kerhohuone.
Nämä 44 kotiamme ovat loistavien liikenneyhteyksien ja palvelujen äärellä: juna-asemalle on matkaa 800 metriä ja kahden kilometrin päässä sijaitsevasta Espoon keskuksesta löytyy peruspalvelujen lisäksi mm. kauppakeskus. 5 minuutin kävelymatkan päässä aukeaa Espoon keskuspuisto, jossa pääsee liikkumaan niin kesällä kuin talvellakin.
Miksi Asuntosäätiö?
Me uskomme, että onnellinen koti ja laadukas asuminen kuuluvat kaikille. Emme tavoittele voittoa, vaan käytämme kaikki vastikkeista ja vuokrista saadut tulot toimintamme kehittämiseen. Jo yli 33 000 suomalaista on valinnut Asuntosäätiön tarjoaman kodin. Tiesithän, että myös lemmikit ovat tervetulleita kaikkiin koteihimme!
Rakennuksen tiedot
- Asumismuoto Asokoti
- Keskimääräinen asumisoikeusmaksu / jm² 433,78€
- Hissit 2
- Talosauna Ei
- Pyykkitupa Kyllä
- Kuivaushuone Kyllä
- Asuntoja 44
- Asuinrakennuksia 2
- Käyttövastike / kk / jm² 12,61€
- Valmistumisvuosi 2001
- Porrashuoneet 2
- Energialuokka E
- Lämmitysmuoto Kauko
- Autopaikat 44
- Kerhohuone 1
- Laajakaista DNA Netti
- Antennijärjestelmä Kaapeli
- KaapeliTV DNA
- Kattomateriaali Pelti
- Runkomateriaali Betoni
- Lemmikit Sallittu
Huoneistot ja pohjakuvat: Suvelantie 14, Kerrostalo, Piharakennus
Lisää hakemukselle kaikki haluamasi asuntotyypit. Mahdollisuutesi asunnon saamiseksi paranevat, kun voimme tarjota sinulle kaikkia valitsemasi asuntotyypin asuntoja, jotka mahdollisesti vapautuvat myöhemmin tästä kohteesta. Olet automaattisesti näiden asuntotyyppien hakuprosessissa.
Suvelantie 14 B 40
2h+k+s
, Kerrostalo
57.5 m2
4/4
Suvelantie 14 B 40
2h+k+s
, Kerrostalo
57.5 m2
Kerros 4/4
Suvelantie 14 B 28
2h+k+s
, Kerrostalo
57.5 m2
2/4
Suvelantie 14 B 28
2h+k+s
, Kerrostalo
57.5 m2
Kerros 2/4
Suvelantie 14 B 34
2h+k+s
, Kerrostalo
57.5 m2
3/4
Suvelantie 14 B 34
2h+k+s
, Kerrostalo
57.5 m2
Kerros 3/4
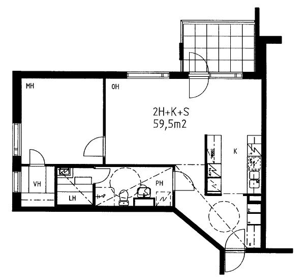
Suvelantie 14 B 31
2h+k+s
, Kerrostalo
59.5 m2
2/4
Suvelantie 14 B 31
2h+k+s
, Kerrostalo
59.5 m2
Kerros 2/4
Suvelantie 14 B 43
2h+k+s
, Kerrostalo
59.5 m2
4/4
Suvelantie 14 B 43
2h+k+s
, Kerrostalo
59.5 m2
Kerros 4/4
Suvelantie 14 B 37
2h+k+s
, Kerrostalo
59.5 m2
3/4
Suvelantie 14 B 37
2h+k+s
, Kerrostalo
59.5 m2
Kerros 3/4
Suvelantie 14 B 25
2h+k+s
, Kerrostalo
59.5 m2
1/4
Suvelantie 14 B 25
2h+k+s
, Kerrostalo
59.5 m2
Kerros 1/4
Suvelantie 14 B 24
2h+k+s
, Kerrostalo
62 m2
1/4
Suvelantie 14 B 24
2h+k+s
, Kerrostalo
62 m2
Kerros 1/4
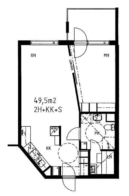
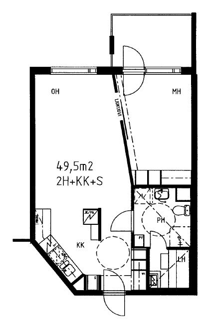
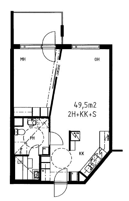
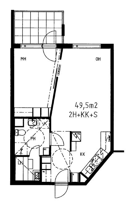
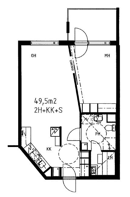
Suvelantie 14 B 44
2h+kk+s
, Kerrostalo
49.5 m2
4/4
Suvelantie 14 B 44
2h+kk+s
, Kerrostalo
49.5 m2
Kerros 4/4
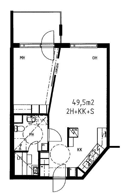
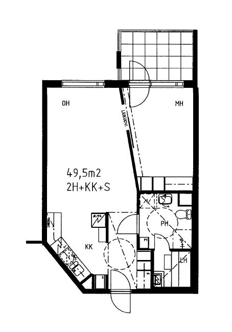
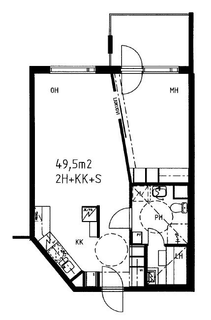
Suvelantie 14 B 32
2h+kk+s
, Kerrostalo
49.5 m2
2/4
Suvelantie 14 B 32
2h+kk+s
, Kerrostalo
49.5 m2
Kerros 2/4
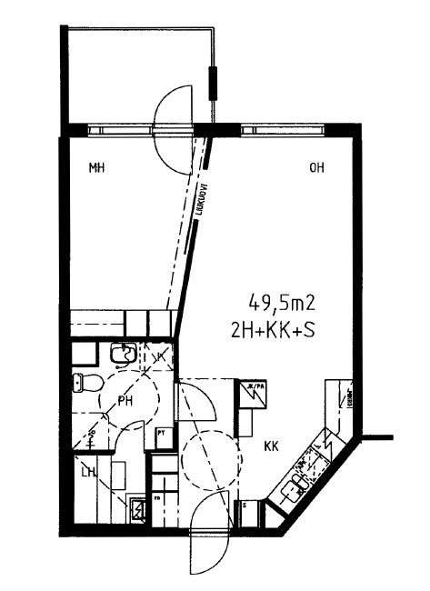
Suvelantie 14 B 33
2h+kk+s
, Kerrostalo
49.5 m2
3/4
Suvelantie 14 B 33
2h+kk+s
, Kerrostalo
49.5 m2
Kerros 3/4
Suvelantie 14 B 23
2h+kk+s
, Kerrostalo
49.5 m2
1/4
Suvelantie 14 B 23
2h+kk+s
, Kerrostalo
49.5 m2
Kerros 1/4
Suvelantie 14 B 27
2h+kk+s
, Kerrostalo
49.5 m2
2/4
Suvelantie 14 B 27
2h+kk+s
, Kerrostalo
49.5 m2
Kerros 2/4
Suvelantie 14 B 39
2h+kk+s
, Kerrostalo
49.5 m2
4/4
Suvelantie 14 B 39
2h+kk+s
, Kerrostalo
49.5 m2
Kerros 4/4
Suvelantie 14 B 38
2h+kk+s
, Kerrostalo
49.5 m2
3/4
Suvelantie 14 B 38
2h+kk+s
, Kerrostalo
49.5 m2
Kerros 3/4
Suvelantie 14 B 26
2h+kk+s
, Kerrostalo
49.5 m2
1/4
Suvelantie 14 B 26
2h+kk+s
, Kerrostalo
49.5 m2
Kerros 1/4
Suvelantie 14 A 5
2h+kk+s
, Kerrostalo
49.5 m2
2/4
Suvelantie 14 A 5
2h+kk+s
, Kerrostalo
49.5 m2
Kerros 2/4
Suvelantie 14 A 17
2h+kk+s
, Kerrostalo
49.5 m2
4/4
Suvelantie 14 A 17
2h+kk+s
, Kerrostalo
49.5 m2
Kerros 4/4
Suvelantie 14 A 16
2h+kk+s
, Kerrostalo
49.5 m2
3/4
Suvelantie 14 A 16
2h+kk+s
, Kerrostalo
49.5 m2
Kerros 3/4
Suvelantie 14 A 11
2h+kk+s
, Kerrostalo
49.5 m2
3/4
Suvelantie 14 A 11
2h+kk+s
, Kerrostalo
49.5 m2
Kerros 3/4
Suvelantie 14 A 10
2h+kk+s
, Kerrostalo
49.5 m2
2/4
Suvelantie 14 A 10
2h+kk+s
, Kerrostalo
49.5 m2
Kerros 2/4
Suvelantie 14 A 1
2h+kk+s
, Kerrostalo
49.5 m2
1/4
Suvelantie 14 A 1
2h+kk+s
, Kerrostalo
49.5 m2
Kerros 1/4
Suvelantie 14 A 22
2h+kk+s
, Kerrostalo
49.5 m2
4/4
Suvelantie 14 A 22
2h+kk+s
, Kerrostalo
49.5 m2
Kerros 4/4
Suvelantie 14 A 4
2h+kk+s
, Kerrostalo
49.5 m2
1/4
Suvelantie 14 A 4
2h+kk+s
, Kerrostalo
49.5 m2
Kerros 1/4
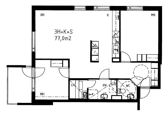
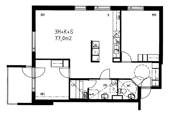
Suvelantie 14 B 35
3h+k+s
, Kerrostalo
76.5 m2
3/4
Suvelantie 14 B 35
3h+k+s
, Kerrostalo
76.5 m2
Kerros 3/4
Suvelantie 14 B 29
3h+k+s
, Kerrostalo
76.5 m2
2/4
Suvelantie 14 B 29
3h+k+s
, Kerrostalo
76.5 m2
Kerros 2/4
Suvelantie 14 B 42
3h+k+s
, Kerrostalo
77 m2
4/4
Suvelantie 14 B 42
3h+k+s
, Kerrostalo
77 m2
Kerros 4/4
Suvelantie 14 B 30
3h+k+s
, Kerrostalo
77 m2
2/4
Suvelantie 14 B 30
3h+k+s
, Kerrostalo
77 m2
Kerros 2/4
Suvelantie 14 B 36
3h+k+s
, Kerrostalo
77 m2
3/4
Suvelantie 14 B 36
3h+k+s
, Kerrostalo
77 m2
Kerros 3/4
Suvelantie 14 A 21
3h+k+s
, Kerrostalo
77 m2
4/4
Suvelantie 14 A 21
3h+k+s
, Kerrostalo
77 m2
Kerros 4/4
Suvelantie 14 A 2
3h+k+s
, Kerrostalo
77 m2
1/4
Suvelantie 14 A 2
3h+k+s
, Kerrostalo
77 m2
Kerros 1/4
Suvelantie 14 A 12
3h+k+s
, Kerrostalo
77 m2
3/4
Suvelantie 14 A 12
3h+k+s
, Kerrostalo
77 m2
Kerros 3/4
Suvelantie 14 A 18
3h+k+s
, Kerrostalo
77 m2
4/4
Suvelantie 14 A 18
3h+k+s
, Kerrostalo
77 m2
Kerros 4/4
Suvelantie 14 A 9
3h+k+s
, Kerrostalo
77 m2
2/4
Suvelantie 14 A 9
3h+k+s
, Kerrostalo
77 m2
Kerros 2/4
Suvelantie 14 A 6
3h+k+s
, Kerrostalo
77 m2
2/4
Suvelantie 14 A 6
3h+k+s
, Kerrostalo
77 m2
Kerros 2/4
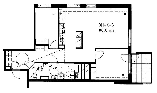
Suvelantie 14 A 3
3h+k+s
, Kerrostalo
80 m2
1/4
Suvelantie 14 A 3
3h+k+s
, Kerrostalo
80 m2
Kerros 1/4
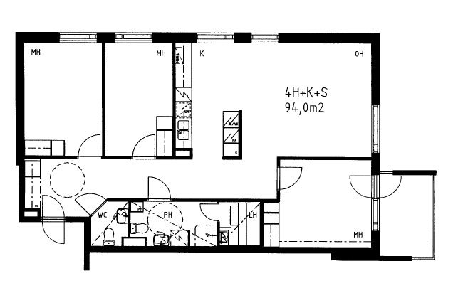
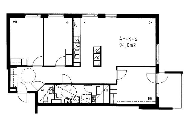
Suvelantie 14 A 7
4h+k+s
, Kerrostalo
94 m2
2/4
Suvelantie 14 A 7
4h+k+s
, Kerrostalo
94 m2
Kerros 2/4
Suvelantie 14 A 13
4h+k+s
, Kerrostalo
94 m2
3/4
Suvelantie 14 A 13
4h+k+s
, Kerrostalo
94 m2
Kerros 3/4
Suvelantie 14 A 19
4h+k+s
, Kerrostalo
94 m2
4/4
Suvelantie 14 A 19
4h+k+s
, Kerrostalo
94 m2
Kerros 4/4
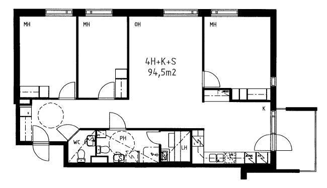
Suvelantie 14 A 20
4h+k+s
, Kerrostalo
94.5 m2
4/4
Suvelantie 14 A 20
4h+k+s
, Kerrostalo
94.5 m2
Kerros 4/4
Suvelantie 14 A 14
4h+k+s
, Kerrostalo
94.5 m2
3/4
Suvelantie 14 A 14
4h+k+s
, Kerrostalo
94.5 m2
Kerros 3/4
Suvelantie 14 A 8
4h+k+s
, Kerrostalo
94.5 m2
2/4
Suvelantie 14 A 8
4h+k+s
, Kerrostalo
94.5 m2
Kerros 2/4

