Property Introduction
Leikosaarentie 13 on merellisessä Vuosaaressa sijaitseva viihtyisä kerrostalokohde. Kohde koostuu 57 asunnosta, joiden koot vaihtelevat kaksioista viiden huoneen asuntoihin, 44,5–100 m². Asunnoissa on asumismukavuutta lisäävä huoneistokohtainen ilmanvaihtojärjestelmä. Kohteen asukkailla on käytössään pyykkitupa, kuivaushuone sekä kerhotila. Kohteessa on kaukolämmitys.
Koulut, päiväkodit ja palvelut ovat kohteessa lähellä. Kauppakeskus Columbuksen päivittäispalvelut sekä Vuosaaren metro sijaitsevat noin kilometrin päässä kohteesta. Lähettyvillä on myös ulkoilemaan kutsuva vehreä Kallvikin ulkoilualue.
Why Asuntosäätiö?
We believe that a happy home and quality living are for everyone. We do not seek immediate profit or financial benefit. We use the assets gained from our operations to develop our real estate. Over 33,000 Finns have already chosen a home offered by Asuntosäätiö. Pets are also welcome in all our homes.
Basic house info
- Form of housing Right-of-occupancy
- Average right-of-occupancy payment / jm² 355,44€
- Elevators 3
- House sauna No
- Laundry room Yes
- Drying room Yes
- Apartment count 57
- Building count 1
- Residence charge / month / jm² 15,68€
- Construction year 1996
- Staircases 3
- Energy class D
- Heating Kauko
- Parking spaces 46
- Clubroom 1
- Broadband DNA Welho
- TV-antenna system Kaapeli
- CableTV DNA
- Roof material Huopa
- House frame material Betoni
- Pets Allowed
Apartments and floor plans: Leikosaarentie 13, Kerrostalo,
Add all the apartment types you want to your application. Your opportunity to get an apartment increases when we are able to offer you all of the apartment types that may be available later on in this property. You are automatically in queue for these apartment types.
Leikosaarentie 13 C 49
2h+k+s
, Kerrostalo
55 m2
3/5
Leikosaarentie 13 C 49
2h+k+s
, Kerrostalo
55 m2
Floor 3/5
Leikosaarentie 13 C 45
2h+k+s
, Kerrostalo
55 m2
2/5
Leikosaarentie 13 C 45
2h+k+s
, Kerrostalo
55 m2
Floor 2/5
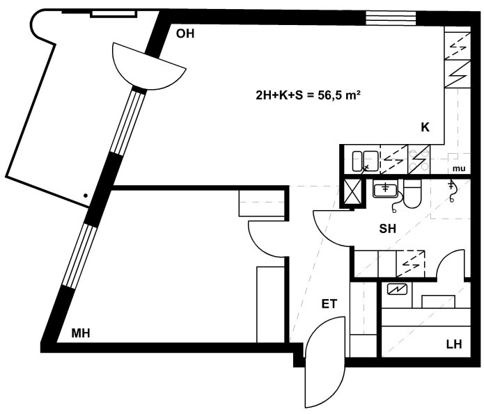
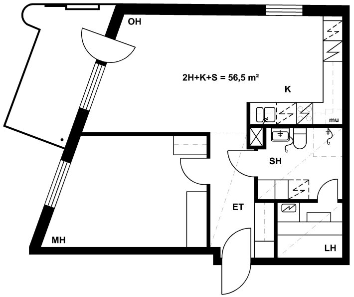
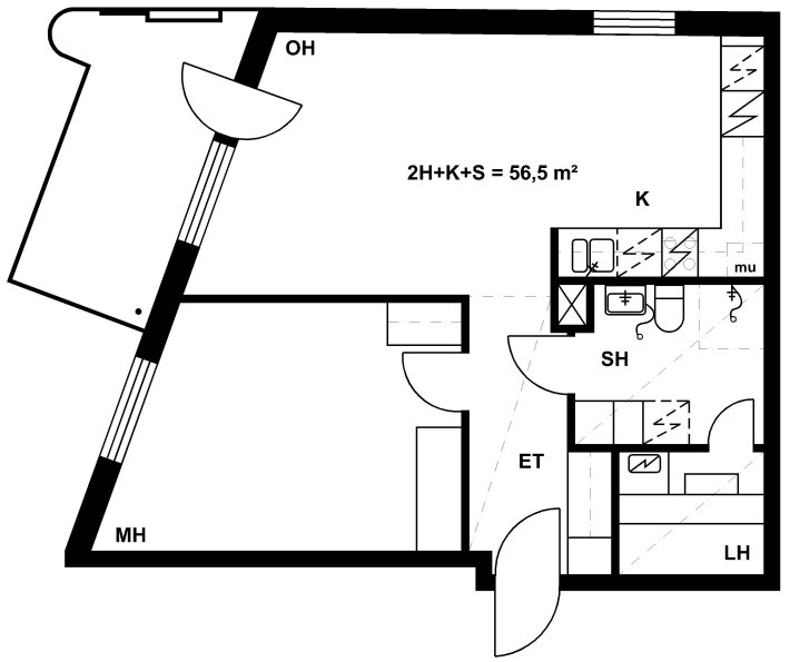
Leikosaarentie 13 A 5
2h+k+s
, Kerrostalo
56.5 m2
1/5
Leikosaarentie 13 A 5
2h+k+s
, Kerrostalo
56.5 m2
Floor 1/5
Leikosaarentie 13 A 19
2h+k+s
, Kerrostalo
56.5 m2
4/5
Leikosaarentie 13 A 19
2h+k+s
, Kerrostalo
56.5 m2
Floor 4/5
Leikosaarentie 13 A 24
2h+k+s
, Kerrostalo
56.5 m2
5/5
Leikosaarentie 13 A 24
2h+k+s
, Kerrostalo
56.5 m2
Floor 5/5
Leikosaarentie 13 A 9
2h+k+s
, Kerrostalo
56.5 m2
2/5
Leikosaarentie 13 A 9
2h+k+s
, Kerrostalo
56.5 m2
Floor 2/5
Leikosaarentie 13 A 14
2h+k+s
, Kerrostalo
56.5 m2
3/5
Leikosaarentie 13 A 14
2h+k+s
, Kerrostalo
56.5 m2
Floor 3/5
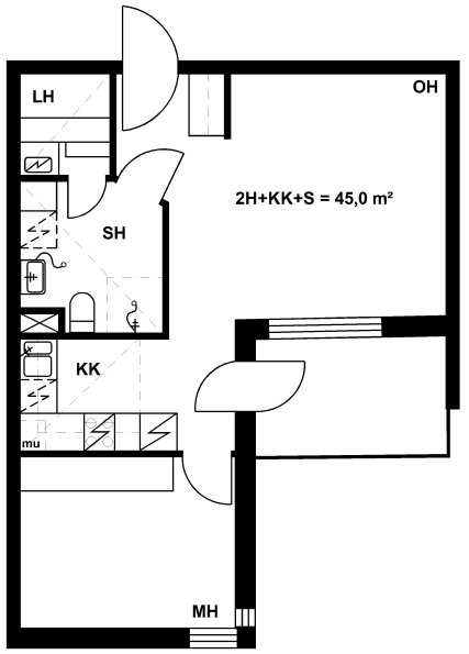
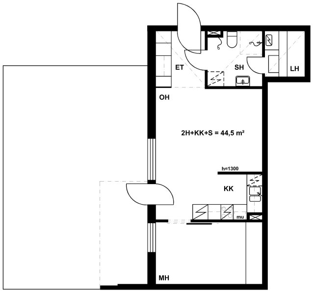
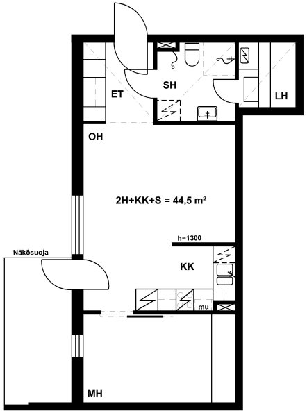
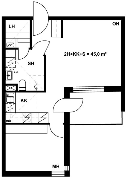
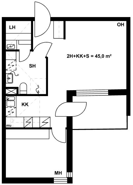
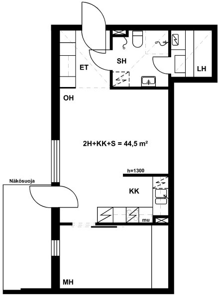
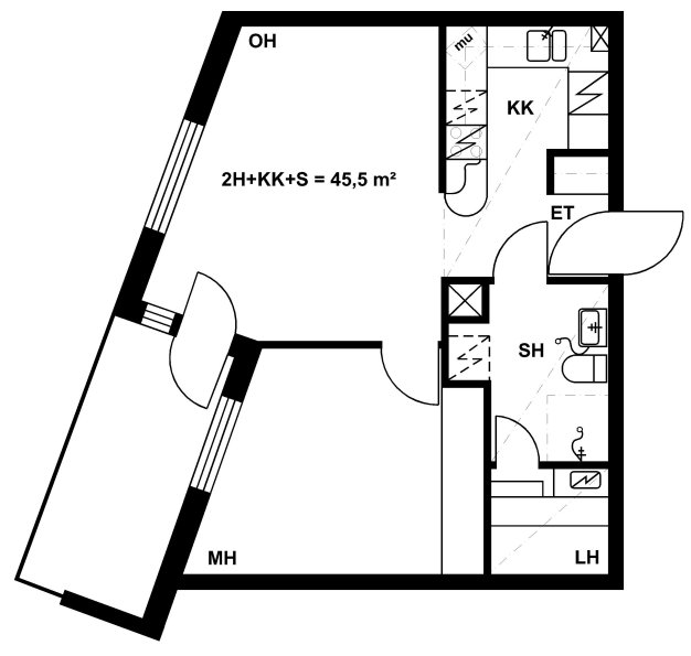
Leikosaarentie 13 C 50
2h+kk+s
, Kerrostalo
44.5 m2
3/5
Leikosaarentie 13 C 50
2h+kk+s
, Kerrostalo
44.5 m2
Floor 3/5
Leikosaarentie 13 C 46
2h+kk+s
, Kerrostalo
44.5 m2
2/5
Leikosaarentie 13 C 46
2h+kk+s
, Kerrostalo
44.5 m2
Floor 2/5
Leikosaarentie 13 C 43
2h+kk+s
, Kerrostalo
44.5 m2
1/5
Leikosaarentie 13 C 43
2h+kk+s
, Kerrostalo
44.5 m2
Floor 1/5
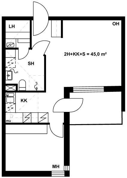
Leikosaarentie 13 B 41
2h+kk+s
, Kerrostalo
45 m2
5/5
Leikosaarentie 13 B 41
2h+kk+s
, Kerrostalo
45 m2
Floor 5/5
Leikosaarentie 13 B 40
2h+kk+s
, Kerrostalo
45 m2
5/5
Leikosaarentie 13 B 40
2h+kk+s
, Kerrostalo
45 m2
Floor 5/5
Leikosaarentie 13 B 37
2h+kk+s
, Kerrostalo
45 m2
4/5
Leikosaarentie 13 B 37
2h+kk+s
, Kerrostalo
45 m2
Floor 4/5
Leikosaarentie 13 B 32
2h+kk+s
, Kerrostalo
45 m2
3/5
Leikosaarentie 13 B 32
2h+kk+s
, Kerrostalo
45 m2
Floor 3/5
Leikosaarentie 13 B 26
2h+kk+s
, Kerrostalo
45 m2
1/5
Leikosaarentie 13 B 26
2h+kk+s
, Kerrostalo
45 m2
Floor 1/5
Leikosaarentie 13 B 33
2h+kk+s
, Kerrostalo
45 m2
3/5
Leikosaarentie 13 B 33
2h+kk+s
, Kerrostalo
45 m2
Floor 3/5
Leikosaarentie 13 B 29
2h+kk+s
, Kerrostalo
45 m2
2/5
Leikosaarentie 13 B 29
2h+kk+s
, Kerrostalo
45 m2
Floor 2/5
Leikosaarentie 13 B 28
2h+kk+s
, Kerrostalo
45 m2
2/5
Leikosaarentie 13 B 28
2h+kk+s
, Kerrostalo
45 m2
Floor 2/5
Leikosaarentie 13 B 36
2h+kk+s
, Kerrostalo
45 m2
4/5
Leikosaarentie 13 B 36
2h+kk+s
, Kerrostalo
45 m2
Floor 4/5
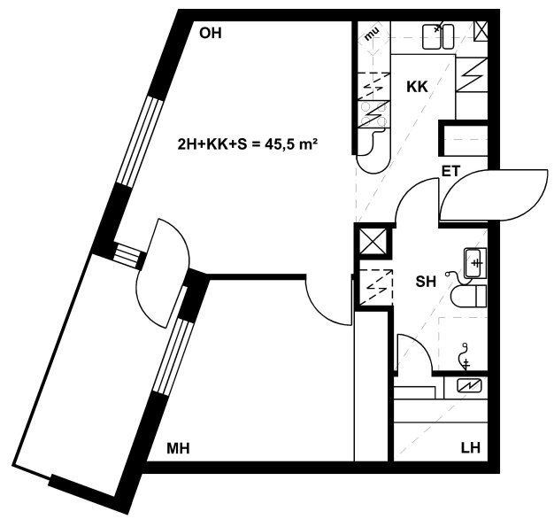
Leikosaarentie 13 A 8
2h+kk+s
, Kerrostalo
45.5 m2
2/5
Leikosaarentie 13 A 8
2h+kk+s
, Kerrostalo
45.5 m2
Floor 2/5
Leikosaarentie 13 A 13
2h+kk+s
, Kerrostalo
45.5 m2
3/5
Leikosaarentie 13 A 13
2h+kk+s
, Kerrostalo
45.5 m2
Floor 3/5
Leikosaarentie 13 A 4
2h+kk+s
, Kerrostalo
45.5 m2
1/5
Leikosaarentie 13 A 4
2h+kk+s
, Kerrostalo
45.5 m2
Floor 1/5
Leikosaarentie 13 A 23
2h+kk+s
, Kerrostalo
45.5 m2
5/5
Leikosaarentie 13 A 23
2h+kk+s
, Kerrostalo
45.5 m2
Floor 5/5
Leikosaarentie 13 A 18
2h+kk+s
, Kerrostalo
45.5 m2
4/5
Leikosaarentie 13 A 18
2h+kk+s
, Kerrostalo
45.5 m2
Floor 4/5
Leikosaarentie 13 A 16
2h+kk+s
, Kerrostalo
46.5 m2
4/5
Leikosaarentie 13 A 16
2h+kk+s
, Kerrostalo
46.5 m2
Floor 4/5
Leikosaarentie 13 A 11
2h+kk+s
, Kerrostalo
46.5 m2
3/5
Leikosaarentie 13 A 11
2h+kk+s
, Kerrostalo
46.5 m2
Floor 3/5
Leikosaarentie 13 A 1
2h+kk+s
, Kerrostalo
46.5 m2
1/5
Leikosaarentie 13 A 1
2h+kk+s
, Kerrostalo
46.5 m2
Floor 1/5
Leikosaarentie 13 A 6
2h+kk+s
, Kerrostalo
46.5 m2
2/5
Leikosaarentie 13 A 6
2h+kk+s
, Kerrostalo
46.5 m2
Floor 2/5
Leikosaarentie 13 A 21
2h+kk+s
, Kerrostalo
46.5 m2
5/5
Leikosaarentie 13 A 21
2h+kk+s
, Kerrostalo
46.5 m2
Floor 5/5
Leikosaarentie 13 A 2
2h+kk+s
, Kerrostalo
46.5 m2
1/5
Leikosaarentie 13 A 2
2h+kk+s
, Kerrostalo
46.5 m2
Floor 1/5
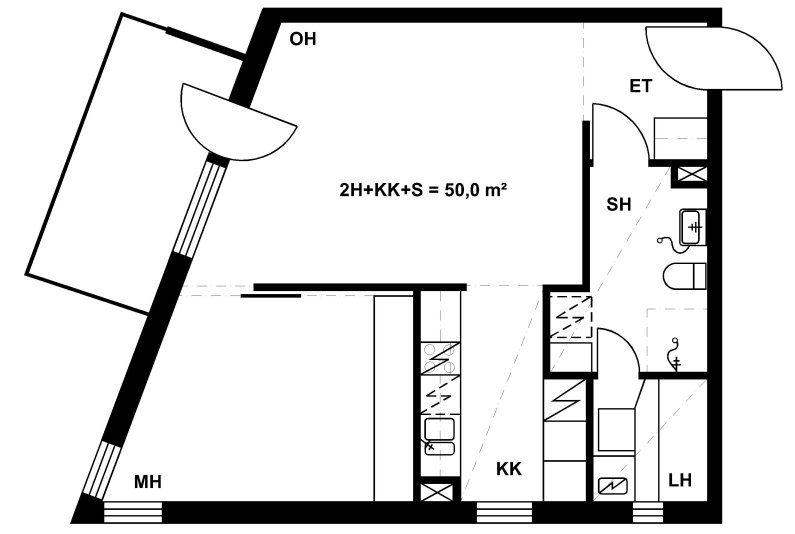
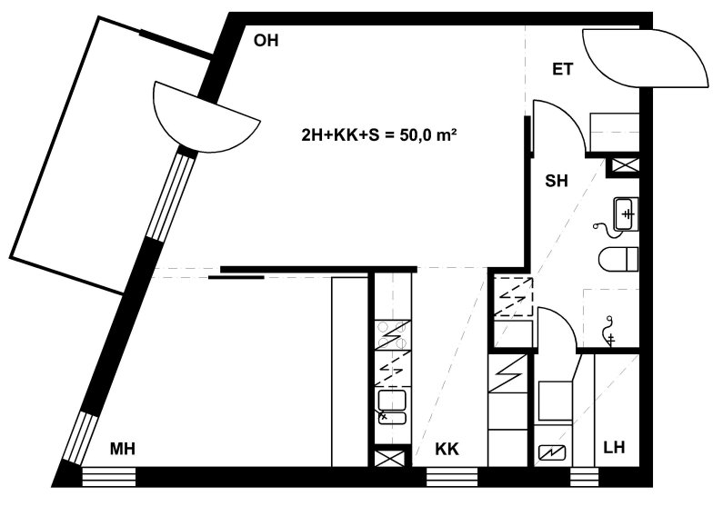
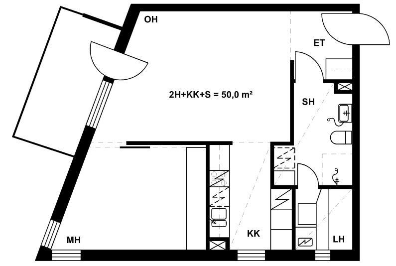
Leikosaarentie 13 A 7
2h+kk+s
, Kerrostalo
50 m2
2/5
Leikosaarentie 13 A 7
2h+kk+s
, Kerrostalo
50 m2
Floor 2/5
Leikosaarentie 13 A 12
2h+kk+s
, Kerrostalo
50 m2
3/5
Leikosaarentie 13 A 12
2h+kk+s
, Kerrostalo
50 m2
Floor 3/5
Leikosaarentie 13 A 17
2h+kk+s
, Kerrostalo
50 m2
Floor 4/5
Leikosaarentie 13 A 22
2h+kk+s
, Kerrostalo
50 m2
5/5
Leikosaarentie 13 A 22
2h+kk+s
, Kerrostalo
50 m2
Floor 5/5
Leikosaarentie 13 A 3
2h+kk+s
, Kerrostalo
50 m2
1/5
Leikosaarentie 13 A 3
2h+kk+s
, Kerrostalo
50 m2
Floor 1/5
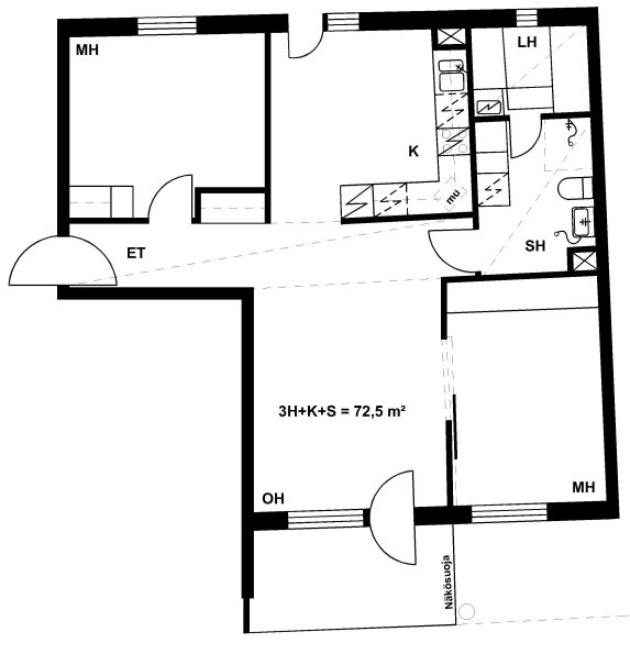
Leikosaarentie 13 C 48
3h+k+s
, Kerrostalo
72.5 m2
3/5
Leikosaarentie 13 C 48
3h+k+s
, Kerrostalo
72.5 m2
Floor 3/5
Leikosaarentie 13 B 31
3h+k+s
, Kerrostalo
72.5 m2
Floor 3/5
Leikosaarentie 13 B 39
3h+k+s
, Kerrostalo
72.5 m2
Floor 5/5
Leikosaarentie 13 B 27
3h+k+s
, Kerrostalo
72.5 m2
2/5
Leikosaarentie 13 B 27
3h+k+s
, Kerrostalo
72.5 m2
Floor 2/5
Leikosaarentie 13 C 52
3h+k+s
, Kerrostalo
72.5 m2
4/5
Leikosaarentie 13 C 52
3h+k+s
, Kerrostalo
72.5 m2
Floor 4/5
Leikosaarentie 13 C 55
3h+k+s
, Kerrostalo
72.5 m2
5/5
Leikosaarentie 13 C 55
3h+k+s
, Kerrostalo
72.5 m2
Floor 5/5
Leikosaarentie 13 B 35
3h+k+s
, Kerrostalo
72.5 m2
4/5
Leikosaarentie 13 B 35
3h+k+s
, Kerrostalo
72.5 m2
Floor 4/5
Leikosaarentie 13 C 44
3h+k+s
, Kerrostalo
72.5 m2
Floor 2/5
Leikosaarentie 13 B 38
3h+k+s
, Kerrostalo
73.5 m2
4/5
Leikosaarentie 13 B 38
3h+k+s
, Kerrostalo
73.5 m2
Floor 4/5
Leikosaarentie 13 B 34
3h+k+s
, Kerrostalo
73.5 m2
3/5
Leikosaarentie 13 B 34
3h+k+s
, Kerrostalo
73.5 m2
Floor 3/5
Leikosaarentie 13 B 42
3h+k+s
, Kerrostalo
73.5 m2
5/5
Leikosaarentie 13 B 42
3h+k+s
, Kerrostalo
73.5 m2
Floor 5/5
Leikosaarentie 13 B 30
3h+k+s
, Kerrostalo
73.5 m2
Floor 2/5
Leikosaarentie 13 C 47
4h+k+s
, Kerrostalo
90.5 m2
Floor 2/5
Leikosaarentie 13 C 54
4h+k+s
, Kerrostalo
90.5 m2
4/5
Leikosaarentie 13 C 54
4h+k+s
, Kerrostalo
90.5 m2
Floor 4/5
Leikosaarentie 13 C 51
4h+k+s
, Kerrostalo
90.5 m2
3/5
Leikosaarentie 13 C 51
4h+k+s
, Kerrostalo
90.5 m2
Floor 3/5
Leikosaarentie 13 C 57
4h+k+s
, Kerrostalo
90.5 m2
5/5
Leikosaarentie 13 C 57
4h+k+s
, Kerrostalo
90.5 m2
Floor 5/5
Leikosaarentie 13 A 20
4h+k+s
, Kerrostalo
92.5 m2
4/5
Leikosaarentie 13 A 20
4h+k+s
, Kerrostalo
92.5 m2
Floor 4/5
Leikosaarentie 13 A 15
4h+k+s
, Kerrostalo
92.5 m2
3/5
Leikosaarentie 13 A 15
4h+k+s
, Kerrostalo
92.5 m2
Floor 3/5
Leikosaarentie 13 A 25
4h+k+s
, Kerrostalo
92.5 m2
5/5
Leikosaarentie 13 A 25
4h+k+s
, Kerrostalo
92.5 m2
Floor 5/5
Leikosaarentie 13 A 10
4h+k+s
, Kerrostalo
92.5 m2
2/5
Leikosaarentie 13 A 10
4h+k+s
, Kerrostalo
92.5 m2
Floor 2/5
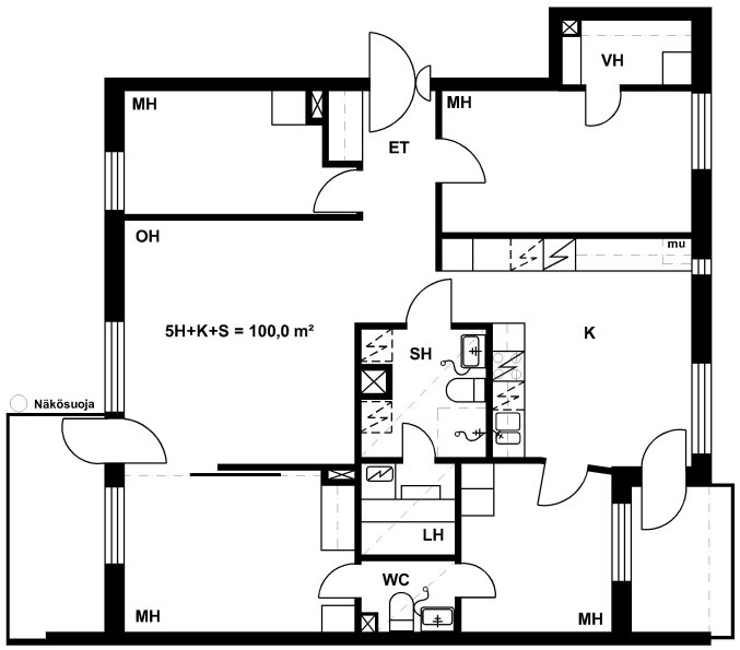
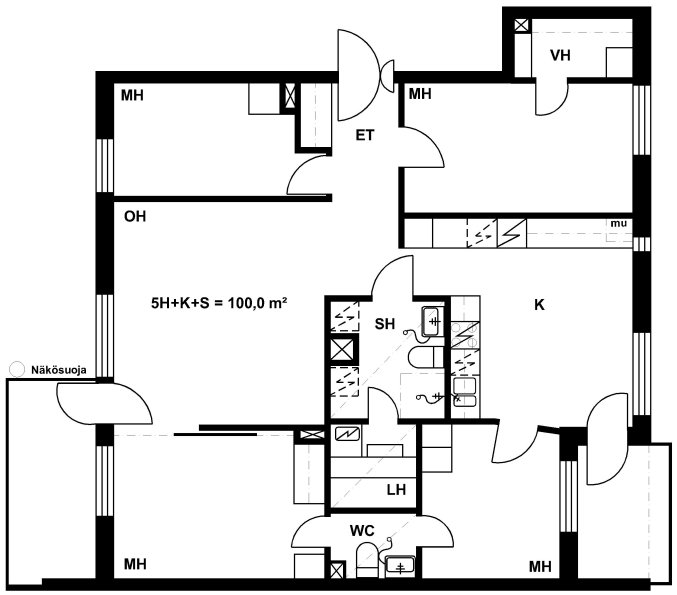
Leikosaarentie 13 C 53
5h+k+s
, Kerrostalo
100 m2
4/5
Leikosaarentie 13 C 53
5h+k+s
, Kerrostalo
100 m2
Floor 4/5
Leikosaarentie 13 C 56
5h+k+s
, Kerrostalo
100 m2
5/5
Leikosaarentie 13 C 56
5h+k+s
, Kerrostalo
100 m2
Floor 5/5


