Kohteen esittely
Leikosaarentie 13 on merellisessä Vuosaaressa sijaitseva viihtyisä kerrostalokohde. Kohde koostuu 57 asunnosta, joiden koot vaihtelevat kaksioista viiden huoneen asuntoihin, 44,5–100 m². Asunnoissa on asumismukavuutta lisäävä huoneistokohtainen ilmanvaihtojärjestelmä. Kohteen asukkailla on käytössään pyykkitupa, kuivaushuone sekä kerhotila. Kohteessa on kaukolämmitys.
Koulut, päiväkodit ja palvelut ovat kohteessa lähellä. Kauppakeskus Columbuksen päivittäispalvelut sekä Vuosaaren metro sijaitsevat noin kilometrin päässä kohteesta. Lähettyvillä on myös ulkoilemaan kutsuva vehreä Kallvikin ulkoilualue.
Miksi Asuntosäätiö?
Me uskomme, että onnellinen koti ja laadukas asuminen kuuluvat kaikille. Emme tavoittele voittoa, vaan käytämme kaikki vastikkeista ja vuokrista saadut tulot toimintamme kehittämiseen. Jo yli 33 000 suomalaista on valinnut Asuntosäätiön tarjoaman kodin. Tiesithän, että myös lemmikit ovat tervetulleita kaikkiin koteihimme!
Rakennuksen tiedot
- Asumismuoto Asokoti
- Keskimääräinen asumisoikeusmaksu / jm² 355,44€
- Hissit 3
- Talosauna Ei
- Pyykkitupa Kyllä
- Kuivaushuone Kyllä
- Asuntoja 57
- Asuinrakennuksia 1
- Käyttövastike / kk / jm² 15,68€
- Valmistumisvuosi 1996
- Porrashuoneet 3
- Energialuokka D
- Lämmitysmuoto Kauko
- Autopaikat 46
- Kerhohuone 1
- Laajakaista DNA Welho
- Antennijärjestelmä Kaapeli
- KaapeliTV DNA
- Kattomateriaali Huopa
- Runkomateriaali Betoni
- Lemmikit Sallittu
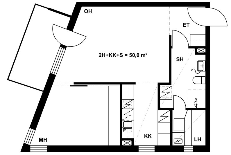
Huoneistot ja pohjakuvat: Leikosaarentie 13, Kerrostalo,
Lisää hakemukselle kaikki haluamasi asuntotyypit. Mahdollisuutesi asunnon saamiseksi paranevat, kun voimme tarjota sinulle kaikkia valitsemasi asuntotyypin asuntoja, jotka mahdollisesti vapautuvat myöhemmin tästä kohteesta. Olet automaattisesti näiden asuntotyyppien hakuprosessissa.
Leikosaarentie 13 C 49
2h+k+s
, Kerrostalo
55 m2
3/5
Leikosaarentie 13 C 49
2h+k+s
, Kerrostalo
55 m2
Kerros 3/5
Leikosaarentie 13 C 45
2h+k+s
, Kerrostalo
55 m2
2/5
Leikosaarentie 13 C 45
2h+k+s
, Kerrostalo
55 m2
Kerros 2/5
Leikosaarentie 13 A 5
2h+k+s
, Kerrostalo
56.5 m2
1/5
Leikosaarentie 13 A 5
2h+k+s
, Kerrostalo
56.5 m2
Kerros 1/5
Leikosaarentie 13 A 19
2h+k+s
, Kerrostalo
56.5 m2
4/5
Leikosaarentie 13 A 19
2h+k+s
, Kerrostalo
56.5 m2
Kerros 4/5
Leikosaarentie 13 A 24
2h+k+s
, Kerrostalo
56.5 m2
5/5
Leikosaarentie 13 A 24
2h+k+s
, Kerrostalo
56.5 m2
Kerros 5/5
Leikosaarentie 13 A 9
2h+k+s
, Kerrostalo
56.5 m2
2/5
Leikosaarentie 13 A 9
2h+k+s
, Kerrostalo
56.5 m2
Kerros 2/5
Leikosaarentie 13 A 14
2h+k+s
, Kerrostalo
56.5 m2
3/5
Leikosaarentie 13 A 14
2h+k+s
, Kerrostalo
56.5 m2
Kerros 3/5
Leikosaarentie 13 C 50
2h+kk+s
, Kerrostalo
44.5 m2
Kerros 3/5
Leikosaarentie 13 C 46
2h+kk+s
, Kerrostalo
44.5 m2
2/5
Leikosaarentie 13 C 46
2h+kk+s
, Kerrostalo
44.5 m2
Kerros 2/5
Leikosaarentie 13 C 43
2h+kk+s
, Kerrostalo
44.5 m2
1/5
Leikosaarentie 13 C 43
2h+kk+s
, Kerrostalo
44.5 m2
Kerros 1/5
Leikosaarentie 13 B 41
2h+kk+s
, Kerrostalo
45 m2
5/5
Leikosaarentie 13 B 41
2h+kk+s
, Kerrostalo
45 m2
Kerros 5/5
Leikosaarentie 13 B 40
2h+kk+s
, Kerrostalo
45 m2
5/5
Leikosaarentie 13 B 40
2h+kk+s
, Kerrostalo
45 m2
Kerros 5/5
Leikosaarentie 13 B 37
2h+kk+s
, Kerrostalo
45 m2
4/5
Leikosaarentie 13 B 37
2h+kk+s
, Kerrostalo
45 m2
Kerros 4/5
Leikosaarentie 13 B 32
2h+kk+s
, Kerrostalo
45 m2
3/5
Leikosaarentie 13 B 32
2h+kk+s
, Kerrostalo
45 m2
Kerros 3/5
Leikosaarentie 13 B 26
2h+kk+s
, Kerrostalo
45 m2
1/5
Leikosaarentie 13 B 26
2h+kk+s
, Kerrostalo
45 m2
Kerros 1/5
Leikosaarentie 13 B 33
2h+kk+s
, Kerrostalo
45 m2
3/5
Leikosaarentie 13 B 33
2h+kk+s
, Kerrostalo
45 m2
Kerros 3/5
Leikosaarentie 13 B 29
2h+kk+s
, Kerrostalo
45 m2
2/5
Leikosaarentie 13 B 29
2h+kk+s
, Kerrostalo
45 m2
Kerros 2/5
Leikosaarentie 13 B 28
2h+kk+s
, Kerrostalo
45 m2
2/5
Leikosaarentie 13 B 28
2h+kk+s
, Kerrostalo
45 m2
Kerros 2/5
Leikosaarentie 13 B 36
2h+kk+s
, Kerrostalo
45 m2
4/5
Leikosaarentie 13 B 36
2h+kk+s
, Kerrostalo
45 m2
Kerros 4/5
Leikosaarentie 13 A 8
2h+kk+s
, Kerrostalo
45.5 m2
Kerros 2/5
Leikosaarentie 13 A 13
2h+kk+s
, Kerrostalo
45.5 m2
3/5
Leikosaarentie 13 A 13
2h+kk+s
, Kerrostalo
45.5 m2
Kerros 3/5
Leikosaarentie 13 A 4
2h+kk+s
, Kerrostalo
45.5 m2
1/5
Leikosaarentie 13 A 4
2h+kk+s
, Kerrostalo
45.5 m2
Kerros 1/5
Leikosaarentie 13 A 23
2h+kk+s
, Kerrostalo
45.5 m2
5/5
Leikosaarentie 13 A 23
2h+kk+s
, Kerrostalo
45.5 m2
Kerros 5/5
Leikosaarentie 13 A 18
2h+kk+s
, Kerrostalo
45.5 m2
4/5
Leikosaarentie 13 A 18
2h+kk+s
, Kerrostalo
45.5 m2
Kerros 4/5
Leikosaarentie 13 A 16
2h+kk+s
, Kerrostalo
46.5 m2
4/5
Leikosaarentie 13 A 16
2h+kk+s
, Kerrostalo
46.5 m2
Kerros 4/5
Leikosaarentie 13 A 11
2h+kk+s
, Kerrostalo
46.5 m2
3/5
Leikosaarentie 13 A 11
2h+kk+s
, Kerrostalo
46.5 m2
Kerros 3/5
Leikosaarentie 13 A 1
2h+kk+s
, Kerrostalo
46.5 m2
1/5
Leikosaarentie 13 A 1
2h+kk+s
, Kerrostalo
46.5 m2
Kerros 1/5
Leikosaarentie 13 A 6
2h+kk+s
, Kerrostalo
46.5 m2
2/5
Leikosaarentie 13 A 6
2h+kk+s
, Kerrostalo
46.5 m2
Kerros 2/5
Leikosaarentie 13 A 21
2h+kk+s
, Kerrostalo
46.5 m2
5/5
Leikosaarentie 13 A 21
2h+kk+s
, Kerrostalo
46.5 m2
Kerros 5/5
Leikosaarentie 13 A 2
2h+kk+s
, Kerrostalo
46.5 m2
1/5
Leikosaarentie 13 A 2
2h+kk+s
, Kerrostalo
46.5 m2
Kerros 1/5
Leikosaarentie 13 A 7
2h+kk+s
, Kerrostalo
50 m2
2/5
Leikosaarentie 13 A 7
2h+kk+s
, Kerrostalo
50 m2
Kerros 2/5
Leikosaarentie 13 A 12
2h+kk+s
, Kerrostalo
50 m2
3/5
Leikosaarentie 13 A 12
2h+kk+s
, Kerrostalo
50 m2
Kerros 3/5
Leikosaarentie 13 A 17
2h+kk+s
, Kerrostalo
50 m2
4/5
Leikosaarentie 13 A 17
2h+kk+s
, Kerrostalo
50 m2
Kerros 4/5
Leikosaarentie 13 A 22
2h+kk+s
, Kerrostalo
50 m2
5/5
Leikosaarentie 13 A 22
2h+kk+s
, Kerrostalo
50 m2
Kerros 5/5
Leikosaarentie 13 A 3
2h+kk+s
, Kerrostalo
50 m2
1/5
Leikosaarentie 13 A 3
2h+kk+s
, Kerrostalo
50 m2
Kerros 1/5
Leikosaarentie 13 C 48
3h+k+s
, Kerrostalo
72.5 m2
3/5
Leikosaarentie 13 C 48
3h+k+s
, Kerrostalo
72.5 m2
Kerros 3/5
Leikosaarentie 13 B 31
3h+k+s
, Kerrostalo
72.5 m2
Kerros 3/5
Leikosaarentie 13 B 39
3h+k+s
, Kerrostalo
72.5 m2
Kerros 5/5
Leikosaarentie 13 B 27
3h+k+s
, Kerrostalo
72.5 m2
2/5
Leikosaarentie 13 B 27
3h+k+s
, Kerrostalo
72.5 m2
Kerros 2/5
Leikosaarentie 13 C 52
3h+k+s
, Kerrostalo
72.5 m2
4/5
Leikosaarentie 13 C 52
3h+k+s
, Kerrostalo
72.5 m2
Kerros 4/5
Leikosaarentie 13 C 55
3h+k+s
, Kerrostalo
72.5 m2
5/5
Leikosaarentie 13 C 55
3h+k+s
, Kerrostalo
72.5 m2
Kerros 5/5
Leikosaarentie 13 B 35
3h+k+s
, Kerrostalo
72.5 m2
4/5
Leikosaarentie 13 B 35
3h+k+s
, Kerrostalo
72.5 m2
Kerros 4/5
Leikosaarentie 13 C 44
3h+k+s
, Kerrostalo
72.5 m2
2/5
Leikosaarentie 13 C 44
3h+k+s
, Kerrostalo
72.5 m2
Kerros 2/5
Leikosaarentie 13 B 38
3h+k+s
, Kerrostalo
73.5 m2
4/5
Leikosaarentie 13 B 38
3h+k+s
, Kerrostalo
73.5 m2
Kerros 4/5
Leikosaarentie 13 B 34
3h+k+s
, Kerrostalo
73.5 m2
3/5
Leikosaarentie 13 B 34
3h+k+s
, Kerrostalo
73.5 m2
Kerros 3/5
Leikosaarentie 13 B 42
3h+k+s
, Kerrostalo
73.5 m2
5/5
Leikosaarentie 13 B 42
3h+k+s
, Kerrostalo
73.5 m2
Kerros 5/5
Leikosaarentie 13 B 30
3h+k+s
, Kerrostalo
73.5 m2
Kerros 2/5
Leikosaarentie 13 C 47
4h+k+s
, Kerrostalo
90.5 m2
Kerros 2/5
Leikosaarentie 13 C 54
4h+k+s
, Kerrostalo
90.5 m2
4/5
Leikosaarentie 13 C 54
4h+k+s
, Kerrostalo
90.5 m2
Kerros 4/5
Leikosaarentie 13 C 51
4h+k+s
, Kerrostalo
90.5 m2
3/5
Leikosaarentie 13 C 51
4h+k+s
, Kerrostalo
90.5 m2
Kerros 3/5
Leikosaarentie 13 C 57
4h+k+s
, Kerrostalo
90.5 m2
5/5
Leikosaarentie 13 C 57
4h+k+s
, Kerrostalo
90.5 m2
Kerros 5/5
Leikosaarentie 13 A 20
4h+k+s
, Kerrostalo
92.5 m2
4/5
Leikosaarentie 13 A 20
4h+k+s
, Kerrostalo
92.5 m2
Kerros 4/5
Leikosaarentie 13 A 15
4h+k+s
, Kerrostalo
92.5 m2
3/5
Leikosaarentie 13 A 15
4h+k+s
, Kerrostalo
92.5 m2
Kerros 3/5
Leikosaarentie 13 A 25
4h+k+s
, Kerrostalo
92.5 m2
5/5
Leikosaarentie 13 A 25
4h+k+s
, Kerrostalo
92.5 m2
Kerros 5/5
Leikosaarentie 13 A 10
4h+k+s
, Kerrostalo
92.5 m2
2/5
Leikosaarentie 13 A 10
4h+k+s
, Kerrostalo
92.5 m2
Kerros 2/5
Leikosaarentie 13 C 53
5h+k+s
, Kerrostalo
100 m2
4/5
Leikosaarentie 13 C 53
5h+k+s
, Kerrostalo
100 m2
Kerros 4/5
Leikosaarentie 13 C 56
5h+k+s
, Kerrostalo
100 m2
5/5
Leikosaarentie 13 C 56
5h+k+s
, Kerrostalo
100 m2
Kerros 5/5


