Property Introduction
Meri-Rastilantie 11 on kolmesta asuinrakennuksesta koostuva kerrostalokohde Helsingin Vuosaaressa. Viihtyisä kohde koostuu 34 asunnosta, jotka ovat kooltaan kaksioita ja kolmioita, 49,5–80 m². Kohteeseen on tehty peruskorjaus vuonna 2023. Sen yhteydessä A- ja C-rappuihin asennetttiin hissit. Asukkailla on käytössään pyykkitupa, kuivaushuone sekä kerhotila. Kohteessa on kaukolämmitys ja omatoimiviherhoito.
Sekä Rastilan että Vuosaaren palvelut ovat kohteessa lähellä. Kohde sijoittuu alle kilometrin päähän Rastilan metroasemasta. Myös lähimmät kaupat löytyvät Rastilan metroaseman tuntumasta. Kauppakeskus Columbuksen päivittäispalvelut ja Vuosaaren metroasema ovat puolestaan noin 2 kilometrin päässä kohteesta. Kohteen kupeessa on myös päiväkoteja, koulu sekä ulkoiluun ihanteellinen puisto.
Why Asuntosäätiö?
We believe that a happy home and quality living are for everyone. We do not seek immediate profit or financial benefit. We use the assets gained from our operations to develop our real estate. Over 33,000 Finns have already chosen a home offered by Asuntosäätiö. Pets are also welcome in all our homes.
Basic house info
- Form of housing Right-of-occupancy
- Average right-of-occupancy payment / jm² 250,36€
- Elevators 2
- House sauna No
- Laundry room Yes
- Drying room Yes
- Apartment count 34
- Building count 3
- Residence charge / month / jm² 16,12€
- Construction year 1993
- Renovated 2023
- Staircases 3
- Energy class E, D
- Heating Kauko
- Parking spaces 34
- Clubroom 1
- Broadband DNA Welho
- TV-antenna system Kaapeli
- CableTV DNA
- Roof material Pelti
- House frame material Betoni
- Pets Allowed
Apartments and floor plans: Meri-Rastilantie 11, Kerrostalo
Add all the apartment types you want to your application. Your opportunity to get an apartment increases when we are able to offer you all of the apartment types that may be available later on in this property. You are automatically in queue for these apartment types.
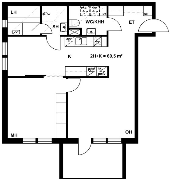
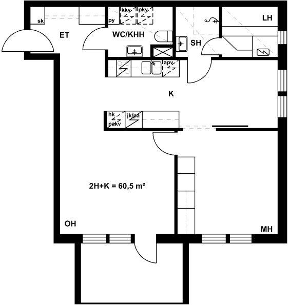
Meri-Rastilan Tie 11 B 13
2h+k+s
, Kerrostalo
60.5 m2
1/2
Meri-Rastilan Tie 11 B 13
2h+k+s
, Kerrostalo
60.5 m2
Floor 1/2
Meri-Rastilan Tie 11 B 18
2h+k+s
, Kerrostalo
60.5 m2
2/2
Meri-Rastilan Tie 11 B 18
2h+k+s
, Kerrostalo
60.5 m2
Floor 2/2
Meri-Rastilan Tie 11 B 15
2h+k+s
, Kerrostalo
60.5 m2
1/2
Meri-Rastilan Tie 11 B 15
2h+k+s
, Kerrostalo
60.5 m2
Floor 1/2
Meri-Rastilan Tie 11 B 20
2h+k+s
, Kerrostalo
60.5 m2
2/2
Meri-Rastilan Tie 11 B 20
2h+k+s
, Kerrostalo
60.5 m2
Floor 2/2
Meri-Rastilan Tie 11 C 31
2h+k+s
, Kerrostalo
60.5 m2
3/3
Meri-Rastilan Tie 11 C 31
2h+k+s
, Kerrostalo
60.5 m2
Floor 3/3
Meri-Rastilan Tie 11 C 33
2h+k+s
, Kerrostalo
60.5 m2
3/3
Meri-Rastilan Tie 11 C 33
2h+k+s
, Kerrostalo
60.5 m2
Floor 3/3
Meri-Rastilan Tie 11 C 26
2h+k+s
, Kerrostalo
60.5 m2
2/3
Meri-Rastilan Tie 11 C 26
2h+k+s
, Kerrostalo
60.5 m2
Floor 2/3
Meri-Rastilan Tie 11 C 23
2h+k+s
, Kerrostalo
60.5 m2
1/3
Meri-Rastilan Tie 11 C 23
2h+k+s
, Kerrostalo
60.5 m2
Floor 1/3
Meri-Rastilan Tie 11 C 28
2h+k+s
, Kerrostalo
60.5 m2
2/3
Meri-Rastilan Tie 11 C 28
2h+k+s
, Kerrostalo
60.5 m2
Floor 2/3
Meri-Rastilan Tie 11 A 8
2h+k+s
, Kerrostalo
60.5 m2
3/3
Meri-Rastilan Tie 11 A 8
2h+k+s
, Kerrostalo
60.5 m2
Floor 3/3
Meri-Rastilan Tie 11 A 10
2h+k+s
, Kerrostalo
60.5 m2
3/3
Meri-Rastilan Tie 11 A 10
2h+k+s
, Kerrostalo
60.5 m2
Floor 3/3
Meri-Rastilan Tie 11 A 3
2h+k+s
, Kerrostalo
60.5 m2
2/3
Meri-Rastilan Tie 11 A 3
2h+k+s
, Kerrostalo
60.5 m2
Floor 2/3
Meri-Rastilan Tie 11 A 5
2h+k+s
, Kerrostalo
60.5 m2
2/3
Meri-Rastilan Tie 11 A 5
2h+k+s
, Kerrostalo
60.5 m2
Floor 2/3
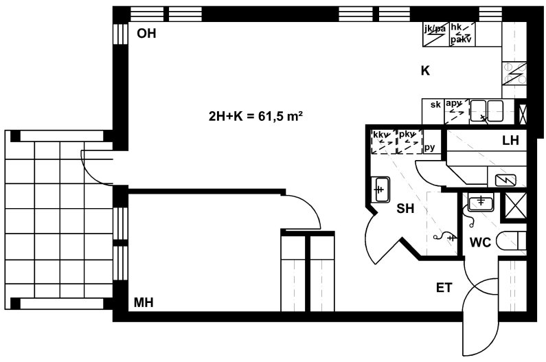
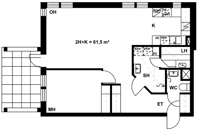
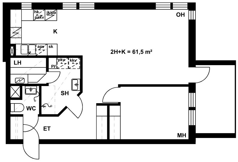
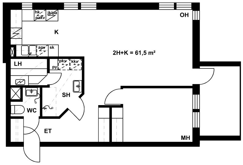
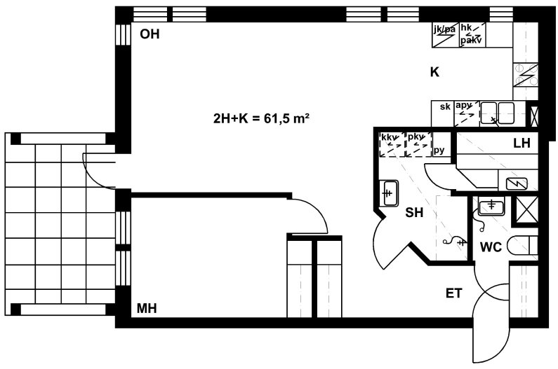
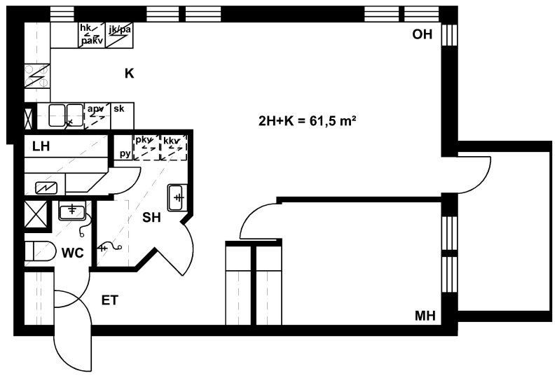
Meri-Rastilan Tie 11 B 21
2h+k+s
, Kerrostalo
61.5 m2
2/2
Meri-Rastilan Tie 11 B 21
2h+k+s
, Kerrostalo
61.5 m2
Floor 2/2
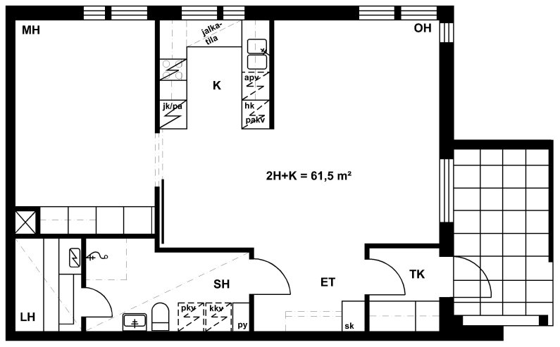
Meri-Rastilan Tie 11 B 16
2h+k+s
, Kerrostalo
61.5 m2
1/2
Meri-Rastilan Tie 11 B 16
2h+k+s
, Kerrostalo
61.5 m2
Floor 1/2
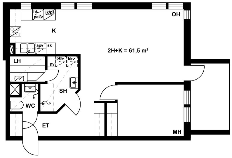
Meri-Rastilan Tie 11 B 17
2h+k+s
, Kerrostalo
61.5 m2
2/2
Meri-Rastilan Tie 11 B 17
2h+k+s
, Kerrostalo
61.5 m2
Floor 2/2
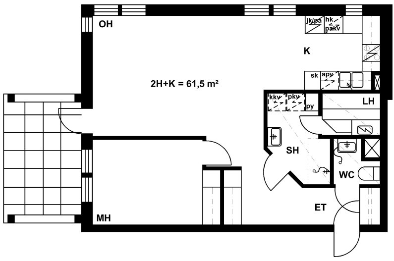
Meri-Rastilan Tie 11 B 12
2h+k+s
, Kerrostalo
61.5 m2
1/2
Meri-Rastilan Tie 11 B 12
2h+k+s
, Kerrostalo
61.5 m2
Floor 1/2
Meri-Rastilan Tie 11 C 29
2h+k+s
, Kerrostalo
61.5 m2
2/3
Meri-Rastilan Tie 11 C 29
2h+k+s
, Kerrostalo
61.5 m2
Floor 2/3
Meri-Rastilan Tie 11 C 24
2h+k+s
, Kerrostalo
61.5 m2
1/3
Meri-Rastilan Tie 11 C 24
2h+k+s
, Kerrostalo
61.5 m2
Floor 1/3
Meri-Rastilan Tie 11 C 34
2h+k+s
, Kerrostalo
61.5 m2
3/3
Meri-Rastilan Tie 11 C 34
2h+k+s
, Kerrostalo
61.5 m2
Floor 3/3
Meri-Rastilan Tie 11 A 1
2h+k+s
, Kerrostalo
61.5 m2
1/3
Meri-Rastilan Tie 11 A 1
2h+k+s
, Kerrostalo
61.5 m2
Floor 1/3
Meri-Rastilan Tie 11 A 6
2h+k+s
, Kerrostalo
61.5 m2
2/3
Meri-Rastilan Tie 11 A 6
2h+k+s
, Kerrostalo
61.5 m2
Floor 2/3
Meri-Rastilan Tie 11 A 11
2h+k+s
, Kerrostalo
61.5 m2
3/3
Meri-Rastilan Tie 11 A 11
2h+k+s
, Kerrostalo
61.5 m2
Floor 3/3
Meri-Rastilan Tie 11 B 14
2h+kk+s
, Kerrostalo
49.5 m2
1/2
Meri-Rastilan Tie 11 B 14
2h+kk+s
, Kerrostalo
49.5 m2
Floor 1/2
Meri-Rastilan Tie 11 B 19
2h+kk+s
, Kerrostalo
49.5 m2
2/2
Meri-Rastilan Tie 11 B 19
2h+kk+s
, Kerrostalo
49.5 m2
Floor 2/2
Meri-Rastilan Tie 11 C 27
2h+kk+s
, Kerrostalo
49.5 m2
2/3
Meri-Rastilan Tie 11 C 27
2h+kk+s
, Kerrostalo
49.5 m2
Floor 2/3
Meri-Rastilan Tie 11 C 32
2h+kk+s
, Kerrostalo
49.5 m2
3/3
Meri-Rastilan Tie 11 C 32
2h+kk+s
, Kerrostalo
49.5 m2
Floor 3/3
Meri-Rastilan Tie 11 C 22
2h+kk+s
, Kerrostalo
49.5 m2
1/3
Meri-Rastilan Tie 11 C 22
2h+kk+s
, Kerrostalo
49.5 m2
Floor 1/3
Meri-Rastilan Tie 11 A 4
2h+kk+s
, Kerrostalo
49.5 m2
2/3
Meri-Rastilan Tie 11 A 4
2h+kk+s
, Kerrostalo
49.5 m2
Floor 2/3
Meri-Rastilan Tie 11 A 9
2h+kk+s
, Kerrostalo
49.5 m2
3/3
Meri-Rastilan Tie 11 A 9
2h+kk+s
, Kerrostalo
49.5 m2
Floor 3/3
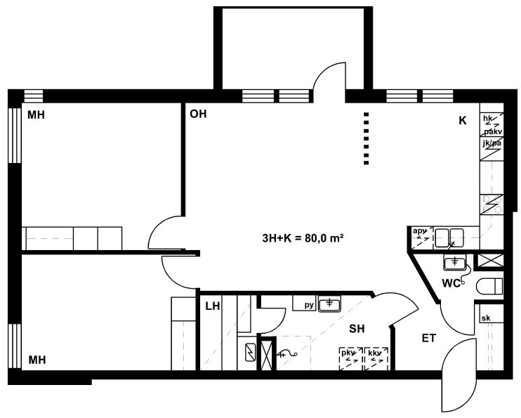
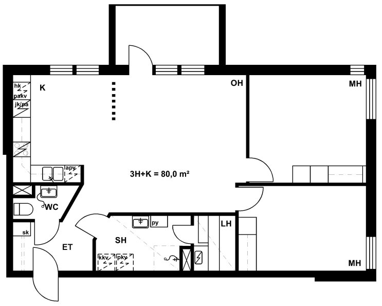
Meri-Rastilan Tie 11 C 30
3h+k+s
, Kerrostalo
80 m2
3/3
Meri-Rastilan Tie 11 C 30
3h+k+s
, Kerrostalo
80 m2
Floor 3/3
Meri-Rastilan Tie 11 C 25
3h+k+s
, Kerrostalo
80 m2
2/3
Meri-Rastilan Tie 11 C 25
3h+k+s
, Kerrostalo
80 m2
Floor 2/3
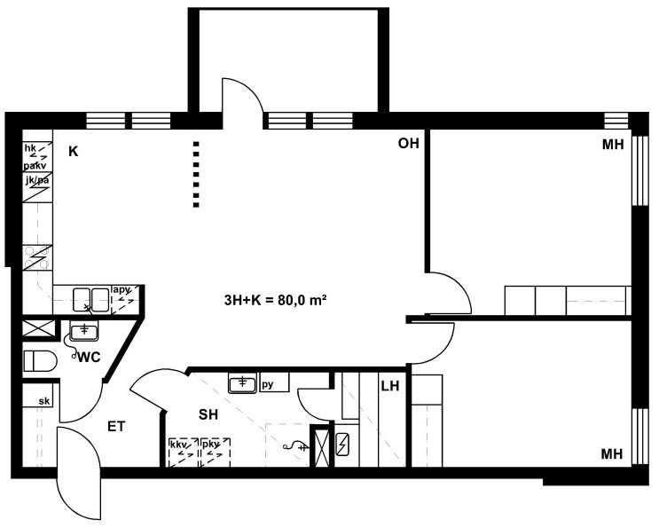
Meri-Rastilan Tie 11 A 7
3h+k+s
, Kerrostalo
80 m2
3/3
Meri-Rastilan Tie 11 A 7
3h+k+s
, Kerrostalo
80 m2
Floor 3/3
Meri-Rastilan Tie 11 A 2
3h+k+s
, Kerrostalo
80 m2
2/3
Meri-Rastilan Tie 11 A 2
3h+k+s
, Kerrostalo
80 m2
Floor 2/3
