Kohteen esittely
Meri-Rastilantie 11 on kolmesta asuinrakennuksesta koostuva kerrostalokohde Helsingin Vuosaaressa. Viihtyisä kohde koostuu 34 asunnosta, jotka ovat kooltaan kaksioita ja kolmioita, 49,5–80 m². Kohteeseen on tehty peruskorjaus vuonna 2023. Sen yhteydessä A- ja C-rappuihin asennetttiin hissit. Asukkailla on käytössään pyykkitupa, kuivaushuone sekä kerhotila. Kohteessa on kaukolämmitys ja omatoimiviherhoito.
Sekä Rastilan että Vuosaaren palvelut ovat kohteessa lähellä. Kohde sijoittuu alle kilometrin päähän Rastilan metroasemasta. Myös lähimmät kaupat löytyvät Rastilan metroaseman tuntumasta. Kauppakeskus Columbuksen päivittäispalvelut ja Vuosaaren metroasema ovat puolestaan noin 2 kilometrin päässä kohteesta. Kohteen kupeessa on myös päiväkoteja, koulu sekä ulkoiluun ihanteellinen puisto.
Miksi Asuntosäätiö?
Me uskomme, että onnellinen koti ja laadukas asuminen kuuluvat kaikille. Emme tavoittele voittoa, vaan käytämme kaikki vastikkeista ja vuokrista saadut tulot toimintamme kehittämiseen. Jo yli 33 000 suomalaista on valinnut Asuntosäätiön tarjoaman kodin. Tiesithän, että myös lemmikit ovat tervetulleita kaikkiin koteihimme!
Rakennuksen tiedot
- Asumismuoto Asokoti
- Keskimääräinen asumisoikeusmaksu / jm² 250,36€
- Hissit 2
- Talosauna Ei
- Pyykkitupa Kyllä
- Kuivaushuone Kyllä
- Asuntoja 34
- Asuinrakennuksia 3
- Käyttövastike / kk / jm² 16,12€
- Valmistumisvuosi 1993
- Peruskorjattu 2023
- Porrashuoneet 3
- Energialuokka E, D
- Lämmitysmuoto Kauko
- Autopaikat 34
- Kerhohuone 1
- Laajakaista DNA Welho
- Antennijärjestelmä Kaapeli
- KaapeliTV DNA
- Kattomateriaali Pelti
- Runkomateriaali Betoni
- Lemmikit Sallittu
Huoneistot ja pohjakuvat: Meri-Rastilantie 11, Kerrostalo
Lisää hakemukselle kaikki haluamasi asuntotyypit. Mahdollisuutesi asunnon saamiseksi paranevat, kun voimme tarjota sinulle kaikkia valitsemasi asuntotyypin asuntoja, jotka mahdollisesti vapautuvat myöhemmin tästä kohteesta. Olet automaattisesti näiden asuntotyyppien hakuprosessissa.
Meri-Rastilan Tie 11 B 13
2h+k+s
, Kerrostalo
60.5 m2
1/2
Meri-Rastilan Tie 11 B 13
2h+k+s
, Kerrostalo
60.5 m2
Kerros 1/2
Meri-Rastilan Tie 11 B 18
2h+k+s
, Kerrostalo
60.5 m2
2/2
Meri-Rastilan Tie 11 B 18
2h+k+s
, Kerrostalo
60.5 m2
Kerros 2/2
Meri-Rastilan Tie 11 B 15
2h+k+s
, Kerrostalo
60.5 m2
1/2
Meri-Rastilan Tie 11 B 15
2h+k+s
, Kerrostalo
60.5 m2
Kerros 1/2
Meri-Rastilan Tie 11 B 20
2h+k+s
, Kerrostalo
60.5 m2
2/2
Meri-Rastilan Tie 11 B 20
2h+k+s
, Kerrostalo
60.5 m2
Kerros 2/2
Meri-Rastilan Tie 11 C 31
2h+k+s
, Kerrostalo
60.5 m2
3/3
Meri-Rastilan Tie 11 C 31
2h+k+s
, Kerrostalo
60.5 m2
Kerros 3/3
Meri-Rastilan Tie 11 C 33
2h+k+s
, Kerrostalo
60.5 m2
3/3
Meri-Rastilan Tie 11 C 33
2h+k+s
, Kerrostalo
60.5 m2
Kerros 3/3
Meri-Rastilan Tie 11 C 26
2h+k+s
, Kerrostalo
60.5 m2
2/3
Meri-Rastilan Tie 11 C 26
2h+k+s
, Kerrostalo
60.5 m2
Kerros 2/3
Meri-Rastilan Tie 11 C 23
2h+k+s
, Kerrostalo
60.5 m2
1/3
Meri-Rastilan Tie 11 C 23
2h+k+s
, Kerrostalo
60.5 m2
Kerros 1/3
Meri-Rastilan Tie 11 C 28
2h+k+s
, Kerrostalo
60.5 m2
2/3
Meri-Rastilan Tie 11 C 28
2h+k+s
, Kerrostalo
60.5 m2
Kerros 2/3
Meri-Rastilan Tie 11 A 8
2h+k+s
, Kerrostalo
60.5 m2
3/3
Meri-Rastilan Tie 11 A 8
2h+k+s
, Kerrostalo
60.5 m2
Kerros 3/3
Meri-Rastilan Tie 11 A 10
2h+k+s
, Kerrostalo
60.5 m2
3/3
Meri-Rastilan Tie 11 A 10
2h+k+s
, Kerrostalo
60.5 m2
Kerros 3/3
Meri-Rastilan Tie 11 A 3
2h+k+s
, Kerrostalo
60.5 m2
2/3
Meri-Rastilan Tie 11 A 3
2h+k+s
, Kerrostalo
60.5 m2
Kerros 2/3
Meri-Rastilan Tie 11 A 5
2h+k+s
, Kerrostalo
60.5 m2
2/3
Meri-Rastilan Tie 11 A 5
2h+k+s
, Kerrostalo
60.5 m2
Kerros 2/3
Meri-Rastilan Tie 11 B 21
2h+k+s
, Kerrostalo
61.5 m2
2/2
Meri-Rastilan Tie 11 B 21
2h+k+s
, Kerrostalo
61.5 m2
Kerros 2/2
Meri-Rastilan Tie 11 B 16
2h+k+s
, Kerrostalo
61.5 m2
1/2
Meri-Rastilan Tie 11 B 16
2h+k+s
, Kerrostalo
61.5 m2
Kerros 1/2
Meri-Rastilan Tie 11 B 17
2h+k+s
, Kerrostalo
61.5 m2
2/2
Meri-Rastilan Tie 11 B 17
2h+k+s
, Kerrostalo
61.5 m2
Kerros 2/2
Meri-Rastilan Tie 11 B 12
2h+k+s
, Kerrostalo
61.5 m2
1/2
Meri-Rastilan Tie 11 B 12
2h+k+s
, Kerrostalo
61.5 m2
Kerros 1/2
Meri-Rastilan Tie 11 C 29
2h+k+s
, Kerrostalo
61.5 m2
2/3
Meri-Rastilan Tie 11 C 29
2h+k+s
, Kerrostalo
61.5 m2
Kerros 2/3
Meri-Rastilan Tie 11 C 24
2h+k+s
, Kerrostalo
61.5 m2
1/3
Meri-Rastilan Tie 11 C 24
2h+k+s
, Kerrostalo
61.5 m2
Kerros 1/3
Meri-Rastilan Tie 11 C 34
2h+k+s
, Kerrostalo
61.5 m2
3/3
Meri-Rastilan Tie 11 C 34
2h+k+s
, Kerrostalo
61.5 m2
Kerros 3/3
Meri-Rastilan Tie 11 A 1
2h+k+s
, Kerrostalo
61.5 m2
1/3
Meri-Rastilan Tie 11 A 1
2h+k+s
, Kerrostalo
61.5 m2
Kerros 1/3
Meri-Rastilan Tie 11 A 6
2h+k+s
, Kerrostalo
61.5 m2
2/3
Meri-Rastilan Tie 11 A 6
2h+k+s
, Kerrostalo
61.5 m2
Kerros 2/3
Meri-Rastilan Tie 11 A 11
2h+k+s
, Kerrostalo
61.5 m2
3/3
Meri-Rastilan Tie 11 A 11
2h+k+s
, Kerrostalo
61.5 m2
Kerros 3/3
Meri-Rastilan Tie 11 B 14
2h+kk+s
, Kerrostalo
49.5 m2
1/2
Meri-Rastilan Tie 11 B 14
2h+kk+s
, Kerrostalo
49.5 m2
Kerros 1/2
Meri-Rastilan Tie 11 B 19
2h+kk+s
, Kerrostalo
49.5 m2
2/2
Meri-Rastilan Tie 11 B 19
2h+kk+s
, Kerrostalo
49.5 m2
Kerros 2/2
Meri-Rastilan Tie 11 C 27
2h+kk+s
, Kerrostalo
49.5 m2
2/3
Meri-Rastilan Tie 11 C 27
2h+kk+s
, Kerrostalo
49.5 m2
Kerros 2/3
Meri-Rastilan Tie 11 C 32
2h+kk+s
, Kerrostalo
49.5 m2
3/3
Meri-Rastilan Tie 11 C 32
2h+kk+s
, Kerrostalo
49.5 m2
Kerros 3/3
Meri-Rastilan Tie 11 C 22
2h+kk+s
, Kerrostalo
49.5 m2
1/3
Meri-Rastilan Tie 11 C 22
2h+kk+s
, Kerrostalo
49.5 m2
Kerros 1/3
Meri-Rastilan Tie 11 A 4
2h+kk+s
, Kerrostalo
49.5 m2
2/3
Meri-Rastilan Tie 11 A 4
2h+kk+s
, Kerrostalo
49.5 m2
Kerros 2/3
Meri-Rastilan Tie 11 A 9
2h+kk+s
, Kerrostalo
49.5 m2
3/3
Meri-Rastilan Tie 11 A 9
2h+kk+s
, Kerrostalo
49.5 m2
Kerros 3/3
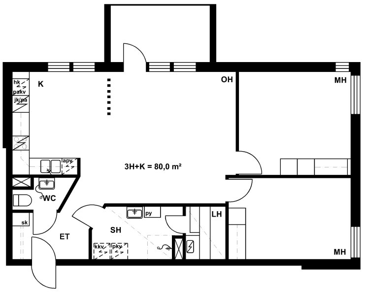
Meri-Rastilan Tie 11 C 30
3h+k+s
, Kerrostalo
80 m2
3/3
Meri-Rastilan Tie 11 C 30
3h+k+s
, Kerrostalo
80 m2
Kerros 3/3
Meri-Rastilan Tie 11 C 25
3h+k+s
, Kerrostalo
80 m2
2/3
Meri-Rastilan Tie 11 C 25
3h+k+s
, Kerrostalo
80 m2
Kerros 2/3
Meri-Rastilan Tie 11 A 7
3h+k+s
, Kerrostalo
80 m2
3/3
Meri-Rastilan Tie 11 A 7
3h+k+s
, Kerrostalo
80 m2
Kerros 3/3
Meri-Rastilan Tie 11 A 2
3h+k+s
, Kerrostalo
80 m2
2/3
Meri-Rastilan Tie 11 A 2
3h+k+s
, Kerrostalo
80 m2
Kerros 2/3
