Property Introduction
Pienen Villasaaren tie 11 on lapsiystävällisellä alueella sijaitseva rivitalokohde Vuosaaressa. Kohde koostuu 20 asunnosta, jotka ovat kooltaan kolmioita sekä neljän ja viiden huoneen asuntoja, 79,5–116 m². Asuntojen pohjaratkaisut ovat persoonallisia, ja ne mukautuvat erilaisiin elämäntilanteisiin. Kohteessa on kaukolämmitys.
Kohde sijaitsee vehreällä alueella, jossa lähettyvillä on useita puistoja ja leikkipaikkoja. Liikuntamahdollisuuksia tarjoavat myös läheltä löytyvä frisbeegolfrata sekä Vuosaaren jäähalli. Kohteen kupeessa on kauppa. Vuosaaren metroasemalle pääsee kohteesta autolla alle 10 minuutissa, ja ajomatka Helsinkiin puolestaan taittuu 30 minuutissa.
Why Asuntosäätiö?
We believe that a happy home and quality living are for everyone. We do not seek immediate profit or financial benefit. We use the assets gained from our operations to develop our real estate. Over 33,000 Finns have already chosen a home offered by Asuntosäätiö. Pets are also welcome in all our homes.
Basic house info
- Form of housing Right-of-occupancy
- Average right-of-occupancy payment / jm² 395,36€
- Elevators No
- House sauna No
- Apartment count 20
- Building count 5
- Residence charge / month / jm² 14,51€
- Construction year 2002
- Energy class D
- Heating Kauko
- Parking spaces 20
- Broadband DNA Welho
- TV-antenna system Kaapeli
- CableTV DNA
- Roof material Pelti
- House frame material Betoni
- Pets Allowed
Apartments and floor plans: Pienen Villasaaren tie 11, Rivitalo
Add all the apartment types you want to your application. Your opportunity to get an apartment increases when we are able to offer you all of the apartment types that may be available later on in this property. You are automatically in queue for these apartment types.
Pienenvillasaarentie 11 B 9
3h+k+s
, Rivitalo
79.5 m2
1/2
Pienenvillasaarentie 11 B 9
3h+k+s
, Rivitalo
79.5 m2
Floor 1/2
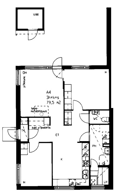
Pienenvillasaarentie 11 A 4
3h+k+s
, Rivitalo
79.5 m2
1/2
Pienenvillasaarentie 11 A 4
3h+k+s
, Rivitalo
79.5 m2
Floor 1/2
Pienenvillasaarentie 11 B 5
4h+k+s
, Rivitalo
102 m2
1-2/2
Pienenvillasaarentie 11 B 5
4h+k+s
, Rivitalo
102 m2
Floor 1-2/2
Pienenvillasaarentie 11 B 6
4h+k+s
, Rivitalo
102 m2
1-2/2
Pienenvillasaarentie 11 B 6
4h+k+s
, Rivitalo
102 m2
Floor 1-2/2
Pienenvillasaarentie 11 B 8
4h+k+s
, Rivitalo
102 m2
1-2/2
Pienenvillasaarentie 11 B 8
4h+k+s
, Rivitalo
102 m2
Floor 1-2/2
Pienenvillasaarentie 11 B 7
4h+k+s
, Rivitalo
102 m2
1-2/2
Pienenvillasaarentie 11 B 7
4h+k+s
, Rivitalo
102 m2
Floor 1-2/2
Pienenvillasaarentie 11 C 13
4h+k+s
, Rivitalo
113 m2
1-2/2
Pienenvillasaarentie 11 C 13
4h+k+s
, Rivitalo
113 m2
Floor 1-2/2
Pienenvillasaarentie 11 A 3
5h+k+s
, Rivitalo
102 m2
1-2/2
Pienenvillasaarentie 11 A 3
5h+k+s
, Rivitalo
102 m2
Floor 1-2/2
Pienenvillasaarentie 11 A 1
5h+k+s
, Rivitalo
102 m2
1-2/2
Pienenvillasaarentie 11 A 1
5h+k+s
, Rivitalo
102 m2
Floor 1-2/2
Pienenvillasaarentie 11 A 2
5h+k+s
, Rivitalo
102 m2
1-2/2
Pienenvillasaarentie 11 A 2
5h+k+s
, Rivitalo
102 m2
Floor 1-2/2
Pienenvillasaarentie 11 C 10
5h+k+s
, Rivitalo
112 m2
1-2/2
Pienenvillasaarentie 11 C 10
5h+k+s
, Rivitalo
112 m2
Floor 1-2/2
Pienenvillasaarentie 11 C 16
5h+k+s
, Rivitalo
113 m2
1-2/2
Pienenvillasaarentie 11 C 16
5h+k+s
, Rivitalo
113 m2
Floor 1-2/2
Pienenvillasaarentie 11 C 12
5h+k+s
, Rivitalo
113 m2
1-2/2
Pienenvillasaarentie 11 C 12
5h+k+s
, Rivitalo
113 m2
Floor 1-2/2
Pienenvillasaarentie 11 C 14
5h+k+s
, Rivitalo
113 m2
1-2/2
Pienenvillasaarentie 11 C 14
5h+k+s
, Rivitalo
113 m2
Floor 1-2/2
Pienenvillasaarentie 11 C 15
5h+k+s
, Rivitalo
113 m2
1-2/2
Pienenvillasaarentie 11 C 15
5h+k+s
, Rivitalo
113 m2
Floor 1-2/2
Pienenvillasaarentie 11 C 11
5h+k+s
, Rivitalo
113 m2
1-2/2
Pienenvillasaarentie 11 C 11
5h+k+s
, Rivitalo
113 m2
Floor 1-2/2
Pienenvillasaarentie 11 D 17
5h+k+s
, Rivitalo
116.5 m2
1-2/2
Pienenvillasaarentie 11 D 17
5h+k+s
, Rivitalo
116.5 m2
Floor 1-2/2
Pienenvillasaarentie 11 D 18
5h+k+s
, Rivitalo
116.5 m2
1-2/2
Pienenvillasaarentie 11 D 18
5h+k+s
, Rivitalo
116.5 m2
Floor 1-2/2
Pienenvillasaarentie 11 E 19
5h+k+s
, Rivitalo
116.5 m2
1-2/2
Pienenvillasaarentie 11 E 19
5h+k+s
, Rivitalo
116.5 m2
Floor 1-2/2
Pienenvillasaarentie 11 E 20
5h+k+s
, Rivitalo
116.5 m2
1-2/2
Pienenvillasaarentie 11 E 20
5h+k+s
, Rivitalo
116.5 m2
Floor 1-2/2