Kohteen esittely
Pienen Villasaaren tie 11 on lapsiystävällisellä alueella sijaitseva rivitalokohde Vuosaaressa. Kohde koostuu 20 asunnosta, jotka ovat kooltaan kolmioita sekä neljän ja viiden huoneen asuntoja, 79,5–116 m². Asuntojen pohjaratkaisut ovat persoonallisia, ja ne mukautuvat erilaisiin elämäntilanteisiin. Kohteessa on kaukolämmitys.
Kohde sijaitsee vehreällä alueella, jossa lähettyvillä on useita puistoja ja leikkipaikkoja. Liikuntamahdollisuuksia tarjoavat myös läheltä löytyvä frisbeegolfrata sekä Vuosaaren jäähalli. Kohteen kupeessa on kauppa. Vuosaaren metroasemalle pääsee kohteesta autolla alle 10 minuutissa, ja ajomatka Helsinkiin puolestaan taittuu 30 minuutissa.
Miksi Asuntosäätiö?
Me uskomme, että onnellinen koti ja laadukas asuminen kuuluvat kaikille. Emme tavoittele voittoa, vaan käytämme kaikki vastikkeista ja vuokrista saadut tulot toimintamme kehittämiseen. Jo yli 33 000 suomalaista on valinnut Asuntosäätiön tarjoaman kodin. Tiesithän, että myös lemmikit ovat tervetulleita kaikkiin koteihimme!
Rakennuksen tiedot
- Asumismuoto Asokoti
- Keskimääräinen asumisoikeusmaksu / jm² 395,36€
- Hissit Ei
- Talosauna Ei
- Asuntoja 20
- Asuinrakennuksia 5
- Käyttövastike / kk / jm² 14,44€
- Valmistumisvuosi 2002
- Energialuokka D
- Lämmitysmuoto Kauko
- Autopaikat 20
- Laajakaista DNA Welho
- Antennijärjestelmä Kaapeli
- KaapeliTV DNA
- Kattomateriaali Pelti
- Runkomateriaali Betoni
- Lemmikit Sallittu
Huoneistot ja pohjakuvat: Pienen Villasaaren tie 11, Rivitalo
Lisää hakemukselle kaikki haluamasi asuntotyypit. Mahdollisuutesi asunnon saamiseksi paranevat, kun voimme tarjota sinulle kaikkia valitsemasi asuntotyypin asuntoja, jotka mahdollisesti vapautuvat myöhemmin tästä kohteesta. Olet automaattisesti näiden asuntotyyppien hakuprosessissa.
Pienenvillasaarentie 11 B 9
3h+k+s
, Rivitalo
79.5 m2
1/2
Pienenvillasaarentie 11 B 9
3h+k+s
, Rivitalo
79.5 m2
Kerros 1/2
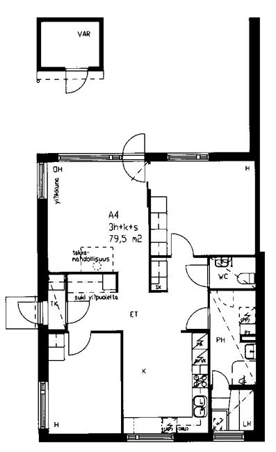
Pienenvillasaarentie 11 A 4
3h+k+s
, Rivitalo
79.5 m2
1/2
Pienenvillasaarentie 11 A 4
3h+k+s
, Rivitalo
79.5 m2
Kerros 1/2
Pienenvillasaarentie 11 B 5
4h+k+s
, Rivitalo
102 m2
1-2/2
Pienenvillasaarentie 11 B 5
4h+k+s
, Rivitalo
102 m2
Kerros 1-2/2
Pienenvillasaarentie 11 B 6
4h+k+s
, Rivitalo
102 m2
1-2/2
Pienenvillasaarentie 11 B 6
4h+k+s
, Rivitalo
102 m2
Kerros 1-2/2
Pienenvillasaarentie 11 B 8
4h+k+s
, Rivitalo
102 m2
1-2/2
Pienenvillasaarentie 11 B 8
4h+k+s
, Rivitalo
102 m2
Kerros 1-2/2
Pienenvillasaarentie 11 B 7
4h+k+s
, Rivitalo
102 m2
1-2/2
Pienenvillasaarentie 11 B 7
4h+k+s
, Rivitalo
102 m2
Kerros 1-2/2
Pienenvillasaarentie 11 C 14
4h+k+s
, Rivitalo
113 m2
1-2/2
Pienenvillasaarentie 11 C 14
4h+k+s
, Rivitalo
113 m2
Kerros 1-2/2
Pienenvillasaarentie 11 C 13
4h+k+s
, Rivitalo
113 m2
1-2/2
Pienenvillasaarentie 11 C 13
4h+k+s
, Rivitalo
113 m2
Kerros 1-2/2
Pienenvillasaarentie 11 A 3
5h+k+s
, Rivitalo
102 m2
1-2/2
Pienenvillasaarentie 11 A 3
5h+k+s
, Rivitalo
102 m2
Kerros 1-2/2
Pienenvillasaarentie 11 A 1
5h+k+s
, Rivitalo
102 m2
1-2/2
Pienenvillasaarentie 11 A 1
5h+k+s
, Rivitalo
102 m2
Kerros 1-2/2
Pienenvillasaarentie 11 A 2
5h+k+s
, Rivitalo
102 m2
1-2/2
Pienenvillasaarentie 11 A 2
5h+k+s
, Rivitalo
102 m2
Kerros 1-2/2
Pienenvillasaarentie 11 C 10
5h+k+s
, Rivitalo
112 m2
1-2/2
Pienenvillasaarentie 11 C 10
5h+k+s
, Rivitalo
112 m2
Kerros 1-2/2
Pienenvillasaarentie 11 C 16
5h+k+s
, Rivitalo
113 m2
1-2/2
Pienenvillasaarentie 11 C 16
5h+k+s
, Rivitalo
113 m2
Kerros 1-2/2
Pienenvillasaarentie 11 C 12
5h+k+s
, Rivitalo
113 m2
1-2/2
Pienenvillasaarentie 11 C 12
5h+k+s
, Rivitalo
113 m2
Kerros 1-2/2
Pienenvillasaarentie 11 C 15
5h+k+s
, Rivitalo
113 m2
1-2/2
Pienenvillasaarentie 11 C 15
5h+k+s
, Rivitalo
113 m2
Kerros 1-2/2
Pienenvillasaarentie 11 C 11
5h+k+s
, Rivitalo
113 m2
1-2/2
Pienenvillasaarentie 11 C 11
5h+k+s
, Rivitalo
113 m2
Kerros 1-2/2
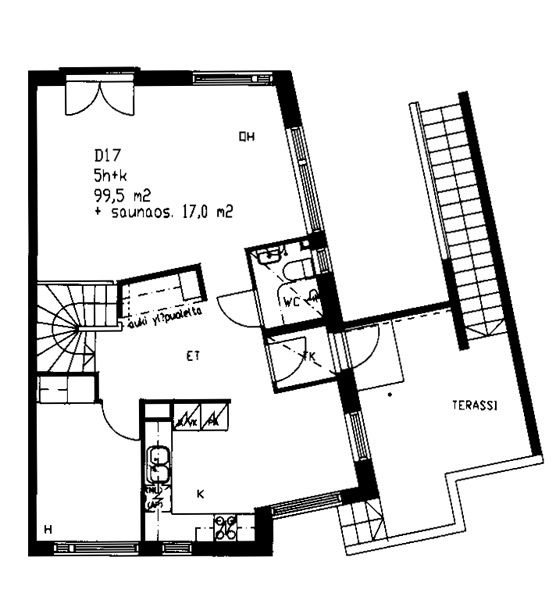
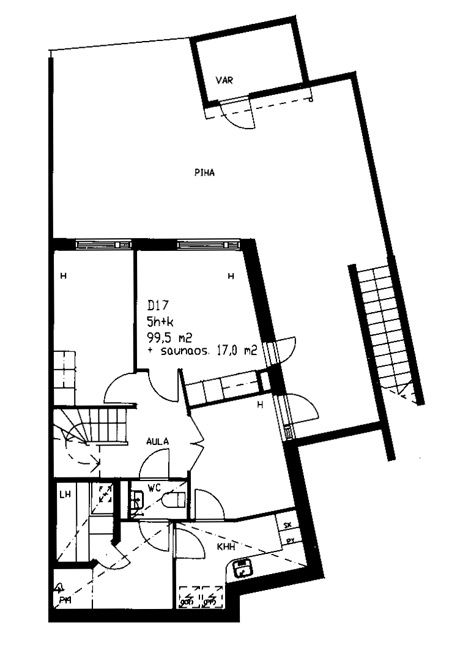
Pienenvillasaarentie 11 D 17
5h+k+s
, Rivitalo
116.5 m2
1-2/2
Pienenvillasaarentie 11 D 17
5h+k+s
, Rivitalo
116.5 m2
Kerros 1-2/2
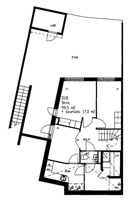
Pienenvillasaarentie 11 D 18
5h+k+s
, Rivitalo
116.5 m2
1-2/2
Pienenvillasaarentie 11 D 18
5h+k+s
, Rivitalo
116.5 m2
Kerros 1-2/2
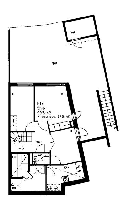
Pienenvillasaarentie 11 E 19
5h+k+s
, Rivitalo
116.5 m2
1-2/2
Pienenvillasaarentie 11 E 19
5h+k+s
, Rivitalo
116.5 m2
Kerros 1-2/2
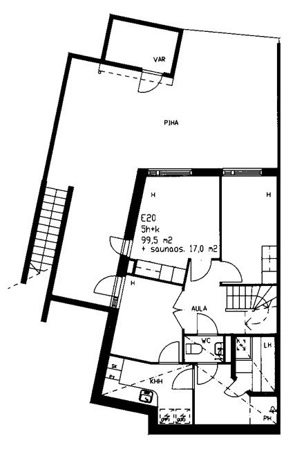
Pienenvillasaarentie 11 E 20
5h+k+s
, Rivitalo
116.5 m2
1-2/2
Pienenvillasaarentie 11 E 20
5h+k+s
, Rivitalo
116.5 m2
Kerros 1-2/2
