Property Introduction
Vedenottamontie 12 on viihtyisä kerrostalokohde vehreän Mustankiven puiston alueella. Kohteessa on 90 asuntoa, joiden koot vaihtelevat yksiöistä neljän huoneen asuntoihin, 40–87,5 m². Kohteessa on 3 hissiä. Asukkailla on käytössään pyykkitupa, kuivaushuone sekä kerhotila. Kohteeseen on tehty peruskorjaus 2023.
Koulut, päiväkodit ja palvelut ovat kohteessa lähellä. Kauppakeskus Columbuksen päivittäispalvelut sekä Vuosaaren metro sijaitsevat alle kilometrin päässä kohteesta. Alue tarjoaa myös monipuolisia mahdollisuuksia ulkoiluun ja liikuntaan, sillä kohteen lähettyvillä on useita urheilukenttiä, liikuntahalleja sekä ulkoilureittejä.
Why Asuntosäätiö?
We believe that a happy home and quality living are for everyone. We do not seek immediate profit or financial benefit. We use the assets gained from our operations to develop our real estate. Over 33,000 Finns have already chosen a home offered by Asuntosäätiö. Pets are also welcome in all our homes.
Basic house info
- Form of housing Right-of-occupancy
- Average right-of-occupancy payment / jm² 265,32€
- Elevators 3
- House sauna No
- Laundry room Yes
- Drying room Yes
- Apartment count 90
- Building count 3
- Residence charge / month / jm² 15,55€
- Construction year 1994
- Renovated 2023
- Staircases 7
- Energy class E, D
- Heating Kauko
- Parking spaces 99
- Clubroom 1
- Broadband DNA Welho
- TV-antenna system Kaapeli
- CableTV DNA
- Roof material Huopa
- House frame material Betoni
- Pets Allowed
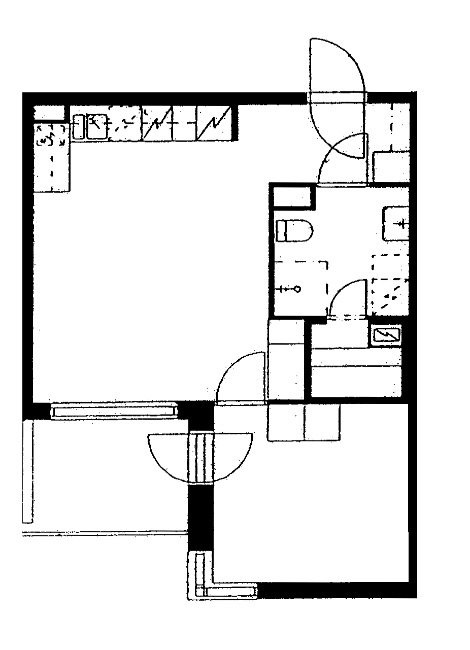
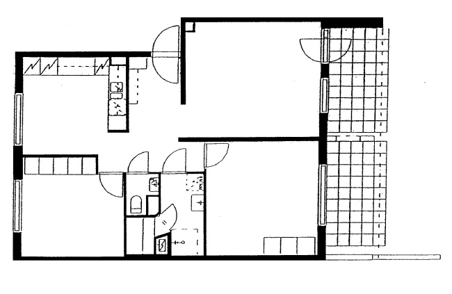
Apartments and floor plans: Vedenottamontie 12, Kerrostalo, Piharakennus
Add all the apartment types you want to your application. Your opportunity to get an apartment increases when we are able to offer you all of the apartment types that may be available later on in this property. You are automatically in queue for these apartment types.
Vedenottamontie 12 E 42
1h+tk+s
, Kerrostalo
40 m2
2/5
Vedenottamontie 12 E 42
1h+tk+s
, Kerrostalo
40 m2
Floor 2/5
Vedenottamontie 12 E 38
1h+tk+s
, Kerrostalo
40 m2
1/5
Vedenottamontie 12 E 38
1h+tk+s
, Kerrostalo
40 m2
Floor 1/5
Vedenottamontie 12 G 75
1h+tk+s
, Kerrostalo
40 m2
1/5
Vedenottamontie 12 G 75
1h+tk+s
, Kerrostalo
40 m2
Floor 1/5
Vedenottamontie 12 G 86
1h+tk+s
, Kerrostalo
40 m2
4/5
Vedenottamontie 12 G 86
1h+tk+s
, Kerrostalo
40 m2
Floor 4/5
Vedenottamontie 12 E 54
1h+tk+s
, Kerrostalo
40 m2
5/5
Vedenottamontie 12 E 54
1h+tk+s
, Kerrostalo
40 m2
Floor 5/5
Vedenottamontie 12 F 68
1h+tk+s
, Kerrostalo
40 m2
4/5
Vedenottamontie 12 F 68
1h+tk+s
, Kerrostalo
40 m2
Floor 4/5
Vedenottamontie 12 E 46
1h+tk+s
, Kerrostalo
40 m2
3/5
Vedenottamontie 12 E 46
1h+tk+s
, Kerrostalo
40 m2
Floor 3/5
Vedenottamontie 12 F 72
1h+tk+s
, Kerrostalo
40 m2
5/5
Vedenottamontie 12 F 72
1h+tk+s
, Kerrostalo
40 m2
Floor 5/5
Vedenottamontie 12 F 64
1h+tk+s
, Kerrostalo
40 m2
3/5
Vedenottamontie 12 F 64
1h+tk+s
, Kerrostalo
40 m2
Floor 3/5
Vedenottamontie 12 G 82
1h+tk+s
, Kerrostalo
40 m2
3/5
Vedenottamontie 12 G 82
1h+tk+s
, Kerrostalo
40 m2
Floor 3/5
Vedenottamontie 12 F 60
1h+tk+s
, Kerrostalo
40 m2
2/5
Vedenottamontie 12 F 60
1h+tk+s
, Kerrostalo
40 m2
Floor 2/5
Vedenottamontie 12 E 50
1h+tk+s
, Kerrostalo
40 m2
4/5
Vedenottamontie 12 E 50
1h+tk+s
, Kerrostalo
40 m2
Floor 4/5
Vedenottamontie 12 G 78
1h+tk+s
, Kerrostalo
40 m2
2/5
Vedenottamontie 12 G 78
1h+tk+s
, Kerrostalo
40 m2
Floor 2/5
Vedenottamontie 12 G 89
1h+tk+s
, Kerrostalo
40 m2
5/5
Vedenottamontie 12 G 89
1h+tk+s
, Kerrostalo
40 m2
Floor 5/5
Vedenottamontie 12 C 23
2h+k+s
, Kerrostalo
56 m2
3/3
Vedenottamontie 12 C 23
2h+k+s
, Kerrostalo
56 m2
Floor 3/3
Vedenottamontie 12 C 20
2h+k+s
, Kerrostalo
56 m2
2/3
Vedenottamontie 12 C 20
2h+k+s
, Kerrostalo
56 m2
Floor 2/3
Vedenottamontie 12 A 7
2h+k+s
, Kerrostalo
56 m2
3/3
Vedenottamontie 12 A 7
2h+k+s
, Kerrostalo
56 m2
Floor 3/3
Vedenottamontie 12 A 4
2h+k+s
, Kerrostalo
56 m2
2/3
Vedenottamontie 12 A 4
2h+k+s
, Kerrostalo
56 m2
Floor 2/3
Vedenottamontie 12 G 88
2h+k+s
, Kerrostalo
56 m2
5/5
Vedenottamontie 12 G 88
2h+k+s
, Kerrostalo
56 m2
Floor 5/5
Vedenottamontie 12 G 74
2h+k+s
, Kerrostalo
56 m2
1/5
Vedenottamontie 12 G 74
2h+k+s
, Kerrostalo
56 m2
Floor 1/5
Vedenottamontie 12 G 77
2h+k+s
, Kerrostalo
56 m2
2/5
Vedenottamontie 12 G 77
2h+k+s
, Kerrostalo
56 m2
Floor 2/5
Vedenottamontie 12 G 85
2h+k+s
, Kerrostalo
56 m2
4/5
Vedenottamontie 12 G 85
2h+k+s
, Kerrostalo
56 m2
Floor 4/5
Vedenottamontie 12 G 81
2h+k+s
, Kerrostalo
56 m2
3/5
Vedenottamontie 12 G 81
2h+k+s
, Kerrostalo
56 m2
Floor 3/5
Vedenottamontie 12 E 40
2h+k+s
, Kerrostalo
59.5 m2
2/5
Vedenottamontie 12 E 40
2h+k+s
, Kerrostalo
59.5 m2
Floor 2/5
Vedenottamontie 12 E 52
2h+k+s
, Kerrostalo
59.5 m2
5/5
Vedenottamontie 12 E 52
2h+k+s
, Kerrostalo
59.5 m2
Floor 5/5
Vedenottamontie 12 E 44
2h+k+s
, Kerrostalo
59.5 m2
3/5
Vedenottamontie 12 E 44
2h+k+s
, Kerrostalo
59.5 m2
Floor 3/5
Vedenottamontie 12 F 66
2h+k+s
, Kerrostalo
59.5 m2
4/5
Vedenottamontie 12 F 66
2h+k+s
, Kerrostalo
59.5 m2
Floor 4/5
Vedenottamontie 12 F 62
2h+k+s
, Kerrostalo
59.5 m2
3/5
Vedenottamontie 12 F 62
2h+k+s
, Kerrostalo
59.5 m2
Floor 3/5
Vedenottamontie 12 F 70
2h+k+s
, Kerrostalo
59.5 m2
5/5
Vedenottamontie 12 F 70
2h+k+s
, Kerrostalo
59.5 m2
Floor 5/5
Vedenottamontie 12 F 58
2h+k+s
, Kerrostalo
59.5 m2
2/5
Vedenottamontie 12 F 58
2h+k+s
, Kerrostalo
59.5 m2
Floor 2/5
Vedenottamontie 12 E 48
2h+k+s
, Kerrostalo
59.5 m2
4/5
Vedenottamontie 12 E 48
2h+k+s
, Kerrostalo
59.5 m2
Floor 4/5
Vedenottamontie 12 E 49
2h+kk+s
, Kerrostalo
47 m2
4/5
Vedenottamontie 12 E 49
2h+kk+s
, Kerrostalo
47 m2
Floor 4/5
Vedenottamontie 12 F 67
2h+kk+s
, Kerrostalo
47 m2
4/5
Vedenottamontie 12 F 67
2h+kk+s
, Kerrostalo
47 m2
Floor 4/5
Vedenottamontie 12 F 63
2h+kk+s
, Kerrostalo
47 m2
3/5
Vedenottamontie 12 F 63
2h+kk+s
, Kerrostalo
47 m2
Floor 3/5
Vedenottamontie 12 F 59
2h+kk+s
, Kerrostalo
47 m2
2/5
Vedenottamontie 12 F 59
2h+kk+s
, Kerrostalo
47 m2
Floor 2/5
Vedenottamontie 12 F 71
2h+kk+s
, Kerrostalo
47 m2
5/5
Vedenottamontie 12 F 71
2h+kk+s
, Kerrostalo
47 m2
Floor 5/5
Vedenottamontie 12 E 41
2h+kk+s
, Kerrostalo
47 m2
2/5
Vedenottamontie 12 E 41
2h+kk+s
, Kerrostalo
47 m2
Floor 2/5
Vedenottamontie 12 E 45
2h+kk+s
, Kerrostalo
47 m2
3/5
Vedenottamontie 12 E 45
2h+kk+s
, Kerrostalo
47 m2
Floor 3/5
Vedenottamontie 12 F 56
2h+kk+s
, Kerrostalo
47 m2
1/5
Vedenottamontie 12 F 56
2h+kk+s
, Kerrostalo
47 m2
Floor 1/5
Vedenottamontie 12 E 53
2h+kk+s
, Kerrostalo
47 m2
5/5
Vedenottamontie 12 E 53
2h+kk+s
, Kerrostalo
47 m2
Floor 5/5
Vedenottamontie 12 E 37
2h+kk+s
, Kerrostalo
47 m2
1/5
Vedenottamontie 12 E 37
2h+kk+s
, Kerrostalo
47 m2
Floor 1/5
Vedenottamontie 12 A 1
2h+kk+s
, Kerrostalo
47.5 m2
1/3
Vedenottamontie 12 A 1
2h+kk+s
, Kerrostalo
47.5 m2
Floor 1/3
Vedenottamontie 12 C 21
2h+kk+s
, Kerrostalo
47.5 m2
2/3
Vedenottamontie 12 C 21
2h+kk+s
, Kerrostalo
47.5 m2
Floor 2/3
Vedenottamontie 12 A 2
2h+kk+s
, Kerrostalo
47.5 m2
1/3
Vedenottamontie 12 A 2
2h+kk+s
, Kerrostalo
47.5 m2
Floor 1/3
Vedenottamontie 12 A 8
2h+kk+s
, Kerrostalo
47.5 m2
3/3
Vedenottamontie 12 A 8
2h+kk+s
, Kerrostalo
47.5 m2
Floor 3/3
Vedenottamontie 12 C 24
2h+kk+s
, Kerrostalo
47.5 m2
3/3
Vedenottamontie 12 C 24
2h+kk+s
, Kerrostalo
47.5 m2
Floor 3/3
Vedenottamontie 12 A 5
2h+kk+s
, Kerrostalo
47.5 m2
2/3
Vedenottamontie 12 A 5
2h+kk+s
, Kerrostalo
47.5 m2
Floor 2/3
Vedenottamontie 12 B 15
2h+kk+s
, Kerrostalo
48.5 m2
3/3
Vedenottamontie 12 B 15
2h+kk+s
, Kerrostalo
48.5 m2
Floor 3/3
Vedenottamontie 12 B 12
2h+kk+s
, Kerrostalo
48.5 m2
2/3
Vedenottamontie 12 B 12
2h+kk+s
, Kerrostalo
48.5 m2
Floor 2/3
Vedenottamontie 12 D 31
2h+kk+s
, Kerrostalo
49 m2
2/3
Vedenottamontie 12 D 31
2h+kk+s
, Kerrostalo
49 m2
Floor 2/3
Vedenottamontie 12 D 35
2h+kk+s
, Kerrostalo
49 m2
3/3
Vedenottamontie 12 D 35
2h+kk+s
, Kerrostalo
49 m2
Floor 3/3
Vedenottamontie 12 F 65
2h+kk+s
, Kerrostalo
50 m2
3/5
Vedenottamontie 12 F 65
2h+kk+s
, Kerrostalo
50 m2
Floor 3/5
Vedenottamontie 12 F 73
2h+kk+s
, Kerrostalo
50 m2
5/5
Vedenottamontie 12 F 73
2h+kk+s
, Kerrostalo
50 m2
Floor 5/5
Vedenottamontie 12 F 61
2h+kk+s
, Kerrostalo
50 m2
2/5
Vedenottamontie 12 F 61
2h+kk+s
, Kerrostalo
50 m2
Floor 2/5
Vedenottamontie 12 F 69
2h+kk+s
, Kerrostalo
50 m2
4/5
Vedenottamontie 12 F 69
2h+kk+s
, Kerrostalo
50 m2
Floor 4/5
Vedenottamontie 12 F 57
2h+kk+s
, Kerrostalo
53 m2
1/5
Vedenottamontie 12 F 57
2h+kk+s
, Kerrostalo
53 m2
Floor 1/5
Vedenottamontie 12 E 47
3h+k+s
, Kerrostalo
71 m2
3/5
Vedenottamontie 12 E 47
3h+k+s
, Kerrostalo
71 m2
Floor 3/5
Vedenottamontie 12 E 55
3h+k+s
, Kerrostalo
71 m2
5/5
Vedenottamontie 12 E 55
3h+k+s
, Kerrostalo
71 m2
Floor 5/5
Vedenottamontie 12 E 51
3h+k+s
, Kerrostalo
71 m2
4/5
Vedenottamontie 12 E 51
3h+k+s
, Kerrostalo
71 m2
Floor 4/5
Vedenottamontie 12 E 39
3h+k+s
, Kerrostalo
71 m2
1/5
Vedenottamontie 12 E 39
3h+k+s
, Kerrostalo
71 m2
Floor 1/5
Vedenottamontie 12 E 43
3h+k+s
, Kerrostalo
71 m2
2/5
Vedenottamontie 12 E 43
3h+k+s
, Kerrostalo
71 m2
Floor 2/5
Vedenottamontie 12 B 11
3h+k+s
, Kerrostalo
74 m2
1/3
Vedenottamontie 12 B 11
3h+k+s
, Kerrostalo
74 m2
Floor 1/3
Vedenottamontie 12 G 90
3h+k+s
, Kerrostalo
74 m2
5/5
Vedenottamontie 12 G 90
3h+k+s
, Kerrostalo
74 m2
Floor 5/5
Vedenottamontie 12 G 79
3h+k+s
, Kerrostalo
74 m2
2/5
Vedenottamontie 12 G 79
3h+k+s
, Kerrostalo
74 m2
Floor 2/5
Vedenottamontie 12 G 87
3h+k+s
, Kerrostalo
74 m2
4/5
Vedenottamontie 12 G 87
3h+k+s
, Kerrostalo
74 m2
Floor 4/5
Vedenottamontie 12 G 83
3h+k+s
, Kerrostalo
74 m2
3/5
Vedenottamontie 12 G 83
3h+k+s
, Kerrostalo
74 m2
Floor 3/5
Vedenottamontie 12 C 18
3h+k+s
, Kerrostalo
75 m2
1/3
Vedenottamontie 12 C 18
3h+k+s
, Kerrostalo
75 m2
Floor 1/3
Vedenottamontie 12 D 33
3h+k+s
, Kerrostalo
78 m2
3/3
Vedenottamontie 12 D 33
3h+k+s
, Kerrostalo
78 m2
Floor 3/3
Vedenottamontie 12 D 29
3h+k+s
, Kerrostalo
78 m2
2/3
Vedenottamontie 12 D 29
3h+k+s
, Kerrostalo
78 m2
Floor 2/3
Vedenottamontie 12 D 26
3h+k+s
, Kerrostalo
78 m2
1/3
Vedenottamontie 12 D 26
3h+k+s
, Kerrostalo
78 m2
Floor 1/3
Vedenottamontie 12 B 14
3h+k+s
, Kerrostalo
78.5 m2
2/3
Vedenottamontie 12 B 14
3h+k+s
, Kerrostalo
78.5 m2
Floor 2/3
Vedenottamontie 12 B 17
3h+k+s
, Kerrostalo
78.5 m2
3/3
Vedenottamontie 12 B 17
3h+k+s
, Kerrostalo
78.5 m2
Floor 3/3
Vedenottamontie 12 B 10
3h+k+s
, Kerrostalo
78.5 m2
1/3
Vedenottamontie 12 B 10
3h+k+s
, Kerrostalo
78.5 m2
Floor 1/3
Vedenottamontie 12 D 32
3h+k+s
, Kerrostalo
78.5 m2
2/3
Vedenottamontie 12 D 32
3h+k+s
, Kerrostalo
78.5 m2
Floor 2/3
Vedenottamontie 12 D 28
3h+k+s
, Kerrostalo
78.5 m2
1/3
Vedenottamontie 12 D 28
3h+k+s
, Kerrostalo
78.5 m2
Floor 1/3
Vedenottamontie 12 D 36
3h+k+s
, Kerrostalo
78.5 m2
3/3
Vedenottamontie 12 D 36
3h+k+s
, Kerrostalo
78.5 m2
Floor 3/3
Vedenottamontie 12 C 19
3h+k+s
, Kerrostalo
79 m2
1/3
Vedenottamontie 12 C 19
3h+k+s
, Kerrostalo
79 m2
Floor 1/3
Vedenottamontie 12 C 22
3h+k+s
, Kerrostalo
79 m2
Floor 2/3
Vedenottamontie 12 C 25
3h+k+s
, Kerrostalo
79 m2
3/3
Vedenottamontie 12 C 25
3h+k+s
, Kerrostalo
79 m2
Floor 3/3
Vedenottamontie 12 B 13
3h+k+s
, Kerrostalo
80 m2
2/3
Vedenottamontie 12 B 13
3h+k+s
, Kerrostalo
80 m2
Floor 2/3
Vedenottamontie 12 B 16
3h+k+s
, Kerrostalo
80 m2
Floor 3/3
Vedenottamontie 12 G 76
4h+k+s
, Kerrostalo
84 m2
1/5
Vedenottamontie 12 G 76
4h+k+s
, Kerrostalo
84 m2
Floor 1/5
Vedenottamontie 12 G 80
4h+k+s
, Kerrostalo
84 m2
2/5
Vedenottamontie 12 G 80
4h+k+s
, Kerrostalo
84 m2
Floor 2/5
Vedenottamontie 12 G 84
4h+k+s
, Kerrostalo
84 m2
3/5
Vedenottamontie 12 G 84
4h+k+s
, Kerrostalo
84 m2
Floor 3/5
Vedenottamontie 12 A 3
4h+k+s
, Kerrostalo
86.5 m2
1/3
Vedenottamontie 12 A 3
4h+k+s
, Kerrostalo
86.5 m2
Floor 1/3
Vedenottamontie 12 A 9
4h+k+s
, Kerrostalo
86.5 m2
3/3
Vedenottamontie 12 A 9
4h+k+s
, Kerrostalo
86.5 m2
Floor 3/3
Vedenottamontie 12 A 6
4h+k+s
, Kerrostalo
86.5 m2
2/3
Vedenottamontie 12 A 6
4h+k+s
, Kerrostalo
86.5 m2
Floor 2/3
Vedenottamontie 12 D 27
4h+k+s
, Kerrostalo
87.5 m2
1/3
Vedenottamontie 12 D 27
4h+k+s
, Kerrostalo
87.5 m2
Floor 1/3
Vedenottamontie 12 D 30
4h+k+s
, Kerrostalo
87.5 m2
2/3
Vedenottamontie 12 D 30
4h+k+s
, Kerrostalo
87.5 m2
Floor 2/3
Vedenottamontie 12 D 34
4h+k+s
, Kerrostalo
87.5 m2
3/3
Vedenottamontie 12 D 34
4h+k+s
, Kerrostalo
87.5 m2
Floor 3/3


