Kohteen esittely
Vedenottamontie 12 on viihtyisä kerrostalokohde vehreän Mustankiven puiston alueella. Kohteessa on 90 asuntoa, joiden koot vaihtelevat yksiöistä neljän huoneen asuntoihin, 40–87,5 m². Kohteessa on 3 hissiä. Asukkailla on käytössään pyykkitupa, kuivaushuone sekä kerhotila. Kohteeseen on tehty peruskorjaus 2023.
Koulut, päiväkodit ja palvelut ovat kohteessa lähellä. Kauppakeskus Columbuksen päivittäispalvelut sekä Vuosaaren metro sijaitsevat alle kilometrin päässä kohteesta. Alue tarjoaa myös monipuolisia mahdollisuuksia ulkoiluun ja liikuntaan, sillä kohteen lähettyvillä on useita urheilukenttiä, liikuntahalleja sekä ulkoilureittejä.
Miksi Asuntosäätiö?
Me uskomme, että onnellinen koti ja laadukas asuminen kuuluvat kaikille. Emme tavoittele voittoa, vaan käytämme kaikki vastikkeista ja vuokrista saadut tulot toimintamme kehittämiseen. Jo yli 33 000 suomalaista on valinnut Asuntosäätiön tarjoaman kodin. Tiesithän, että myös lemmikit ovat tervetulleita kaikkiin koteihimme!
Rakennuksen tiedot
- Asumismuoto Asokoti
- Keskimääräinen asumisoikeusmaksu / jm² 265,32€
- Hissit 3
- Talosauna Ei
- Pyykkitupa Kyllä
- Kuivaushuone Kyllä
- Asuntoja 90
- Asuinrakennuksia 3
- Käyttövastike / kk / jm² 15,55€
- Valmistumisvuosi 1994
- Peruskorjattu 2023
- Porrashuoneet 7
- Energialuokka E, D
- Lämmitysmuoto Kauko
- Autopaikat 99
- Kerhohuone 1
- Laajakaista DNA Welho
- Antennijärjestelmä Kaapeli
- KaapeliTV DNA
- Kattomateriaali Huopa
- Runkomateriaali Betoni
- Lemmikit Sallittu
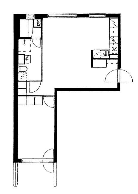
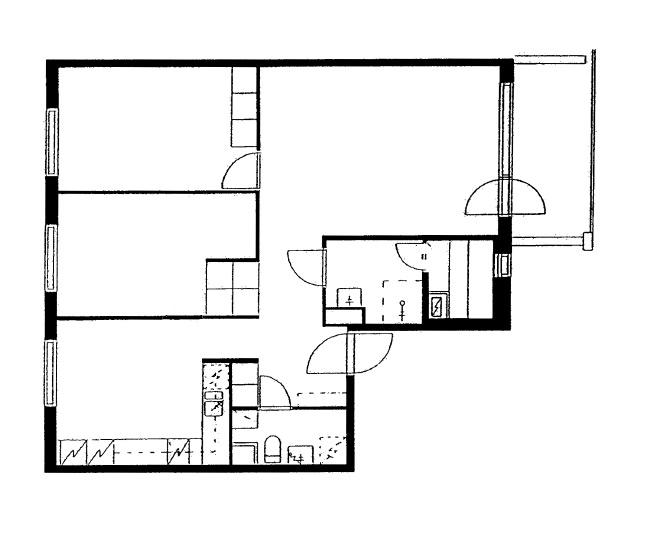
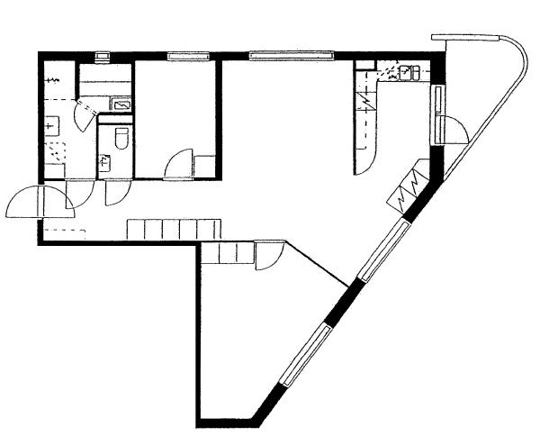
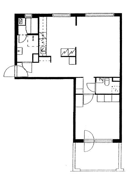
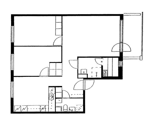
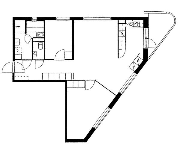
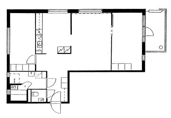
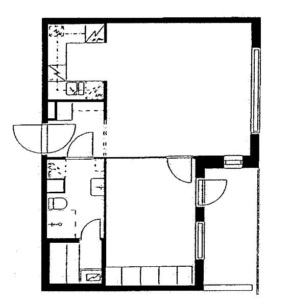
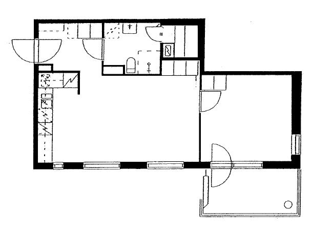
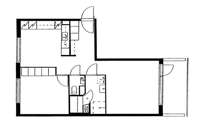
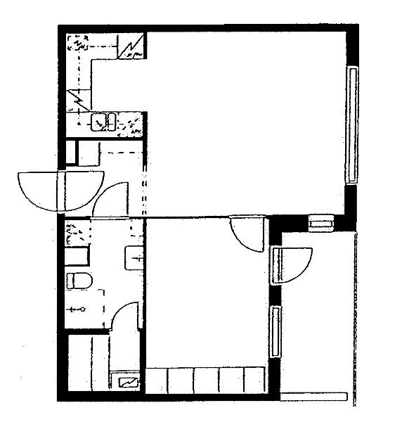
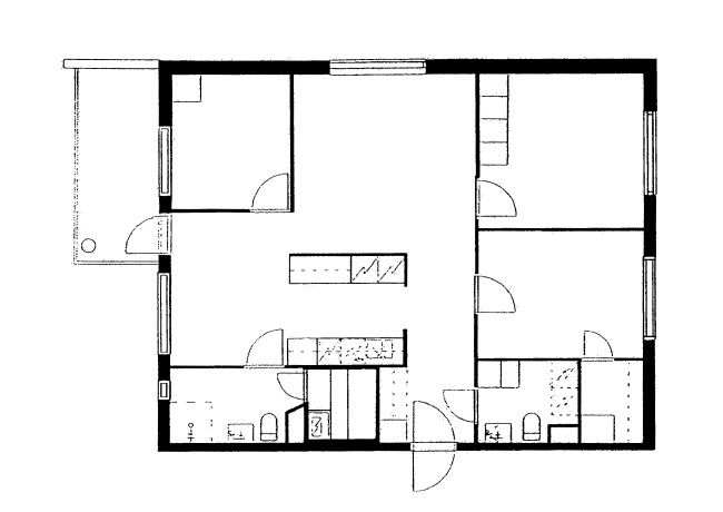
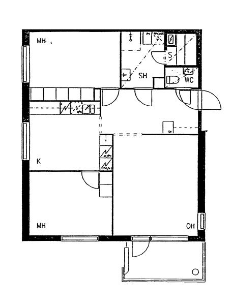
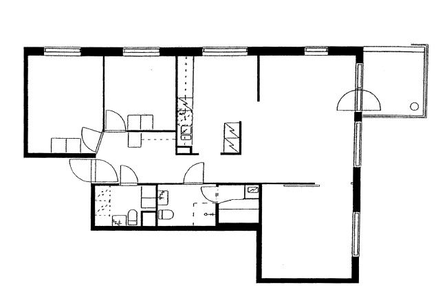
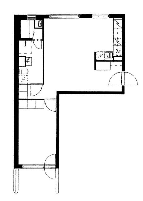
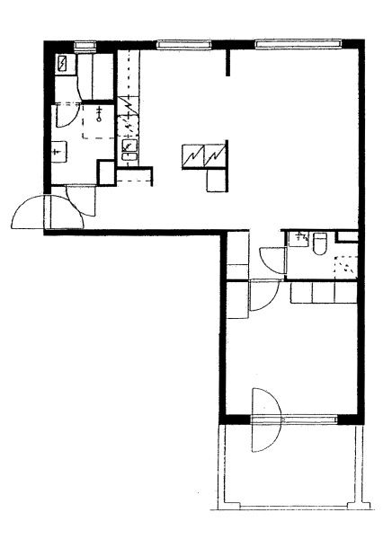
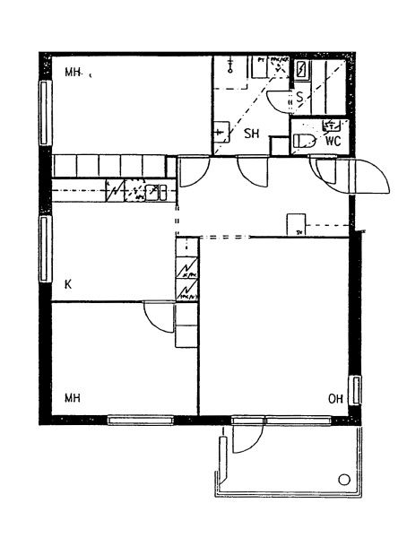
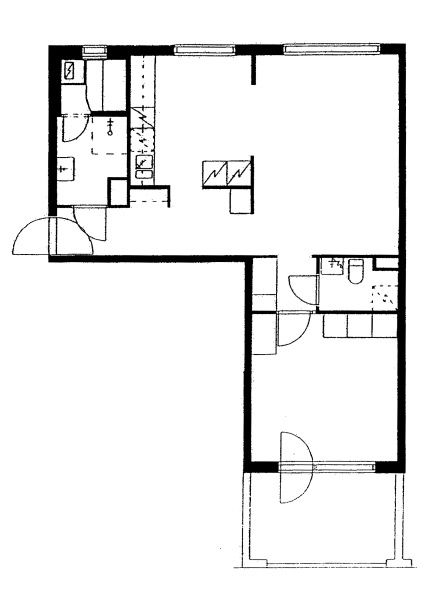
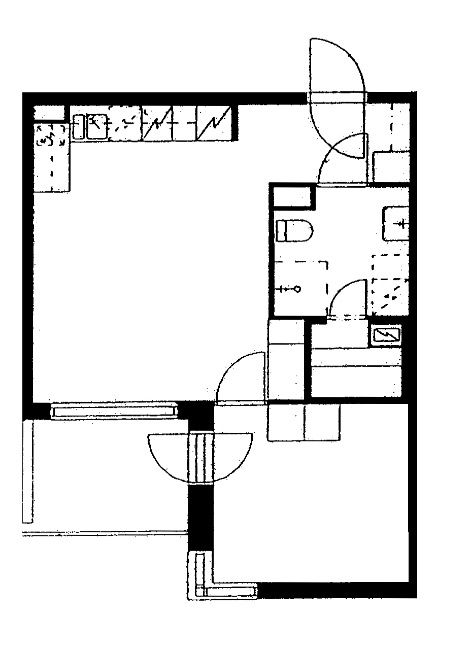
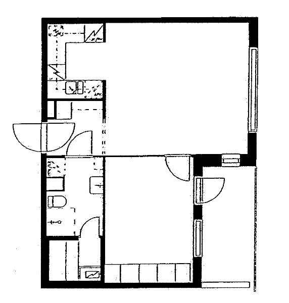
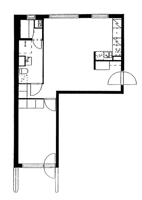
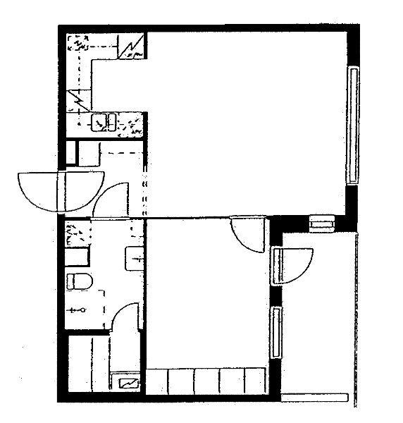
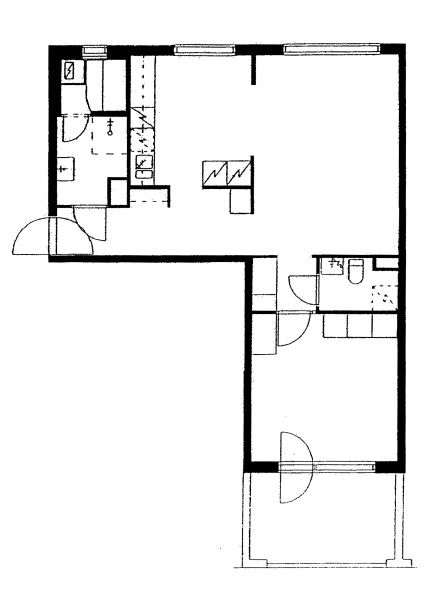
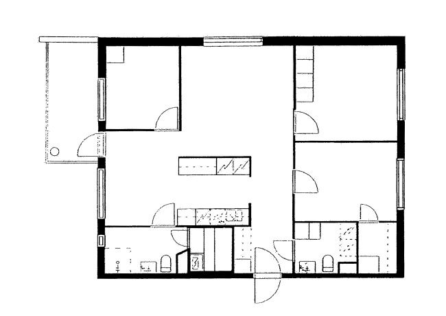
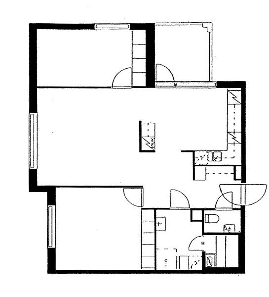
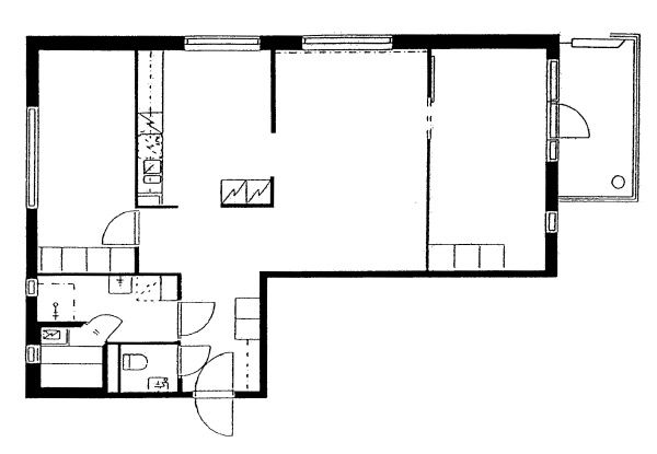
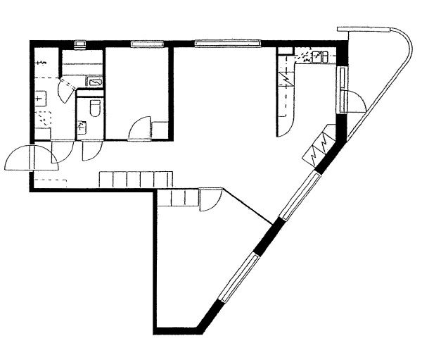
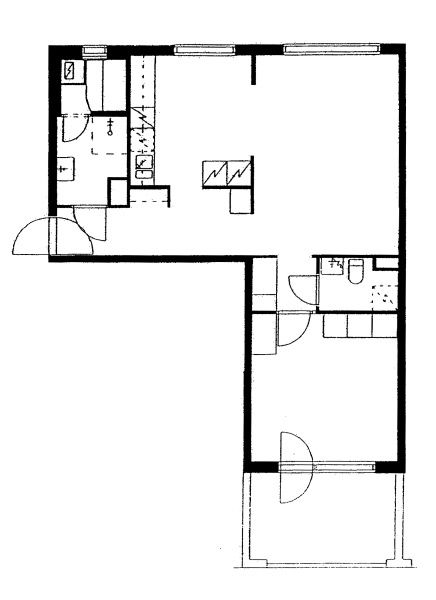
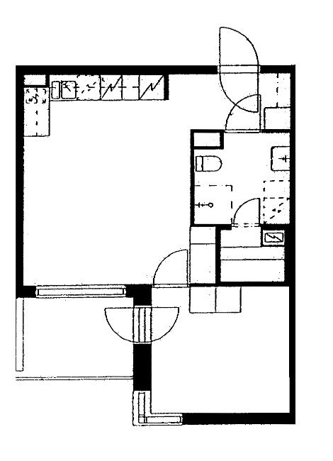
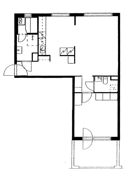
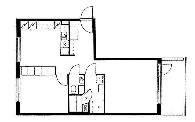
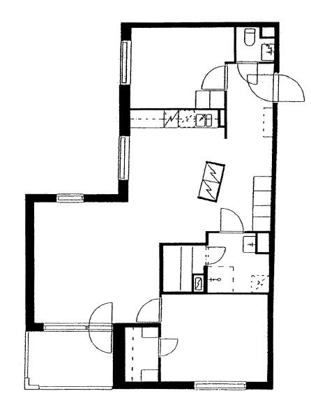
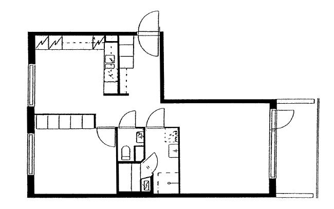
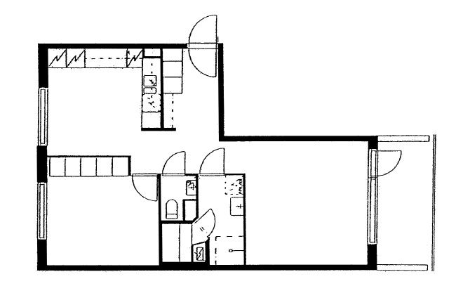
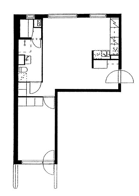
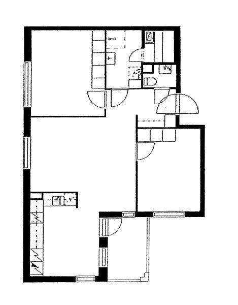
Huoneistot ja pohjakuvat: Vedenottamontie 12, Kerrostalo, Piharakennus
Lisää hakemukselle kaikki haluamasi asuntotyypit. Mahdollisuutesi asunnon saamiseksi paranevat, kun voimme tarjota sinulle kaikkia valitsemasi asuntotyypin asuntoja, jotka mahdollisesti vapautuvat myöhemmin tästä kohteesta. Olet automaattisesti näiden asuntotyyppien hakuprosessissa.
Vedenottamontie 12 E 42
1h+tk+s
, Kerrostalo
40 m2
2/5
Vedenottamontie 12 E 42
1h+tk+s
, Kerrostalo
40 m2
Kerros 2/5
Vedenottamontie 12 E 38
1h+tk+s
, Kerrostalo
40 m2
1/5
Vedenottamontie 12 E 38
1h+tk+s
, Kerrostalo
40 m2
Kerros 1/5
Vedenottamontie 12 G 75
1h+tk+s
, Kerrostalo
40 m2
1/5
Vedenottamontie 12 G 75
1h+tk+s
, Kerrostalo
40 m2
Kerros 1/5
Vedenottamontie 12 G 86
1h+tk+s
, Kerrostalo
40 m2
4/5
Vedenottamontie 12 G 86
1h+tk+s
, Kerrostalo
40 m2
Kerros 4/5
Vedenottamontie 12 E 54
1h+tk+s
, Kerrostalo
40 m2
5/5
Vedenottamontie 12 E 54
1h+tk+s
, Kerrostalo
40 m2
Kerros 5/5
Vedenottamontie 12 F 68
1h+tk+s
, Kerrostalo
40 m2
4/5
Vedenottamontie 12 F 68
1h+tk+s
, Kerrostalo
40 m2
Kerros 4/5
Vedenottamontie 12 E 46
1h+tk+s
, Kerrostalo
40 m2
3/5
Vedenottamontie 12 E 46
1h+tk+s
, Kerrostalo
40 m2
Kerros 3/5
Vedenottamontie 12 F 72
1h+tk+s
, Kerrostalo
40 m2
5/5
Vedenottamontie 12 F 72
1h+tk+s
, Kerrostalo
40 m2
Kerros 5/5
Vedenottamontie 12 F 64
1h+tk+s
, Kerrostalo
40 m2
3/5
Vedenottamontie 12 F 64
1h+tk+s
, Kerrostalo
40 m2
Kerros 3/5
Vedenottamontie 12 G 82
1h+tk+s
, Kerrostalo
40 m2
3/5
Vedenottamontie 12 G 82
1h+tk+s
, Kerrostalo
40 m2
Kerros 3/5
Vedenottamontie 12 F 60
1h+tk+s
, Kerrostalo
40 m2
2/5
Vedenottamontie 12 F 60
1h+tk+s
, Kerrostalo
40 m2
Kerros 2/5
Vedenottamontie 12 E 50
1h+tk+s
, Kerrostalo
40 m2
4/5
Vedenottamontie 12 E 50
1h+tk+s
, Kerrostalo
40 m2
Kerros 4/5
Vedenottamontie 12 G 78
1h+tk+s
, Kerrostalo
40 m2
2/5
Vedenottamontie 12 G 78
1h+tk+s
, Kerrostalo
40 m2
Kerros 2/5
Vedenottamontie 12 G 89
1h+tk+s
, Kerrostalo
40 m2
5/5
Vedenottamontie 12 G 89
1h+tk+s
, Kerrostalo
40 m2
Kerros 5/5
Vedenottamontie 12 C 23
2h+k+s
, Kerrostalo
56 m2
3/3
Vedenottamontie 12 C 23
2h+k+s
, Kerrostalo
56 m2
Kerros 3/3
Vedenottamontie 12 C 20
2h+k+s
, Kerrostalo
56 m2
2/3
Vedenottamontie 12 C 20
2h+k+s
, Kerrostalo
56 m2
Kerros 2/3
Vedenottamontie 12 A 7
2h+k+s
, Kerrostalo
56 m2
3/3
Vedenottamontie 12 A 7
2h+k+s
, Kerrostalo
56 m2
Kerros 3/3
Vedenottamontie 12 A 4
2h+k+s
, Kerrostalo
56 m2
2/3
Vedenottamontie 12 A 4
2h+k+s
, Kerrostalo
56 m2
Kerros 2/3
Vedenottamontie 12 G 88
2h+k+s
, Kerrostalo
56 m2
5/5
Vedenottamontie 12 G 88
2h+k+s
, Kerrostalo
56 m2
Kerros 5/5
Vedenottamontie 12 G 74
2h+k+s
, Kerrostalo
56 m2
1/5
Vedenottamontie 12 G 74
2h+k+s
, Kerrostalo
56 m2
Kerros 1/5
Vedenottamontie 12 G 77
2h+k+s
, Kerrostalo
56 m2
2/5
Vedenottamontie 12 G 77
2h+k+s
, Kerrostalo
56 m2
Kerros 2/5
Vedenottamontie 12 G 85
2h+k+s
, Kerrostalo
56 m2
4/5
Vedenottamontie 12 G 85
2h+k+s
, Kerrostalo
56 m2
Kerros 4/5
Vedenottamontie 12 G 81
2h+k+s
, Kerrostalo
56 m2
3/5
Vedenottamontie 12 G 81
2h+k+s
, Kerrostalo
56 m2
Kerros 3/5
Vedenottamontie 12 E 40
2h+k+s
, Kerrostalo
59.5 m2
2/5
Vedenottamontie 12 E 40
2h+k+s
, Kerrostalo
59.5 m2
Kerros 2/5
Vedenottamontie 12 E 52
2h+k+s
, Kerrostalo
59.5 m2
5/5
Vedenottamontie 12 E 52
2h+k+s
, Kerrostalo
59.5 m2
Kerros 5/5
Vedenottamontie 12 E 44
2h+k+s
, Kerrostalo
59.5 m2
3/5
Vedenottamontie 12 E 44
2h+k+s
, Kerrostalo
59.5 m2
Kerros 3/5
Vedenottamontie 12 F 66
2h+k+s
, Kerrostalo
59.5 m2
4/5
Vedenottamontie 12 F 66
2h+k+s
, Kerrostalo
59.5 m2
Kerros 4/5
Vedenottamontie 12 F 62
2h+k+s
, Kerrostalo
59.5 m2
3/5
Vedenottamontie 12 F 62
2h+k+s
, Kerrostalo
59.5 m2
Kerros 3/5
Vedenottamontie 12 F 70
2h+k+s
, Kerrostalo
59.5 m2
5/5
Vedenottamontie 12 F 70
2h+k+s
, Kerrostalo
59.5 m2
Kerros 5/5
Vedenottamontie 12 F 58
2h+k+s
, Kerrostalo
59.5 m2
2/5
Vedenottamontie 12 F 58
2h+k+s
, Kerrostalo
59.5 m2
Kerros 2/5
Vedenottamontie 12 E 48
2h+k+s
, Kerrostalo
59.5 m2
4/5
Vedenottamontie 12 E 48
2h+k+s
, Kerrostalo
59.5 m2
Kerros 4/5
Vedenottamontie 12 E 49
2h+kk+s
, Kerrostalo
47 m2
4/5
Vedenottamontie 12 E 49
2h+kk+s
, Kerrostalo
47 m2
Kerros 4/5
Vedenottamontie 12 F 67
2h+kk+s
, Kerrostalo
47 m2
4/5
Vedenottamontie 12 F 67
2h+kk+s
, Kerrostalo
47 m2
Kerros 4/5
Vedenottamontie 12 F 63
2h+kk+s
, Kerrostalo
47 m2
3/5
Vedenottamontie 12 F 63
2h+kk+s
, Kerrostalo
47 m2
Kerros 3/5
Vedenottamontie 12 F 59
2h+kk+s
, Kerrostalo
47 m2
2/5
Vedenottamontie 12 F 59
2h+kk+s
, Kerrostalo
47 m2
Kerros 2/5
Vedenottamontie 12 F 71
2h+kk+s
, Kerrostalo
47 m2
5/5
Vedenottamontie 12 F 71
2h+kk+s
, Kerrostalo
47 m2
Kerros 5/5
Vedenottamontie 12 E 41
2h+kk+s
, Kerrostalo
47 m2
2/5
Vedenottamontie 12 E 41
2h+kk+s
, Kerrostalo
47 m2
Kerros 2/5
Vedenottamontie 12 E 45
2h+kk+s
, Kerrostalo
47 m2
3/5
Vedenottamontie 12 E 45
2h+kk+s
, Kerrostalo
47 m2
Kerros 3/5
Vedenottamontie 12 F 56
2h+kk+s
, Kerrostalo
47 m2
1/5
Vedenottamontie 12 F 56
2h+kk+s
, Kerrostalo
47 m2
Kerros 1/5
Vedenottamontie 12 E 53
2h+kk+s
, Kerrostalo
47 m2
5/5
Vedenottamontie 12 E 53
2h+kk+s
, Kerrostalo
47 m2
Kerros 5/5
Vedenottamontie 12 E 37
2h+kk+s
, Kerrostalo
47 m2
1/5
Vedenottamontie 12 E 37
2h+kk+s
, Kerrostalo
47 m2
Kerros 1/5
Vedenottamontie 12 A 1
2h+kk+s
, Kerrostalo
47.5 m2
1/3
Vedenottamontie 12 A 1
2h+kk+s
, Kerrostalo
47.5 m2
Kerros 1/3
Vedenottamontie 12 C 21
2h+kk+s
, Kerrostalo
47.5 m2
2/3
Vedenottamontie 12 C 21
2h+kk+s
, Kerrostalo
47.5 m2
Kerros 2/3
Vedenottamontie 12 A 2
2h+kk+s
, Kerrostalo
47.5 m2
1/3
Vedenottamontie 12 A 2
2h+kk+s
, Kerrostalo
47.5 m2
Kerros 1/3
Vedenottamontie 12 A 8
2h+kk+s
, Kerrostalo
47.5 m2
3/3
Vedenottamontie 12 A 8
2h+kk+s
, Kerrostalo
47.5 m2
Kerros 3/3
Vedenottamontie 12 C 24
2h+kk+s
, Kerrostalo
47.5 m2
3/3
Vedenottamontie 12 C 24
2h+kk+s
, Kerrostalo
47.5 m2
Kerros 3/3
Vedenottamontie 12 A 5
2h+kk+s
, Kerrostalo
47.5 m2
2/3
Vedenottamontie 12 A 5
2h+kk+s
, Kerrostalo
47.5 m2
Kerros 2/3
Vedenottamontie 12 B 15
2h+kk+s
, Kerrostalo
48.5 m2
3/3
Vedenottamontie 12 B 15
2h+kk+s
, Kerrostalo
48.5 m2
Kerros 3/3
Vedenottamontie 12 B 12
2h+kk+s
, Kerrostalo
48.5 m2
2/3
Vedenottamontie 12 B 12
2h+kk+s
, Kerrostalo
48.5 m2
Kerros 2/3
Vedenottamontie 12 D 31
2h+kk+s
, Kerrostalo
49 m2
2/3
Vedenottamontie 12 D 31
2h+kk+s
, Kerrostalo
49 m2
Kerros 2/3
Vedenottamontie 12 D 35
2h+kk+s
, Kerrostalo
49 m2
3/3
Vedenottamontie 12 D 35
2h+kk+s
, Kerrostalo
49 m2
Kerros 3/3
Vedenottamontie 12 F 65
2h+kk+s
, Kerrostalo
50 m2
3/5
Vedenottamontie 12 F 65
2h+kk+s
, Kerrostalo
50 m2
Kerros 3/5
Vedenottamontie 12 F 73
2h+kk+s
, Kerrostalo
50 m2
5/5
Vedenottamontie 12 F 73
2h+kk+s
, Kerrostalo
50 m2
Kerros 5/5
Vedenottamontie 12 F 61
2h+kk+s
, Kerrostalo
50 m2
2/5
Vedenottamontie 12 F 61
2h+kk+s
, Kerrostalo
50 m2
Kerros 2/5
Vedenottamontie 12 F 69
2h+kk+s
, Kerrostalo
50 m2
4/5
Vedenottamontie 12 F 69
2h+kk+s
, Kerrostalo
50 m2
Kerros 4/5
Vedenottamontie 12 F 57
2h+kk+s
, Kerrostalo
53 m2
1/5
Vedenottamontie 12 F 57
2h+kk+s
, Kerrostalo
53 m2
Kerros 1/5
Vedenottamontie 12 E 47
3h+k+s
, Kerrostalo
71 m2
3/5
Vedenottamontie 12 E 47
3h+k+s
, Kerrostalo
71 m2
Kerros 3/5
Vedenottamontie 12 E 55
3h+k+s
, Kerrostalo
71 m2
5/5
Vedenottamontie 12 E 55
3h+k+s
, Kerrostalo
71 m2
Kerros 5/5
Vedenottamontie 12 E 51
3h+k+s
, Kerrostalo
71 m2
4/5
Vedenottamontie 12 E 51
3h+k+s
, Kerrostalo
71 m2
Kerros 4/5
Vedenottamontie 12 E 39
3h+k+s
, Kerrostalo
71 m2
1/5
Vedenottamontie 12 E 39
3h+k+s
, Kerrostalo
71 m2
Kerros 1/5
Vedenottamontie 12 E 43
3h+k+s
, Kerrostalo
71 m2
2/5
Vedenottamontie 12 E 43
3h+k+s
, Kerrostalo
71 m2
Kerros 2/5
Vedenottamontie 12 B 11
3h+k+s
, Kerrostalo
74 m2
1/3
Vedenottamontie 12 B 11
3h+k+s
, Kerrostalo
74 m2
Kerros 1/3
Vedenottamontie 12 G 90
3h+k+s
, Kerrostalo
74 m2
5/5
Vedenottamontie 12 G 90
3h+k+s
, Kerrostalo
74 m2
Kerros 5/5
Vedenottamontie 12 G 79
3h+k+s
, Kerrostalo
74 m2
2/5
Vedenottamontie 12 G 79
3h+k+s
, Kerrostalo
74 m2
Kerros 2/5
Vedenottamontie 12 G 87
3h+k+s
, Kerrostalo
74 m2
4/5
Vedenottamontie 12 G 87
3h+k+s
, Kerrostalo
74 m2
Kerros 4/5
Vedenottamontie 12 G 83
3h+k+s
, Kerrostalo
74 m2
3/5
Vedenottamontie 12 G 83
3h+k+s
, Kerrostalo
74 m2
Kerros 3/5
Vedenottamontie 12 C 18
3h+k+s
, Kerrostalo
75 m2
1/3
Vedenottamontie 12 C 18
3h+k+s
, Kerrostalo
75 m2
Kerros 1/3
Vedenottamontie 12 D 33
3h+k+s
, Kerrostalo
78 m2
3/3
Vedenottamontie 12 D 33
3h+k+s
, Kerrostalo
78 m2
Kerros 3/3
Vedenottamontie 12 D 29
3h+k+s
, Kerrostalo
78 m2
2/3
Vedenottamontie 12 D 29
3h+k+s
, Kerrostalo
78 m2
Kerros 2/3
Vedenottamontie 12 D 26
3h+k+s
, Kerrostalo
78 m2
1/3
Vedenottamontie 12 D 26
3h+k+s
, Kerrostalo
78 m2
Kerros 1/3
Vedenottamontie 12 B 14
3h+k+s
, Kerrostalo
78.5 m2
2/3
Vedenottamontie 12 B 14
3h+k+s
, Kerrostalo
78.5 m2
Kerros 2/3
Vedenottamontie 12 B 17
3h+k+s
, Kerrostalo
78.5 m2
3/3
Vedenottamontie 12 B 17
3h+k+s
, Kerrostalo
78.5 m2
Kerros 3/3
Vedenottamontie 12 B 10
3h+k+s
, Kerrostalo
78.5 m2
1/3
Vedenottamontie 12 B 10
3h+k+s
, Kerrostalo
78.5 m2
Kerros 1/3
Vedenottamontie 12 D 32
3h+k+s
, Kerrostalo
78.5 m2
2/3
Vedenottamontie 12 D 32
3h+k+s
, Kerrostalo
78.5 m2
Kerros 2/3
Vedenottamontie 12 D 28
3h+k+s
, Kerrostalo
78.5 m2
1/3
Vedenottamontie 12 D 28
3h+k+s
, Kerrostalo
78.5 m2
Kerros 1/3
Vedenottamontie 12 D 36
3h+k+s
, Kerrostalo
78.5 m2
3/3
Vedenottamontie 12 D 36
3h+k+s
, Kerrostalo
78.5 m2
Kerros 3/3
Vedenottamontie 12 C 19
3h+k+s
, Kerrostalo
79 m2
1/3
Vedenottamontie 12 C 19
3h+k+s
, Kerrostalo
79 m2
Kerros 1/3
Vedenottamontie 12 C 22
3h+k+s
, Kerrostalo
79 m2
Kerros 2/3
Vedenottamontie 12 C 25
3h+k+s
, Kerrostalo
79 m2
3/3
Vedenottamontie 12 C 25
3h+k+s
, Kerrostalo
79 m2
Kerros 3/3
Vedenottamontie 12 B 13
3h+k+s
, Kerrostalo
80 m2
2/3
Vedenottamontie 12 B 13
3h+k+s
, Kerrostalo
80 m2
Kerros 2/3
Vedenottamontie 12 B 16
3h+k+s
, Kerrostalo
80 m2
Kerros 3/3
Vedenottamontie 12 G 76
4h+k+s
, Kerrostalo
84 m2
1/5
Vedenottamontie 12 G 76
4h+k+s
, Kerrostalo
84 m2
Kerros 1/5
Vedenottamontie 12 G 80
4h+k+s
, Kerrostalo
84 m2
2/5
Vedenottamontie 12 G 80
4h+k+s
, Kerrostalo
84 m2
Kerros 2/5
Vedenottamontie 12 G 84
4h+k+s
, Kerrostalo
84 m2
3/5
Vedenottamontie 12 G 84
4h+k+s
, Kerrostalo
84 m2
Kerros 3/5
Vedenottamontie 12 A 3
4h+k+s
, Kerrostalo
86.5 m2
1/3
Vedenottamontie 12 A 3
4h+k+s
, Kerrostalo
86.5 m2
Kerros 1/3
Vedenottamontie 12 A 9
4h+k+s
, Kerrostalo
86.5 m2
3/3
Vedenottamontie 12 A 9
4h+k+s
, Kerrostalo
86.5 m2
Kerros 3/3
Vedenottamontie 12 A 6
4h+k+s
, Kerrostalo
86.5 m2
2/3
Vedenottamontie 12 A 6
4h+k+s
, Kerrostalo
86.5 m2
Kerros 2/3
Vedenottamontie 12 D 27
4h+k+s
, Kerrostalo
87.5 m2
1/3
Vedenottamontie 12 D 27
4h+k+s
, Kerrostalo
87.5 m2
Kerros 1/3
Vedenottamontie 12 D 30
4h+k+s
, Kerrostalo
87.5 m2
2/3
Vedenottamontie 12 D 30
4h+k+s
, Kerrostalo
87.5 m2
Kerros 2/3
Vedenottamontie 12 D 34
4h+k+s
, Kerrostalo
87.5 m2
3/3
Vedenottamontie 12 D 34
4h+k+s
, Kerrostalo
87.5 m2
Kerros 3/3


