Property Introduction
Rivitalokohde, jossa on asuntoja pienistä kaksioista neliöihin. Osa asunnoista on luhtitalossa. Asukkaiden käytössä on mm. pesutupa.
Lähellä on päiväkoti, koulu ja ruokakauppa. Haarajoen juna-asema noin puolen kilometrin päässä.
Why Asuntosäätiö?
We believe that a happy home and quality living are for everyone. We do not seek immediate profit or financial benefit. We use the assets gained from our operations to develop our real estate. Over 33,000 Finns have already chosen a home offered by Asuntosäätiö. Pets are also welcome in all our homes.
Basic house info
- Form of housing Right-of-occupancy
- Average right-of-occupancy payment / jm² 194,21€
- Elevators No
- House sauna No
- Laundry room Yes
- Drying room Yes
- Apartment count 52
- Building count 9
- Residence charge / month / jm² 14,07€
- Construction year 1994
- Renovated 2024
- Energy class D
- Heating Kauko
- Parking spaces 53
- Clubroom 1
- Broadband Elisa
- TV-antenna system Kaapeli
- CableTV Elisa
- Roof material Tiili
- House frame material Betoni, Puu
- Pets Allowed
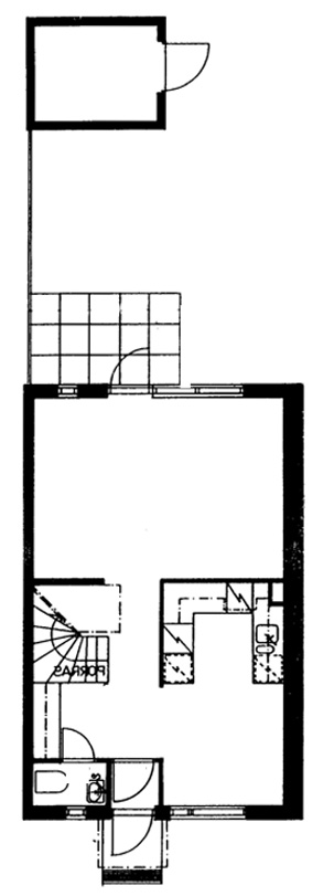
Apartments and floor plans: Jepuankatu 24, Luhtikäytävätalo, Piharakennus, Rivitalo
Add all the apartment types you want to your application. Your opportunity to get an apartment increases when we are able to offer you all of the apartment types that may be available later on in this property. You are automatically in queue for these apartment types.
Jepuankatu 24 B 11
2h+k+s
, Rivitalo
62 m2
1/1
Jepuankatu 24 B 11
2h+k+s
, Rivitalo
62 m2
Floor 1/1
Jepuankatu 24 B 13
2h+k+s
, Rivitalo
62 m2
1/1
Jepuankatu 24 B 13
2h+k+s
, Rivitalo
62 m2
Floor 1/1
Jepuankatu 24 B 16
2h+k+s
, Rivitalo
62 m2
1/1
Jepuankatu 24 B 16
2h+k+s
, Rivitalo
62 m2
Floor 1/1
Jepuankatu 24 B 10
2h+k+s
, Rivitalo
62 m2
1/1
Jepuankatu 24 B 10
2h+k+s
, Rivitalo
62 m2
Floor 1/1
Jepuankatu 24 A 7
2h+k+s
, Rivitalo
62 m2
1/1
Jepuankatu 24 A 7
2h+k+s
, Rivitalo
62 m2
Floor 1/1
Jepuankatu 24 A 5
2h+k+s
, Rivitalo
62 m2
1/1
Jepuankatu 24 A 5
2h+k+s
, Rivitalo
62 m2
Floor 1/1
Jepuankatu 24 A 8
2h+k+s
, Rivitalo
62 m2
1/1
Jepuankatu 24 A 8
2h+k+s
, Rivitalo
62 m2
Floor 1/1
Jepuankatu 24 A 1
2h+k+s
, Rivitalo
62 m2
1/1
Jepuankatu 24 A 1
2h+k+s
, Rivitalo
62 m2
Floor 1/1
Jepuankatu 24 A 3
2h+k+s
, Rivitalo
62 m2
1/1
Jepuankatu 24 A 3
2h+k+s
, Rivitalo
62 m2
Floor 1/1
Jepuankatu 24 A 4
2h+k+s
, Rivitalo
62 m2
1/1
Jepuankatu 24 A 4
2h+k+s
, Rivitalo
62 m2
Floor 1/1
Jepuankatu 24 A 2
2h+k+s
, Rivitalo
62 m2
1/1
Jepuankatu 24 A 2
2h+k+s
, Rivitalo
62 m2
Floor 1/1
Jepuankatu 24 A 6
2h+k+s
, Rivitalo
62 m2
1/1
Jepuankatu 24 A 6
2h+k+s
, Rivitalo
62 m2
Floor 1/1
Jepuankatu 24 B 14
2h+k+s
, Rivitalo
62 m2
1/1
Jepuankatu 24 B 14
2h+k+s
, Rivitalo
62 m2
Floor 1/1
Jepuankatu 24 B 15
2h+k+s
, Rivitalo
62 m2
1/1
Jepuankatu 24 B 15
2h+k+s
, Rivitalo
62 m2
Floor 1/1
Jepuankatu 24 B 12
2h+k+s
, Rivitalo
62 m2
1/1
Jepuankatu 24 B 12
2h+k+s
, Rivitalo
62 m2
Floor 1/1
Jepuankatu 24 B 9
2h+k+s
, Rivitalo
62 m2
1/1
Jepuankatu 24 B 9
2h+k+s
, Rivitalo
62 m2
Floor 1/1
Jepuankatu 24 F 30
2h+kk+s
, Luhtikäytävätalo
47.5 m2
1/2
Jepuankatu 24 F 30
2h+kk+s
, Luhtikäytävätalo
47.5 m2
Floor 1/2
Jepuankatu 24 G 40
2h+kk+s
, Luhtikäytävätalo
47.5 m2
2/2
Jepuankatu 24 G 40
2h+kk+s
, Luhtikäytävätalo
47.5 m2
Floor 2/2
Jepuankatu 24 F 34
2h+kk+s
, Luhtikäytävätalo
47.5 m2
2/2
Jepuankatu 24 F 34
2h+kk+s
, Luhtikäytävätalo
47.5 m2
Floor 2/2
Jepuankatu 24 F 31
2h+kk+s
, Luhtikäytävätalo
47.5 m2
1/2
Jepuankatu 24 F 31
2h+kk+s
, Luhtikäytävätalo
47.5 m2
Floor 1/2
Jepuankatu 24 F 29
2h+kk+s
, Luhtikäytävätalo
47.5 m2
1/2
Jepuankatu 24 F 29
2h+kk+s
, Luhtikäytävätalo
47.5 m2
Floor 1/2
Jepuankatu 24 F 33
2h+kk+s
, Luhtikäytävätalo
47.5 m2
2/2
Jepuankatu 24 F 33
2h+kk+s
, Luhtikäytävätalo
47.5 m2
Floor 2/2
Jepuankatu 24 F 32
2h+kk+s
, Luhtikäytävätalo
47.5 m2
2/2
Jepuankatu 24 F 32
2h+kk+s
, Luhtikäytävätalo
47.5 m2
Floor 2/2
Jepuankatu 24 E 26
2h+kk+s
, Luhtikäytävätalo
47.5 m2
2/2
Jepuankatu 24 E 26
2h+kk+s
, Luhtikäytävätalo
47.5 m2
Floor 2/2
Jepuankatu 24 E 28
2h+kk+s
, Luhtikäytävätalo
47.5 m2
2/2
Jepuankatu 24 E 28
2h+kk+s
, Luhtikäytävätalo
47.5 m2
Floor 2/2
Jepuankatu 24 E 23
2h+kk+s
, Luhtikäytävätalo
47.5 m2
1/2
Jepuankatu 24 E 23
2h+kk+s
, Luhtikäytävätalo
47.5 m2
Floor 1/2
Jepuankatu 24 E 25
2h+kk+s
, Luhtikäytävätalo
47.5 m2
1/2
Jepuankatu 24 E 25
2h+kk+s
, Luhtikäytävätalo
47.5 m2
Floor 1/2
Jepuankatu 24 E 27
2h+kk+s
, Luhtikäytävätalo
47.5 m2
2/2
Jepuankatu 24 E 27
2h+kk+s
, Luhtikäytävätalo
47.5 m2
Floor 2/2
Jepuankatu 24 E 24
2h+kk+s
, Luhtikäytävätalo
47.5 m2
1/2
Jepuankatu 24 E 24
2h+kk+s
, Luhtikäytävätalo
47.5 m2
Floor 1/2
Jepuankatu 24 G 38
2h+kk+s
, Luhtikäytävätalo
47.5 m2
2/2
Jepuankatu 24 G 38
2h+kk+s
, Luhtikäytävätalo
47.5 m2
Floor 2/2
Jepuankatu 24 G 36
2h+kk+s
, Luhtikäytävätalo
47.5 m2
1/2
Jepuankatu 24 G 36
2h+kk+s
, Luhtikäytävätalo
47.5 m2
Floor 1/2
Jepuankatu 24 G 37
2h+kk+s
, Luhtikäytävätalo
47.5 m2
1/2
Jepuankatu 24 G 37
2h+kk+s
, Luhtikäytävätalo
47.5 m2
Floor 1/2
Jepuankatu 24 G 35
2h+kk+s
, Luhtikäytävätalo
47.5 m2
1/2
Jepuankatu 24 G 35
2h+kk+s
, Luhtikäytävätalo
47.5 m2
Floor 1/2
Jepuankatu 24 G 39
2h+kk+s
, Luhtikäytävätalo
47.5 m2
2/2
Jepuankatu 24 G 39
2h+kk+s
, Luhtikäytävätalo
47.5 m2
Floor 2/2
Jepuankatu 24 I 49
3h+k+s
, Rivitalo
77.5 m2
1-2/2
Jepuankatu 24 I 49
3h+k+s
, Rivitalo
77.5 m2
Floor 1-2/2
Jepuankatu 24 H 45
3h+k+s
, Rivitalo
77.5 m2
1-2/2
Jepuankatu 24 H 45
3h+k+s
, Rivitalo
77.5 m2
Floor 1-2/2
Jepuankatu 24 H 42
3h+k+s
, Rivitalo
77.5 m2
1-2/2
Jepuankatu 24 H 42
3h+k+s
, Rivitalo
77.5 m2
Floor 1-2/2
Jepuankatu 24 H 41
3h+k+s
, Rivitalo
77.5 m2
1-2/2
Jepuankatu 24 H 41
3h+k+s
, Rivitalo
77.5 m2
Floor 1-2/2
Jepuankatu 24 H 46
3h+k+s
, Rivitalo
77.5 m2
1-2/2
Jepuankatu 24 H 46
3h+k+s
, Rivitalo
77.5 m2
Floor 1-2/2
Jepuankatu 24 H 43
3h+k+s
, Rivitalo
77.5 m2
1-2/2
Jepuankatu 24 H 43
3h+k+s
, Rivitalo
77.5 m2
Floor 1-2/2
Jepuankatu 24 H 44
3h+k+s
, Rivitalo
77.5 m2
1-2/2
Jepuankatu 24 H 44
3h+k+s
, Rivitalo
77.5 m2
Floor 1-2/2
Jepuankatu 24 I 51
3h+k+s
, Rivitalo
77.5 m2
1-2/2
Jepuankatu 24 I 51
3h+k+s
, Rivitalo
77.5 m2
Floor 1-2/2
Jepuankatu 24 I 52
3h+k+s
, Rivitalo
77.5 m2
1-2/2
Jepuankatu 24 I 52
3h+k+s
, Rivitalo
77.5 m2
Floor 1-2/2
Jepuankatu 24 I 48
3h+k+s
, Rivitalo
77.5 m2
1-2/2
Jepuankatu 24 I 48
3h+k+s
, Rivitalo
77.5 m2
Floor 1-2/2
Jepuankatu 24 I 47
3h+k+s
, Rivitalo
77.5 m2
1-2/2
Jepuankatu 24 I 47
3h+k+s
, Rivitalo
77.5 m2
Floor 1-2/2
Jepuankatu 24 I 50
3h+k+s
, Rivitalo
77.5 m2
1-2/2
Jepuankatu 24 I 50
3h+k+s
, Rivitalo
77.5 m2
Floor 1-2/2
Jepuankatu 24 C 19
4h+k+s
, Rivitalo
88.5 m2
1-2/2
Jepuankatu 24 C 19
4h+k+s
, Rivitalo
88.5 m2
Floor 1-2/2
Jepuankatu 24 C 17
4h+k+s
, Rivitalo
88.5 m2
1-2/2
Jepuankatu 24 C 17
4h+k+s
, Rivitalo
88.5 m2
Floor 1-2/2
Jepuankatu 24 D 22
4h+k+s
, Rivitalo
88.5 m2
1-2/2
Jepuankatu 24 D 22
4h+k+s
, Rivitalo
88.5 m2
Floor 1-2/2
Jepuankatu 24 D 21
4h+k+s
, Rivitalo
88.5 m2
1-2/2
Jepuankatu 24 D 21
4h+k+s
, Rivitalo
88.5 m2
Floor 1-2/2
Jepuankatu 24 D 20
4h+k+s
, Rivitalo
88.5 m2
1-2/2
Jepuankatu 24 D 20
4h+k+s
, Rivitalo
88.5 m2
Floor 1-2/2
Jepuankatu 24 C 18
4h+k+s
, Rivitalo
88.5 m2
1-2/2
Jepuankatu 24 C 18
4h+k+s
, Rivitalo
88.5 m2
Floor 1-2/2