Kohteen esittely
Rivitalokohde, jossa on asuntoja pienistä kaksioista neliöihin. Osa asunnoista on luhtitalossa. Asukkaiden käytössä on mm. pesutupa.
Lähellä on päiväkoti, koulu ja ruokakauppa. Haarajoen juna-asema noin puolen kilometrin päässä.
Miksi Asuntosäätiö?
Me uskomme, että onnellinen koti ja laadukas asuminen kuuluvat kaikille. Emme tavoittele voittoa, vaan käytämme kaikki vastikkeista ja vuokrista saadut tulot toimintamme kehittämiseen. Jo yli 33 000 suomalaista on valinnut Asuntosäätiön tarjoaman kodin. Tiesithän, että myös lemmikit ovat tervetulleita kaikkiin koteihimme!
Rakennuksen tiedot
- Asumismuoto Asokoti
- Keskimääräinen asumisoikeusmaksu / jm² 194,21€
- Hissit Ei
- Talosauna Ei
- Pyykkitupa Kyllä
- Kuivaushuone Kyllä
- Asuntoja 52
- Asuinrakennuksia 9
- Käyttövastike / kk / jm² 14,07€
- Valmistumisvuosi 1994
- Peruskorjattu 2024
- Energialuokka D
- Lämmitysmuoto Kauko
- Autopaikat 53
- Kerhohuone 1
- Laajakaista Elisa
- Antennijärjestelmä Kaapeli
- KaapeliTV Elisa
- Kattomateriaali Tiili
- Runkomateriaali Betoni, Puu
- Lemmikit Sallittu
Huoneistot ja pohjakuvat: Jepuankatu 24, Luhtikäytävätalo, Piharakennus, Rivitalo
Lisää hakemukselle kaikki haluamasi asuntotyypit. Mahdollisuutesi asunnon saamiseksi paranevat, kun voimme tarjota sinulle kaikkia valitsemasi asuntotyypin asuntoja, jotka mahdollisesti vapautuvat myöhemmin tästä kohteesta. Olet automaattisesti näiden asuntotyyppien hakuprosessissa.
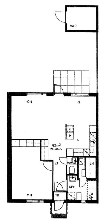
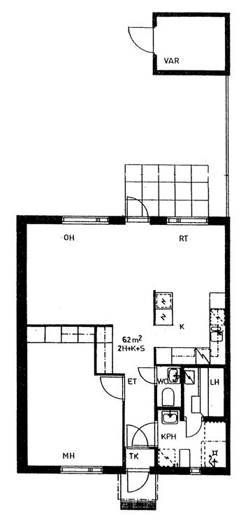
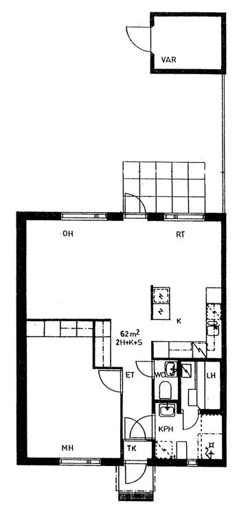
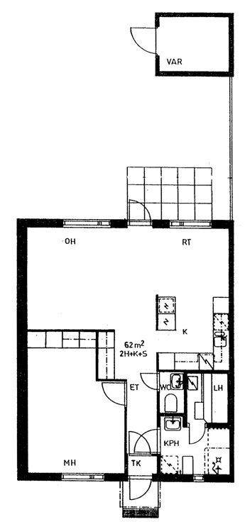
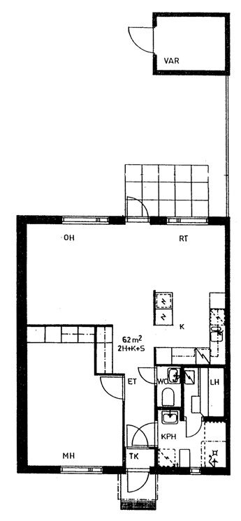
Jepuankatu 24 B 11
2h+k+s
, Rivitalo
62 m2
1/1
Jepuankatu 24 B 11
2h+k+s
, Rivitalo
62 m2
Kerros 1/1
Jepuankatu 24 B 13
2h+k+s
, Rivitalo
62 m2
1/1
Jepuankatu 24 B 13
2h+k+s
, Rivitalo
62 m2
Kerros 1/1
Jepuankatu 24 B 16
2h+k+s
, Rivitalo
62 m2
1/1
Jepuankatu 24 B 16
2h+k+s
, Rivitalo
62 m2
Kerros 1/1
Jepuankatu 24 B 10
2h+k+s
, Rivitalo
62 m2
1/1
Jepuankatu 24 B 10
2h+k+s
, Rivitalo
62 m2
Kerros 1/1
Jepuankatu 24 A 7
2h+k+s
, Rivitalo
62 m2
1/1
Jepuankatu 24 A 7
2h+k+s
, Rivitalo
62 m2
Kerros 1/1
Jepuankatu 24 A 5
2h+k+s
, Rivitalo
62 m2
1/1
Jepuankatu 24 A 5
2h+k+s
, Rivitalo
62 m2
Kerros 1/1
Jepuankatu 24 A 8
2h+k+s
, Rivitalo
62 m2
1/1
Jepuankatu 24 A 8
2h+k+s
, Rivitalo
62 m2
Kerros 1/1
Jepuankatu 24 A 1
2h+k+s
, Rivitalo
62 m2
1/1
Jepuankatu 24 A 1
2h+k+s
, Rivitalo
62 m2
Kerros 1/1
Jepuankatu 24 A 3
2h+k+s
, Rivitalo
62 m2
1/1
Jepuankatu 24 A 3
2h+k+s
, Rivitalo
62 m2
Kerros 1/1
Jepuankatu 24 A 4
2h+k+s
, Rivitalo
62 m2
1/1
Jepuankatu 24 A 4
2h+k+s
, Rivitalo
62 m2
Kerros 1/1
Jepuankatu 24 A 2
2h+k+s
, Rivitalo
62 m2
1/1
Jepuankatu 24 A 2
2h+k+s
, Rivitalo
62 m2
Kerros 1/1
Jepuankatu 24 A 6
2h+k+s
, Rivitalo
62 m2
1/1
Jepuankatu 24 A 6
2h+k+s
, Rivitalo
62 m2
Kerros 1/1
Jepuankatu 24 B 14
2h+k+s
, Rivitalo
62 m2
1/1
Jepuankatu 24 B 14
2h+k+s
, Rivitalo
62 m2
Kerros 1/1
Jepuankatu 24 B 15
2h+k+s
, Rivitalo
62 m2
1/1
Jepuankatu 24 B 15
2h+k+s
, Rivitalo
62 m2
Kerros 1/1
Jepuankatu 24 B 12
2h+k+s
, Rivitalo
62 m2
1/1
Jepuankatu 24 B 12
2h+k+s
, Rivitalo
62 m2
Kerros 1/1
Jepuankatu 24 B 9
2h+k+s
, Rivitalo
62 m2
1/1
Jepuankatu 24 B 9
2h+k+s
, Rivitalo
62 m2
Kerros 1/1
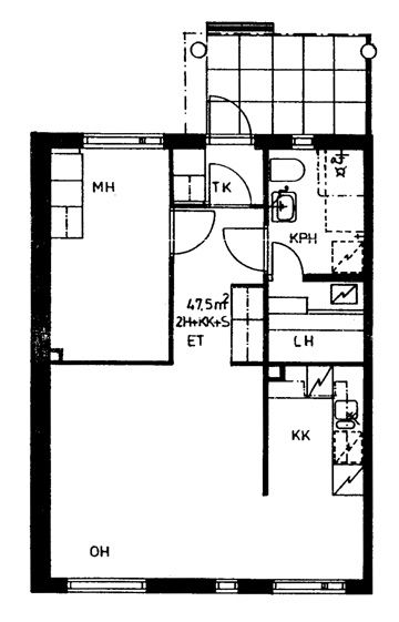
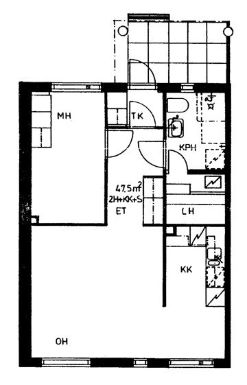
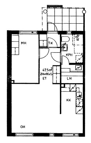
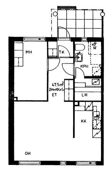
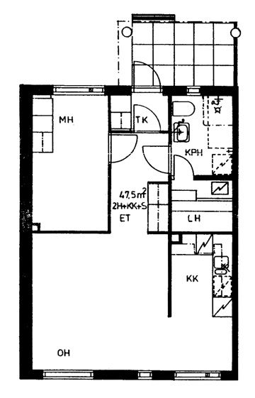
Jepuankatu 24 F 30
2h+kk+s
, Luhtikäytävätalo
47.5 m2
1/2
Jepuankatu 24 F 30
2h+kk+s
, Luhtikäytävätalo
47.5 m2
Kerros 1/2
Jepuankatu 24 G 40
2h+kk+s
, Luhtikäytävätalo
47.5 m2
2/2
Jepuankatu 24 G 40
2h+kk+s
, Luhtikäytävätalo
47.5 m2
Kerros 2/2
Jepuankatu 24 F 34
2h+kk+s
, Luhtikäytävätalo
47.5 m2
2/2
Jepuankatu 24 F 34
2h+kk+s
, Luhtikäytävätalo
47.5 m2
Kerros 2/2
Jepuankatu 24 F 31
2h+kk+s
, Luhtikäytävätalo
47.5 m2
1/2
Jepuankatu 24 F 31
2h+kk+s
, Luhtikäytävätalo
47.5 m2
Kerros 1/2
Jepuankatu 24 F 29
2h+kk+s
, Luhtikäytävätalo
47.5 m2
1/2
Jepuankatu 24 F 29
2h+kk+s
, Luhtikäytävätalo
47.5 m2
Kerros 1/2
Jepuankatu 24 F 33
2h+kk+s
, Luhtikäytävätalo
47.5 m2
2/2
Jepuankatu 24 F 33
2h+kk+s
, Luhtikäytävätalo
47.5 m2
Kerros 2/2
Jepuankatu 24 F 32
2h+kk+s
, Luhtikäytävätalo
47.5 m2
2/2
Jepuankatu 24 F 32
2h+kk+s
, Luhtikäytävätalo
47.5 m2
Kerros 2/2
Jepuankatu 24 E 26
2h+kk+s
, Luhtikäytävätalo
47.5 m2
2/2
Jepuankatu 24 E 26
2h+kk+s
, Luhtikäytävätalo
47.5 m2
Kerros 2/2
Jepuankatu 24 E 28
2h+kk+s
, Luhtikäytävätalo
47.5 m2
2/2
Jepuankatu 24 E 28
2h+kk+s
, Luhtikäytävätalo
47.5 m2
Kerros 2/2
Jepuankatu 24 E 23
2h+kk+s
, Luhtikäytävätalo
47.5 m2
1/2
Jepuankatu 24 E 23
2h+kk+s
, Luhtikäytävätalo
47.5 m2
Kerros 1/2
Jepuankatu 24 E 25
2h+kk+s
, Luhtikäytävätalo
47.5 m2
1/2
Jepuankatu 24 E 25
2h+kk+s
, Luhtikäytävätalo
47.5 m2
Kerros 1/2
Jepuankatu 24 E 27
2h+kk+s
, Luhtikäytävätalo
47.5 m2
2/2
Jepuankatu 24 E 27
2h+kk+s
, Luhtikäytävätalo
47.5 m2
Kerros 2/2
Jepuankatu 24 E 24
2h+kk+s
, Luhtikäytävätalo
47.5 m2
1/2
Jepuankatu 24 E 24
2h+kk+s
, Luhtikäytävätalo
47.5 m2
Kerros 1/2
Jepuankatu 24 G 38
2h+kk+s
, Luhtikäytävätalo
47.5 m2
2/2
Jepuankatu 24 G 38
2h+kk+s
, Luhtikäytävätalo
47.5 m2
Kerros 2/2
Jepuankatu 24 G 36
2h+kk+s
, Luhtikäytävätalo
47.5 m2
1/2
Jepuankatu 24 G 36
2h+kk+s
, Luhtikäytävätalo
47.5 m2
Kerros 1/2
Jepuankatu 24 G 37
2h+kk+s
, Luhtikäytävätalo
47.5 m2
1/2
Jepuankatu 24 G 37
2h+kk+s
, Luhtikäytävätalo
47.5 m2
Kerros 1/2
Jepuankatu 24 G 35
2h+kk+s
, Luhtikäytävätalo
47.5 m2
1/2
Jepuankatu 24 G 35
2h+kk+s
, Luhtikäytävätalo
47.5 m2
Kerros 1/2
Jepuankatu 24 G 39
2h+kk+s
, Luhtikäytävätalo
47.5 m2
2/2
Jepuankatu 24 G 39
2h+kk+s
, Luhtikäytävätalo
47.5 m2
Kerros 2/2
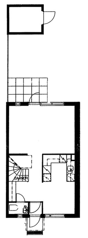
Jepuankatu 24 I 49
3h+k+s
, Rivitalo
77.5 m2
1-2/2
Jepuankatu 24 I 49
3h+k+s
, Rivitalo
77.5 m2
Kerros 1-2/2
Jepuankatu 24 H 45
3h+k+s
, Rivitalo
77.5 m2
1-2/2
Jepuankatu 24 H 45
3h+k+s
, Rivitalo
77.5 m2
Kerros 1-2/2
Jepuankatu 24 H 42
3h+k+s
, Rivitalo
77.5 m2
1-2/2
Jepuankatu 24 H 42
3h+k+s
, Rivitalo
77.5 m2
Kerros 1-2/2
Jepuankatu 24 H 41
3h+k+s
, Rivitalo
77.5 m2
1-2/2
Jepuankatu 24 H 41
3h+k+s
, Rivitalo
77.5 m2
Kerros 1-2/2
Jepuankatu 24 H 46
3h+k+s
, Rivitalo
77.5 m2
1-2/2
Jepuankatu 24 H 46
3h+k+s
, Rivitalo
77.5 m2
Kerros 1-2/2
Jepuankatu 24 H 43
3h+k+s
, Rivitalo
77.5 m2
1-2/2
Jepuankatu 24 H 43
3h+k+s
, Rivitalo
77.5 m2
Kerros 1-2/2
Jepuankatu 24 H 44
3h+k+s
, Rivitalo
77.5 m2
Kerros 1-2/2
Jepuankatu 24 I 51
3h+k+s
, Rivitalo
77.5 m2
Kerros 1-2/2
Jepuankatu 24 I 52
3h+k+s
, Rivitalo
77.5 m2
1-2/2
Jepuankatu 24 I 52
3h+k+s
, Rivitalo
77.5 m2
Kerros 1-2/2
Jepuankatu 24 I 48
3h+k+s
, Rivitalo
77.5 m2
1-2/2
Jepuankatu 24 I 48
3h+k+s
, Rivitalo
77.5 m2
Kerros 1-2/2
Jepuankatu 24 I 47
3h+k+s
, Rivitalo
77.5 m2
1-2/2
Jepuankatu 24 I 47
3h+k+s
, Rivitalo
77.5 m2
Kerros 1-2/2
Jepuankatu 24 I 50
3h+k+s
, Rivitalo
77.5 m2
1-2/2
Jepuankatu 24 I 50
3h+k+s
, Rivitalo
77.5 m2
Kerros 1-2/2
Jepuankatu 24 C 19
4h+k+s
, Rivitalo
88.5 m2
1-2/2
Jepuankatu 24 C 19
4h+k+s
, Rivitalo
88.5 m2
Kerros 1-2/2
Jepuankatu 24 C 17
4h+k+s
, Rivitalo
88.5 m2
1-2/2
Jepuankatu 24 C 17
4h+k+s
, Rivitalo
88.5 m2
Kerros 1-2/2
Jepuankatu 24 D 22
4h+k+s
, Rivitalo
88.5 m2
1-2/2
Jepuankatu 24 D 22
4h+k+s
, Rivitalo
88.5 m2
Kerros 1-2/2
Jepuankatu 24 D 21
4h+k+s
, Rivitalo
88.5 m2
1-2/2
Jepuankatu 24 D 21
4h+k+s
, Rivitalo
88.5 m2
Kerros 1-2/2
Jepuankatu 24 D 20
4h+k+s
, Rivitalo
88.5 m2
1-2/2
Jepuankatu 24 D 20
4h+k+s
, Rivitalo
88.5 m2
Kerros 1-2/2
Jepuankatu 24 C 18
4h+k+s
, Rivitalo
88.5 m2
1-2/2
Jepuankatu 24 C 18
4h+k+s
, Rivitalo
88.5 m2
Kerros 1-2/2