Property Introduction
Laajakallio on vehreän puistomainen alue, hyvillä kulkuyhteyksillä, mm. juna-asema sekä lähikauppa aivan kävelyetäisyydellä. Kohteessa on omatoimiviherhoito.
Kirkkonummen keskustan kattavat palvelut alle 3km matkan päässä. Autoilijoille nopeat kulkuyhteydet pääkaupunkiseudun suuntaan takaa läheinen Länsiväylä ja esimerkiksi Espoon Iso-Omenaan on vartin ajomatka.
Why Asuntosäätiö?
We believe that a happy home and quality living are for everyone. We do not seek immediate profit or financial benefit. We use the assets gained from our operations to develop our real estate. Over 33,000 Finns have already chosen a home offered by Asuntosäätiö. Pets are also welcome in all our homes.
Basic house info
- Form of housing Right-of-occupancy
- Average right-of-occupancy payment / jm² 372,24€
- Elevators No
- House sauna No
- Apartment count 30
- Building count 8
- Residence charge / month / jm² 12,5€
- Construction year 2001
- Energy class D
- Heating Kauko
- Parking spaces 47
- Broadband Elisa
- TV-antenna system Kaapeli
- CableTV Elisa
- Roof material Tiili
- House frame material Betoni
- Pets Allowed
Apartments and floor plans: Jättiläisenkaari 3, Rivitalo, Piharakennus, Erillistalo
Add all the apartment types you want to your application. Your opportunity to get an apartment increases when we are able to offer you all of the apartment types that may be available later on in this property. You are automatically in queue for these apartment types.
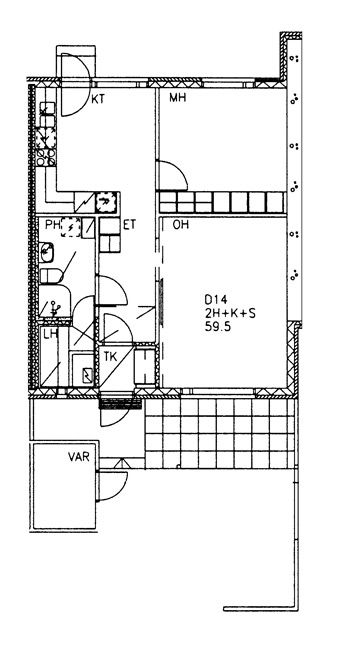
Jättiläisenkaari 3 D 14
2h+k+s
, Erillistalo
59.5 m2
1/1
Jättiläisenkaari 3 D 14
2h+k+s
, Erillistalo
59.5 m2
Floor 1/1
Jättiläisenkaari 3 D 13
2h+k+s
, Erillistalo
59.5 m2
1/1
Jättiläisenkaari 3 D 13
2h+k+s
, Erillistalo
59.5 m2
Floor 1/1
Jättiläisenkaari 3 E 16
2h+k+s
, Rivitalo
59.5 m2
1/2
Jättiläisenkaari 3 E 16
2h+k+s
, Rivitalo
59.5 m2
Floor 1/2
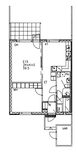
Jättiläisenkaari 3 E 15
2h+k+s
, Rivitalo
59.5 m2
1/2
Jättiläisenkaari 3 E 15
2h+k+s
, Rivitalo
59.5 m2
Floor 1/2
Jättiläisenkaari 3 G 25
3h+k+s
, Rivitalo
83.5 m2
1-2/2
Jättiläisenkaari 3 G 25
3h+k+s
, Rivitalo
83.5 m2
Floor 1-2/2
Jättiläisenkaari 3 G 24
3h+k+s
, Rivitalo
83.5 m2
1-2/2
Jättiläisenkaari 3 G 24
3h+k+s
, Rivitalo
83.5 m2
Floor 1-2/2
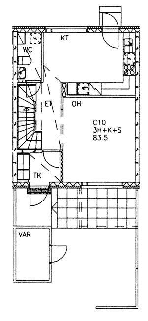
Jättiläisenkaari 3 C 10
3h+k+s
, Rivitalo
83.5 m2
1-2/2
Jättiläisenkaari 3 C 10
3h+k+s
, Rivitalo
83.5 m2
Floor 1-2/2
Jättiläisenkaari 3 C 11
3h+k+s
, Rivitalo
83.5 m2
1-2/2
Jättiläisenkaari 3 C 11
3h+k+s
, Rivitalo
83.5 m2
Floor 1-2/2
Jättiläisenkaari 3 G 26
3h+k+s
, Rivitalo
84 m2
1-2/2
Jättiläisenkaari 3 G 26
3h+k+s
, Rivitalo
84 m2
Floor 1-2/2
Jättiläisenkaari 3 G 23
3h+k+s
, Rivitalo
84 m2
1-2/2
Jättiläisenkaari 3 G 23
3h+k+s
, Rivitalo
84 m2
Floor 1-2/2
Jättiläisenkaari 3 C 9
3h+k+s
, Rivitalo
84 m2
1-2/2
Jättiläisenkaari 3 C 9
3h+k+s
, Rivitalo
84 m2
Floor 1-2/2
Jättiläisenkaari 3 C 12
3h+k+s
, Rivitalo
84 m2
1-2/2
Jättiläisenkaari 3 C 12
3h+k+s
, Rivitalo
84 m2
Floor 1-2/2
Jättiläisenkaari 3 A 3
3h+k+s
, Rivitalo
85 m2
1-2/2
Jättiläisenkaari 3 A 3
3h+k+s
, Rivitalo
85 m2
Floor 1-2/2
Jättiläisenkaari 3 A 2
3h+k+s
, Rivitalo
85 m2
1-2/2
Jättiläisenkaari 3 A 2
3h+k+s
, Rivitalo
85 m2
Floor 1-2/2
Jättiläisenkaari 3 E 17
3h+k+s
, Rivitalo
85.5 m2
1-2/2
Jättiläisenkaari 3 E 17
3h+k+s
, Rivitalo
85.5 m2
Floor 1-2/2
Jättiläisenkaari 3 E 18
3h+k+s
, Rivitalo
85.5 m2
1-2/2
Jättiläisenkaari 3 E 18
3h+k+s
, Rivitalo
85.5 m2
Floor 1-2/2
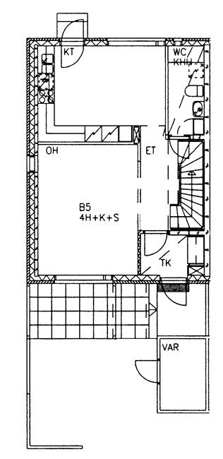
Jättiläisenkaari 3 F 20
4h+k+s
, Rivitalo
95.5 m2
1-2/2
Jättiläisenkaari 3 F 20
4h+k+s
, Rivitalo
95.5 m2
Floor 1-2/2
Jättiläisenkaari 3 F 21
4h+k+s
, Rivitalo
95.5 m2
1-2/2
Jättiläisenkaari 3 F 21
4h+k+s
, Rivitalo
95.5 m2
Floor 1-2/2
Jättiläisenkaari 3 H 28
4h+k+s
, Rivitalo
95.5 m2
1-2/2
Jättiläisenkaari 3 H 28
4h+k+s
, Rivitalo
95.5 m2
Floor 1-2/2
Jättiläisenkaari 3 H 29
4h+k+s
, Rivitalo
95.5 m2
1-2/2
Jättiläisenkaari 3 H 29
4h+k+s
, Rivitalo
95.5 m2
Floor 1-2/2
Jättiläisenkaari 3 B 6
4h+k+s
, Rivitalo
95.5 m2
1-2/2
Jättiläisenkaari 3 B 6
4h+k+s
, Rivitalo
95.5 m2
Floor 1-2/2
Jättiläisenkaari 3 B 7
4h+k+s
, Rivitalo
95.5 m2
1-2/2
Jättiläisenkaari 3 B 7
4h+k+s
, Rivitalo
95.5 m2
Floor 1-2/2
Jättiläisenkaari 3 F 22
4h+k+s
, Rivitalo
96 m2
1-2/2
Jättiläisenkaari 3 F 22
4h+k+s
, Rivitalo
96 m2
Floor 1-2/2
Jättiläisenkaari 3 F 19
4h+k+s
, Rivitalo
96 m2
1-2/2
Jättiläisenkaari 3 F 19
4h+k+s
, Rivitalo
96 m2
Floor 1-2/2
Jättiläisenkaari 3 H 30
4h+k+s
, Rivitalo
96 m2
1-2/2
Jättiläisenkaari 3 H 30
4h+k+s
, Rivitalo
96 m2
Floor 1-2/2
Jättiläisenkaari 3 H 27
4h+k+s
, Rivitalo
96 m2
1-2/2
Jättiläisenkaari 3 H 27
4h+k+s
, Rivitalo
96 m2
Floor 1-2/2
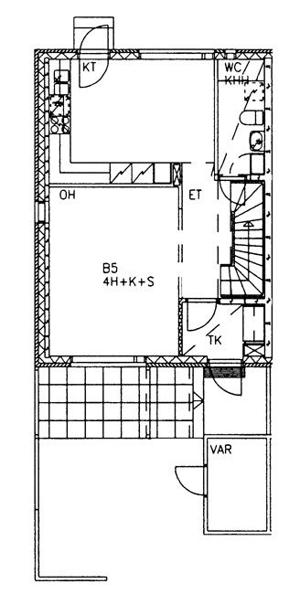
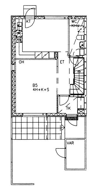
Jättiläisenkaari 3 B 5
4h+k+s
, Rivitalo
96 m2
1-2/2
Jättiläisenkaari 3 B 5
4h+k+s
, Rivitalo
96 m2
Floor 1-2/2
Jättiläisenkaari 3 B 8
4h+k+s
, Rivitalo
96 m2
1-2/2
Jättiläisenkaari 3 B 8
4h+k+s
, Rivitalo
96 m2
Floor 1-2/2
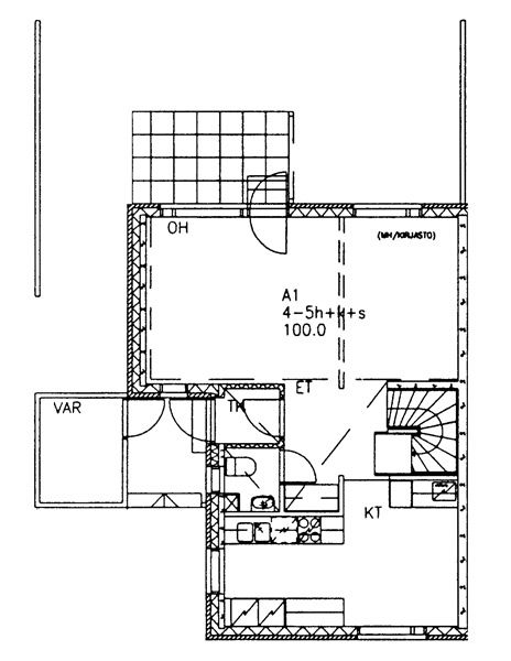
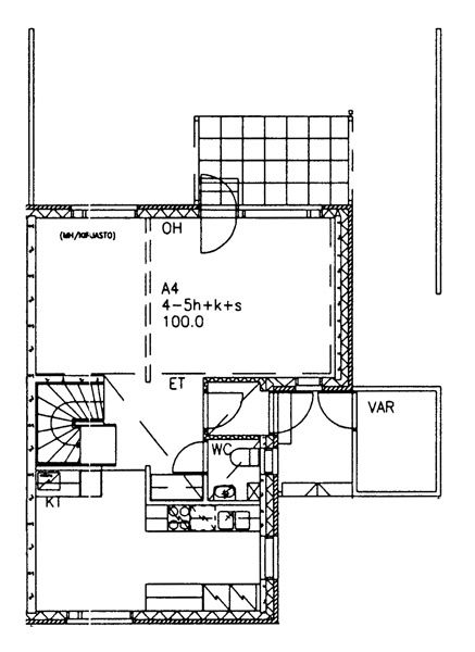
Jättiläisenkaari 3 A 4
4h+k+s
, Rivitalo
100 m2
1-2/2
Jättiläisenkaari 3 A 4
4h+k+s
, Rivitalo
100 m2
Floor 1-2/2
Jättiläisenkaari 3 A 1
5h+k+s
, Rivitalo
100 m2
1-2/2
Jättiläisenkaari 3 A 1
5h+k+s
, Rivitalo
100 m2
Floor 1-2/2
