Kohteen esittely
Laajakallio on vehreän puistomainen alue, hyvillä kulkuyhteyksillä, mm. juna-asema sekä lähikauppa aivan kävelyetäisyydellä. Kohteessa on omatoimiviherhoito.
Kirkkonummen keskustan kattavat palvelut alle 3km matkan päässä. Autoilijoille nopeat kulkuyhteydet pääkaupunkiseudun suuntaan takaa läheinen Länsiväylä ja esimerkiksi Espoon Iso-Omenaan on vartin ajomatka.
Miksi Asuntosäätiö?
Me uskomme, että onnellinen koti ja laadukas asuminen kuuluvat kaikille. Emme tavoittele voittoa, vaan käytämme kaikki vastikkeista ja vuokrista saadut tulot toimintamme kehittämiseen. Jo yli 33 000 suomalaista on valinnut Asuntosäätiön tarjoaman kodin. Tiesithän, että myös lemmikit ovat tervetulleita kaikkiin koteihimme!
Rakennuksen tiedot
- Asumismuoto Asokoti
- Keskimääräinen asumisoikeusmaksu / jm² 372,24€
- Hissit Ei
- Talosauna Ei
- Asuntoja 30
- Asuinrakennuksia 8
- Käyttövastike / kk / jm² 12,5€
- Valmistumisvuosi 2001
- Energialuokka D
- Lämmitysmuoto Kauko
- Autopaikat 47
- Laajakaista Elisa
- Antennijärjestelmä Kaapeli
- KaapeliTV Elisa
- Kattomateriaali Tiili
- Runkomateriaali Betoni
- Lemmikit Sallittu
Huoneistot ja pohjakuvat: Jättiläisenkaari 3, Rivitalo, Piharakennus, Erillistalo
Lisää hakemukselle kaikki haluamasi asuntotyypit. Mahdollisuutesi asunnon saamiseksi paranevat, kun voimme tarjota sinulle kaikkia valitsemasi asuntotyypin asuntoja, jotka mahdollisesti vapautuvat myöhemmin tästä kohteesta. Olet automaattisesti näiden asuntotyyppien hakuprosessissa.
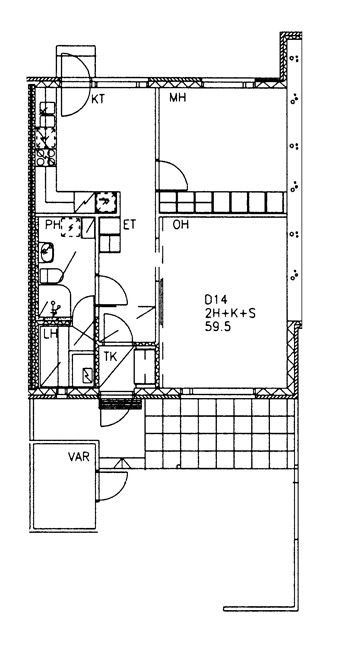
Jättiläisenkaari 3 D 14
2h+k+s
, Erillistalo
59.5 m2
1/1
Jättiläisenkaari 3 D 14
2h+k+s
, Erillistalo
59.5 m2
Kerros 1/1
Jättiläisenkaari 3 D 13
2h+k+s
, Erillistalo
59.5 m2
1/1
Jättiläisenkaari 3 D 13
2h+k+s
, Erillistalo
59.5 m2
Kerros 1/1
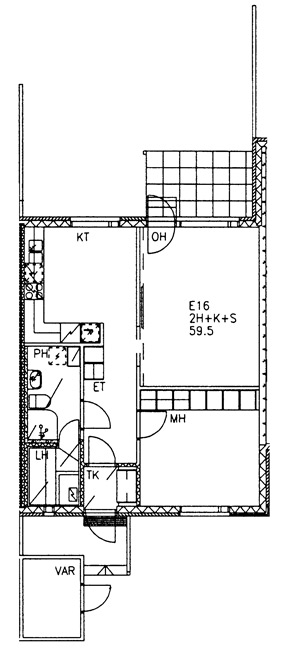
Jättiläisenkaari 3 E 16
2h+k+s
, Rivitalo
59.5 m2
1/2
Jättiläisenkaari 3 E 16
2h+k+s
, Rivitalo
59.5 m2
Kerros 1/2
Jättiläisenkaari 3 E 15
2h+k+s
, Rivitalo
59.5 m2
1/2
Jättiläisenkaari 3 E 15
2h+k+s
, Rivitalo
59.5 m2
Kerros 1/2
Jättiläisenkaari 3 G 25
3h+k+s
, Rivitalo
83.5 m2
1-2/2
Jättiläisenkaari 3 G 25
3h+k+s
, Rivitalo
83.5 m2
Kerros 1-2/2
Jättiläisenkaari 3 G 24
3h+k+s
, Rivitalo
83.5 m2
1-2/2
Jättiläisenkaari 3 G 24
3h+k+s
, Rivitalo
83.5 m2
Kerros 1-2/2
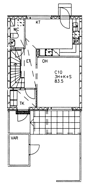
Jättiläisenkaari 3 C 10
3h+k+s
, Rivitalo
83.5 m2
1-2/2
Jättiläisenkaari 3 C 10
3h+k+s
, Rivitalo
83.5 m2
Kerros 1-2/2
Jättiläisenkaari 3 C 11
3h+k+s
, Rivitalo
83.5 m2
1-2/2
Jättiläisenkaari 3 C 11
3h+k+s
, Rivitalo
83.5 m2
Kerros 1-2/2
Jättiläisenkaari 3 G 26
3h+k+s
, Rivitalo
84 m2
1-2/2
Jättiläisenkaari 3 G 26
3h+k+s
, Rivitalo
84 m2
Kerros 1-2/2
Jättiläisenkaari 3 G 23
3h+k+s
, Rivitalo
84 m2
1-2/2
Jättiläisenkaari 3 G 23
3h+k+s
, Rivitalo
84 m2
Kerros 1-2/2
Jättiläisenkaari 3 C 9
3h+k+s
, Rivitalo
84 m2
1-2/2
Jättiläisenkaari 3 C 9
3h+k+s
, Rivitalo
84 m2
Kerros 1-2/2
Jättiläisenkaari 3 C 12
3h+k+s
, Rivitalo
84 m2
1-2/2
Jättiläisenkaari 3 C 12
3h+k+s
, Rivitalo
84 m2
Kerros 1-2/2
Jättiläisenkaari 3 A 3
3h+k+s
, Rivitalo
85 m2
1-2/2
Jättiläisenkaari 3 A 3
3h+k+s
, Rivitalo
85 m2
Kerros 1-2/2
Jättiläisenkaari 3 A 2
3h+k+s
, Rivitalo
85 m2
1-2/2
Jättiläisenkaari 3 A 2
3h+k+s
, Rivitalo
85 m2
Kerros 1-2/2
Jättiläisenkaari 3 E 17
3h+k+s
, Rivitalo
85.5 m2
1-2/2
Jättiläisenkaari 3 E 17
3h+k+s
, Rivitalo
85.5 m2
Kerros 1-2/2
Jättiläisenkaari 3 E 18
3h+k+s
, Rivitalo
85.5 m2
1-2/2
Jättiläisenkaari 3 E 18
3h+k+s
, Rivitalo
85.5 m2
Kerros 1-2/2
Jättiläisenkaari 3 F 20
4h+k+s
, Rivitalo
95.5 m2
1-2/2
Jättiläisenkaari 3 F 20
4h+k+s
, Rivitalo
95.5 m2
Kerros 1-2/2
Jättiläisenkaari 3 F 21
4h+k+s
, Rivitalo
95.5 m2
1-2/2
Jättiläisenkaari 3 F 21
4h+k+s
, Rivitalo
95.5 m2
Kerros 1-2/2
Jättiläisenkaari 3 H 28
4h+k+s
, Rivitalo
95.5 m2
1-2/2
Jättiläisenkaari 3 H 28
4h+k+s
, Rivitalo
95.5 m2
Kerros 1-2/2
Jättiläisenkaari 3 H 29
4h+k+s
, Rivitalo
95.5 m2
1-2/2
Jättiläisenkaari 3 H 29
4h+k+s
, Rivitalo
95.5 m2
Kerros 1-2/2
Jättiläisenkaari 3 B 6
4h+k+s
, Rivitalo
95.5 m2
1-2/2
Jättiläisenkaari 3 B 6
4h+k+s
, Rivitalo
95.5 m2
Kerros 1-2/2
Jättiläisenkaari 3 B 7
4h+k+s
, Rivitalo
95.5 m2
1-2/2
Jättiläisenkaari 3 B 7
4h+k+s
, Rivitalo
95.5 m2
Kerros 1-2/2
Jättiläisenkaari 3 F 22
4h+k+s
, Rivitalo
96 m2
1-2/2
Jättiläisenkaari 3 F 22
4h+k+s
, Rivitalo
96 m2
Kerros 1-2/2
Jättiläisenkaari 3 F 19
4h+k+s
, Rivitalo
96 m2
1-2/2
Jättiläisenkaari 3 F 19
4h+k+s
, Rivitalo
96 m2
Kerros 1-2/2
Jättiläisenkaari 3 H 30
4h+k+s
, Rivitalo
96 m2
1-2/2
Jättiläisenkaari 3 H 30
4h+k+s
, Rivitalo
96 m2
Kerros 1-2/2
Jättiläisenkaari 3 H 27
4h+k+s
, Rivitalo
96 m2
1-2/2
Jättiläisenkaari 3 H 27
4h+k+s
, Rivitalo
96 m2
Kerros 1-2/2
Jättiläisenkaari 3 B 5
4h+k+s
, Rivitalo
96 m2
1-2/2
Jättiläisenkaari 3 B 5
4h+k+s
, Rivitalo
96 m2
Kerros 1-2/2
Jättiläisenkaari 3 B 8
4h+k+s
, Rivitalo
96 m2
1-2/2
Jättiläisenkaari 3 B 8
4h+k+s
, Rivitalo
96 m2
Kerros 1-2/2
Jättiläisenkaari 3 A 4
4h+k+s
, Rivitalo
100 m2
1-2/2
Jättiläisenkaari 3 A 4
4h+k+s
, Rivitalo
100 m2
Kerros 1-2/2
Jättiläisenkaari 3 A 1
5h+k+s
, Rivitalo
100 m2
1-2/2
Jättiläisenkaari 3 A 1
5h+k+s
, Rivitalo
100 m2
Kerros 1-2/2
