Property Introduction
Viihtyisä rivitalokoti rauhalliselta ja lapsiystävälliseltä Gunnarlan alueelta. Asunnot ovat saunallisia 3-4 huoneen ja keittiön asuntoja.
Koulut ja päiväkoti ovat lähietäisyydellä, uimahalliin lyhyehkö matka. Tervetuloa viihtymään Gunnarlaan.
Why Asuntosäätiö?
We believe that a happy home and quality living are for everyone. We do not seek immediate profit or financial benefit. We use the assets gained from our operations to develop our real estate. Over 33,000 Finns have already chosen a home offered by Asuntosäätiö. Pets are also welcome in all our homes.
Basic house info
- Form of housing Right-of-occupancy
- Average right-of-occupancy payment / jm² 325,66€
- Elevators No
- House sauna No
- Apartment count 12
- Building count 4
- Residence charge / month / jm² 11,55€
- Construction year 1999
- Energy class D
- Heating Kauko
- Parking spaces 12
- Broadband DNA Welho
- TV-antenna system Kaapeli
- CableTV DNA
- Roof material Tiili
- House frame material Betoni
- Pets Allowed
Apartments and floor plans: Metsolankuja 4, Rivitalo, Piharakennus, Paritalo
Add all the apartment types you want to your application. Your opportunity to get an apartment increases when we are able to offer you all of the apartment types that may be available later on in this property. You are automatically in queue for these apartment types.
Metsolankuja 4 B 4
3h+k+s
, Rivitalo
69 m2
2/2
Metsolankuja 4 B 4
3h+k+s
, Rivitalo
69 m2
Floor 2/2
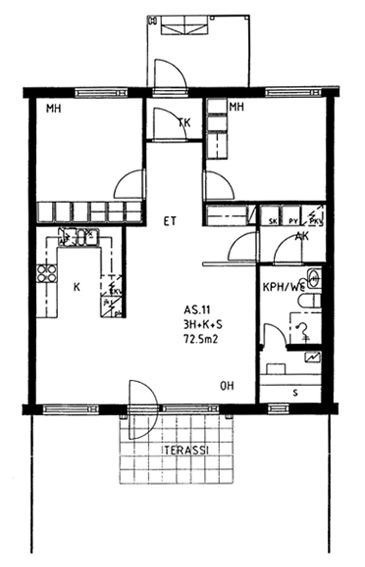
Metsolankuja 4 D 12
3h+k+s
, Rivitalo
72.5 m2
1/2
Metsolankuja 4 D 12
3h+k+s
, Rivitalo
72.5 m2
Floor 1/2
Metsolankuja 4 D 11
3h+k+s
, Rivitalo
72.5 m2
1/2
Metsolankuja 4 D 11
3h+k+s
, Rivitalo
72.5 m2
Floor 1/2
Metsolankuja 4 A 1
3h+k+s
, Rivitalo
72.5 m2
1/1
Metsolankuja 4 A 1
3h+k+s
, Rivitalo
72.5 m2
Floor 1/1
Metsolankuja 4 A 2
3h+k+s
, Rivitalo
72.5 m2
1/1
Metsolankuja 4 A 2
3h+k+s
, Rivitalo
72.5 m2
Floor 1/1
Metsolankuja 4 A 3
3h+k+s
, Rivitalo
72.5 m2
1/1
Metsolankuja 4 A 3
3h+k+s
, Rivitalo
72.5 m2
Floor 1/1
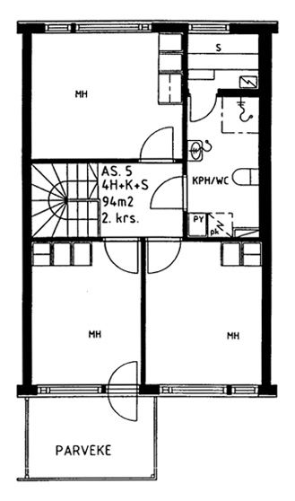
Metsolankuja 4 D 9
4h+k+s
, Rivitalo
94 m2
1-2/2
Metsolankuja 4 D 9
4h+k+s
, Rivitalo
94 m2
Floor 1-2/2
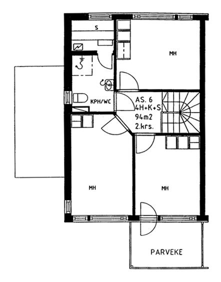
Metsolankuja 4 C 7
4h+k+s
, Paritalo
94 m2
1-2/2
Metsolankuja 4 C 7
4h+k+s
, Paritalo
94 m2
Floor 1-2/2
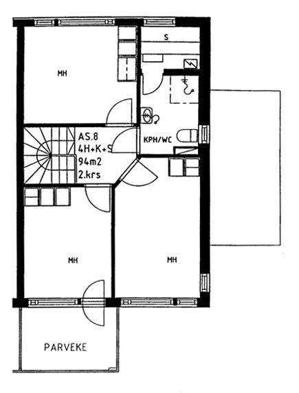
Metsolankuja 4 C 8
4h+k+s
, Paritalo
94 m2
1-2/2
Metsolankuja 4 C 8
4h+k+s
, Paritalo
94 m2
Floor 1-2/2
Metsolankuja 4 B 5
4h+k+s
, Rivitalo
94 m2
1-2/2
Metsolankuja 4 B 5
4h+k+s
, Rivitalo
94 m2
Floor 1-2/2
Metsolankuja 4 B 6
4h+k+s
, Rivitalo
94 m2
1-2/2
Metsolankuja 4 B 6
4h+k+s
, Rivitalo
94 m2
Floor 1-2/2
