Kohteen esittely
Viihtyisä rivitalokoti rauhalliselta ja lapsiystävälliseltä Gunnarlan alueelta. Asunnot ovat saunallisia 3-4 huoneen ja keittiön asuntoja.
Koulut ja päiväkoti ovat lähietäisyydellä, uimahalliin lyhyehkö matka. Tervetuloa viihtymään Gunnarlaan.
Miksi Asuntosäätiö?
Me uskomme, että onnellinen koti ja laadukas asuminen kuuluvat kaikille. Emme tavoittele voittoa, vaan käytämme kaikki vastikkeista ja vuokrista saadut tulot toimintamme kehittämiseen. Jo yli 33 000 suomalaista on valinnut Asuntosäätiön tarjoaman kodin. Tiesithän, että myös lemmikit ovat tervetulleita kaikkiin koteihimme!
Rakennuksen tiedot
- Asumismuoto Asokoti
- Keskimääräinen asumisoikeusmaksu / jm² 325,66€
- Hissit Ei
- Talosauna Ei
- Asuntoja 12
- Asuinrakennuksia 4
- Käyttövastike / kk / jm² 11,55€
- Valmistumisvuosi 1999
- Energialuokka D
- Lämmitysmuoto Kauko
- Autopaikat 12
- Laajakaista DNA Welho
- Antennijärjestelmä Kaapeli
- KaapeliTV DNA
- Kattomateriaali Tiili
- Runkomateriaali Betoni
- Lemmikit Sallittu
Huoneistot ja pohjakuvat: Metsolankuja 4, Rivitalo, Piharakennus, Paritalo
Lisää hakemukselle kaikki haluamasi asuntotyypit. Mahdollisuutesi asunnon saamiseksi paranevat, kun voimme tarjota sinulle kaikkia valitsemasi asuntotyypin asuntoja, jotka mahdollisesti vapautuvat myöhemmin tästä kohteesta. Olet automaattisesti näiden asuntotyyppien hakuprosessissa.
Metsolankuja 4 B 4
3h+k+s
, Rivitalo
69 m2
Kerros 2/2
Metsolankuja 4 D 12
3h+k+s
, Rivitalo
72.5 m2
1/2
Metsolankuja 4 D 12
3h+k+s
, Rivitalo
72.5 m2
Kerros 1/2
Metsolankuja 4 D 11
3h+k+s
, Rivitalo
72.5 m2
1/2
Metsolankuja 4 D 11
3h+k+s
, Rivitalo
72.5 m2
Kerros 1/2
Metsolankuja 4 A 1
3h+k+s
, Rivitalo
72.5 m2
1/1
Metsolankuja 4 A 1
3h+k+s
, Rivitalo
72.5 m2
Kerros 1/1
Metsolankuja 4 A 2
3h+k+s
, Rivitalo
72.5 m2
1/1
Metsolankuja 4 A 2
3h+k+s
, Rivitalo
72.5 m2
Kerros 1/1
Metsolankuja 4 A 3
3h+k+s
, Rivitalo
72.5 m2
1/1
Metsolankuja 4 A 3
3h+k+s
, Rivitalo
72.5 m2
Kerros 1/1
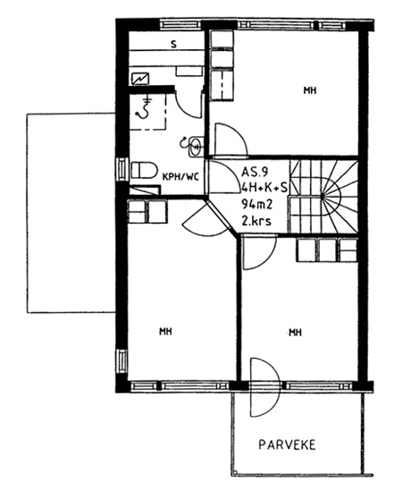
Metsolankuja 4 D 9
4h+k+s
, Rivitalo
94 m2
Kerros 1-2/2
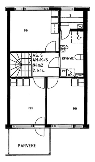
Metsolankuja 4 C 7
4h+k+s
, Paritalo
94 m2
1-2/2
Metsolankuja 4 C 7
4h+k+s
, Paritalo
94 m2
Kerros 1-2/2
Metsolankuja 4 C 8
4h+k+s
, Paritalo
94 m2
1-2/2
Metsolankuja 4 C 8
4h+k+s
, Paritalo
94 m2
Kerros 1-2/2
Metsolankuja 4 B 5
4h+k+s
, Rivitalo
94 m2
1-2/2
Metsolankuja 4 B 5
4h+k+s
, Rivitalo
94 m2
Kerros 1-2/2
Metsolankuja 4 B 6
4h+k+s
, Rivitalo
94 m2
1-2/2
Metsolankuja 4 B 6
4h+k+s
, Rivitalo
94 m2
Kerros 1-2/2
