Property Introduction
Kaksi kivirakenteista hissillistä asuinkerrostaloa ja piharakennus muodostavat suojaisan oleskelupihan. Asuntojen koot vaihtelevat yhden huoneen ja keittiön asunnoista, kaksioihin, kolmioihin ja neljän huoneen ja keittiön asuntoihin. Kaikissa asunnoissa on oma sauna. Osassa asuntoja on parveke. Lapsille on turvallinen ja vehreä leikkialue.
Peltolan kaupunginosa sijaitsee parin kilometrin etäisyydellä Oulun ydinkeskustasta Kajaanintien varressa, rauhallisella alueella. Marketit, koulu ja keskussairaala ovat lähellä. Kävelymatkan päässä Oulun joen rannalla uimaranta. Hyvät kulkuyhteydet eri liikennevälineillä, helppo kulku myös moottoritielle.
Why Asuntosäätiö?
We believe that a happy home and quality living are for everyone. We do not seek immediate profit or financial benefit. We use the assets gained from our operations to develop our real estate. Over 33,000 Finns have already chosen a home offered by Asuntosäätiö. Pets are also welcome in all our homes.
Basic house info
- Form of housing Right-of-occupancy
- Average right-of-occupancy payment / jm² 309,16€
- Elevators 2
- House sauna No
- Drying room Yes
- Apartment count 33
- Building count 2
- Residence charge / month / jm² 12,05€
- Construction year 1998
- Staircases 2
- Energy class E
- Heating Kauko
- Parking spaces 34
- Clubroom 1
- Broadband DNA Welho
- TV-antenna system Kaapeli
- CableTV DNA
- Roof material Pelti
- House frame material Betoni
- Pets Allowed
Apartments and floor plans: Peltolankaari 13, Piharakennus, Kerrostalo
Add all the apartment types you want to your application. Your opportunity to get an apartment increases when we are able to offer you all of the apartment types that may be available later on in this property. You are automatically in queue for these apartment types.
Peltolankaari 13 A 4
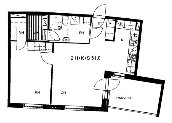
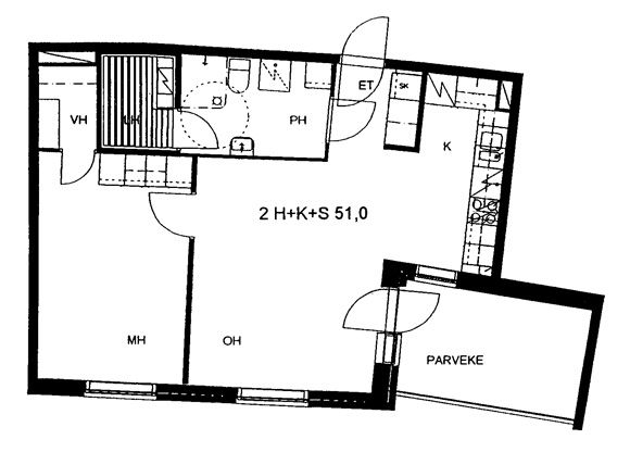
1h+k+s
, Kerrostalo
43 m2
1/3
Peltolankaari 13 A 4
1h+k+s
, Kerrostalo
43 m2
Floor 1/3
Peltolankaari 13 A 10
1h+k+s
, Kerrostalo
43 m2
2/3
Peltolankaari 13 A 10
1h+k+s
, Kerrostalo
43 m2
Floor 2/3
Peltolankaari 13 A 16
1h+k+s
, Kerrostalo
43 m2
3/3
Peltolankaari 13 A 16
1h+k+s
, Kerrostalo
43 m2
Floor 3/3
Peltolankaari 13 A 11
1h+k+s
, Kerrostalo
43 m2
3/3
Peltolankaari 13 A 11
1h+k+s
, Kerrostalo
43 m2
Floor 3/3
Peltolankaari 13 A 5
1h+k+s
, Kerrostalo
43 m2
2/3
Peltolankaari 13 A 5
1h+k+s
, Kerrostalo
43 m2
Floor 2/3
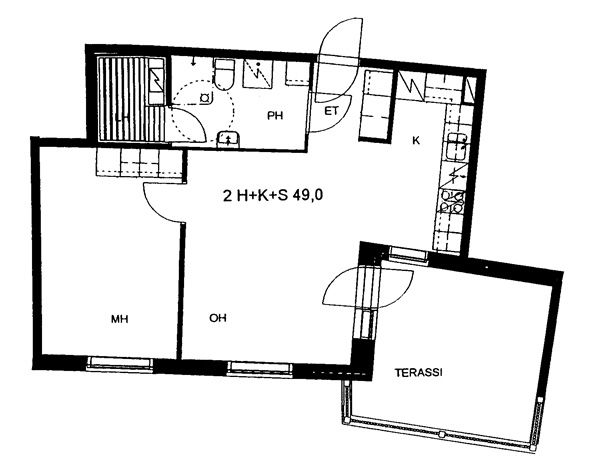
Peltolankaari 13 B 21
2h+k+s
, Kerrostalo
49 m2
1/3
Peltolankaari 13 B 21
2h+k+s
, Kerrostalo
49 m2
Floor 1/3
Peltolankaari 13 B 27
2h+k+s
, Kerrostalo
51 m2
2/3
Peltolankaari 13 B 27
2h+k+s
, Kerrostalo
51 m2
Floor 2/3
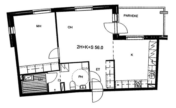
Peltolankaari 13 B 33
2h+k+s
, Kerrostalo
51 m2
3/3
Peltolankaari 13 B 33
2h+k+s
, Kerrostalo
51 m2
Floor 3/3
Peltolankaari 13 B 28
2h+k+s
, Kerrostalo
51 m2
3/3
Peltolankaari 13 B 28
2h+k+s
, Kerrostalo
51 m2
Floor 3/3
Peltolankaari 13 B 22
2h+k+s
, Kerrostalo
51 m2
2/3
Peltolankaari 13 B 22
2h+k+s
, Kerrostalo
51 m2
Floor 2/3
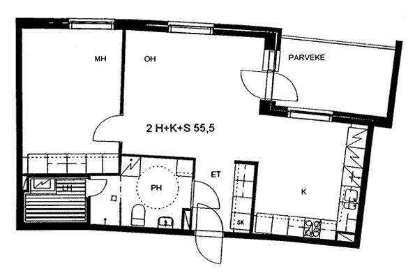
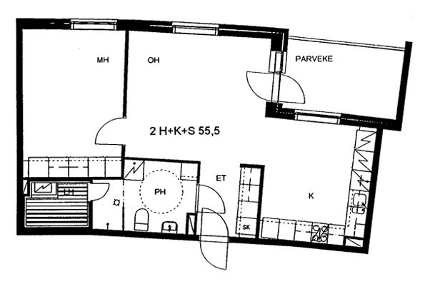
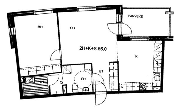
Peltolankaari 13 A 7
2h+k+s
, Kerrostalo
55.5 m2
2/3
Peltolankaari 13 A 7
2h+k+s
, Kerrostalo
55.5 m2
Floor 2/3
Peltolankaari 13 A 14
2h+k+s
, Kerrostalo
55.5 m2
3/3
Peltolankaari 13 A 14
2h+k+s
, Kerrostalo
55.5 m2
Floor 3/3
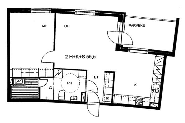
Peltolankaari 13 A 13
2h+k+s
, Kerrostalo
55.5 m2
3/3
Peltolankaari 13 A 13
2h+k+s
, Kerrostalo
55.5 m2
Floor 3/3
Peltolankaari 13 A 8
2h+k+s
, Kerrostalo
55.5 m2
2/3
Peltolankaari 13 A 8
2h+k+s
, Kerrostalo
55.5 m2
Floor 2/3
Peltolankaari 13 A 2
2h+k+s
, Kerrostalo
55.5 m2
1/3
Peltolankaari 13 A 2
2h+k+s
, Kerrostalo
55.5 m2
Floor 1/3
Peltolankaari 13 A 1
2h+k+s
, Kerrostalo
55.5 m2
1/3
Peltolankaari 13 A 1
2h+k+s
, Kerrostalo
55.5 m2
Floor 1/3
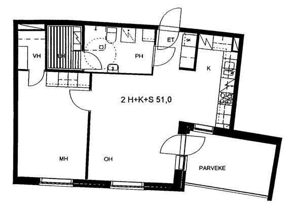
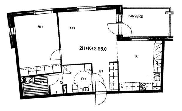
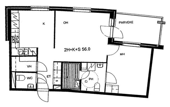
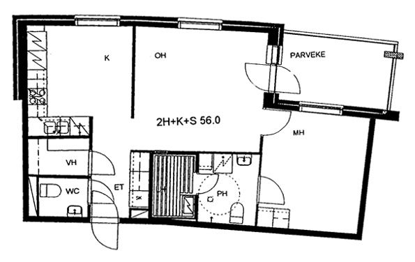
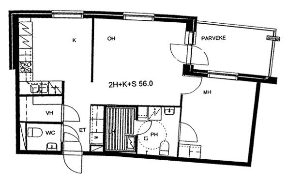
Peltolankaari 13 B 19
2h+k+s
, Kerrostalo
56 m2
1/3
Peltolankaari 13 B 19
2h+k+s
, Kerrostalo
56 m2
Floor 1/3
Peltolankaari 13 B 24
2h+k+s
, Kerrostalo
56 m2
2/3
Peltolankaari 13 B 24
2h+k+s
, Kerrostalo
56 m2
Floor 2/3
Peltolankaari 13 B 31
2h+k+s
, Kerrostalo
56 m2
3/3
Peltolankaari 13 B 31
2h+k+s
, Kerrostalo
56 m2
Floor 3/3
Peltolankaari 13 B 25
2h+k+s
, Kerrostalo
56 m2
2/3
Peltolankaari 13 B 25
2h+k+s
, Kerrostalo
56 m2
Floor 2/3
Peltolankaari 13 B 30
2h+k+s
, Kerrostalo
56 m2
3/3
Peltolankaari 13 B 30
2h+k+s
, Kerrostalo
56 m2
Floor 3/3
Peltolankaari 13 B 18
2h+k+s
, Kerrostalo
56 m2
1/3
Peltolankaari 13 B 18
2h+k+s
, Kerrostalo
56 m2
Floor 1/3
Peltolankaari 13 B 32
3h+k+s
, Kerrostalo
79 m2
3/3
Peltolankaari 13 B 32
3h+k+s
, Kerrostalo
79 m2
Floor 3/3
Peltolankaari 13 B 26
3h+k+s
, Kerrostalo
79 m2
2/3
Peltolankaari 13 B 26
3h+k+s
, Kerrostalo
79 m2
Floor 2/3
Peltolankaari 13 B 20
3h+k+s
, Kerrostalo
79 m2
1/3
Peltolankaari 13 B 20
3h+k+s
, Kerrostalo
79 m2
Floor 1/3
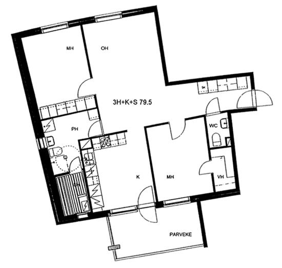
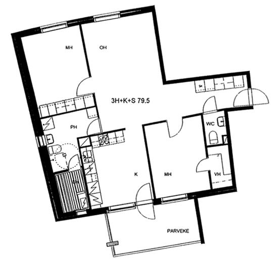
Peltolankaari 13 B 23
3h+k+s
, Kerrostalo
79.5 m2
2/3
Peltolankaari 13 B 23
3h+k+s
, Kerrostalo
79.5 m2
Floor 2/3
Peltolankaari 13 B 29
3h+k+s
, Kerrostalo
79.5 m2
3/3
Peltolankaari 13 B 29
3h+k+s
, Kerrostalo
79.5 m2
Floor 3/3
Peltolankaari 13 B 17
3h+k+s
, Kerrostalo
79.5 m2
Floor 1/3
Peltolankaari 13 A 6
4h+k+s
, Kerrostalo
93 m2
2/3
Peltolankaari 13 A 6
4h+k+s
, Kerrostalo
93 m2
Floor 2/3
Peltolankaari 13 A 15
4h+k+s
, Kerrostalo
93 m2
3/3
Peltolankaari 13 A 15
4h+k+s
, Kerrostalo
93 m2
Floor 3/3
Peltolankaari 13 A 9
4h+k+s
, Kerrostalo
93 m2
2/3
Peltolankaari 13 A 9
4h+k+s
, Kerrostalo
93 m2
Floor 2/3
Peltolankaari 13 A 12
4h+k+s
, Kerrostalo
93 m2
3/3
Peltolankaari 13 A 12
4h+k+s
, Kerrostalo
93 m2
Floor 3/3
Peltolankaari 13 A 3
4h+k+s
, Kerrostalo
93 m2
1/3
Peltolankaari 13 A 3
4h+k+s
, Kerrostalo
93 m2
Floor 1/3
