Kohteen esittely
Kaksi kivirakenteista hissillistä asuinkerrostaloa ja piharakennus muodostavat suojaisan oleskelupihan. Asuntojen koot vaihtelevat yhden huoneen ja keittiön asunnoista, kaksioihin, kolmioihin ja neljän huoneen ja keittiön asuntoihin. Kaikissa asunnoissa on oma sauna. Osassa asuntoja on parveke. Lapsille on turvallinen ja vehreä leikkialue.
Peltolan kaupunginosa sijaitsee parin kilometrin etäisyydellä Oulun ydinkeskustasta Kajaanintien varressa, rauhallisella alueella. Marketit, koulu ja keskussairaala ovat lähellä. Kävelymatkan päässä Oulun joen rannalla uimaranta. Hyvät kulkuyhteydet eri liikennevälineillä, helppo kulku myös moottoritielle.
Miksi Asuntosäätiö?
Me uskomme, että onnellinen koti ja laadukas asuminen kuuluvat kaikille. Emme tavoittele voittoa, vaan käytämme kaikki vastikkeista ja vuokrista saadut tulot toimintamme kehittämiseen. Jo yli 33 000 suomalaista on valinnut Asuntosäätiön tarjoaman kodin. Tiesithän, että myös lemmikit ovat tervetulleita kaikkiin koteihimme!
Rakennuksen tiedot
- Asumismuoto Asokoti
- Keskimääräinen asumisoikeusmaksu / jm² 309,16€
- Hissit 2
- Talosauna Ei
- Kuivaushuone Kyllä
- Asuntoja 33
- Asuinrakennuksia 2
- Käyttövastike / kk / jm² 12,05€
- Valmistumisvuosi 1998
- Porrashuoneet 2
- Energialuokka E
- Lämmitysmuoto Kauko
- Autopaikat 34
- Kerhohuone 1
- Laajakaista DNA Welho
- Antennijärjestelmä Kaapeli
- KaapeliTV DNA
- Kattomateriaali Pelti
- Runkomateriaali Betoni
- Lemmikit Sallittu
Huoneistot ja pohjakuvat: Peltolankaari 13, Piharakennus, Kerrostalo
Lisää hakemukselle kaikki haluamasi asuntotyypit. Mahdollisuutesi asunnon saamiseksi paranevat, kun voimme tarjota sinulle kaikkia valitsemasi asuntotyypin asuntoja, jotka mahdollisesti vapautuvat myöhemmin tästä kohteesta. Olet automaattisesti näiden asuntotyyppien hakuprosessissa.
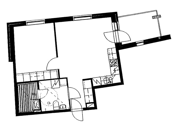
Peltolankaari 13 A 4
1h+k+s
, Kerrostalo
43 m2
1/3
Peltolankaari 13 A 4
1h+k+s
, Kerrostalo
43 m2
Kerros 1/3
Peltolankaari 13 A 10
1h+k+s
, Kerrostalo
43 m2
2/3
Peltolankaari 13 A 10
1h+k+s
, Kerrostalo
43 m2
Kerros 2/3
Peltolankaari 13 A 16
1h+k+s
, Kerrostalo
43 m2
3/3
Peltolankaari 13 A 16
1h+k+s
, Kerrostalo
43 m2
Kerros 3/3
Peltolankaari 13 A 11
1h+k+s
, Kerrostalo
43 m2
3/3
Peltolankaari 13 A 11
1h+k+s
, Kerrostalo
43 m2
Kerros 3/3
Peltolankaari 13 A 5
1h+k+s
, Kerrostalo
43 m2
2/3
Peltolankaari 13 A 5
1h+k+s
, Kerrostalo
43 m2
Kerros 2/3
Peltolankaari 13 B 21
2h+k+s
, Kerrostalo
49 m2
1/3
Peltolankaari 13 B 21
2h+k+s
, Kerrostalo
49 m2
Kerros 1/3
Peltolankaari 13 B 27
2h+k+s
, Kerrostalo
51 m2
2/3
Peltolankaari 13 B 27
2h+k+s
, Kerrostalo
51 m2
Kerros 2/3
Peltolankaari 13 B 33
2h+k+s
, Kerrostalo
51 m2
3/3
Peltolankaari 13 B 33
2h+k+s
, Kerrostalo
51 m2
Kerros 3/3
Peltolankaari 13 B 28
2h+k+s
, Kerrostalo
51 m2
3/3
Peltolankaari 13 B 28
2h+k+s
, Kerrostalo
51 m2
Kerros 3/3
Peltolankaari 13 B 22
2h+k+s
, Kerrostalo
51 m2
2/3
Peltolankaari 13 B 22
2h+k+s
, Kerrostalo
51 m2
Kerros 2/3
Peltolankaari 13 A 7
2h+k+s
, Kerrostalo
55.5 m2
2/3
Peltolankaari 13 A 7
2h+k+s
, Kerrostalo
55.5 m2
Kerros 2/3
Peltolankaari 13 A 14
2h+k+s
, Kerrostalo
55.5 m2
3/3
Peltolankaari 13 A 14
2h+k+s
, Kerrostalo
55.5 m2
Kerros 3/3
Peltolankaari 13 A 13
2h+k+s
, Kerrostalo
55.5 m2
3/3
Peltolankaari 13 A 13
2h+k+s
, Kerrostalo
55.5 m2
Kerros 3/3
Peltolankaari 13 A 8
2h+k+s
, Kerrostalo
55.5 m2
2/3
Peltolankaari 13 A 8
2h+k+s
, Kerrostalo
55.5 m2
Kerros 2/3
Peltolankaari 13 A 2
2h+k+s
, Kerrostalo
55.5 m2
1/3
Peltolankaari 13 A 2
2h+k+s
, Kerrostalo
55.5 m2
Kerros 1/3
Peltolankaari 13 A 1
2h+k+s
, Kerrostalo
55.5 m2
1/3
Peltolankaari 13 A 1
2h+k+s
, Kerrostalo
55.5 m2
Kerros 1/3
Peltolankaari 13 B 19
2h+k+s
, Kerrostalo
56 m2
1/3
Peltolankaari 13 B 19
2h+k+s
, Kerrostalo
56 m2
Kerros 1/3
Peltolankaari 13 B 24
2h+k+s
, Kerrostalo
56 m2
2/3
Peltolankaari 13 B 24
2h+k+s
, Kerrostalo
56 m2
Kerros 2/3
Peltolankaari 13 B 31
2h+k+s
, Kerrostalo
56 m2
3/3
Peltolankaari 13 B 31
2h+k+s
, Kerrostalo
56 m2
Kerros 3/3
Peltolankaari 13 B 25
2h+k+s
, Kerrostalo
56 m2
2/3
Peltolankaari 13 B 25
2h+k+s
, Kerrostalo
56 m2
Kerros 2/3
Peltolankaari 13 B 30
2h+k+s
, Kerrostalo
56 m2
3/3
Peltolankaari 13 B 30
2h+k+s
, Kerrostalo
56 m2
Kerros 3/3
Peltolankaari 13 B 18
2h+k+s
, Kerrostalo
56 m2
1/3
Peltolankaari 13 B 18
2h+k+s
, Kerrostalo
56 m2
Kerros 1/3
Peltolankaari 13 B 32
3h+k+s
, Kerrostalo
79 m2
3/3
Peltolankaari 13 B 32
3h+k+s
, Kerrostalo
79 m2
Kerros 3/3
Peltolankaari 13 B 26
3h+k+s
, Kerrostalo
79 m2
2/3
Peltolankaari 13 B 26
3h+k+s
, Kerrostalo
79 m2
Kerros 2/3
Peltolankaari 13 B 20
3h+k+s
, Kerrostalo
79 m2
1/3
Peltolankaari 13 B 20
3h+k+s
, Kerrostalo
79 m2
Kerros 1/3
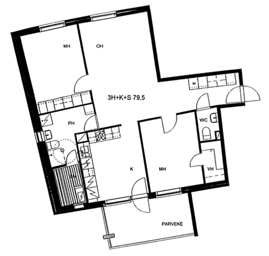
Peltolankaari 13 B 23
3h+k+s
, Kerrostalo
79.5 m2
2/3
Peltolankaari 13 B 23
3h+k+s
, Kerrostalo
79.5 m2
Kerros 2/3
Peltolankaari 13 B 29
3h+k+s
, Kerrostalo
79.5 m2
3/3
Peltolankaari 13 B 29
3h+k+s
, Kerrostalo
79.5 m2
Kerros 3/3
Peltolankaari 13 B 17
3h+k+s
, Kerrostalo
79.5 m2
Kerros 1/3
Peltolankaari 13 A 6
4h+k+s
, Kerrostalo
93 m2
2/3
Peltolankaari 13 A 6
4h+k+s
, Kerrostalo
93 m2
Kerros 2/3
Peltolankaari 13 A 15
4h+k+s
, Kerrostalo
93 m2
3/3
Peltolankaari 13 A 15
4h+k+s
, Kerrostalo
93 m2
Kerros 3/3
Peltolankaari 13 A 9
4h+k+s
, Kerrostalo
93 m2
2/3
Peltolankaari 13 A 9
4h+k+s
, Kerrostalo
93 m2
Kerros 2/3
Peltolankaari 13 A 12
4h+k+s
, Kerrostalo
93 m2
3/3
Peltolankaari 13 A 12
4h+k+s
, Kerrostalo
93 m2
Kerros 3/3
Peltolankaari 13 A 3
4h+k+s
, Kerrostalo
93 m2
1/3
Peltolankaari 13 A 3
4h+k+s
, Kerrostalo
93 m2
Kerros 1/3
