Skip to content

Viistokuja 6 A 4, Pirkkala, KESKUSTA

67,5 m2, 3H+KT

Sales agent

Karita Koppinen

Ensimmäisen kerroksen kulmahuoneisto isolla parvekkeella!

Tähän asuntoon tulvii luonnonvaloa kahdesta ilmansuunnasta: etelästä ja idästä.

If you would like to receive more information about this apartment, please contact our salesperson.

Welcome to your future home!

Ensimmäisen kerroksen kulmahuoneisto isolla parvekkeella! Tähän asuntoon tulvii luonnonvaloa kahdesta ilmansuunnasta: etelästä ja idästä. Keittiö on yhtenäistä tilaa olohuoneen kanssa ja ruokapöydälle löytyy oma paikkansa ikkunan alta. Keittiöstä pääsee asunnon levyiselle lasitetulle parvekkeelle, joka avautuu idän suuntaan. Tässä kodissa on paljon säilytystilaa. Makuuhuoneissa on kaapistot vaatteille, lisäksi eteisessä on vaatehuone ja kaapisto. Kylpyhuoneessa on tilavaraus ja liitännät pesukoneelle ja kuivausrummulle. Haethan ensin järjestysnumeron www.varke.fi nettisivuilta, ja jätäthän sitten hakemuksen tähän viehättävään asokotiin!

If you would like to receive more information about this apartment, please contact our salesperson.

Apartment info

Housing costs

Prices are estimates for now.

  • Right-of-occupancy payment 39151,89€
    • — Original right-of-occupancy payment 39151,89€
  • Residence charge 1106,67€
    • — Basic charge 955,79€
    • — Communal charge 150,88€
  • Security deposit 250€
  • Advance water fee/person/month 25€
  • Parking fees
    • — Autohallimaksu 1 40,00€

Apartment basic info

  • Housing type Apartment house
  • Energy class A
  • Apartment type 3H+KT
  • Living area 67.50 m²
  • Floor 1
  • Balcony 1
  • Own sauna No
  • Elevator Yes
  • Estimated completion date 27.08.2026
  • Condition Excellent
  • Pets Allowed

Extra info

Smoking in our apartments

It has been a long-term policy of ours to make all of our new residential properties completely non-smoking. We are gradually making all of our apartments non-smoking; the agreements of new residents will forbid smoking in the apartments and on the balconies from 1 January 2021 onwards. The property may not be completely non-smoking due to other apartments that may be subject to old agreements with no smoking prohibitions.

Property Introduction

Vapaisiin asuntoihin jatkuva haku. Asunnot valmistuvat arviolta elokuun 2026 lopussa.

Pirkkalan keskustaan rakentuu tyylikäs vaalea talo, jossa on eri kokoisia huoneistoja, yksiöistä neljän huoneen tilaviin perhekoteihin. Osoitteensa mukaisesti talon veikeän viisto muoto tuo pohjaratkaisuihin hauskaa persoonallisuutta. Kaikki kodit on varustettu tilavilla lasitetuilla parvekkeilla, jotka tarjoavat lisää oleskelutilaa läpi vuoden.

Vehreässä pihapiirissä on ilo seurata vuodenaikojen vaihtumista. Yhteisellä pihalla on valmiina pihasauna, jossa pääsee nauttimaan löylyistä (saunavuorot varattavissa erikseen sähköisen järjestelmän kautta). Asukkaiden käyttöön tulevat myös yhteinen talopesula, kuivaushuone, varastotilat sekä kellarikerrokseen rakentuva pysäköintihalli.

Why Asuntosäätiö?

We believe that a happy home and quality living are for everyone. We do not seek immediate profit or financial benefit. We use the assets gained from our operations to develop our real estate. Over 33,000 Finns have already chosen a home offered by Asuntosäätiö. Pets are also welcome in all our homes.

Property Introduction

Vapaisiin asuntoihin jatkuva haku. Asunnot valmistuvat arviolta elokuun 2026 lopussa. Pirkkalan keskustaan rakentuu tyylikäs vaalea talo, jossa on eri kokoisia huoneistoja, yksiöistä neljän huoneen tilaviin perhekoteihin. Osoitteensa mukaisesti talon veikeän viisto muoto tuo pohjaratkaisuihin hauskaa persoonallisuutta. Kaikki kodit on varustettu tilavilla lasitetuilla parvekkeilla, jotka tarjoavat lisää oleskelutilaa läpi vuoden. Vehreässä pihapiirissä on ilo seurata vuodenaikojen vaihtumista. Yhteisellä pihalla on valmiina pihasauna, jossa pääsee nauttimaan löylyistä (saunavuorot varattavissa erikseen sähköisen järjestelmän kautta). Asukkaiden käyttöön tulevat myös yhteinen talopesula, kuivaushuone, varastotilat sekä kellarikerrokseen rakentuva pysäköintihalli. Viistokujalla asutaan kuin pienessä, hurmaavassa kylässä, jossa palvelut ovat lähellä. Koulut ja päiväkodit ovat lyhyen kävelymatkan päässä, samoin urheilukenttä ja vapaa-ajan keskus. Kotitalon tuntumasta löytyy päivittäistavarakauppoja sekä muut palvelut apteekista supermarkettiin. Onnella on osoite.

Basic house info

  • Form of housing Right-of-occupancy
  • Average right-of-occupancy payment / jm² 596,83€
  • Elevators 1
  • House sauna No
  • Laundry room Yes
  • Drying room Yes

Apartments and floor plans: Viistokuja 6, Kerrostalo

Add all the apartment types you want to your application. Your opportunity to get an apartment increases when we are able to offer you all of the apartment types that may be available later on in this property. You are automatically in queue for these apartment types.

Apply for apartment type

Viistokuja 6 A 1

1h+kt

, Kerrostalo

35.5 m2

Floor 1/6

Viistokuja 6 A 7

1h+kt+alk

, Kerrostalo

44 m2

Floor 1/6

Apply for apartment type

Viistokuja 6 A 5

2h+kt

, Kerrostalo

49.5 m2

Floor 1/6

Will be available 31.08.2026

Viistokuja 6 A 34

2h+kt

, Kerrostalo

49.5 m2

Floor 6/6

Will be available 27.08.2026

Viistokuja 6 A 10

2h+kt

, Kerrostalo

49.5 m2

Floor 2/6

Will be available 27.08.2026

Viistokuja 6 A 28

2h+kt

, Kerrostalo

49.5 m2

Floor 5/6

Will be available 27.08.2026

Viistokuja 6 A 16

2h+kt

, Kerrostalo

49.5 m2

Floor 3/6

Will be available 27.08.2026

Viistokuja 6 A 22

2h+kt

, Kerrostalo

49.5 m2

Floor 4/6

Will be available 27.08.2026

Viistokuja 6 A 35

2h+kt

, Kerrostalo

52 m2

Floor 6/6

Will be available 27.08.2026

Viistokuja 6 A 17

2h+kt

, Kerrostalo

52 m2

Floor 3/6

Will be available 27.08.2026

Viistokuja 6 A 29

2h+kt

, Kerrostalo

52 m2

Floor 5/6

Will be available 27.08.2026

Viistokuja 6 A 6

2h+kt

, Kerrostalo

52 m2

Floor 1/6

Will be available 27.08.2026

Viistokuja 6 A 23

2h+kt

, Kerrostalo

52 m2

Floor 4/6

Will be available 27.08.2026

Viistokuja 6 A 11

2h+kt

, Kerrostalo

52 m2

Floor 2/6

Will be available 27.08.2026
Apply for apartment type

Viistokuja 6 A 2

3h+kt

, Kerrostalo

63 m2

Floor 1/6

Will be available 27.08.2026

Viistokuja 6 A 25

3h+kt

, Kerrostalo

63 m2

Floor 4/6

Will be available 27.08.2026

Viistokuja 6 A 31

3h+kt

, Kerrostalo

63 m2

Floor 5/6

Viistokuja 6 A 19

3h+kt

, Kerrostalo

63 m2

Floor 3/6

Viistokuja 6 A 13

3h+kt

, Kerrostalo

63 m2

Floor 2/6

Will be available 27.08.2026

Viistokuja 6 A 37

3h+kt

, Kerrostalo

63 m2

Floor 6/6

Viistokuja 6 A 4

3h+kt

, Kerrostalo

67.5 m2

Floor 1/6

Will be available 27.08.2026

Viistokuja 6 A 27

3h+kt

, Kerrostalo

67.5 m2

Floor 5/6

Will be available 27.08.2026

Viistokuja 6 A 15

3h+kt

, Kerrostalo

67.5 m2

Floor 3/6

Will be available 27.08.2026

Viistokuja 6 A 9

3h+kt

, Kerrostalo

67.5 m2

Floor 2/6

Will be available 27.08.2026

Viistokuja 6 A 21

3h+kt

, Kerrostalo

67.5 m2

Floor 4/6

Will be available 27.08.2026

Viistokuja 6 A 33

3h+kt

, Kerrostalo

67.5 m2

Floor 6/6

Will be available 27.08.2026

Viistokuja 6 A 3

3h+kt

, Kerrostalo

69.5 m2

Floor 1/6

Will be available 27.08.2026

Viistokuja 6 A 14

3h+kt

, Kerrostalo

69.5 m2

Floor 3/6

Will be available 27.08.2026

Viistokuja 6 A 26

3h+kt

, Kerrostalo

69.5 m2

Floor 5/6

Will be available 27.08.2026

Viistokuja 6 A 8

3h+kt

, Kerrostalo

69.5 m2

Floor 2/6

Will be available 27.08.2026

Viistokuja 6 A 20

3h+kt

, Kerrostalo

69.5 m2

Floor 4/6

Will be available 27.08.2026

Viistokuja 6 A 32

3h+kt

, Kerrostalo

69.5 m2

Floor 6/6

Apply for apartment type

Viistokuja 6 A 30

4h+k

, Kerrostalo

95 m2

Floor 5/6

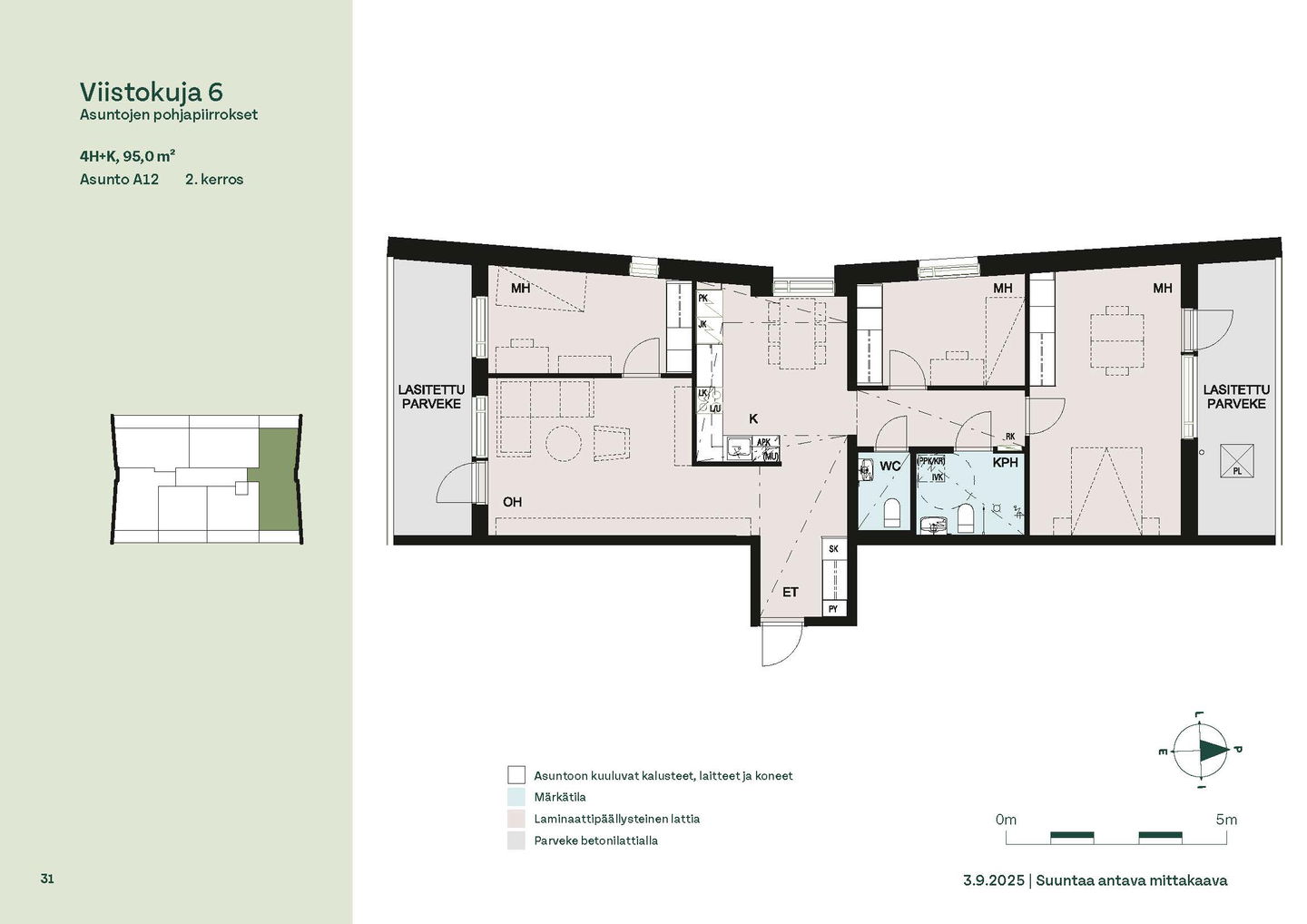
Viistokuja 6 A 12

4h+k

, Kerrostalo

95 m2

Floor 2/6

Will be available 27.08.2026

Viistokuja 6 A 24

4h+k

, Kerrostalo

95 m2

Floor 4/6

Will be available 27.08.2026

Viistokuja 6 A 18

4h+kt

, Kerrostalo

95 m2

Floor 3/6

Will be available 27.08.2026

Viistokuja 6 A 36

4h+kt

, Kerrostalo

95 m2

Floor 6/6