Property Introduction
Jokipellonkadun kaksiot ja kolmiot ovat yhdessä tasossa, neliöt kahdessa kerroksessa. Pihapiiri on lapsiystävällinen ja suojaisa.
Kohteeseen on haettu rahoitus peruskorjausta varten ja hankkeen mahdollinen toteutuminen ja aloitus ajankohta tarkentuu kun suunnitteluvaihe etenee. Hanke ei tule kuitenkaan alkamaan ennen kesää 2026. Lisätietoja sivuillamme: www.asuntosaatio.fi/asukkaalle/tietoa-asokoti-asukkaalle/asokotien-peruskorjaus/
Lähettyvillä on palkittu Martta Wendelinin päiväkoti ja Hyrylän keskustan palvelut ja kaupat ovat kävelymatkan päässä. Monipuoliset ulkoilureitit ja harrastusmahdollisuudet tarjoavat tekemistä vapaa-aikaan.
Why Asuntosäätiö?
We believe that a happy home and quality living are for everyone. We do not seek immediate profit or financial benefit. We use the assets gained from our operations to develop our real estate. Over 33,000 Finns have already chosen a home offered by Asuntosäätiö. Pets are also welcome in all our homes.
Basic house info
- Form of housing Right-of-occupancy
- Average right-of-occupancy payment / jm² 360,99€
- Elevators No
- House sauna No
- Apartment count 14
- Building count 4
- Residence charge / month / jm² 14,9€
- Construction year 1996
- Energy class D
- Heating Kauko
- Parking spaces 18
- Broadband Elisa
- TV-antenna system Kaapeli
- CableTV Elisa
- Roof material Huopa
- House frame material Puu
- Pets Allowed
Apartments and floor plans: Jokipellonkatu 5, Rivitalo
Add all the apartment types you want to your application. Your opportunity to get an apartment increases when we are able to offer you all of the apartment types that may be available later on in this property. You are automatically in queue for these apartment types.
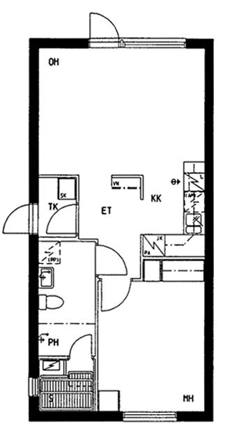
Jokipellonkatu 5 A 2
2h+k+s
, Rivitalo
59 m2
1/1
Jokipellonkatu 5 A 2
2h+k+s
, Rivitalo
59 m2
Floor 1/1
Jokipellonkatu 5 B 6
2h+k+s
, Rivitalo
59 m2
1/1
Jokipellonkatu 5 B 6
2h+k+s
, Rivitalo
59 m2
Floor 1/1
Jokipellonkatu 5 B 5
2h+k+s
, Rivitalo
59 m2
1/1
Jokipellonkatu 5 B 5
2h+k+s
, Rivitalo
59 m2
Floor 1/1
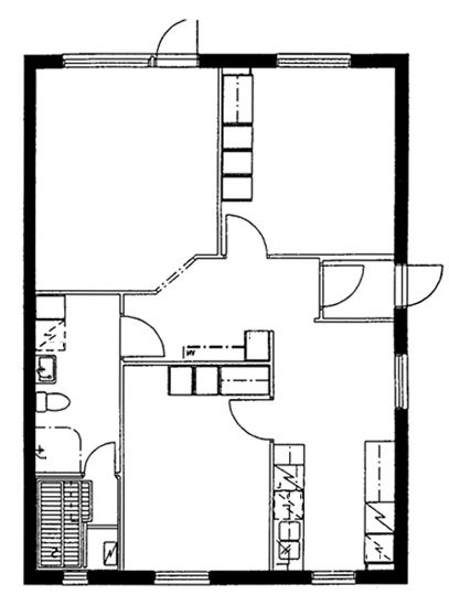
Jokipellonkatu 5 A 3
2h+kk+s
, Rivitalo
46 m2
1/1
Jokipellonkatu 5 A 3
2h+kk+s
, Rivitalo
46 m2
Floor 1/1
Jokipellonkatu 5 B 4
2h+kk+s
, Rivitalo
46 m2
1/1
Jokipellonkatu 5 B 4
2h+kk+s
, Rivitalo
46 m2
Floor 1/1
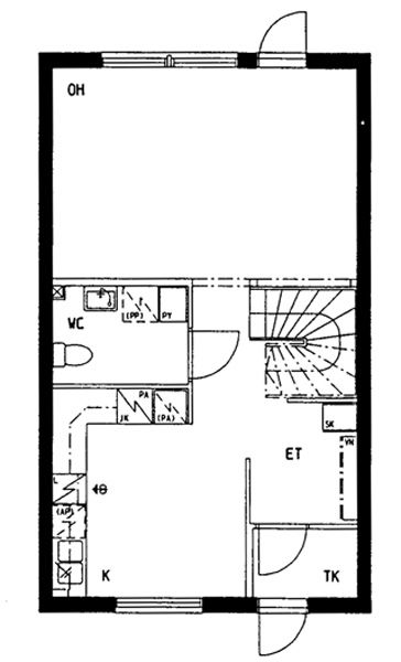
Jokipellonkatu 5 A 1
3h+k+s
, Rivitalo
71 m2
1/1
Jokipellonkatu 5 A 1
3h+k+s
, Rivitalo
71 m2
Floor 1/1
Jokipellonkatu 5 B 7
3h+k+s
, Rivitalo
71 m2
1/1
Jokipellonkatu 5 B 7
3h+k+s
, Rivitalo
71 m2
Floor 1/1
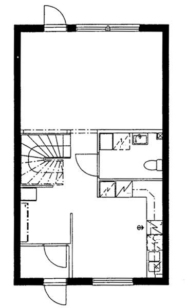
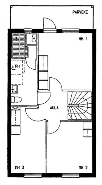
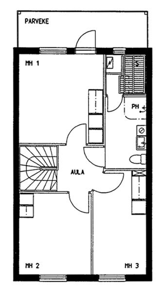
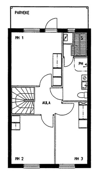
Jokipellonkatu 5 D 11
4h+k+s
, Rivitalo
79 m2
1-2/2
Jokipellonkatu 5 D 11
4h+k+s
, Rivitalo
79 m2
Floor 1-2/2
Jokipellonkatu 5 D 14
4h+k+s
, Rivitalo
79 m2
1-2/2
Jokipellonkatu 5 D 14
4h+k+s
, Rivitalo
79 m2
Floor 1-2/2
Jokipellonkatu 5 C 10
4h+k+s
, Rivitalo
90 m2
1-2/2
Jokipellonkatu 5 C 10
4h+k+s
, Rivitalo
90 m2
Floor 1-2/2
Jokipellonkatu 5 C 9
4h+k+s
, Rivitalo
90 m2
1-2/2
Jokipellonkatu 5 C 9
4h+k+s
, Rivitalo
90 m2
Floor 1-2/2
Jokipellonkatu 5 C 8
4h+k+s
, Rivitalo
90 m2
1-2/2
Jokipellonkatu 5 C 8
4h+k+s
, Rivitalo
90 m2
Floor 1-2/2
Jokipellonkatu 5 D 13
4h+k+s
, Rivitalo
90 m2
1-2/2
Jokipellonkatu 5 D 13
4h+k+s
, Rivitalo
90 m2
Floor 1-2/2
Jokipellonkatu 5 D 12
4h+k+s
, Rivitalo
90 m2
1-2/2
Jokipellonkatu 5 D 12
4h+k+s
, Rivitalo
90 m2
Floor 1-2/2