Kohteen esittely
Jokipellonkadun kaksiot ja kolmiot ovat yhdessä tasossa, neliöt kahdessa kerroksessa. Pihapiiri on lapsiystävällinen ja suojaisa.
Kohteeseen on haettu rahoitus peruskorjausta varten ja hankkeen mahdollinen toteutuminen ja aloitus ajankohta tarkentuu kun suunnitteluvaihe etenee. Hanke ei tule kuitenkaan alkamaan ennen kesää 2026. Lisätietoja sivuillamme: www.asuntosaatio.fi/asukkaalle/tietoa-asokoti-asukkaalle/asokotien-peruskorjaus/
Lähettyvillä on palkittu Martta Wendelinin päiväkoti ja Hyrylän keskustan palvelut ja kaupat ovat kävelymatkan päässä. Monipuoliset ulkoilureitit ja harrastusmahdollisuudet tarjoavat tekemistä vapaa-aikaan.
Miksi Asuntosäätiö?
Me uskomme, että onnellinen koti ja laadukas asuminen kuuluvat kaikille. Emme tavoittele voittoa, vaan käytämme kaikki vastikkeista ja vuokrista saadut tulot toimintamme kehittämiseen. Jo yli 33 000 suomalaista on valinnut Asuntosäätiön tarjoaman kodin. Tiesithän, että myös lemmikit ovat tervetulleita kaikkiin koteihimme!
Rakennuksen tiedot
- Asumismuoto Asokoti
- Keskimääräinen asumisoikeusmaksu / jm² 360,99€
- Hissit Ei
- Talosauna Ei
- Asuntoja 14
- Asuinrakennuksia 4
- Käyttövastike / kk / jm² 14,78€
- Valmistumisvuosi 1996
- Energialuokka D
- Lämmitysmuoto Kauko
- Autopaikat 18
- Laajakaista Elisa
- Antennijärjestelmä Kaapeli
- KaapeliTV Elisa
- Kattomateriaali Huopa
- Runkomateriaali Puu
- Lemmikit Sallittu
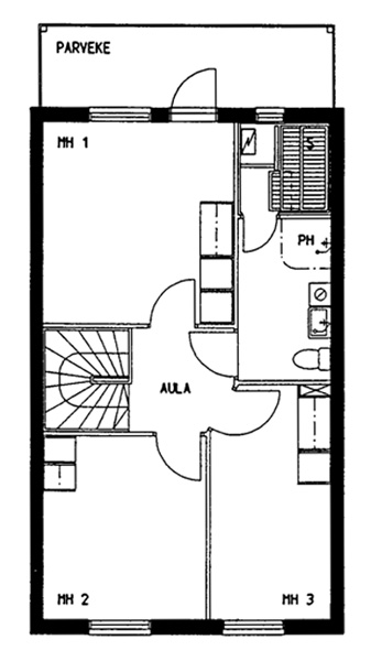
Huoneistot ja pohjakuvat: Jokipellonkatu 5, Rivitalo
Lisää hakemukselle kaikki haluamasi asuntotyypit. Mahdollisuutesi asunnon saamiseksi paranevat, kun voimme tarjota sinulle kaikkia valitsemasi asuntotyypin asuntoja, jotka mahdollisesti vapautuvat myöhemmin tästä kohteesta. Olet automaattisesti näiden asuntotyyppien hakuprosessissa.
Jokipellonkatu 5 A 2
2h+k+s
, Rivitalo
59 m2
1/1
Jokipellonkatu 5 A 2
2h+k+s
, Rivitalo
59 m2
Kerros 1/1
Jokipellonkatu 5 B 6
2h+k+s
, Rivitalo
59 m2
Kerros 1/1
Jokipellonkatu 5 B 5
2h+k+s
, Rivitalo
59 m2
1/1
Jokipellonkatu 5 B 5
2h+k+s
, Rivitalo
59 m2
Kerros 1/1
Jokipellonkatu 5 A 3
2h+kk+s
, Rivitalo
46 m2
1/1
Jokipellonkatu 5 A 3
2h+kk+s
, Rivitalo
46 m2
Kerros 1/1
Jokipellonkatu 5 B 4
2h+kk+s
, Rivitalo
46 m2
1/1
Jokipellonkatu 5 B 4
2h+kk+s
, Rivitalo
46 m2
Kerros 1/1
Jokipellonkatu 5 A 1
3h+k+s
, Rivitalo
71 m2
1/1
Jokipellonkatu 5 A 1
3h+k+s
, Rivitalo
71 m2
Kerros 1/1
Jokipellonkatu 5 B 7
3h+k+s
, Rivitalo
71 m2
1/1
Jokipellonkatu 5 B 7
3h+k+s
, Rivitalo
71 m2
Kerros 1/1
Jokipellonkatu 5 D 11
4h+k+s
, Rivitalo
79 m2
1-2/2
Jokipellonkatu 5 D 11
4h+k+s
, Rivitalo
79 m2
Kerros 1-2/2
Jokipellonkatu 5 D 14
4h+k+s
, Rivitalo
79 m2
1-2/2
Jokipellonkatu 5 D 14
4h+k+s
, Rivitalo
79 m2
Kerros 1-2/2
Jokipellonkatu 5 C 10
4h+k+s
, Rivitalo
90 m2
1-2/2
Jokipellonkatu 5 C 10
4h+k+s
, Rivitalo
90 m2
Kerros 1-2/2
Jokipellonkatu 5 C 9
4h+k+s
, Rivitalo
90 m2
1-2/2
Jokipellonkatu 5 C 9
4h+k+s
, Rivitalo
90 m2
Kerros 1-2/2
Jokipellonkatu 5 C 8
4h+k+s
, Rivitalo
90 m2
1-2/2
Jokipellonkatu 5 C 8
4h+k+s
, Rivitalo
90 m2
Kerros 1-2/2
Jokipellonkatu 5 D 13
4h+k+s
, Rivitalo
90 m2
1-2/2
Jokipellonkatu 5 D 13
4h+k+s
, Rivitalo
90 m2
Kerros 1-2/2
Jokipellonkatu 5 D 12
4h+k+s
, Rivitalo
90 m2
1-2/2
Jokipellonkatu 5 D 12
4h+k+s
, Rivitalo
90 m2
Kerros 1-2/2