Property Introduction
Tässä rauhallisessa ja tunnelmallisessa nelikerroksisessa talossa tuoksuu ja tuntuu puurakenne. Asuntoja on yksiöistä kolmioihin. Isot ikkunat tuovat asuntoon valoa ja parvekkeet ovat isot ja ilmavat. Talossa on on myös hissi.
Kohteeseen on haettu rahoitus peruskorjausta varten ja hankkeen mahdollinen toteutuminen ja aloitus ajankohta tarkentuu kun suunnitteluvaihe etenee. Hanke ei tule kuitenkaan alkamaan ennen kesää 2026. Lisätietoja sivuillamme: www.asuntosaatio.fi/asukkaalle/tietoa-asokoti-asukkaalle/asokotien-peruskorjaus/
Aivan lähellä on palkittu Martta Wendelinin päiväkoti. Hyrylän keskustan palvelut ovat noin puolen kilometrin päässä ja monipuoliset harrastuspaikat kävelymatkan päässä, mm. Hyrylän Urheilukeskus. Mikkolasta on myös hyvät julkisen liikenteen yhteydet. HSL:n bussit palvelevat aluetta, ja lähimmät pysäkit ovat lähes kotiovella.
Why Asuntosäätiö?
We believe that a happy home and quality living are for everyone. We do not seek immediate profit or financial benefit. We use the assets gained from our operations to develop our real estate. Over 33,000 Finns have already chosen a home offered by Asuntosäätiö. Pets are also welcome in all our homes.
Basic house info
- Form of housing Right-of-occupancy
- Average right-of-occupancy payment / jm² 342,17€
- Elevators 1
- House sauna No
- Laundry room Yes
- Drying room Yes
- Apartment count 23
- Building count 1
- Residence charge / month / jm² 14€
- Construction year 1997
- Staircases 1
- Energy class D
- Heating Kauko
- Parking spaces 23
- Clubroom 1
- Hobby room 1
- Broadband Elisa
- TV-antenna system Kaapeli
- CableTV Elisa
- Roof material Pelti
- House frame material Puu
- Pets Allowed
Apartments and floor plans: Pähkinämäentie 231, Piharakennus, Kerrostalo
Add all the apartment types you want to your application. Your opportunity to get an apartment increases when we are able to offer you all of the apartment types that may be available later on in this property. You are automatically in queue for these apartment types.
Pähkinämäentie 231 As 1
1h+kk+s
, Kerrostalo
36.5 m2
1/4
Pähkinämäentie 231 As 1
1h+kk+s
, Kerrostalo
36.5 m2
Floor 1/4
Pähkinämäentie 231 As 10
1h+kk+s
, Kerrostalo
37 m2
3/4
Pähkinämäentie 231 As 10
1h+kk+s
, Kerrostalo
37 m2
Floor 3/4
Pähkinämäentie 231 As 16
1h+kk+s
, Kerrostalo
37 m2
3/4
Pähkinämäentie 231 As 16
1h+kk+s
, Kerrostalo
37 m2
Floor 3/4
Pähkinämäentie 231 As 17
1h+kk+s
, Kerrostalo
37 m2
4/4
Pähkinämäentie 231 As 17
1h+kk+s
, Kerrostalo
37 m2
Floor 4/4
Pähkinämäentie 231 As 3
1h+kk+s
, Kerrostalo
37 m2
2/4
Pähkinämäentie 231 As 3
1h+kk+s
, Kerrostalo
37 m2
Floor 2/4
Pähkinämäentie 231 As 23
1h+kk+s
, Kerrostalo
37 m2
4/4
Pähkinämäentie 231 As 23
1h+kk+s
, Kerrostalo
37 m2
Floor 4/4
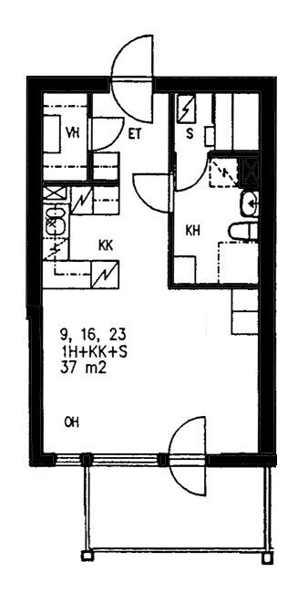
Pähkinämäentie 231 As 9
1h+kk+s
, Kerrostalo
37 m2
2/4
Pähkinämäentie 231 As 9
1h+kk+s
, Kerrostalo
37 m2
Floor 2/4
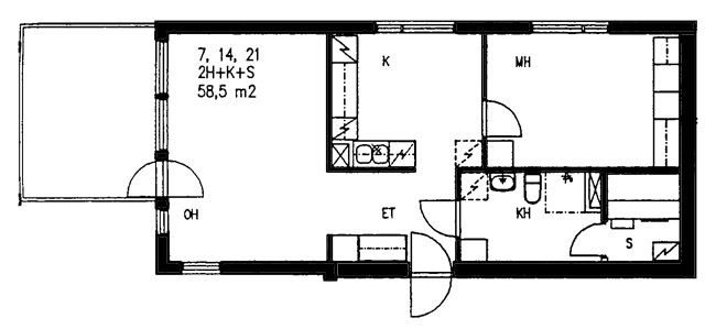
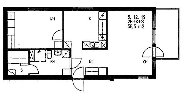
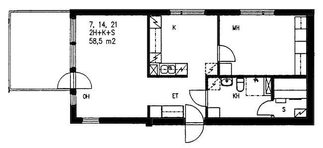
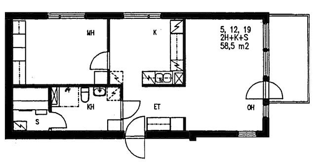
Pähkinämäentie 231 As 14
2h+k+s
, Kerrostalo
58.5 m2
3/4
Pähkinämäentie 231 As 14
2h+k+s
, Kerrostalo
58.5 m2
Floor 3/4
Pähkinämäentie 231 As 7
2h+k+s
, Kerrostalo
58.5 m2
2/4
Pähkinämäentie 231 As 7
2h+k+s
, Kerrostalo
58.5 m2
Floor 2/4
Pähkinämäentie 231 As 21
2h+k+s
, Kerrostalo
58.5 m2
4/4
Pähkinämäentie 231 As 21
2h+k+s
, Kerrostalo
58.5 m2
Floor 4/4
Pähkinämäentie 231 As 5
2h+k+s
, Kerrostalo
58.5 m2
2/4
Pähkinämäentie 231 As 5
2h+k+s
, Kerrostalo
58.5 m2
Floor 2/4
Pähkinämäentie 231 As 19
2h+k+s
, Kerrostalo
58.5 m2
4/4
Pähkinämäentie 231 As 19
2h+k+s
, Kerrostalo
58.5 m2
Floor 4/4
Pähkinämäentie 231 As 12
2h+k+s
, Kerrostalo
58.5 m2
3/4
Pähkinämäentie 231 As 12
2h+k+s
, Kerrostalo
58.5 m2
Floor 3/4
Pähkinämäentie 231 As 13
2h+k+s
, Kerrostalo
59 m2
3/4
Pähkinämäentie 231 As 13
2h+k+s
, Kerrostalo
59 m2
Floor 3/4
Pähkinämäentie 231 As 6
2h+k+s
, Kerrostalo
59 m2
2/4
Pähkinämäentie 231 As 6
2h+k+s
, Kerrostalo
59 m2
Floor 2/4
Pähkinämäentie 231 As 20
2h+k+s
, Kerrostalo
59 m2
4/4
Pähkinämäentie 231 As 20
2h+k+s
, Kerrostalo
59 m2
Floor 4/4
Pähkinämäentie 231 As 8
3h+k+s
, Kerrostalo
75.5 m2
2/4
Pähkinämäentie 231 As 8
3h+k+s
, Kerrostalo
75.5 m2
Floor 2/4
Pähkinämäentie 231 As 15
3h+k+s
, Kerrostalo
75.5 m2
3/4
Pähkinämäentie 231 As 15
3h+k+s
, Kerrostalo
75.5 m2
Floor 3/4
Pähkinämäentie 231 As 22
3h+k+s
, Kerrostalo
75.5 m2
4/4
Pähkinämäentie 231 As 22
3h+k+s
, Kerrostalo
75.5 m2
Floor 4/4
Pähkinämäentie 231 As 4
3h+k+s
, Kerrostalo
75.5 m2
2/4
Pähkinämäentie 231 As 4
3h+k+s
, Kerrostalo
75.5 m2
Floor 2/4
Pähkinämäentie 231 As 18
3h+k+s
, Kerrostalo
75.5 m2
4/4
Pähkinämäentie 231 As 18
3h+k+s
, Kerrostalo
75.5 m2
Floor 4/4
Pähkinämäentie 231 As 11
3h+k+s
, Kerrostalo
75.5 m2
3/4
Pähkinämäentie 231 As 11
3h+k+s
, Kerrostalo
75.5 m2
Floor 3/4
Pähkinämäentie 231 As 2
3h+k+s
, Kerrostalo
76 m2
1/4
Pähkinämäentie 231 As 2
3h+k+s
, Kerrostalo
76 m2
Floor 1/4
