Kohteen esittely
Tässä rauhallisessa ja tunnelmallisessa nelikerroksisessa talossa tuoksuu ja tuntuu puurakenne. Asuntoja on yksiöistä kolmioihin. Isot ikkunat tuovat asuntoon valoa ja parvekkeet ovat isot ja ilmavat. Talossa on on myös hissi.
Kohteeseen on haettu rahoitus peruskorjausta varten ja hankkeen mahdollinen toteutuminen ja aloitus ajankohta tarkentuu kun suunnitteluvaihe etenee. Hanke ei tule kuitenkaan alkamaan ennen kesää 2026. Lisätietoja sivuillamme: www.asuntosaatio.fi/asukkaalle/tietoa-asokoti-asukkaalle/asokotien-peruskorjaus/
Aivan lähellä on palkittu Martta Wendelinin päiväkoti. Hyrylän keskustan palvelut ovat noin puolen kilometrin päässä ja monipuoliset harrastuspaikat kävelymatkan päässä, mm. Hyrylän Urheilukeskus. Mikkolasta on myös hyvät julkisen liikenteen yhteydet. HSL:n bussit palvelevat aluetta, ja lähimmät pysäkit ovat lähes kotiovella.
Miksi Asuntosäätiö?
Me uskomme, että onnellinen koti ja laadukas asuminen kuuluvat kaikille. Emme tavoittele voittoa, vaan käytämme kaikki vastikkeista ja vuokrista saadut tulot toimintamme kehittämiseen. Jo yli 33 000 suomalaista on valinnut Asuntosäätiön tarjoaman kodin. Tiesithän, että myös lemmikit ovat tervetulleita kaikkiin koteihimme!
Rakennuksen tiedot
- Asumismuoto Asokoti
- Keskimääräinen asumisoikeusmaksu / jm² 342,17€
- Hissit 1
- Talosauna Ei
- Pyykkitupa Kyllä
- Kuivaushuone Kyllä
- Asuntoja 23
- Asuinrakennuksia 1
- Käyttövastike / kk / jm² 14€
- Valmistumisvuosi 1997
- Porrashuoneet 1
- Energialuokka D
- Lämmitysmuoto Kauko
- Autopaikat 23
- Kerhohuone 1
- Askarteluhuone 1
- Laajakaista Elisa
- Antennijärjestelmä Kaapeli
- KaapeliTV Elisa
- Kattomateriaali Pelti
- Runkomateriaali Puu
- Lemmikit Sallittu
Huoneistot ja pohjakuvat: Pähkinämäentie 231, Piharakennus, Kerrostalo
Lisää hakemukselle kaikki haluamasi asuntotyypit. Mahdollisuutesi asunnon saamiseksi paranevat, kun voimme tarjota sinulle kaikkia valitsemasi asuntotyypin asuntoja, jotka mahdollisesti vapautuvat myöhemmin tästä kohteesta. Olet automaattisesti näiden asuntotyyppien hakuprosessissa.
Pähkinämäentie 231 As 1
1h+kk+s
, Kerrostalo
36.5 m2
1/4
Pähkinämäentie 231 As 1
1h+kk+s
, Kerrostalo
36.5 m2
Kerros 1/4
Pähkinämäentie 231 As 10
1h+kk+s
, Kerrostalo
37 m2
3/4
Pähkinämäentie 231 As 10
1h+kk+s
, Kerrostalo
37 m2
Kerros 3/4
Pähkinämäentie 231 As 16
1h+kk+s
, Kerrostalo
37 m2
3/4
Pähkinämäentie 231 As 16
1h+kk+s
, Kerrostalo
37 m2
Kerros 3/4
Pähkinämäentie 231 As 17
1h+kk+s
, Kerrostalo
37 m2
4/4
Pähkinämäentie 231 As 17
1h+kk+s
, Kerrostalo
37 m2
Kerros 4/4
Pähkinämäentie 231 As 3
1h+kk+s
, Kerrostalo
37 m2
2/4
Pähkinämäentie 231 As 3
1h+kk+s
, Kerrostalo
37 m2
Kerros 2/4
Pähkinämäentie 231 As 23
1h+kk+s
, Kerrostalo
37 m2
4/4
Pähkinämäentie 231 As 23
1h+kk+s
, Kerrostalo
37 m2
Kerros 4/4
Pähkinämäentie 231 As 9
1h+kk+s
, Kerrostalo
37 m2
2/4
Pähkinämäentie 231 As 9
1h+kk+s
, Kerrostalo
37 m2
Kerros 2/4
Pähkinämäentie 231 As 14
2h+k+s
, Kerrostalo
58.5 m2
3/4
Pähkinämäentie 231 As 14
2h+k+s
, Kerrostalo
58.5 m2
Kerros 3/4
Pähkinämäentie 231 As 7
2h+k+s
, Kerrostalo
58.5 m2
2/4
Pähkinämäentie 231 As 7
2h+k+s
, Kerrostalo
58.5 m2
Kerros 2/4
Pähkinämäentie 231 As 21
2h+k+s
, Kerrostalo
58.5 m2
4/4
Pähkinämäentie 231 As 21
2h+k+s
, Kerrostalo
58.5 m2
Kerros 4/4
Pähkinämäentie 231 As 5
2h+k+s
, Kerrostalo
58.5 m2
2/4
Pähkinämäentie 231 As 5
2h+k+s
, Kerrostalo
58.5 m2
Kerros 2/4
Pähkinämäentie 231 As 19
2h+k+s
, Kerrostalo
58.5 m2
4/4
Pähkinämäentie 231 As 19
2h+k+s
, Kerrostalo
58.5 m2
Kerros 4/4
Pähkinämäentie 231 As 12
2h+k+s
, Kerrostalo
58.5 m2
3/4
Pähkinämäentie 231 As 12
2h+k+s
, Kerrostalo
58.5 m2
Kerros 3/4
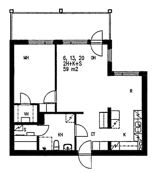
Pähkinämäentie 231 As 13
2h+k+s
, Kerrostalo
59 m2
3/4
Pähkinämäentie 231 As 13
2h+k+s
, Kerrostalo
59 m2
Kerros 3/4
Pähkinämäentie 231 As 6
2h+k+s
, Kerrostalo
59 m2
2/4
Pähkinämäentie 231 As 6
2h+k+s
, Kerrostalo
59 m2
Kerros 2/4
Pähkinämäentie 231 As 20
2h+k+s
, Kerrostalo
59 m2
4/4
Pähkinämäentie 231 As 20
2h+k+s
, Kerrostalo
59 m2
Kerros 4/4
Pähkinämäentie 231 As 8
3h+k+s
, Kerrostalo
75.5 m2
2/4
Pähkinämäentie 231 As 8
3h+k+s
, Kerrostalo
75.5 m2
Kerros 2/4
Pähkinämäentie 231 As 15
3h+k+s
, Kerrostalo
75.5 m2
3/4
Pähkinämäentie 231 As 15
3h+k+s
, Kerrostalo
75.5 m2
Kerros 3/4
Pähkinämäentie 231 As 22
3h+k+s
, Kerrostalo
75.5 m2
4/4
Pähkinämäentie 231 As 22
3h+k+s
, Kerrostalo
75.5 m2
Kerros 4/4
Pähkinämäentie 231 As 4
3h+k+s
, Kerrostalo
75.5 m2
2/4
Pähkinämäentie 231 As 4
3h+k+s
, Kerrostalo
75.5 m2
Kerros 2/4
Pähkinämäentie 231 As 18
3h+k+s
, Kerrostalo
75.5 m2
4/4
Pähkinämäentie 231 As 18
3h+k+s
, Kerrostalo
75.5 m2
Kerros 4/4
Pähkinämäentie 231 As 11
3h+k+s
, Kerrostalo
75.5 m2
3/4
Pähkinämäentie 231 As 11
3h+k+s
, Kerrostalo
75.5 m2
Kerros 3/4
Pähkinämäentie 231 As 2
3h+k+s
, Kerrostalo
76 m2
1/4
Pähkinämäentie 231 As 2
3h+k+s
, Kerrostalo
76 m2
Kerros 1/4