Skip to content
Renovated

Hakoportaankatu 4 A 9, Lappeenranta, SKINNARILA

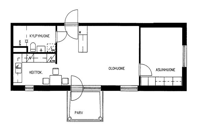
47,5 m2, 2H+KK

Sales agent

Jussi Jaakkola

Avara kaksio hissitalon 3 krs. Asunnon keittiö ja olohuone yhdistyy mukavasti siten, että saat pöytäryhmän ruokailutilaksi ja olohuoneeseen reilusti tilaa. Asunnon parvekkeelle on käynti olohuoneesta. Iso makuuhuone jossa on hyvin kaappitilaa. Vastike ja vuokra sisältää nettiyhteyden 50M! Asunto on tarkoi

If you would like to receive more information about this apartment, please contact our salesperson.

Welcome to your future home!

Avara kaksio hissitalon 3 krs. Asunnon keittiö ja olohuone yhdistyy mukavasti siten, että saat pöytäryhmän ruokailutilaksi ja olohuoneeseen reilusti tilaa. Asunnon parvekkeelle on käynti olohuoneesta. Iso makuuhuone jossa on hyvin kaappitilaa. Vastike ja vuokra sisältää nettiyhteyden 50M! Asunto on tarkoitettu ensisijaisesti asumisoikeusasumiseen ja asuntoa tarjotaan aina ensisijaisesti asumisoikeuden hakijoille (mikäli asuntoon ei ole asumisoikeushakijoita tulemme olemaan erikseen yhteydessä vuokrahakemuksen jättäneisiin). Jätä vuokra- tai asumisoikeushakemus sivuillemme www.asuntosaatio.fi. Hakemus ei ole sitova eikä asuntoa myydä vuokrasopimuksen voimassaolon aikana. Vuokrasopimus on voimassa toistaiseksi eikä sido määräaikaisuuteen (irtisanomisaika vuokralaisella 1 kk) Kiinnostuitko vuokra-/asumisoikeusasumisesta? Lisätietoja jussi.jaakkola@asuntosaatio.fi

If you would like to receive more information about this apartment, please contact our salesperson.

Apartment info

Housing costs

  • Rent 645€
  • Security deposit 250€
  • Water fee/person/month 20€
  • Parking fees
    • — Autopaikkamaksu 1 15,00€

Apartment basic info

  • Housing type Apartment house
  • Energy class E
  • Apartment type 2H+KK
  • Living area 47.50 m²
  • Floor 3
  • Balcony 1
  • Own sauna No
  • Elevator Yes
  • Available Available now
  • Condition Good
  • Pets Allowed
  • Broadband Elisa

Extra info

Smoking in our apartments

It has been a long-term policy of ours to make all of our new residential properties completely non-smoking. We are gradually making all of our apartments non-smoking; the agreements of new residents will forbid smoking in the apartments and on the balconies from 1 January 2021 onwards. The property may not be completely non-smoking due to other apartments that may be subject to old agreements with no smoking prohibitions.

Alterations made to this home

2025 Seinien maalaus

Property Introduction

Vehreässä ympäristössä Sammonlahden kaupunginosassa peruspalvelujen äärellä pienehkö nelikerroksinen hissitalo. Kaikissa asunnoissa parvekkeet. Ei huoneistokohtaisia saunoja, joten saunaosasto alakerrassa on käytössäsi! Kohteessa käytetään hiilineutraalia kaukolämpöä. Kohde on peruskorjattu vuonna 2021.

Yliopisto ja ammattikorkeakoulu lähellä. Ruokakaupat apteekkeineen sadan metrin päässä samoin kuin Skinnarilan koulu. Hyvät ulkoilumaastot, urheilukenttä sekä uimapaikka matonpesupaikkoineen lähellä. Toimivat bussiyhteydet keskustaan.

Why Asuntosäätiö?

We believe that a happy home and quality living are for everyone. We do not seek immediate profit or financial benefit. We use the assets gained from our operations to develop our real estate. Over 33,000 Finns have already chosen a home offered by Asuntosäätiö. Pets are also welcome in all our homes.

Property Introduction

Vehreässä ympäristössä Sammonlahden kaupunginosassa peruspalvelujen äärellä pienehkö nelikerroksinen hissitalo. Kaikissa asunnoissa parvekkeet. Ei huoneistokohtaisia saunoja, joten saunaosasto alakerrassa on käytössäsi! Kohteessa käytetään hiilineutraalia kaukolämpöä. Kohde on peruskorjattu vuonna 2021. Yliopisto ja ammattikorkeakoulu lähellä. Ruokakaupat apteekkeineen sadan metrin päässä samoin kuin Skinnarilan koulu. Hyvät ulkoilumaastot, urheilukenttä sekä uimapaikka matonpesupaikkoineen lähellä. Toimivat bussiyhteydet keskustaan.

Basic house info

  • Form of housing Rental home
  • Elevators 1
  • House sauna 1
  • Laundry room Yes
  • Drying room Yes
  • Apartment count 14

Apartments and floor plans: Hakoportaankatu 4, Piharakennus, Kerrostalo

Apply for apartment type

Hakoportaankatu 4 A 6

2h+kk

, Kerrostalo

45 m2

Floor 2/4

Hakoportaankatu 4 A 9

2h+kk

, Kerrostalo

47.5 m2

Floor 3/4

Apply for apartment type

Hakoportaankatu 4 A 11

4h+k

, Kerrostalo

86 m2

Floor 4/4