Skip to content

Kuormakatu 6 A 23, Helsinki, PASILA

66,5 m2, 3H+KT

Sales agent

Karita Koppinen

Viihtyisä kolmen huoneen koti hyvällä pohjaratkaisulla 4. kerroksessa. Erikoisuutena ikkunallinen vaatehuone, jonka voi sisustaa työhuoneeksi tai vaikkapa lasten leikkihuoneeksi. Asunnon parvekkeelta avautuvat näkymät länteen. Kuvat vastaavasta asunnosta eri kerroksesta.

If you would like to receive more information about this apartment, please contact our salesperson.

Welcome to your future home!

Viihtyisä kolmen huoneen koti hyvällä pohjaratkaisulla 4. kerroksessa. Erikoisuutena ikkunallinen vaatehuone, jonka voi sisustaa työhuoneeksi tai vaikkapa lasten leikkihuoneeksi. Asunnon parvekkeelta avautuvat näkymät länteen. Kuvat vastaavasta asunnosta eri kerroksesta.

If you would like to receive more information about this apartment, please contact our salesperson.

Apartment info

Housing costs

  • Right-of-occupancy payment 47255,38€
    • — Original right-of-occupancy payment 47255,38€
  • Residence charge 1106,39€
    • — Basic charge 933,82€
    • — Communal charge 172,57€
  • Residence charge 1.1. 1105,09€
    • — Basic charge 1.1. 974,85€
    • — Communal charge 1.1. 130,24€
  • Security deposit 250€
  • Advance water fee/person/month 25€
  • Parking fees
    • — Autohallimaksu 1 75,00€
    • — Autopaikkamaksu 2 31,00€
  • Sauna fee 25,00€

Apartment basic info

  • Housing type Apartment house
  • Energy class A2018
  • Apartment type 3H+KT
  • Living area 66.50 m²
  • Floor 4
  • Balcony 1
  • Own sauna No
  • Elevator Yes
  • Available Available now
  • Condition Excellent
  • Pets Allowed
  • Broadband DNA Netti

Extra info

Smoking in our apartments

It has been a long-term policy of ours to make all of our new residential properties completely non-smoking. We are gradually making all of our apartments non-smoking; the agreements of new residents will forbid smoking in the apartments and on the balconies from 1 January 2021 onwards. The property may not be completely non-smoking due to other apartments that may be subject to old agreements with no smoking prohibitions.

Property Introduction

Haaveiletko kodista puutalossa Keskuspuiston kupeessa? Kohteeseen on jatkuva haku, joten jätäthän asuntohakemuksen ja varaa uusi koti!

Autohalli valmistuu 09/2025. Kaikki asukkaat, sekä ne jotka tekevät sopimuksen nyt, pääsevät varaamaan itselleen autohallipaikan niin kauan kun paikkoja riittää.

Kuormakatu 6 on viihtyisä asumisoikeuskohde Postipuistossa. Lähes jokaisessa kodissa on tilan tuntua ja luonnonvaloa tuovat, kahteen suuntaan Pasilaan avautuvat näkymät. Isot ja korkeat ikkunat tekevät asunnoista valoisia, ja osassa asunnoista kodin muunneltavuutta tukee ikkunallinen vaatehuone, joka toimii esimerkiksi työ- tai lastenhuoneena. Korttelin rakennuselementti puu näkyy asunnoissa kauniisti sekä katoissa että ikkunanpuitteissa.

Why Asuntosäätiö?

We believe that a happy home and quality living are for everyone. We do not seek immediate profit or financial benefit. We use the assets gained from our operations to develop our real estate. Over 33,000 Finns have already chosen a home offered by Asuntosäätiö. Pets are also welcome in all our homes.

Property Introduction

Haaveiletko kodista puutalossa Keskuspuiston kupeessa? Kohteeseen on jatkuva haku, joten jätäthän asuntohakemuksen ja varaa uusi koti! Autohalli valmistuu 09/2025. Kaikki asukkaat, sekä ne jotka tekevät sopimuksen nyt, pääsevät varaamaan itselleen autohallipaikan niin kauan kun paikkoja riittää. Kuormakatu 6 on viihtyisä asumisoikeuskohde Postipuistossa. Lähes jokaisessa kodissa on tilan tuntua ja luonnonvaloa tuovat, kahteen suuntaan Pasilaan avautuvat näkymät. Isot ja korkeat ikkunat tekevät asunnoista valoisia, ja osassa asunnoista kodin muunneltavuutta tukee ikkunallinen vaatehuone, joka toimii esimerkiksi työ- tai lastenhuoneena. Korttelin rakennuselementti puu näkyy asunnoissa kauniisti sekä katoissa että ikkunanpuitteissa. Ainutlaatuista tässä talossa on porraskäytävien yhteydessä olevat työ-/oleskelutilat sekä kahden kerroksen korkuiset viherhuoneet, jotka ovat vapaasti asukkaiden käytössä. Talossa on lisäksi viihtyisät saunatilat ja niiden yhteydessä on kerhotila. Kerhotilan parvekkeella voi vilvoitella hyvien löylyjen jälkeen. Lastenvaunuvarastojen yhteydessä on kuraeteiset. Talojen väliin on tulossa viherseinämät, jotka varjostavat mukavasti kesällä. Postipuiston ytimessä on myös alueen talojen asukkaille tarkoitettu yhteinen kylätalo Postivarikko. Postivarikossa on tiloja liikuntaan tai vaikkapa perhejuhliin. Postipuistoon valmistuu myös lähivuosina oma päiväkoti ja koulu. Alueen rakentumisen myötä kehittyviä lähipalveluita täydentää monipuolinen kauppakeskus Tripla. Myyntiä ja esittelyitä hoitaa: Karita Koppinen karita.koppinen(at)asuntosaatio.fi p. 0201612446 Sovithan oman esittelyn!

Basic house info

  • Form of housing Right-of-occupancy
  • Average right-of-occupancy payment / jm² 727,57€
  • Elevators 2
  • House sauna 2
  • Apartment count 89
  • Building count 1

Apartments and floor plans: Kuormakatu 6, Kerrostalo

Add all the apartment types you want to your application. Your opportunity to get an apartment increases when we are able to offer you all of the apartment types that may be available later on in this property. You are automatically in queue for these apartment types.

Apply for apartment type

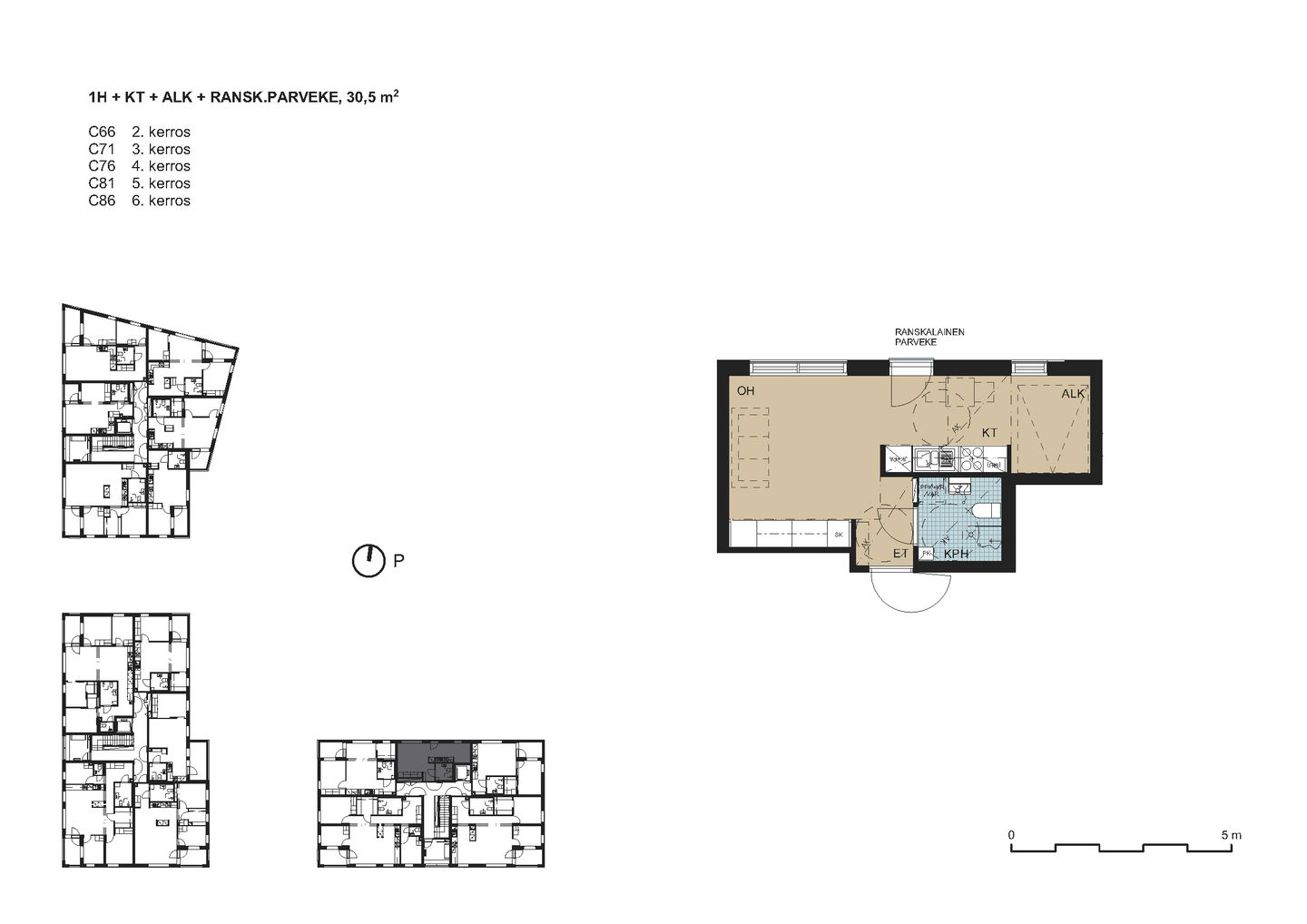
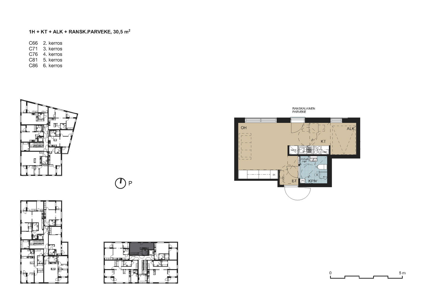
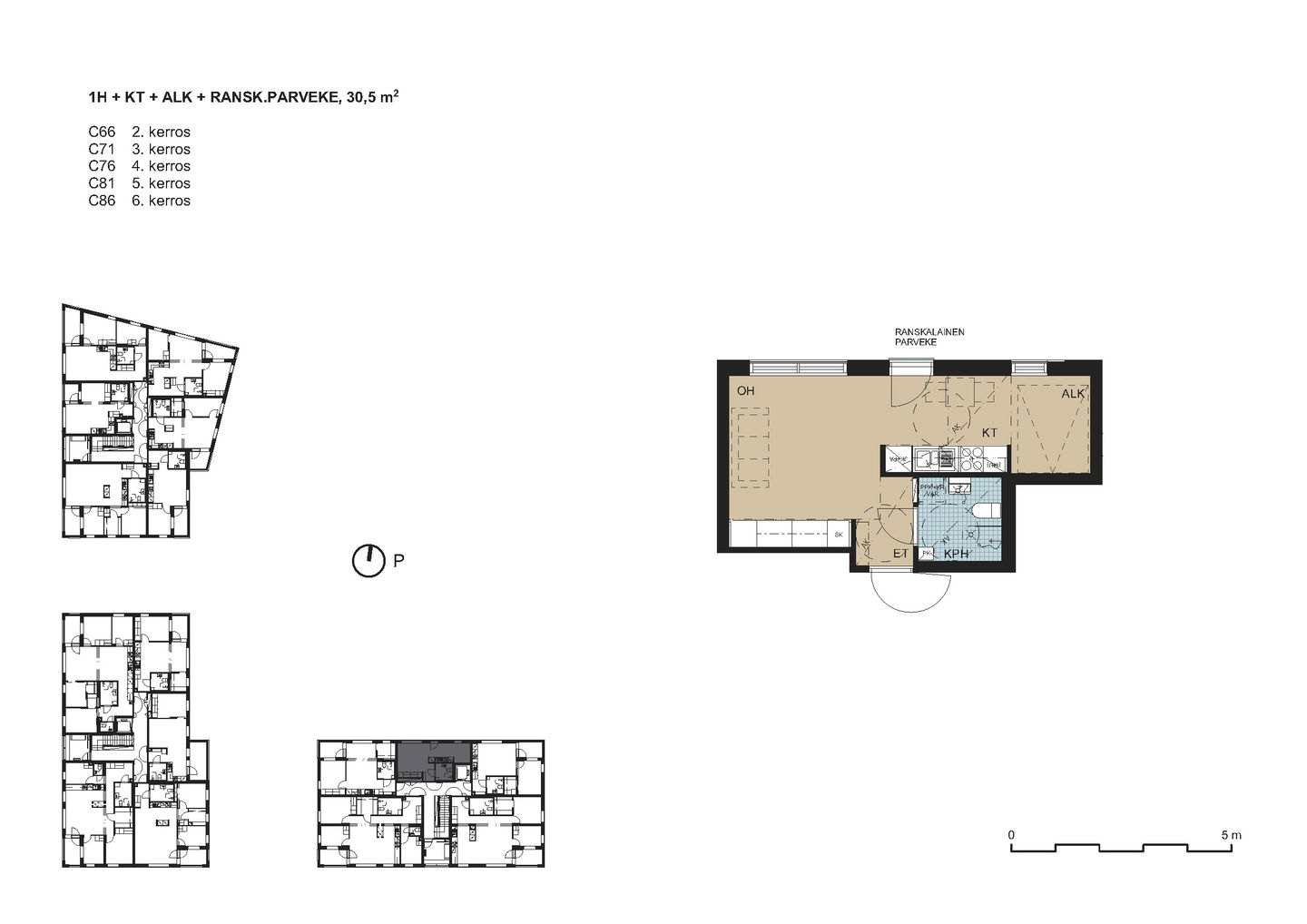
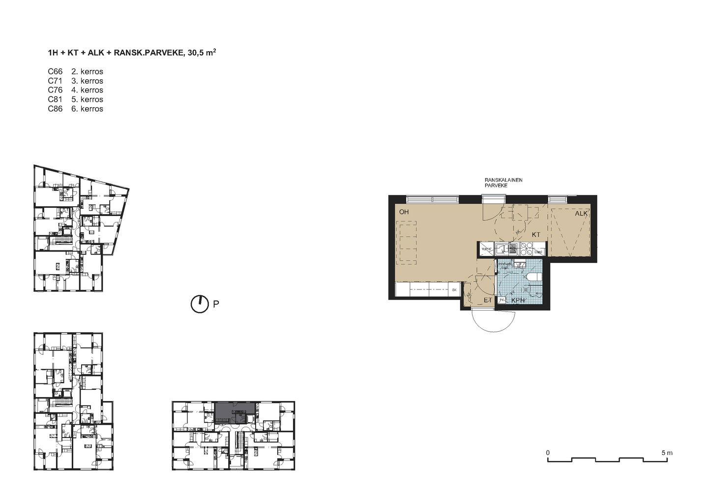
Kuormakatu 6 C 71

1h+kt

, Kerrostalo

30.5 m2

Floor 3/6

Kuormakatu 6 C 86

1h+kt

, Kerrostalo

30.5 m2

Floor 6/6

Kuormakatu 6 C 76

1h+kt

, Kerrostalo

30.5 m2

Floor 4/6

Kuormakatu 6 C 66

1h+kt

, Kerrostalo

30.5 m2

Floor 2/6

Kuormakatu 6 C 81

1h+kt

, Kerrostalo

30.5 m2

Floor 5/6

Kuormakatu 6 A 12

1h+kt+alk

, Kerrostalo

34.5 m2

Floor 3/6

Kuormakatu 6 A 30

1h+kt+alk

, Kerrostalo

34.5 m2

Floor 6/6

Kuormakatu 6 A 1

1h+kt+alk

, Kerrostalo

34.5 m2

Floor 1/6

Kuormakatu 6 A 18

1h+kt+alk

, Kerrostalo

34.5 m2

Floor 4/6

Kuormakatu 6 A 6

1h+kt+alk

, Kerrostalo

34.5 m2

Floor 2/6

Kuormakatu 6 A 24

1h+kt+alk

, Kerrostalo

34.5 m2

Floor 5/6

Apply for apartment type

Kuormakatu 6 A 16

2h+kt

, Kerrostalo

35.5 m2

Floor 3/6

Kuormakatu 6 A 4

2h+kt

, Kerrostalo

35.5 m2

Floor 1/6

Kuormakatu 6 A 28

2h+kt

, Kerrostalo

35.5 m2

Floor 5/6

Kuormakatu 6 A 10

2h+kt

, Kerrostalo

35.5 m2

Floor 2/6

Kuormakatu 6 A 34

2h+kt

, Kerrostalo

35.5 m2

Floor 6/6

Kuormakatu 6 A 22

2h+kt

, Kerrostalo

35.5 m2

Floor 4/6

Kuormakatu 6 C 67

2h+kt

, Kerrostalo

39.5 m2

Floor 2/6

Kuormakatu 6 C 82

2h+kt

, Kerrostalo

39.5 m2

Floor 5/6

Kuormakatu 6 C 72

2h+kt

, Kerrostalo

39.5 m2

Floor 3/6

Kuormakatu 6 C 77

2h+kt

, Kerrostalo

39.5 m2

Floor 4/6

Kuormakatu 6 C 87

2h+kt

, Kerrostalo

39.5 m2

Floor 6/6

Kuormakatu 6 C 64

2h+kt

, Kerrostalo

39.5 m2

Floor 1/6

Kuormakatu 6 B 50

2h+kt

, Kerrostalo

42 m2

Floor 4/6

Kuormakatu 6 B 60

2h+kt

, Kerrostalo

42 m2

Floor 6/6

Kuormakatu 6 B 45

2h+kt

, Kerrostalo

42 m2

Floor 3/6

Kuormakatu 6 B 55

2h+kt

, Kerrostalo

42 m2

Floor 5/6

Kuormakatu 6 B 41

2h+kt

, Kerrostalo

42 m2

Floor 2/6

Kuormakatu 6 A 21

2h+kt

, Kerrostalo

43 m2

Floor 4/6

Kuormakatu 6 A 15

2h+kt

, Kerrostalo

43 m2

Floor 3/6

Kuormakatu 6 A 33

2h+kt

, Kerrostalo

43 m2

Floor 6/6

Kuormakatu 6 A 9

2h+kt

, Kerrostalo

43 m2

Floor 2/6

Kuormakatu 6 A 27

2h+kt

, Kerrostalo

43 m2

Floor 5/6

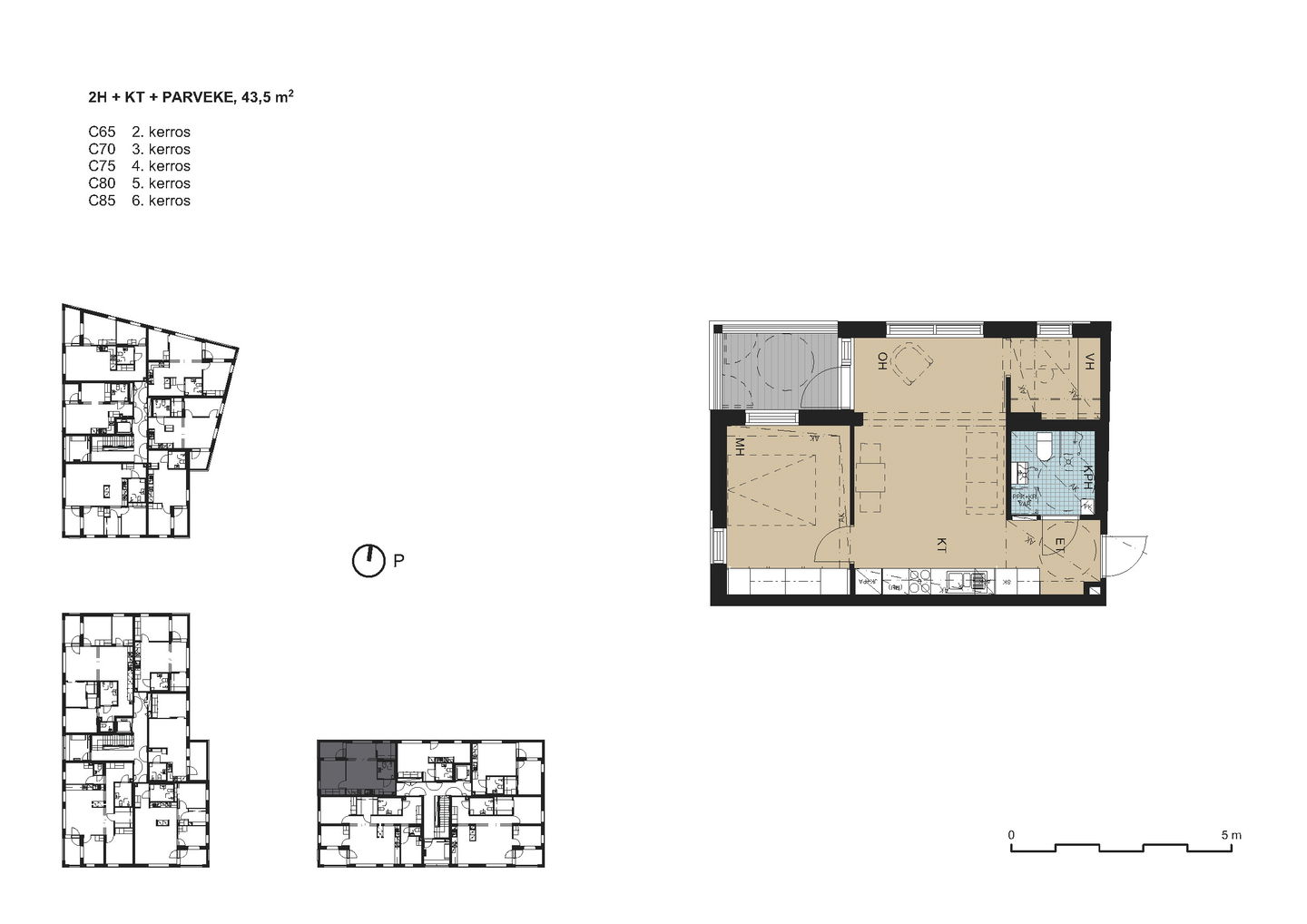
Kuormakatu 6 B 44

2h+kt

, Kerrostalo

43.5 m2

Floor 3/6

Kuormakatu 6 B 37

2h+kt

, Kerrostalo

43.5 m2

Floor 1/6

Kuormakatu 6 B 49

2h+kt

, Kerrostalo

43.5 m2

Floor 4/6

Kuormakatu 6 B 40

2h+kt

, Kerrostalo

43.5 m2

Floor 2/6

Kuormakatu 6 B 54

2h+kt

, Kerrostalo

43.5 m2

Floor 5/6

Kuormakatu 6 B 59

2h+kt

, Kerrostalo

43.5 m2

Floor 6/6

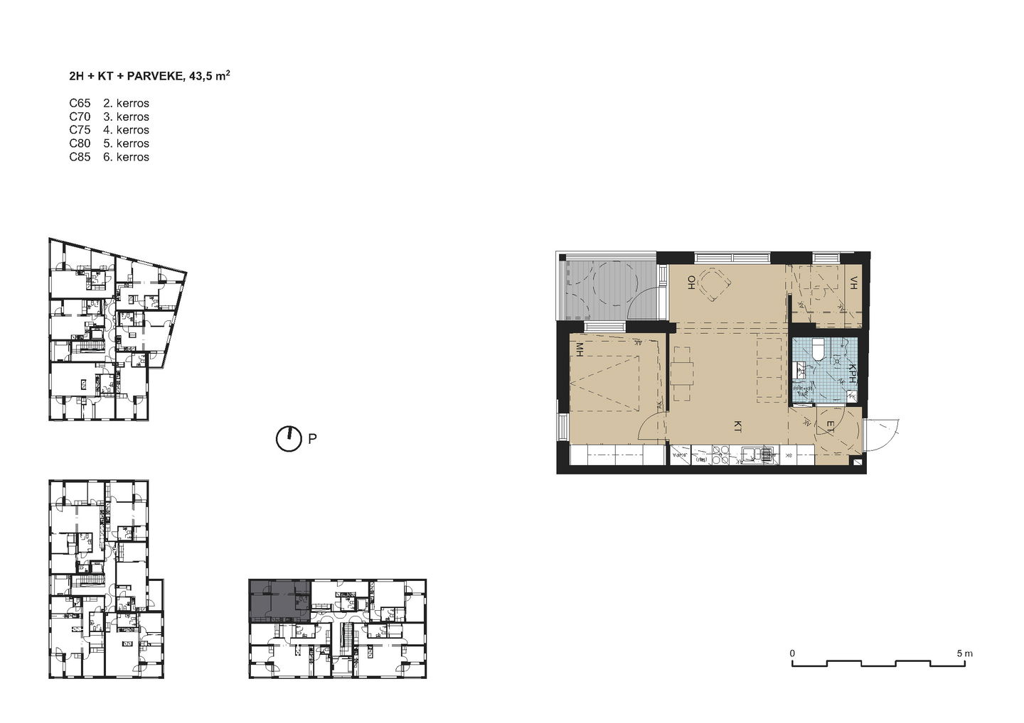
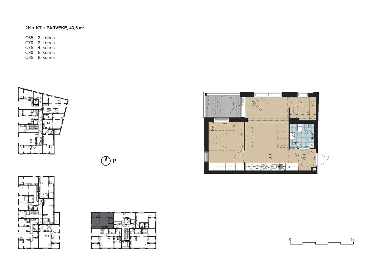
Kuormakatu 6 C 80

2h+kt

, Kerrostalo

43.5 m2

Floor 5/6

Kuormakatu 6 C 85

2h+kt

, Kerrostalo

43.5 m2

Floor 6/6

Kuormakatu 6 C 65

2h+kt

, Kerrostalo

43.5 m2

Floor 2/6

Kuormakatu 6 C 63

2h+kt

, Kerrostalo

43.5 m2

Floor 1/6

Kuormakatu 6 C 75

2h+kt

, Kerrostalo

43.5 m2

Floor 4/6

Kuormakatu 6 C 70

2h+kt

, Kerrostalo

43.5 m2

Floor 3/6

Apply for apartment type

Kuormakatu 6 A 3

3h+kt

, Kerrostalo

53 m2

Floor 1/6

Available now

Kuormakatu 6 A 8

3h+kt

, Kerrostalo

53 m2

Floor 2/6

Available now

Kuormakatu 6 A 32

3h+kt

, Kerrostalo

53 m2

Floor 6/6

Kuormakatu 6 A 14

3h+kt

, Kerrostalo

53 m2

Floor 3/6

Kuormakatu 6 A 20

3h+kt

, Kerrostalo

53 m2

Floor 4/6

Kuormakatu 6 A 26

3h+kt

, Kerrostalo

53 m2

Floor 5/6

Kuormakatu 6 A 25

3h+kt

, Kerrostalo

56 m2

Floor 5/6

Kuormakatu 6 A 31

3h+kt

, Kerrostalo

56 m2

Floor 6/6

Kuormakatu 6 A 2

3h+kt

, Kerrostalo

56 m2

Floor 1/6

Available now

Kuormakatu 6 A 7

3h+kt

, Kerrostalo

56 m2

Floor 2/6

Available now

Kuormakatu 6 A 19

3h+kt

, Kerrostalo

56 m2

Floor 4/6

Kuormakatu 6 A 13

3h+kt

, Kerrostalo

56 m2

Floor 3/6

Kuormakatu 6 B 56

3h+kt

, Kerrostalo

66 m2

Floor 5/6

Kuormakatu 6 B 51

3h+kt

, Kerrostalo

66 m2

Floor 4/6

Kuormakatu 6 B 61

3h+kt

, Kerrostalo

66 m2

Floor 6/6

Kuormakatu 6 B 46

3h+kt

, Kerrostalo

66 m2

Floor 3/6

Kuormakatu 6 A 17

3h+kt

, Kerrostalo

66.5 m2

Floor 3/6

Kuormakatu 6 A 11

3h+kt

, Kerrostalo

66.5 m2

Floor 2/6

Kuormakatu 6 A 23

3h+kt

, Kerrostalo

66.5 m2

Floor 4/6

Available now

Kuormakatu 6 A 35

3h+kt

, Kerrostalo

66.5 m2

Floor 6/6

Kuormakatu 6 A 5

3h+kt

, Kerrostalo

66.5 m2

Floor 1/6

Available now

Kuormakatu 6 A 29

3h+kt

, Kerrostalo

66.5 m2

Floor 5/6

Kuormakatu 6 C 68

3h+kt

, Kerrostalo

69.5 m2

Floor 2/6

Kuormakatu 6 C 78

3h+kt

, Kerrostalo

69.5 m2

Floor 4/6

Kuormakatu 6 C 88

3h+kt

, Kerrostalo

69.5 m2

Floor 6/6

Kuormakatu 6 C 83

3h+kt

, Kerrostalo

69.5 m2

Floor 5/6

Kuormakatu 6 C 73

3h+kt

, Kerrostalo

69.5 m2

Floor 3/6

Apply for apartment type

Kuormakatu 6 B 57

4h+kt

, Kerrostalo

79.5 m2

Floor 5/6

Kuormakatu 6 B 47

4h+kt

, Kerrostalo

79.5 m2

Floor 3/6

Kuormakatu 6 B 52

4h+kt

, Kerrostalo

79.5 m2

Floor 4/6

Kuormakatu 6 B 42

4h+kt

, Kerrostalo

79.5 m2

Floor 2/6

Kuormakatu 6 B 38

4h+kt

, Kerrostalo

79.5 m2

Floor 1/6

Kuormakatu 6 B 62

4h+kt

, Kerrostalo

79.5 m2

Floor 6/6

Kuormakatu 6 C 89

4h+kt

, Kerrostalo

79.5 m2

Floor 6/6

Kuormakatu 6 C 79

4h+kt

, Kerrostalo

79.5 m2

Floor 4/6

Kuormakatu 6 C 84

4h+kt

, Kerrostalo

79.5 m2

Floor 5/6

Kuormakatu 6 C 69

4h+kt

, Kerrostalo

79.5 m2

Floor 2/6

Kuormakatu 6 C 74

4h+kt

, Kerrostalo

79.5 m2

Floor 3/6

Apply for apartment type

Kuormakatu 6 B 43

5h+kt

, Kerrostalo

88 m2

Floor 3/6

Kuormakatu 6 B 48

5h+kt

, Kerrostalo

88 m2

Floor 4/6

Kuormakatu 6 B 39

5h+kt

, Kerrostalo

88 m2

Floor 2/6

Kuormakatu 6 B 36

5h+kt

, Kerrostalo

88 m2

Floor 1/6

Kuormakatu 6 B 53

5h+kt

, Kerrostalo

88 m2

Floor 5/6

Kuormakatu 6 B 58

5h+kt

, Kerrostalo

88 m2

Floor 6/6