Skip to content

Ensi parvi 3 B 24, Helsinki, Vuosaari

67,5 m2, 3H+KT

Sales agent

Laura Jaakkola

Valoisa ylimmän kerroksen päätyasunto vehreässä Vuosaaressa!

Makuuhuoneet sijaitsevat erillään toisistaan, omassa rauhassaan. Toisesta makuuhuoneesta on käynti lasitetulle länsiparvekkeelle.

If you would like to receive more information about this apartment, please contact our salesperson.

Welcome to your future home!

Valoisa ylimmän kerroksen päätyasunto vehreässä Vuosaaressa! Makuuhuoneet sijaitsevat erillään toisistaan, omassa rauhassaan. Toisesta makuuhuoneesta on käynti lasitetulle länsiparvekkeelle. Kulmamallinen keittiö ja olohuone ovat yhtenäistä tilaa, jossa on mukava viettää aikaa perheen ja ystävien kesken. Asunnon ikkunat ovat kolmeen ilmansuuntaan. Tervetuloa kotiin!

If you would like to receive more information about this apartment, please contact our salesperson.

Apartment info

Housing costs

Prices are estimates for now.

  • Right-of-occupancy payment 49068,79€
    • — Original right-of-occupancy payment 49068,79€
  • Residence charge 1196,12€
    • — Basic charge 1019,32€
    • — Communal charge 176,8€
  • Security deposit 250€
  • Advance water fee/person/month 25€
  • Parking fees
    • — Autohallimaksu 1 40,00€
  • Sauna fee 20,00€

Apartment basic info

  • Housing type Apartment house
  • Energy class A2018
  • Apartment type 3H+KT
  • Living area 67.50 m²
  • Floor 5
  • Own sauna No
  • Elevator Yes
  • Estimated completion date 31.05.2027
  • Condition Excellent
  • Pets Allowed
  • Broadband DNA Netti

Extra info

Smoking in our apartments

It has been a long-term policy of ours to make all of our new residential properties completely non-smoking. We are gradually making all of our apartments non-smoking; the agreements of new residents will forbid smoking in the apartments and on the balconies from 1 January 2021 onwards. The property may not be completely non-smoking due to other apartments that may be subject to old agreements with no smoking prohibitions.

Property Introduction

Ensimmäiset tarjouskierrokset ovat käsittelyssä. Olemme yhteydessä tarjouksen hyväksyneisiin hakijoihin, joille voidaan varata asunto. Tarjouskierrosten käsittelyssä voi kestää useampi viikko. Vapaaksi jääviin asuntoihin on jatkuva haku.

Ensi parven upeat, valoisat kodit tarjoavat rauhallisen asuinympäristön kaupungin kupeessa, arvostettujen luontokohteiden äärellä. Kolmeen 5-6 -kerroksiseen taloon valmistuu yhteensä 115 hyvin suunniteltua asumisoikeuskotia. Huoneistojen koot vaihtelevat 32-neliöisistä yksiöistä lähes sadan neliön viisihuoneisiin perheasuntoihin. Monipuoliset huoneistopohjat ja toimivat pohjaratkaisut inspiroivat sisustajaa – näistä asunnoista jokainen saa luotua juuri omannäköisen kodin. Asunnon materiaalivalintoihin on mahdollista vaikuttaa C-D -rapuissa 10.3.26 asti ja A-B -rapuissa 22.6.26 asti. Huom. Lisähintaisten tuotteiden valintojen eräpäivät erikseen. E-F rapuissa asuntojen materiaalit vaihtelevat kerroksittain. Tutustu valittavissa oleviin materiaaleihin oheisista materiaaliesitteistä!

Lukuisat, suuret ikkunat antavat luonnonvalon virrata kauniisti kaikissa asunnoissa. Kaksioistakin löytyy läpitalon huoneistoja ja isommista päätyhuoneistoista avautuvat näkymät jopa kolmeen ilmansuuntaan. Isoimpien asuntojen keittiöissä on saareke ja kylpyhuoneen lisäksi toinen wc-tila. Yksiöissäkin alkovit tarjoavat rauhallisen makuuhuonetilan ja osa asunnoista on varustettu vaatehuoneilla. Osa huoneistoista on kaksikerroksisia ja niihin on oma sisäänkäynti. Yhteistiloissa olevan irtaimistovaraston lisäksi useissa kodeissa on toinen lämmin varastotila asunnon yhteydessä.

Why Asuntosäätiö?

We believe that a happy home and quality living are for everyone. We do not seek immediate profit or financial benefit. We use the assets gained from our operations to develop our real estate. Over 33,000 Finns have already chosen a home offered by Asuntosäätiö. Pets are also welcome in all our homes.

Property Introduction

Ensimmäiset tarjouskierrokset ovat käsittelyssä. Olemme yhteydessä tarjouksen hyväksyneisiin hakijoihin, joille voidaan varata asunto. Tarjouskierrosten käsittelyssä voi kestää useampi viikko. Vapaaksi jääviin asuntoihin on jatkuva haku. Ensi parven upeat, valoisat kodit tarjoavat rauhallisen asuinympäristön kaupungin kupeessa, arvostettujen luontokohteiden äärellä. Kolmeen 5-6 -kerroksiseen taloon valmistuu yhteensä 115 hyvin suunniteltua asumisoikeuskotia. Huoneistojen koot vaihtelevat 32-neliöisistä yksiöistä lähes sadan neliön viisihuoneisiin perheasuntoihin. Monipuoliset huoneistopohjat ja toimivat pohjaratkaisut inspiroivat sisustajaa – näistä asunnoista jokainen saa luotua juuri omannäköisen kodin. Asunnon materiaalivalintoihin on mahdollista vaikuttaa C-D -rapuissa 10.3.26 asti ja A-B -rapuissa 22.6.26 asti. Huom. Lisähintaisten tuotteiden valintojen eräpäivät erikseen. E-F rapuissa asuntojen materiaalit vaihtelevat kerroksittain. Tutustu valittavissa oleviin materiaaleihin oheisista materiaaliesitteistä! Lukuisat, suuret ikkunat antavat luonnonvalon virrata kauniisti kaikissa asunnoissa. Kaksioistakin löytyy läpitalon huoneistoja ja isommista päätyhuoneistoista avautuvat näkymät jopa kolmeen ilmansuuntaan. Isoimpien asuntojen keittiöissä on saareke ja kylpyhuoneen lisäksi toinen wc-tila. Yksiöissäkin alkovit tarjoavat rauhallisen makuuhuonetilan ja osa asunnoista on varustettu vaatehuoneilla. Osa huoneistoista on kaksikerroksisia ja niihin on oma sisäänkäynti. Yhteistiloissa olevan irtaimistovaraston lisäksi useissa kodeissa on toinen lämmin varastotila asunnon yhteydessä. Kaikkiin koteihin kuuluu terassi tai lasitettu parveke, joista osa on jopa koko huoneiston levyisiä. Parvekkeille asennetaan viherpeukaloiden iloksi valmiit istutuslaatikot, jotka on suunniteltu siten, että niiden kastelun hoitaa pääosin sadevesi. Poikkeuksellisen rakennustavan ansiosta piha-alueen alkuperäinen kasvillisuus sekä kauniit kalliot säilyvät ja Ensi parven asukkaat pääsevät heti nauttimaan monimuotoisesta, valmiista viherympäristöstä myös ulkosalla. Ensi parven rinnetontilla on paljon luontaisia korkeuseroja, sillä myös kalliota varjellaan kasvien tavoin. Pihalle tulevan ulkohissin ansiosta eri tasoissa pystyy silti liikkumaan esteettömästi. Jokaiseen taloon rakennetaan kattoterassi oleskelualueineen ja viljelylaatikoineen. Niiden yhteydestä löytyy kaksi kerhotilaa sekä kolme talosaunaa, joissa voi nauttia makoisista löylyistä hienojen näkymien ja vilvoitteluterassien kera. Omasta pysäköintihallista on kätevät kulkuyhteydet taloihin, ja yhteiskäyttöautot tekevät arjen liikkumisesta joustavaa. Alle kilometrin säteellä Ensi parvelta löytyvät toimivat lähipalvelut, kaksi päivittäistavarakauppaa sekä useampi päiväkoti. Broändan purolaakson reitit johdattavat meren äärelle Vartiokylän lahdelle ja toiseen suuntaan Mustavuoren upealle luonnonsuojelualueelle.

Basic house info

  • Form of housing Right-of-occupancy
  • Average right-of-occupancy payment / jm² 721,6€
  • Elevators 6
  • House sauna 5
  • Laundry room Yes
  • Drying room Yes

Apartments and floor plans: Ensi parvi 3, Kerrostalo

Add all the apartment types you want to your application. Your opportunity to get an apartment increases when we are able to offer you all of the apartment types that may be available later on in this property. You are automatically in queue for these apartment types.

Apply for apartment type

Ensi parvi 3 D 47

1h+kt+alk

, Kerrostalo

32 m2

Floor 2/6

Ensi parvi 3 F 96

1h+kt+alk

, Kerrostalo

32 m2

Floor 2/5

Will be available 31.01.2027

Ensi parvi 3 D 62

1h+kt+alk

, Kerrostalo

38.5 m2

Floor 5/6

Will be available 31.01.2027

Ensi parvi 3 D 52

1h+kt+alk

, Kerrostalo

38.5 m2

Floor 3/6

Will be available 31.01.2027

Ensi parvi 3 F 111

1h+kt+alk

, Kerrostalo

38.5 m2

Floor 5/5

Will be available 31.01.2027

Ensi parvi 3 D 57

1h+kt+alk

, Kerrostalo

38.5 m2

Floor 4/6

Will be available 31.01.2027

Ensi parvi 3 F 106

1h+kt+alk

, Kerrostalo

38.5 m2

Floor 4/5

Will be available 31.01.2027

Ensi parvi 3 D 66

1h+kt+alk

, Kerrostalo

38.5 m2

Floor 6/6

Will be available 31.01.2027

Ensi parvi 3 F 101

1h+kt+alk

, Kerrostalo

38.5 m2

Floor 3/5

Will be available 31.01.2027

Ensi parvi 3 B 13

1h+kt+alk

, Kerrostalo

42.5 m2

Floor 1/5

Will be available 31.05.2027
Apply for apartment type

Ensi parvi 3 E 90

2h+kt

, Kerrostalo

33.5 m2

Floor 4/5

Ensi parvi 3 C 34

2h+kt

, Kerrostalo

33.5 m2

Floor 2/6

Will be available 31.01.2027

Ensi parvi 3 E 77

2h+kt

, Kerrostalo

33.5 m2

Floor 2/5

Will be available 31.01.2027

Ensi parvi 3 F 103

2h+kt

, Kerrostalo

40 m2

Floor 3/5

Will be available 31.01.2027

Ensi parvi 3 F 98

2h+kt

, Kerrostalo

40 m2

Floor 2/5

Will be available 31.01.2027

Ensi parvi 3 C 39

2h+kt

, Kerrostalo

40 m2

Floor 3/6

Will be available 31.01.2027

Ensi parvi 3 F 99

2h+kt

, Kerrostalo

40 m2

Floor 2/5

Will be available 31.01.2027

Ensi parvi 3 D 59

2h+kt

, Kerrostalo

40 m2

Floor 4/6

Will be available 31.01.2027

Ensi parvi 3 F 108

2h+kt

, Kerrostalo

40 m2

Floor 4/5

Will be available 31.01.2027

Ensi parvi 3 D 55

2h+kt

, Kerrostalo

40 m2

Floor 3/6

Will be available 31.01.2027

Ensi parvi 3 D 49

2h+kt

, Kerrostalo

40 m2

Floor 2/6

Will be available 31.01.2027

Ensi parvi 3 D 68

2h+kt

, Kerrostalo

40 m2

Floor 6/6

Ensi parvi 3 E 83

2h+kt

, Kerrostalo

40 m2

Floor 3/5

Will be available 31.01.2027

Ensi parvi 3 D 64

2h+kt

, Kerrostalo

40 m2

Floor 5/6

Will be available 31.01.2027

Ensi parvi 3 D 69

2h+kt

, Kerrostalo

40 m2

Floor 6/6

Ensi parvi 3 D 63

2h+kt

, Kerrostalo

40 m2

Floor 5/6

Will be available 31.01.2027

Ensi parvi 3 C 44

2h+kt

, Kerrostalo

40 m2

Floor 4/6

Will be available 31.01.2027

Ensi parvi 3 F 114

2h+kt

, Kerrostalo

40 m2

Floor 5/5

Will be available 31.01.2027

Ensi parvi 3 F 104

2h+kt

, Kerrostalo

40 m2

Floor 3/5

Will be available 31.01.2027

Ensi parvi 3 F 109

2h+kt

, Kerrostalo

40 m2

Floor 4/5

Will be available 31.01.2027

Ensi parvi 3 D 54

2h+kt

, Kerrostalo

40 m2

Floor 3/6

Will be available 31.01.2027

Ensi parvi 3 D 50

2h+kt

, Kerrostalo

40 m2

Floor 2/6

Will be available 31.01.2027

Ensi parvi 3 D 60

2h+kt

, Kerrostalo

40 m2

Floor 4/6

Will be available 31.01.2027

Ensi parvi 3 F 113

2h+kt

, Kerrostalo

40 m2

Floor 5/5

Will be available 31.01.2027

Ensi parvi 3 B 18

2h+kt

, Kerrostalo

42 m2

Floor 3/5

Will be available 31.05.2027

Ensi parvi 3 B 25

2h+kt

, Kerrostalo

42 m2

Floor 5/5

Will be available 31.05.2027

Ensi parvi 3 E 88

2h+kt

, Kerrostalo

43 m2

Floor 4/5

Ensi parvi 3 E 81

2h+kt

, Kerrostalo

43 m2

Floor 3/5

Will be available 31.01.2027

Ensi parvi 3 C 32

2h+kt

, Kerrostalo

43 m2

Floor 2/6

Will be available 31.01.2027

Ensi parvi 3 E 75

2h+kt

, Kerrostalo

43 m2

Floor 2/5

Will be available 31.01.2027

Ensi parvi 3 E 78

2h+kt

, Kerrostalo

43 m2

Floor 2/5

Will be available 31.01.2027

Ensi parvi 3 C 37

2h+kt

, Kerrostalo

43 m2

Floor 3/6

Will be available 31.01.2027

Ensi parvi 3 C 42

2h+kt

, Kerrostalo

43 m2

Floor 4/6

Will be available 31.01.2027

Ensi parvi 3 E 87

2h+kt

, Kerrostalo

45 m2

Floor 4/5

Ensi parvi 3 E 74

2h+kt

, Kerrostalo

45 m2

Floor 2/5

Will be available 31.01.2027

Ensi parvi 3 E 80

2h+kt

, Kerrostalo

45 m2

Floor 3/5

Will be available 31.01.2027

Ensi parvi 3 B 22

2h+kt

, Kerrostalo

47.5 m2

Floor 4/5

Ensi parvi 3 B 19

2h+kt

, Kerrostalo

47.5 m2

Floor 3/5

Will be available 31.05.2027

Ensi parvi 3 B 15

2h+kt

, Kerrostalo

47.5 m2

Floor 2/5

Will be available 31.05.2027

Ensi parvi 3 B 26

2h+kt

, Kerrostalo

47.5 m2

Floor 5/5

Will be available 31.05.2027

Ensi parvi 3 A 9

2h+kt

, Kerrostalo

49 m2

Floor 3/5

Will be available 31.05.2027

Ensi parvi 3 A 5

2h+kt

, Kerrostalo

49 m2

Floor 2/5

Will be available 31.05.2027

Ensi parvi 3 C 36

2h+kt+var

, Kerrostalo

45 m2

Floor 3/6

Will be available 31.01.2027

Ensi parvi 3 C 41

2h+kt+var

, Kerrostalo

45 m2

Floor 4/6

Will be available 31.01.2027

Ensi parvi 3 C 31

2h+kt+var

, Kerrostalo

45 m2

Floor 2/6

Will be available 31.01.2027

Ensi parvi 3 A 4

2h+kt+var

, Kerrostalo

48.5 m2

Floor 2/5

Will be available 31.05.2027

Ensi parvi 3 A 8

2h+kt+var

, Kerrostalo

48.5 m2

Floor 3/5

Ensi parvi 3 E 91

2h+kt+var

, Kerrostalo

49.5 m2

Floor 4/5

Will be available 31.01.2027
Apply for apartment type

Ensi parvi 3 B 11

3h+kt

, Kerrostalo

54.5 m2

Floor 1/5

Will be available 31.05.2027

Ensi parvi 3 E 93

3h+kt

, Kerrostalo

60 m2

Floor 5/5

Ensi parvi 3 E 92

3h+kt

, Kerrostalo

60 m2

Floor 4/5

Ensi parvi 3 B 24

3h+kt

, Kerrostalo

67.5 m2

Floor 5/5

Will be available 31.05.2027

Ensi parvi 3 B 17

3h+kt

, Kerrostalo

67.5 m2

Floor 3/5

Will be available 31.05.2027

Ensi parvi 3 B 20

3h+kt

, Kerrostalo

68 m2

Floor 3/5

Will be available 31.05.2027

Ensi parvi 3 B 27

3h+kt

, Kerrostalo

68 m2

Floor 5/5

Will be available 31.05.2027

Ensi parvi 3 B 16

3h+kt

, Kerrostalo

68 m2

Floor 2/5

Will be available 31.05.2027

Ensi parvi 3 B 23

3h+kt

, Kerrostalo

68 m2

Floor 4/5

Will be available 31.05.2027

Ensi parvi 3 B 21

3h+kt

, Kerrostalo

68 m2

Floor 4/5

Ensi parvi 3 A 10

3h+kt

, Kerrostalo

71 m2

Floor 3/5

Will be available 31.05.2027

Ensi parvi 3 A 6

3h+kt

, Kerrostalo

71 m2

Floor 2/5

Will be available 31.05.2027

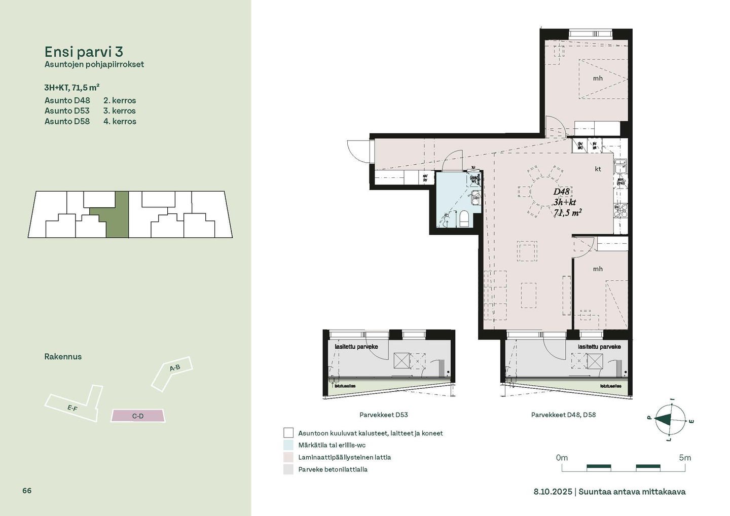
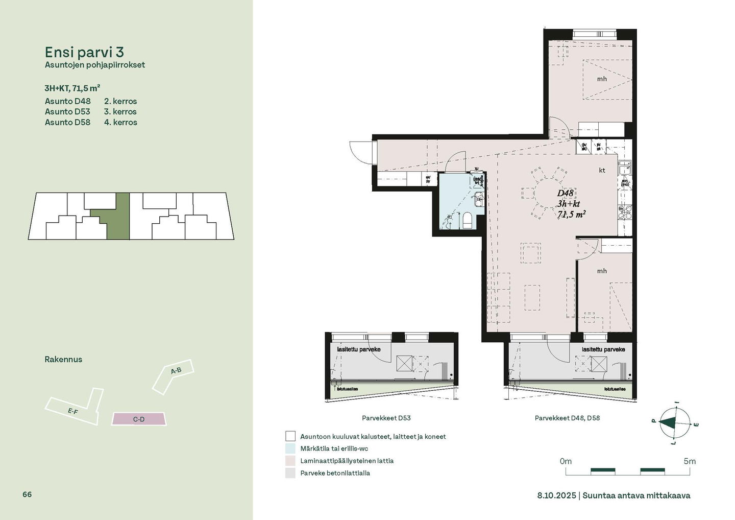
Ensi parvi 3 C 38

3h+kt

, Kerrostalo

71.5 m2

Floor 3/6

Will be available 31.01.2027

Ensi parvi 3 C 33

3h+kt

, Kerrostalo

71.5 m2

Floor 2/6

Will be available 31.01.2027

Ensi parvi 3 F 112

3h+kt

, Kerrostalo

71.5 m2

Floor 5/5

Will be available 31.01.2027

Ensi parvi 3 D 53

3h+kt

, Kerrostalo

71.5 m2

Floor 3/6

Will be available 31.01.2027

Ensi parvi 3 F 102

3h+kt

, Kerrostalo

71.5 m2

Floor 3/5

Will be available 31.01.2027

Ensi parvi 3 D 58

3h+kt

, Kerrostalo

71.5 m2

Floor 4/6

Will be available 31.01.2027

Ensi parvi 3 F 97

3h+kt

, Kerrostalo

71.5 m2

Floor 2/5

Will be available 31.01.2027

Ensi parvi 3 D 67

3h+kt

, Kerrostalo

71.5 m2

Floor 6/6

Will be available 31.01.2027

Ensi parvi 3 F 107

3h+kt

, Kerrostalo

71.5 m2

Floor 4/5

Will be available 31.01.2027

Ensi parvi 3 E 89

3h+kt

, Kerrostalo

71.5 m2

Floor 4/5

Will be available 31.01.2027

Ensi parvi 3 E 82

3h+kt

, Kerrostalo

71.5 m2

Floor 3/5

Will be available 31.01.2027

Ensi parvi 3 D 48

3h+kt

, Kerrostalo

71.5 m2

Floor 2/6

Will be available 31.01.2027

Ensi parvi 3 E 76

3h+kt

, Kerrostalo

71.5 m2

Floor 2/5

Will be available 31.01.2027

Ensi parvi 3 C 43

3h+kt

, Kerrostalo

71.5 m2

Floor 4/6

Will be available 31.01.2027

Ensi parvi 3 B 12

3h+kt

, Kerrostalo

72.5 m2

Floor 1/5

Will be available 31.05.2027

Ensi parvi 3 B 14

3h+kt

, Kerrostalo

84.5 m2

Floor 2/5

Will be available 31.05.2027

Ensi parvi 3 A 1

3h+kt+var

, Kerrostalo

63 m2

Floor 1/5

Will be available 31.05.2027

Ensi parvi 3 E 73

3h+kt+var

, Kerrostalo

68.5 m2

Floor 2/5

Will be available 31.01.2027

Ensi parvi 3 E 79

3h+kt+var

, Kerrostalo

68.5 m2

Floor 3/5

Will be available 31.01.2027

Ensi parvi 3 E 86

3h+kt+var

, Kerrostalo

68.5 m2

Floor 4/5

Will be available 31.01.2027

Ensi parvi 3 A 2

3h+kt+var

, Kerrostalo

73 m2

Floor 1/5

Will be available 31.05.2027
Apply for apartment type

Ensi parvi 3 F 115

4h+kt

, Kerrostalo

76 m2

Floor 5/5

Will be available 31.01.2027

Ensi parvi 3 D 56

4h+kt

, Kerrostalo

76 m2

Floor 3/6

Will be available 31.01.2027

Ensi parvi 3 F 110

4h+kt

, Kerrostalo

76 m2

Floor 4/5

Will be available 31.01.2027

Ensi parvi 3 F 105

4h+kt

, Kerrostalo

76 m2

Floor 3/5

Will be available 31.01.2027

Ensi parvi 3 D 65

4h+kt

, Kerrostalo

76 m2

Floor 5/6

Will be available 31.01.2027

Ensi parvi 3 F 100

4h+kt

, Kerrostalo

76 m2

Floor 2/5

Will be available 31.01.2027

Ensi parvi 3 D 51

4h+kt

, Kerrostalo

76 m2

Floor 2/6

Will be available 31.01.2027

Ensi parvi 3 C 30

4h+kt

, Kerrostalo

76 m2

Floor 2/6

Will be available 31.01.2027

Ensi parvi 3 D 61

4h+kt

, Kerrostalo

76 m2

Floor 4/6

Will be available 31.01.2027

Ensi parvi 3 C 35

4h+kt

, Kerrostalo

76 m2

Floor 3/6

Will be available 31.01.2027

Ensi parvi 3 C 40

4h+kt

, Kerrostalo

76 m2

Floor 4/6

Will be available 31.01.2027

Ensi parvi 3 D 70

4h+kt

, Kerrostalo

76 m2

Floor 6/6

Ensi parvi 3 E 71

4h+kt

, Kerrostalo

77 m2

Floor 1/5

Will be available 31.01.2027

Ensi parvi 3 E 85

4h+kt

, Kerrostalo

80.5 m2

Floor 3-4/5

Will be available 31.01.2027

Ensi parvi 3 A 3

4h+kt

, Kerrostalo

80.5 m2

Floor 2/5

Ensi parvi 3 A 7

4h+kt

, Kerrostalo

80.5 m2

Floor 3/5

Ensi parvi 3 E 84

4h+kt

, Kerrostalo

81.5 m2

Floor 3-4/5

Will be available 31.01.2027

Ensi parvi 3 D 45

4h+kt+var

, Kerrostalo

77.5 m2

Floor 1/6

Will be available 31.01.2027

Ensi parvi 3 C 28

4h+kt+var

, Kerrostalo

77.5 m2

Floor 1/6

Will be available 31.01.2027

Ensi parvi 3 F 94

4h+kt+var

, Kerrostalo

77.5 m2

Floor 1/5

Will be available 31.01.2027

Ensi parvi 3 C 29

4h+kt+var

, Kerrostalo

80.5 m2

Floor 1/6

Will be available 31.01.2027

Ensi parvi 3 E 72

4h+kt+var

, Kerrostalo

80.5 m2

Floor 1/5

Will be available 31.01.2027
Apply for apartment type

Ensi parvi 3 D 46

5h+kt+var

, Kerrostalo

98.5 m2

Floor 1/6

Ensi parvi 3 F 95

5h+kt+var

, Kerrostalo

98.5 m2

Floor 1/5

Will be available 31.01.2027