Skip to content

Kajuuttakuja 5 A 16, Espoo, Espoonlahti

44,5 m2, 2H+KT

Sales agent

Päivi Tulokas

Kompakti ja monikäyttöinen kaksio. Asunnossa on erillinen keittotila, joka vapauttaa olohuoneen oleskeluun ja ruokailuun – tilaan mahtuu mukavasti ruokailuryhmä, ja ikkunat tuovat valoa koko huoneeseen. Lasitettu parveke avautuu pohjoiseen tarjoten suojaisan paikan rentoutumiseen ilman suoraa auringonpaahdett

If you would like to receive more information about this apartment, please contact our salesperson.

Welcome to your future home!

Kompakti ja monikäyttöinen kaksio. Asunnossa on erillinen keittotila, joka vapauttaa olohuoneen oleskeluun ja ruokailuun – tilaan mahtuu mukavasti ruokailuryhmä, ja ikkunat tuovat valoa koko huoneeseen. Lasitettu parveke avautuu pohjoiseen tarjoten suojaisan paikan rentoutumiseen ilman suoraa auringonpaahdetta – täydellinen esimerkiksi aamukahville tai iltalukemiselle. Erillinen nurkkaus olohuoneen yhteydessä toimii loistavasti työpisteenä, lukusopena tai vaikka harrastenurkkauksena. Tämä tila tuo joustavuutta arkeen ja mahdollistaa kodin mukauttamisen omiin tarpeisiin.

If you would like to receive more information about this apartment, please contact our salesperson.

Apartment info

Housing costs

Prices are estimates for now.

  • Right-of-occupancy payment 28731,54€
    • — Original right-of-occupancy payment 28731,54€
  • Residence charge 872,82€
    • — Basic charge 772,2€
    • — Communal charge 100,62€
  • Security deposit 250€
  • Advance water fee/person/month 25€
  • Parking fees
    • — Autopaikkamaksu 1 25,00€
  • Sauna fee 25,00€

Apartment basic info

  • Housing type Apartment house
  • Energy class A2018
  • Apartment type 2H+KT
  • Living area 44.50 m²
  • Floor 5
  • Balcony 1
  • Own sauna No
  • Elevator Yes
  • Estimated completion date 27.11.2026
  • Condition Excellent
  • Pets Allowed
  • Broadband DNA Netti

Extra info

Smoking in our apartments

It has been a long-term policy of ours to make all of our new residential properties completely non-smoking. We are gradually making all of our apartments non-smoking; the agreements of new residents will forbid smoking in the apartments and on the balconies from 1 January 2021 onwards. The property may not be completely non-smoking due to other apartments that may be subject to old agreements with no smoking prohibitions.

Property Introduction

Espoonlahteen valmistuva Asuntosäätiön asumisoikeuskohde tarjoaa toimivia koteja kaikkiin elämänvaiheisiin urbaanissa ympäristössä.

Kahdeksankerroksisen asuintaloon tulee yhteensä 50 kotia, joiden huoneistokoot vaihtelevat yksiöistä viisihuoneisiin perheasuntoihin. Pohjaratkaisuissa on valinnanvaraa ja hyvin suunnitellut tilat tuovat toimivuutta pienimpiinkin koteihin. Yksiöissä on kätevä alkovi, ja useissa kaksioissakin vaatehuone, joka voi palvella myös työtilana. Muutamissa kodeissa parvekkeelta on suorakäynti omalle, viherpeukaloa inspiroivalle terassipihalle. Asuntojen materiaalivalintoihin pääsee vaikuttamaan vielä tammikuun aikana.

Myöhemmässä vaiheessa valmistuvaan pysäköintilaitokseen varataan 26 autopaikkaa kohteen asukkaille.

Why Asuntosäätiö?

We believe that a happy home and quality living are for everyone. We do not seek immediate profit or financial benefit. We use the assets gained from our operations to develop our real estate. Over 33,000 Finns have already chosen a home offered by Asuntosäätiö. Pets are also welcome in all our homes.

Property Introduction

Espoonlahteen valmistuva Asuntosäätiön asumisoikeuskohde tarjoaa toimivia koteja kaikkiin elämänvaiheisiin urbaanissa ympäristössä. Kahdeksankerroksisen asuintaloon tulee yhteensä 50 kotia, joiden huoneistokoot vaihtelevat yksiöistä viisihuoneisiin perheasuntoihin. Pohjaratkaisuissa on valinnanvaraa ja hyvin suunnitellut tilat tuovat toimivuutta pienimpiinkin koteihin. Yksiöissä on kätevä alkovi, ja useissa kaksioissakin vaatehuone, joka voi palvella myös työtilana. Muutamissa kodeissa parvekkeelta on suorakäynti omalle, viherpeukaloa inspiroivalle terassipihalle. Asuntojen materiaalivalintoihin pääsee vaikuttamaan vielä tammikuun aikana. Myöhemmässä vaiheessa valmistuvaan pysäköintilaitokseen varataan 26 autopaikkaa kohteen asukkaille. Vauhdilla kasvavaan Espoonlahteen nousee uusi Mårtensbron asuinalue valmiiden ja toimivien palvelujen lähelle. Kauppakeskus Lippulaivasta löytyy kattava valikoima ruokakauppoja, liikkeitä, ravintoloita sekä kirjasto, jossa on helppo piipahtaa muun asioinnin lomassa. Länsiväylä ja länsimetro tekevät liikkumisesta sujuvaa ja Helsingin keskustaan hurauttaa metrolla vain puolessa tunnissa. Espoonlahden urbaania ympäristöä kehystää upea merellinen luonto. Alueen lukuisat uimarannat kutsuvat pulahtamaan aaltoihin ympäri vuoden. Vehreiden lenkkipolkujen lisäksi arkiliikuntaa ja harrastusmahdollisuuksia tarjoavat ulkokuntosalit, skeittipuistot, tekonurmikentät ja jäähalli. Onnella on osoite.

Basic house info

  • Form of housing Right-of-occupancy
  • Average right-of-occupancy payment / jm² 613,92€
  • Elevators 1
  • House sauna 1
  • Drying room Yes
  • Apartment count 50

Apartments and floor plans: Kajuuttakuja 5, Kerrostalo

Add all the apartment types you want to your application. Your opportunity to get an apartment increases when we are able to offer you all of the apartment types that may be available later on in this property. You are automatically in queue for these apartment types.

Apply for apartment type

Kajuuttakuja 5 A 25

1h+kt

, Kerrostalo

32 m2

Floor 8/8

Kajuuttakuja 5 A 13

1h+kt

, Kerrostalo

32 m2

Floor 5/8

Kajuuttakuja 5 A 21

1h+kt

, Kerrostalo

32 m2

Floor 7/8

Will be available 27.11.2026

Kajuuttakuja 5 A 1

1h+kt

, Kerrostalo

32 m2

Floor 2/8

Kajuuttakuja 5 A 17

1h+kt

, Kerrostalo

32 m2

Floor 6/8

Kajuuttakuja 5 A 9

1h+kt

, Kerrostalo

32 m2

Floor 4/8

Will be available 27.11.2026

Kajuuttakuja 5 A 5

1h+kt

, Kerrostalo

32 m2

Floor 3/8

Apply for apartment type

Kajuuttakuja 5 A 4

2h+kt

, Kerrostalo

43 m2

Floor 2/8

Will be available 27.11.2026

Kajuuttakuja 5 A 28

2h+kt

, Kerrostalo

44.5 m2

Floor 8/8

Will be available 27.11.2026

Kajuuttakuja 5 A 20

2h+kt

, Kerrostalo

44.5 m2

Floor 6/8

Kajuuttakuja 5 A 24

2h+kt

, Kerrostalo

44.5 m2

Floor 7/8

Will be available 27.11.2026

Kajuuttakuja 5 A 8

2h+kt

, Kerrostalo

44.5 m2

Floor 3/8

Will be available 27.11.2026

Kajuuttakuja 5 A 12

2h+kt

, Kerrostalo

44.5 m2

Floor 4/8

Will be available 27.11.2026

Kajuuttakuja 5 A 16

2h+kt

, Kerrostalo

44.5 m2

Floor 5/8

Will be available 27.11.2026

Kajuuttakuja 5 B 47

2h+kt

, Kerrostalo

45.5 m2

Floor 6/8

Will be available 27.11.2026

Kajuuttakuja 5 B 39

2h+kt

, Kerrostalo

45.5 m2

Floor 4/8

Will be available 27.11.2026

Kajuuttakuja 5 B 43

2h+kt

, Kerrostalo

45.5 m2

Floor 5/8

Will be available 27.11.2026

Kajuuttakuja 5 B 31

2h+kt

, Kerrostalo

45.5 m2

Floor 2/8

Will be available 27.11.2026

Kajuuttakuja 5 B 35

2h+kt

, Kerrostalo

45.5 m2

Floor 3/8

Will be available 27.11.2026

Kajuuttakuja 5 B 34

2h+kt

, Kerrostalo

46.5 m2

Floor 3/8

Will be available 27.11.2026

Kajuuttakuja 5 B 38

2h+kt

, Kerrostalo

46.5 m2

Floor 4/8

Kajuuttakuja 5 B 30

2h+kt

, Kerrostalo

46.5 m2

Floor 2/8

Kajuuttakuja 5 B 46

2h+kt

, Kerrostalo

46.5 m2

Floor 6/8

Kajuuttakuja 5 B 42

2h+kt

, Kerrostalo

46.5 m2

Floor 5/8

Apply for apartment type

Kajuuttakuja 5 A 2

3h+kt

, Kerrostalo

59 m2

Floor 2/8

Will be available 27.11.2026

Kajuuttakuja 5 B 48

3h+kt

, Kerrostalo

61 m2

Floor 7/8

Will be available 27.11.2026

Kajuuttakuja 5 B 44

3h+kt

, Kerrostalo

61 m2

Floor 6/8

Will be available 27.11.2026

Kajuuttakuja 5 B 40

3h+kt

, Kerrostalo

61 m2

Floor 5/8

Will be available 27.11.2026

Kajuuttakuja 5 B 36

3h+kt

, Kerrostalo

61.5 m2

Floor 4/8

Kajuuttakuja 5 B 32

3h+kt

, Kerrostalo

61.5 m2

Floor 3/8

Will be available 27.11.2026

Kajuuttakuja 5 B 45

3h+kt

, Kerrostalo

64.5 m2

Floor 6/8

Will be available 27.11.2026

Kajuuttakuja 5 B 41

3h+kt

, Kerrostalo

64.5 m2

Floor 5/8

Will be available 27.11.2026

Kajuuttakuja 5 B 37

3h+kt

, Kerrostalo

64.5 m2

Floor 4/8

Kajuuttakuja 5 B 49

3h+kt

, Kerrostalo

64.5 m2

Floor 7/8

Kajuuttakuja 5 B 33

3h+kt

, Kerrostalo

64.5 m2

Floor 3/8

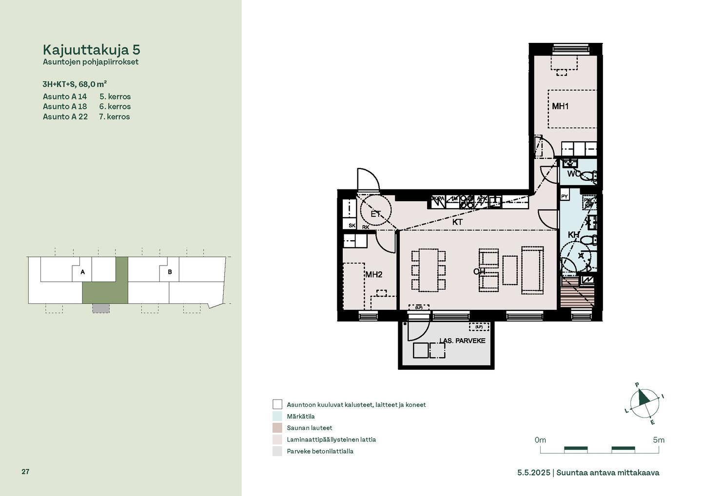
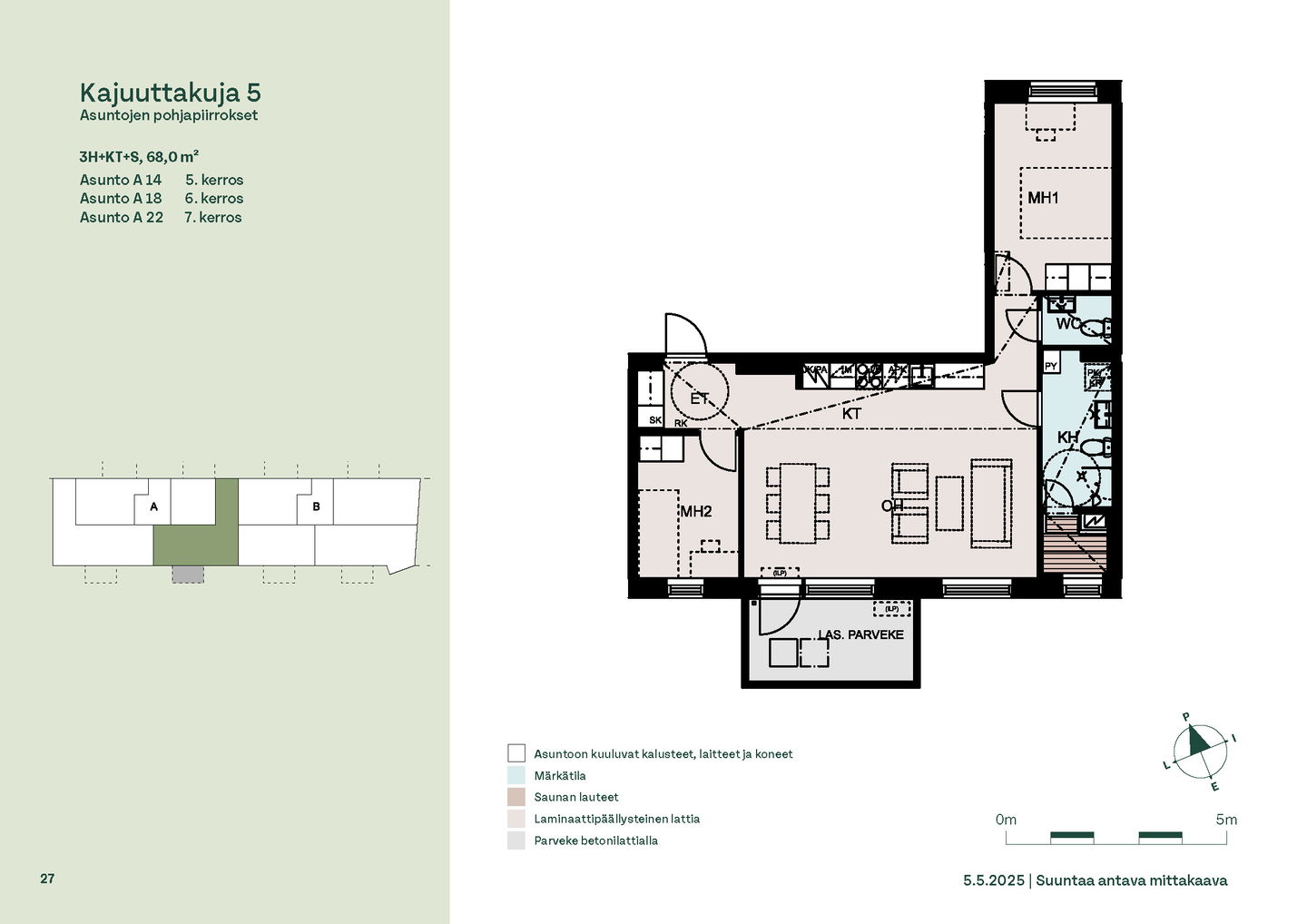
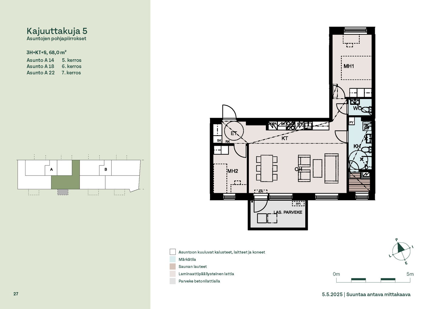
Kajuuttakuja 5 A 18

3h+kt+s

, Kerrostalo

68 m2

Floor 6/8

Kajuuttakuja 5 A 22

3h+kt+s

, Kerrostalo

68 m2

Floor 7/8

Kajuuttakuja 5 A 14

3h+kt+s

, Kerrostalo

68 m2

Floor 5/8

Kajuuttakuja 5 A 10

3h+kt+s

, Kerrostalo

68.5 m2

Floor 4/8

Will be available 27.11.2026

Kajuuttakuja 5 A 6

3h+kt+s

, Kerrostalo

68.5 m2

Floor 3/8

Apply for apartment type

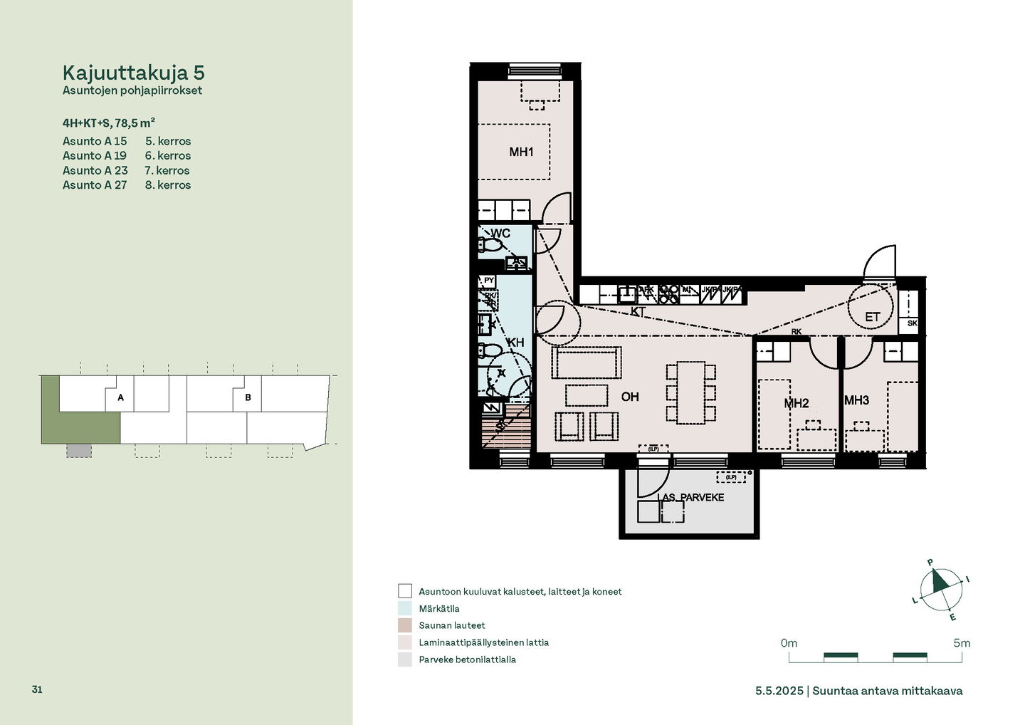
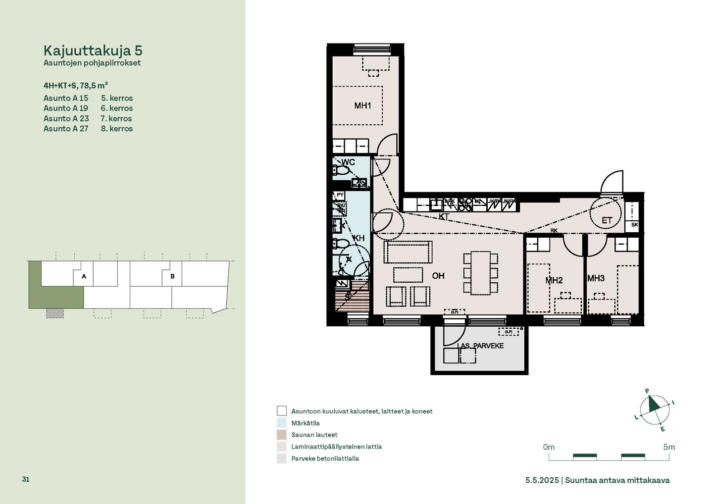
Kajuuttakuja 5 A 23

4h+kt+s

, Kerrostalo

78.5 m2

Floor 7/8

Will be available 27.11.2026

Kajuuttakuja 5 A 27

4h+kt+s

, Kerrostalo

78.5 m2

Floor 8/8

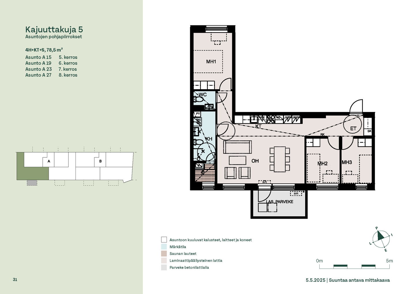
Kajuuttakuja 5 A 15

4h+kt+s

, Kerrostalo

78.5 m2

Floor 5/8

Kajuuttakuja 5 A 19

4h+kt+s

, Kerrostalo

78.5 m2

Floor 6/8

Will be available 27.11.2026

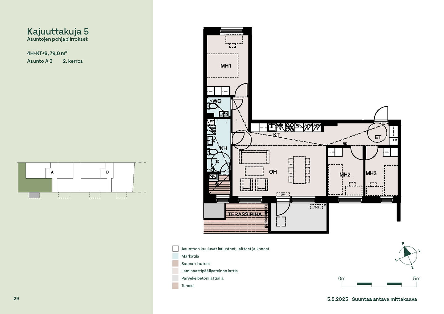
Kajuuttakuja 5 A 3

4h+kt+s

, Kerrostalo

79 m2

Floor 2/8

Will be available 27.11.2026

Kajuuttakuja 5 A 11

4h+kt+s

, Kerrostalo

79 m2

Floor 4/8

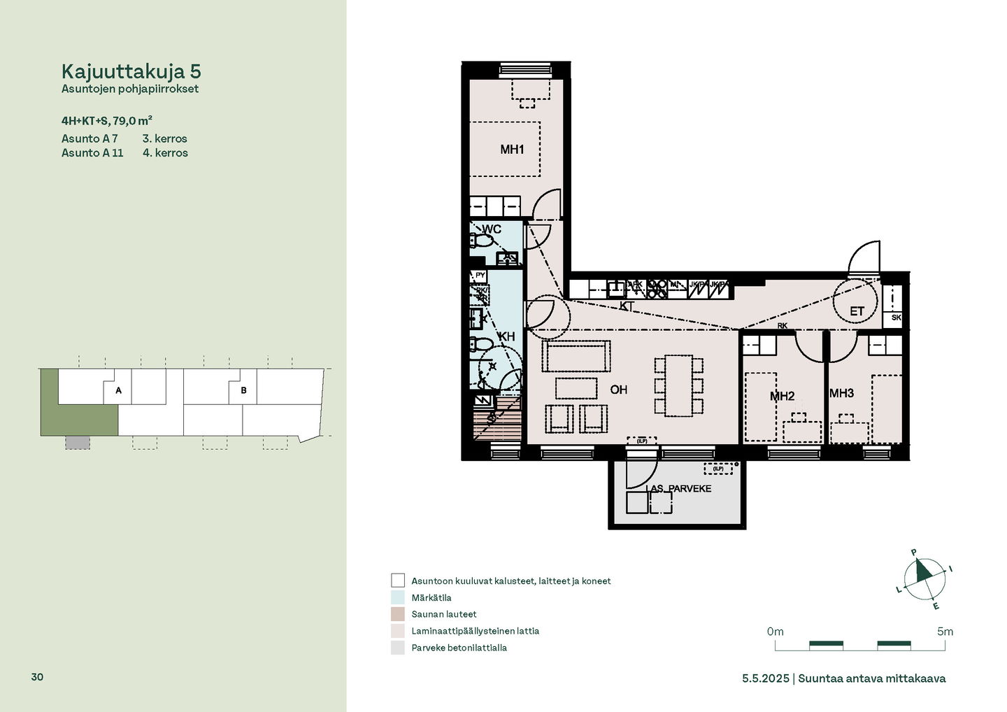
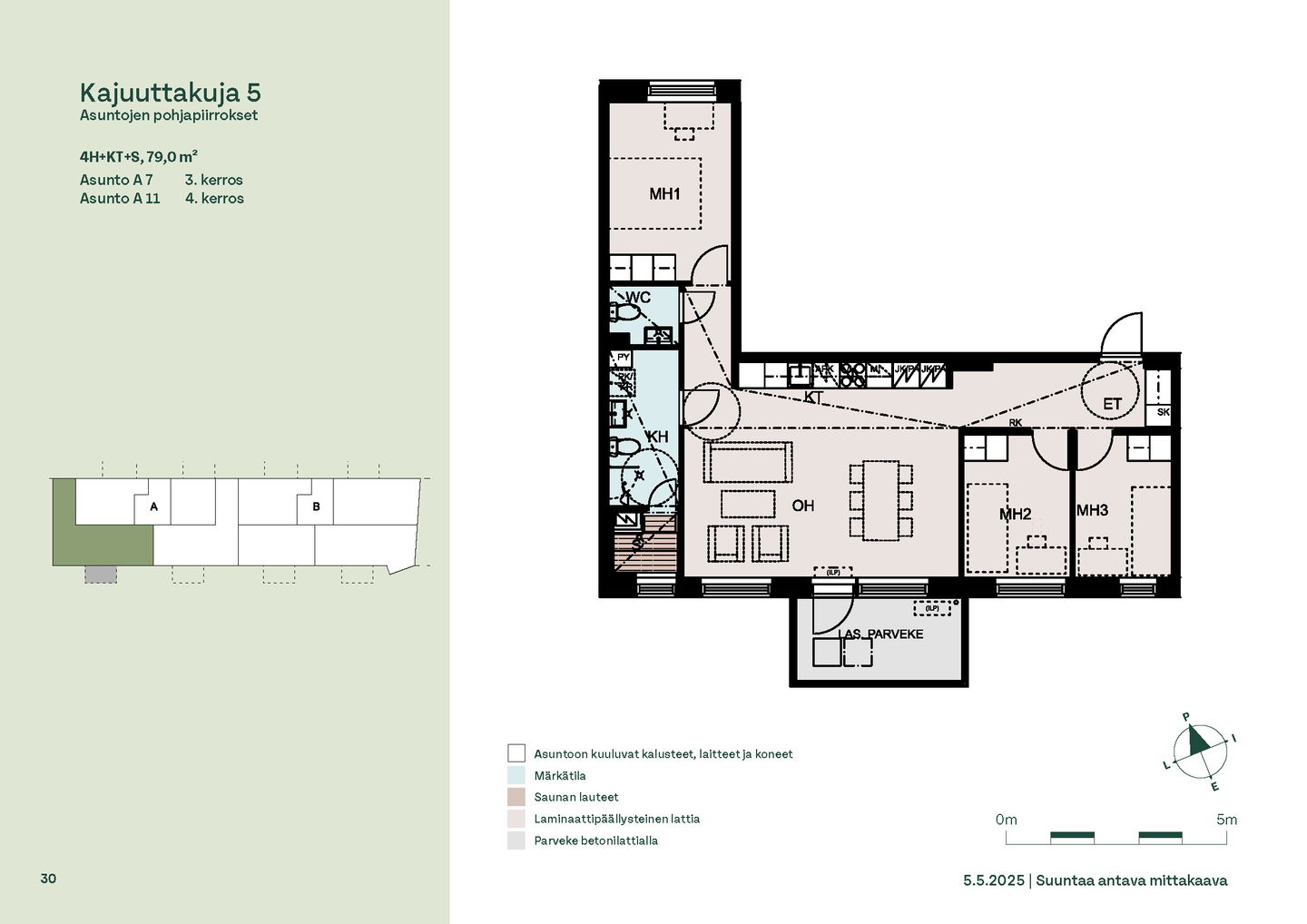
Kajuuttakuja 5 A 7

4h+kt+s

, Kerrostalo

79 m2

Floor 3/8

Will be available 27.11.2026

Kajuuttakuja 5 B 29

4h+kt+s

, Kerrostalo

79.5 m2

Floor 2/8

Will be available 27.11.2026

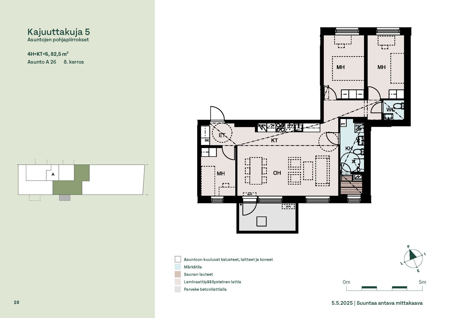
Kajuuttakuja 5 A 26

4h+kt+s

, Kerrostalo

82.5 m2

Floor 8/8

Apply for apartment type

Kajuuttakuja 5 B 50

5h+kt+s

, Kerrostalo

92.5 m2

Floor 7/8