Siirry sisältöön

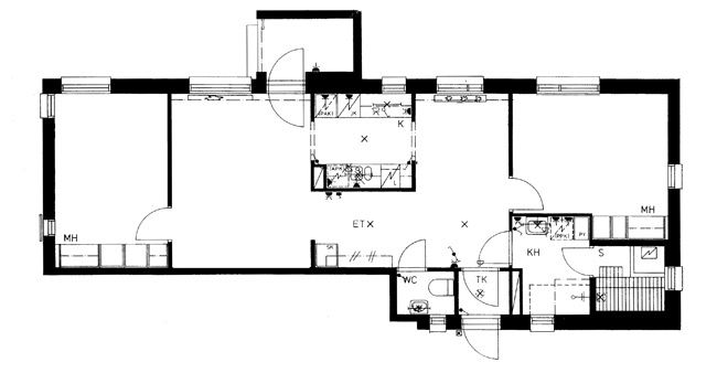
Snellmanintie 9 A 8, Oulu, MÄNTYLÄ

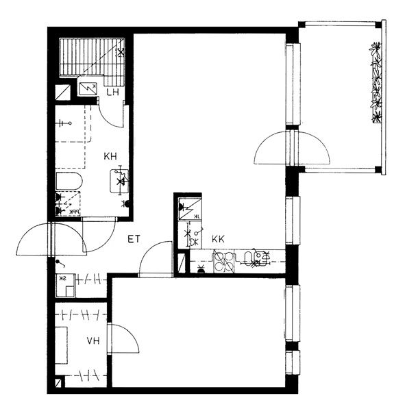
64 m2, 2H+K+S

Asuntomyyjä

Emmi Mannonen

Ylimmän, 3. kerroksen tilava kaksio Metsäisellä Mäntylän alueella. Oma sauna ja lasitettu parveke lisäävät asumismukavuutta. Vesimaksut sisältyvät vastikkeeseen. Talossa ei ole hissiä.

Jos haluat saada lisätietoja tästä asunnosta, otathan yhteyttä myyjäämme.

Tervetuloa tulevaisuuden kotiisi!

Ylimmän, 3. kerroksen tilava kaksio Metsäisellä Mäntylän alueella. Oma sauna ja lasitettu parveke lisäävät asumismukavuutta. Vesimaksut sisältyvät vastikkeeseen. Talossa ei ole hissiä.

Jos haluat saada lisätietoja tästä asunnosta, otathan yhteyttä myyjäämme.

Asunnon tiedot

Asuinkustannukset

  • Luovutushinta 12227,04€
    • — Alkuperäinen asumisoikeusmaksu 6459,93€
    • — Indeksitarkistus 5767,11€
  • Käyttövastike 700,27€
    • — Perusvastike 517,9€
    • — Hoitovastike 182,37€
  • Vakuusmaksu 250€
  • Vesimaksu Sisältyy vastikkeeseen
  • Autopaikkamaksut
    • — Autopaikkamaksu 1 9,00€

Perustiedot asunnosta

  • Talotyyppi Kerrostalo
  • Energialuokka E
  • Huoneistotyyppi 2H+K+S
  • Pinta-ala 64.00 m²
  • Kerros 3
  • Parveke 1
  • Oma sauna Kyllä
  • Erillinen wc Kyllä
  • Hissi Ei
  • Vapautuu Heti vapaa
  • Kunto Hyvä
  • Lemmikit Sallittu
  • Laajakaista DNA Welho

Lisätietoja

Tupakointi asunnoissamme

Kaikki uudet asuinkiinteistömme ovat olleet jo pitkään täysin savuttomia heti valmistumisestaan lähtien. Muutumme vähitellen savuttomiksi kaikkien asuntojemme osalta: uusien asukkaiden sopimukset ovat kieltäneet tupakoinnin huoneistoissa ja parvekkeilla 1.1.2021 alkaen. Kiinteistö ei ole välttämättä savuton muiden huoneistojen osalta, koska niissä voi olla vanhoja sopimuksia, joissa ei ole tupakointikieltoa.

Tehdyt muutostyöt

2004 Sälekaihdin 2004 Komerolisäys eteisessä 2008 parvekelasitus

Kohteen esittely

Metsäisellä Mäntylän alueella sijaitseva kohde, noin kolme kilometriä Oulun keskustasta etelään. Lähellä on kauppapalvelut ja hyvät ulkoilumaastot. Täältä kuljet helposti myös moottoritielle. Pihassa on leikkipaikka lapsille.

Miksi Asuntosäätiö?

Me uskomme, että onnellinen koti ja laadukas asuminen kuuluvat kaikille. Emme tavoittele voittoa, vaan käytämme kaikki vastikkeista ja vuokrista saadut tulot toimintamme kehittämiseen. Jo yli 33 000 suomalaista on valinnut Asuntosäätiön tarjoaman kodin. Tiesithän, että myös lemmikit ovat tervetulleita kaikkiin koteihimme!

Kohteen esittely

Metsäisellä Mäntylän alueella sijaitseva kohde, noin kolme kilometriä Oulun keskustasta etelään. Lähellä on kauppapalvelut ja hyvät ulkoilumaastot. Täältä kuljet helposti myös moottoritielle. Pihassa on leikkipaikka lapsille. Kohde koostuu 3- kerroksisesta asuinkerrostalosta ja kahdesta 2-kerroksisesta pienkerrostalosta.

Rakennuksen tiedot

  • Asumismuoto Asokoti
  • Keskimääräinen asumisoikeusmaksu / jm² 188,59€
  • Hissit Ei
  • Talosauna Ei
  • Kuivaushuone Kyllä
  • Asuntoja 24

Huoneistot ja pohjakuvat: Snellmanintie 9, Pienkerrostalo, Piharakennus, Kerrostalo

Lisää hakemukselle kaikki haluamasi asuntotyypit. Mahdollisuutesi asunnon saamiseksi paranevat, kun voimme tarjota sinulle kaikkia valitsemasi asuntotyypin asuntoja, jotka mahdollisesti vapautuvat myöhemmin tästä kohteesta. Olet automaattisesti näiden asuntotyyppien hakuprosessissa.

Hae asuntotyyppiä

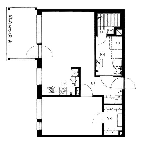
Snellmanintie 9 C 20

2h+k+s

, Pienkerrostalo

63.5 m2

Kerros 2/2

Snellmanintie 9 C 18

2h+k+s

, Pienkerrostalo

63.5 m2

Kerros 1/2

Snellmanintie 9 D 24

2h+k+s

, Pienkerrostalo

63.5 m2

Kerros 2/2

Snellmanintie 9 D 22

2h+k+s

, Pienkerrostalo

63.5 m2

Kerros 1/2

Snellmanintie 9 A 3

2h+k+s

, Kerrostalo

64 m2

Kerros 2/3

Snellmanintie 9 B 14

2h+k+s

, Kerrostalo

64 m2

Kerros 3/3

Snellmanintie 9 A 5

2h+k+s

, Kerrostalo

64 m2

Kerros 2/3

Snellmanintie 9 A 8

2h+k+s

, Kerrostalo

64 m2

Kerros 3/3

Snellmanintie 9 B 11

2h+k+s

, Kerrostalo

64 m2

Kerros 2/3

Snellmanintie 9 B 13

2h+k+s

, Kerrostalo

64 m2

Kerros 2/3

Snellmanintie 9 B 16

2h+k+s

, Kerrostalo

64 m2

Kerros 3/3

Snellmanintie 9 A 6

2h+k+s

, Kerrostalo

64 m2

Kerros 3/3

Snellmanintie 9 B 12

2h+kk+s

, Kerrostalo

49 m2

Kerros 2/3

Snellmanintie 9 A 4

2h+kk+s

, Kerrostalo

49 m2

Kerros 2/3

Snellmanintie 9 A 7

2h+kk+s

, Kerrostalo

49 m2

Kerros 3/3

Snellmanintie 9 B 15

2h+kk+s

, Kerrostalo

49 m2

Kerros 3/3

Hae asuntotyyppiä

Snellmanintie 9 A 2

3h+k+s

, Kerrostalo

76 m2

Kerros 1/3

Snellmanintie 9 B 9

3h+k+s

, Kerrostalo

76 m2

Kerros 1/3

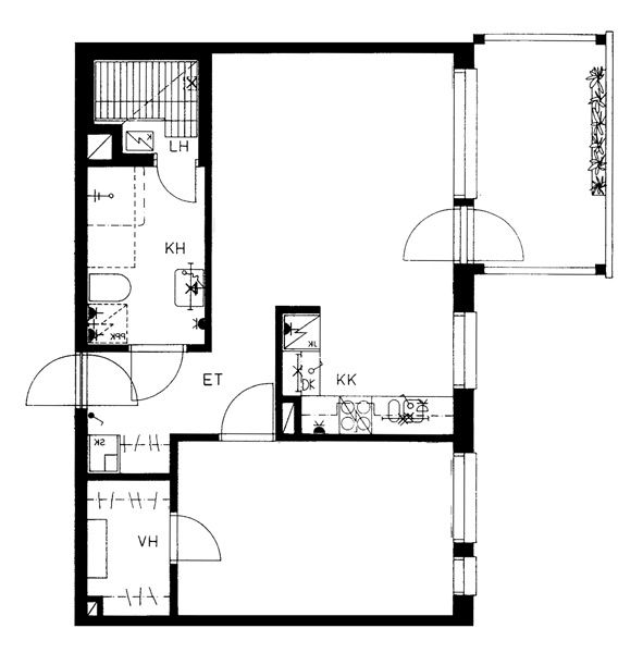
Snellmanintie 9 C 17

3h+k+s

, Pienkerrostalo

77.5 m2

Kerros 1/2

Snellmanintie 9 C 19

3h+k+s

, Pienkerrostalo

77.5 m2

Kerros 2/2

Snellmanintie 9 D 23

3h+k+s

, Pienkerrostalo

77.5 m2

Kerros 2/2

Snellmanintie 9 D 21

3h+k+s

, Pienkerrostalo

77.5 m2

Kerros 1/2

Hae asuntotyyppiä

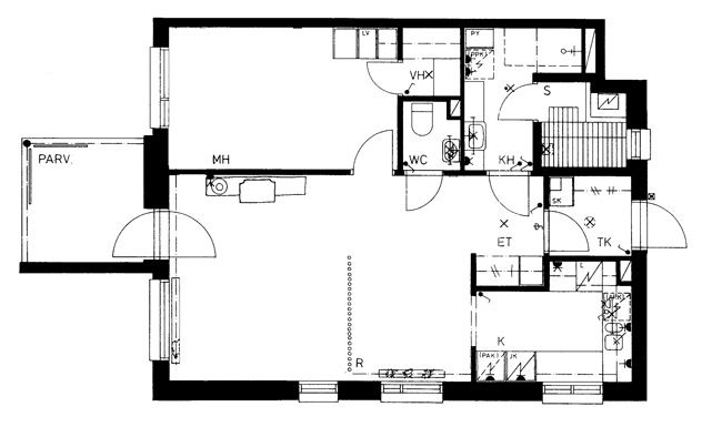
Snellmanintie 9 B 10

4h+k+s

, Kerrostalo

83 m2

Kerros 1/3

Snellmanintie 9 A 1

4h+k+s

, Kerrostalo

83 m2

Kerros 1/3