Kohteen esittely
Lapsiperheiden suosimalla alueella, meren rannan läheisyydessä Takkaniemessä sijaitseva rivitalokohde. Kaikissa asunnoissa on oma sauna.
Alueella on koulu, kirjasto, liikuntahalli, jäähalli ja ruokakauppa. Merenranta on vieressä ja uimarannalle on muutaman sadan metrin matka.
Miksi Asuntosäätiö?
Me uskomme, että onnellinen koti ja laadukas asuminen kuuluvat kaikille. Emme tavoittele voittoa, vaan käytämme kaikki vastikkeista ja vuokrista saadut tulot toimintamme kehittämiseen. Jo yli 33 000 suomalaista on valinnut Asuntosäätiön tarjoaman kodin. Tiesithän, että myös lemmikit ovat tervetulleita kaikkiin koteihimme!
Rakennuksen tiedot
- Asumismuoto Asokoti
- Keskimääräinen asumisoikeusmaksu / jm² 316,06€
- Hissit Ei
- Talosauna Ei
- Asuntoja 23
- Asuinrakennuksia 5
- Käyttövastike / kk / jm² 9,67€
- Valmistumisvuosi 1997
- Energialuokka B
- Lämmitysmuoto Maalämpö
- Autopaikat 24
- Laajakaista Elisa
- Antennijärjestelmä Kaapeli
- KaapeliTV Elisa
- Kattomateriaali Tiili
- Runkomateriaali Puu
- Lemmikit Sallittu
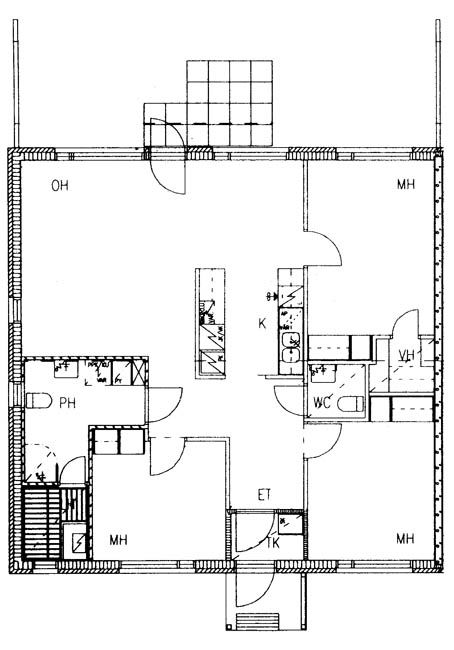
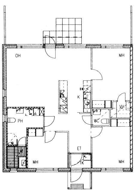
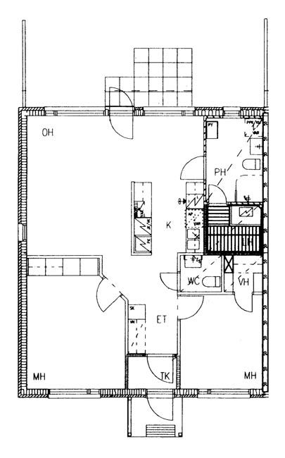
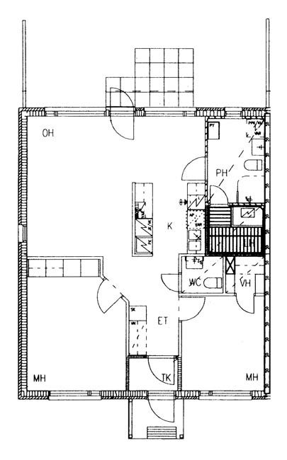
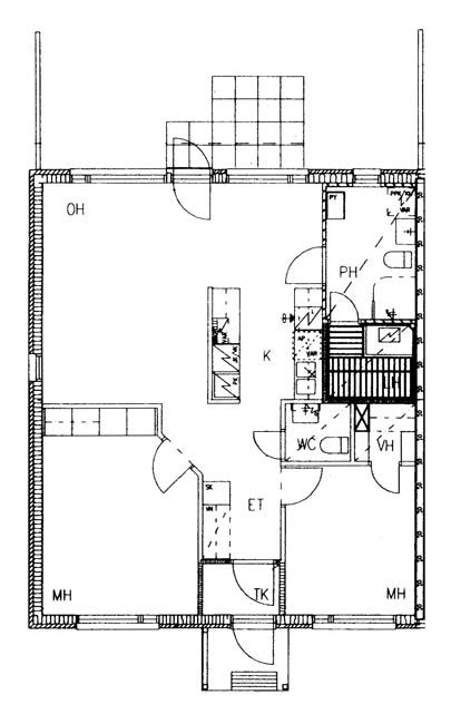
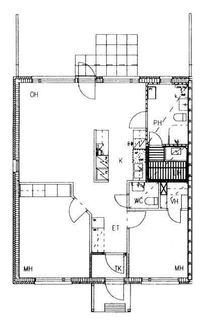
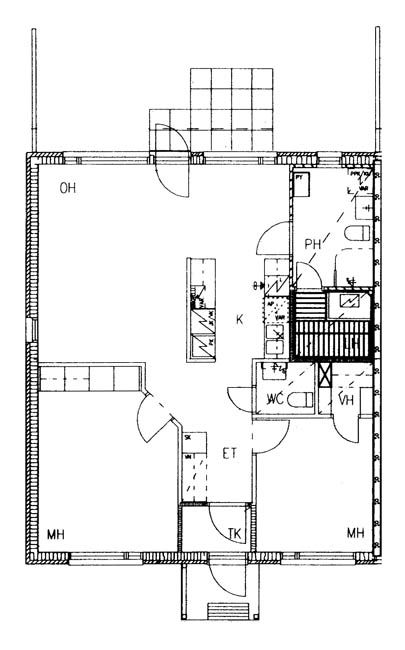
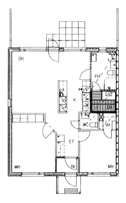
Huoneistot ja pohjakuvat: Rälssimiehentie 8-10, Rivitalo, Piharakennus
Lisää hakemukselle kaikki haluamasi asuntotyypit. Mahdollisuutesi asunnon saamiseksi paranevat, kun voimme tarjota sinulle kaikkia valitsemasi asuntotyypin asuntoja, jotka mahdollisesti vapautuvat myöhemmin tästä kohteesta. Olet automaattisesti näiden asuntotyyppien hakuprosessissa.
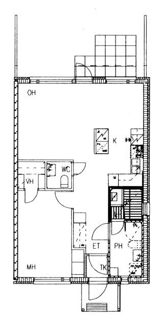
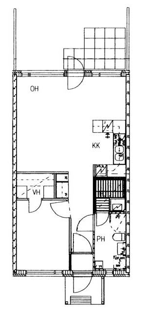
Rälssimiehentie 8-10 U
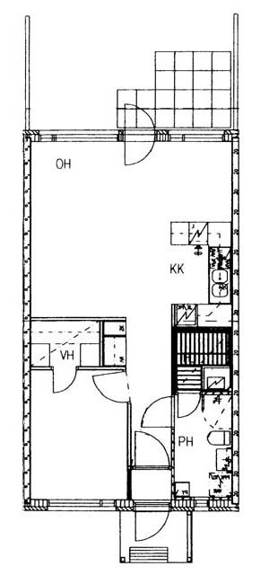
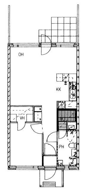
2h+k+s
, Rivitalo
50 m2
/1
Rälssimiehentie 8-10 U
2h+k+s
, Rivitalo
50 m2
Kerros /1
Rälssimiehentie 8-10 X
2h+k+s
, Rivitalo
50 m2
/1
Rälssimiehentie 8-10 X
2h+k+s
, Rivitalo
50 m2
Kerros /1
Rälssimiehentie 8-10 V
2h+k+s
, Rivitalo
50 m2
/1
Rälssimiehentie 8-10 V
2h+k+s
, Rivitalo
50 m2
Kerros /1
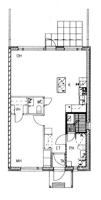
Rälssimiehentie 8-10 Q
2h+k+s
, Rivitalo
57.5 m2
/1
Rälssimiehentie 8-10 Q
2h+k+s
, Rivitalo
57.5 m2
Kerros /1
Rälssimiehentie 8-10 P
2h+k+s
, Rivitalo
57.5 m2
/1
Rälssimiehentie 8-10 P
2h+k+s
, Rivitalo
57.5 m2
Kerros /1
Rälssimiehentie 8-10 A
2h+k+s
, Rivitalo
57.5 m2
/1
Rälssimiehentie 8-10 A
2h+k+s
, Rivitalo
57.5 m2
Kerros /1
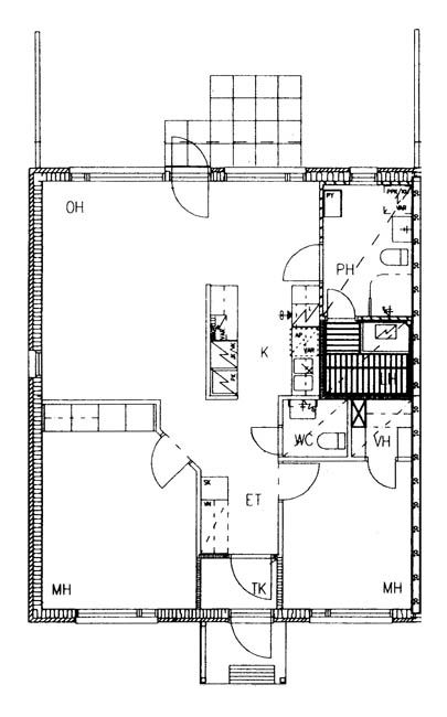
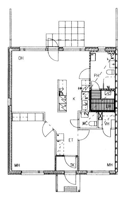
Rälssimiehentie 8-10 K
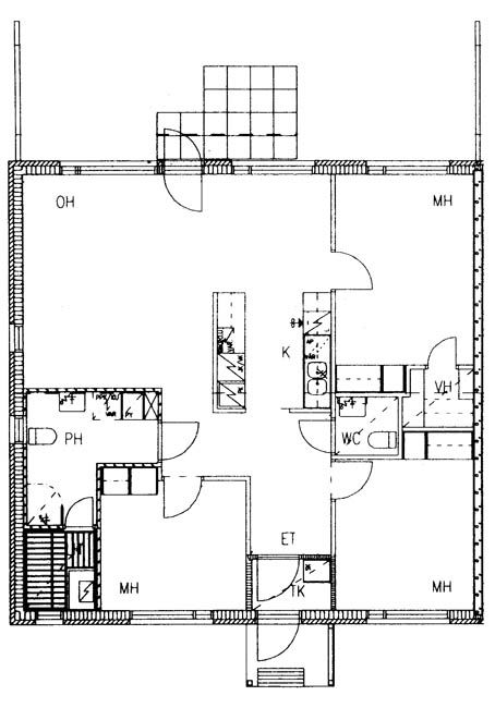
3h+k+s
, Rivitalo
76 m2
/1
Rälssimiehentie 8-10 K
3h+k+s
, Rivitalo
76 m2
Kerros /1
Rälssimiehentie 8-10 M
3h+k+s
, Rivitalo
76 m2
/1
Rälssimiehentie 8-10 M
3h+k+s
, Rivitalo
76 m2
Kerros /1
Rälssimiehentie 8-10 O
3h+k+s
, Rivitalo
76 m2
/1
Rälssimiehentie 8-10 O
3h+k+s
, Rivitalo
76 m2
Kerros /1
Rälssimiehentie 8-10 N
3h+k+s
, Rivitalo
76 m2
/1
Rälssimiehentie 8-10 N
3h+k+s
, Rivitalo
76 m2
Kerros /1
Rälssimiehentie 8-10 S
3h+k+s
, Rivitalo
76 m2
/1
Rälssimiehentie 8-10 S
3h+k+s
, Rivitalo
76 m2
Kerros /1
Rälssimiehentie 8-10 R
3h+k+s
, Rivitalo
76 m2
/1
Rälssimiehentie 8-10 R
3h+k+s
, Rivitalo
76 m2
Kerros /1
Rälssimiehentie 8-10 T
3h+k+s
, Rivitalo
76 m2
/1
Rälssimiehentie 8-10 T
3h+k+s
, Rivitalo
76 m2
Kerros /1
Rälssimiehentie 8-10 L
3h+k+s
, Rivitalo
76 m2
/1
Rälssimiehentie 8-10 L
3h+k+s
, Rivitalo
76 m2
Kerros /1
Rälssimiehentie 8-10 B
3h+k+s
, Rivitalo
76 m2
/1
Rälssimiehentie 8-10 B
3h+k+s
, Rivitalo
76 m2
Kerros /1
Rälssimiehentie 8-10 C
3h+k+s
, Rivitalo
76 m2
/1
Rälssimiehentie 8-10 C
3h+k+s
, Rivitalo
76 m2
Kerros /1
Rälssimiehentie 8-10 E
3h+k+s
, Rivitalo
76 m2
/1
Rälssimiehentie 8-10 E
3h+k+s
, Rivitalo
76 m2
Kerros /1
Rälssimiehentie 8-10 F
3h+k+s
, Rivitalo
76 m2
/1
Rälssimiehentie 8-10 F
3h+k+s
, Rivitalo
76 m2
Kerros /1
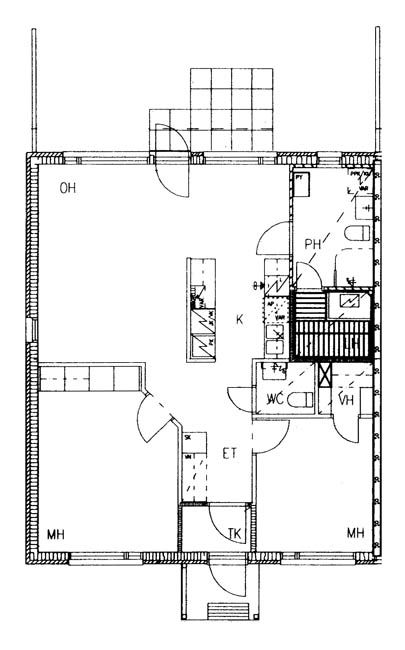
Rälssimiehentie 8-10 J
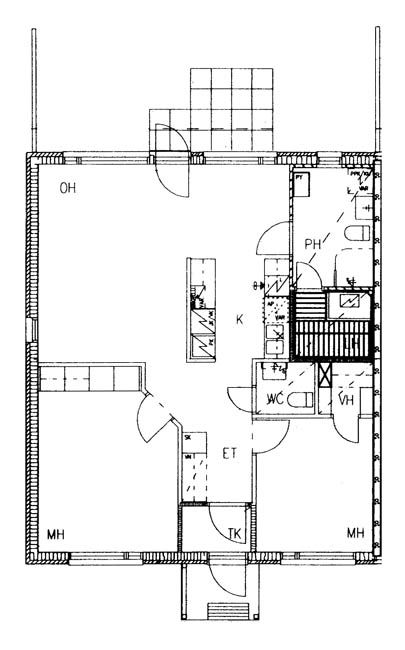
4h+k+s
, Rivitalo
91 m2
/1
Rälssimiehentie 8-10 J
4h+k+s
, Rivitalo
91 m2
Kerros /1
Rälssimiehentie 8-10 I
4h+k+s
, Rivitalo
91 m2
/1
Rälssimiehentie 8-10 I
4h+k+s
, Rivitalo
91 m2
Kerros /1
Rälssimiehentie 8-10 D
4h+k+s
, Rivitalo
91 m2
/1
Rälssimiehentie 8-10 D
4h+k+s
, Rivitalo
91 m2
Kerros /1
Rälssimiehentie 8-10 G
4h+k+s
, Rivitalo
91 m2
/1
Rälssimiehentie 8-10 G
4h+k+s
, Rivitalo
91 m2
Kerros /1
Rälssimiehentie 8-10 H
4h+k+s
, Rivitalo
91 m2
/1
Rälssimiehentie 8-10 H
4h+k+s
, Rivitalo
91 m2
Kerros /1