KAMPANJA: Nyt valikoiduissa asumisoikeusasunnoissa 2 kk vastike 0 € 1.4.-31.5.2026 aikana alkavissa sopimuksissa. Toimi pian >

Siirry sisältöön

Helsinki, HEIKINLAAKSO

Sienitie 47

Valitse asuntotyyppi ja lisää hakemukseesi

Kohteen esittely

Heikinlaaksossa sijaitseva paritaloyhtiö, perheasuntoja lapsiystävällisessä pihapiirissä. Rauhallinen alue, metsään rajoittuva tontti. Porttipuiston palvelut lähettyvillä. Kaukolämmitys.

Miksi Asuntosäätiö?

Me uskomme, että onnellinen koti ja laadukas asuminen kuuluvat kaikille. Emme tavoittele voittoa, vaan käytämme kaikki vastikkeista ja vuokrista saadut tulot toimintamme kehittämiseen. Jo yli 33 000 suomalaista on valinnut Asuntosäätiön tarjoaman kodin. Tiesithän, että myös lemmikit ovat tervetulleita kaikkiin koteihimme!

Rakennuksen tiedot

  • Asumismuoto Asokoti
  • Keskimääräinen asumisoikeusmaksu / jm² 387,8€
  • Hissit Ei
  • Talosauna Ei
  • Asuntoja 6
  • Asuinrakennuksia 3

Huoneistot ja pohjakuvat: Sienitie 47, Paritalo, Piharakennus

Lisää hakemukselle kaikki haluamasi asuntotyypit. Mahdollisuutesi asunnon saamiseksi paranevat, kun voimme tarjota sinulle kaikkia valitsemasi asuntotyypin asuntoja, jotka mahdollisesti vapautuvat myöhemmin tästä kohteesta. Olet automaattisesti näiden asuntotyyppien hakuprosessissa.

Hae asuntotyyppiä

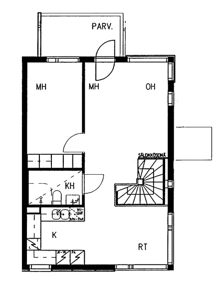
Sienitie 47 A 1

4h+k+s

, Paritalo

97 m2

Kerros 1-2/2

Sienitie 47 C 5

4h+k+s

, Paritalo

97 m2

Kerros 1-2/2

Sienitie 47 B 3

4h+k+s

, Paritalo

97 m2

Kerros 1-2/2

Hae asuntotyyppiä

Sienitie 47 A 2

5h+k+s

, Paritalo

113 m2

Kerros 1-2/2

Sienitie 47 C 6

5h+k+s

, Paritalo

113 m2

Kerros 1-2/2

Sienitie 47 B 4

5h+k+s

, Paritalo

113 m2

Kerros 1-2/2