Kohteen esittely
Paritalokohde luonnon lähellä. Kohde sijaitsee kauniilla metsäisellä ja kallioisella tontilla. Asunnot lämpiävät kaukolämmöllä. Kohteessa on omatoimiviherhoito.
Kävelymatka Siilitien metroasemalle. Lähellä ruokakauppa, paljon kodin sisustamiseen ja remontoimiseen liittyviä kauppoja ja urheilupaikkoja. Lisää palveluita löytyy Itiksestä ja kauppakeskus Hetrsistä.
Miksi Asuntosäätiö?
Me uskomme, että onnellinen koti ja laadukas asuminen kuuluvat kaikille. Emme tavoittele voittoa, vaan käytämme kaikki vastikkeista ja vuokrista saadut tulot toimintamme kehittämiseen. Jo yli 33 000 suomalaista on valinnut Asuntosäätiön tarjoaman kodin. Tiesithän, että myös lemmikit ovat tervetulleita kaikkiin koteihimme!
Rakennuksen tiedot
- Asumismuoto Asokoti
- Keskimääräinen asumisoikeusmaksu / jm² 306,19€
- Hissit Ei
- Talosauna Ei
- Asuntoja 16
- Asuinrakennuksia 8
- Käyttövastike / kk / jm² 17,26€
- Valmistumisvuosi 1997
- Energialuokka D
- Lämmitysmuoto Kauko
- Autopaikat 18
- Laajakaista DNA Netti
- Antennijärjestelmä Kaapeli
- KaapeliTV DNA
- Kattomateriaali Tiili
- Runkomateriaali Puu
- Lemmikit Sallittu
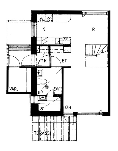
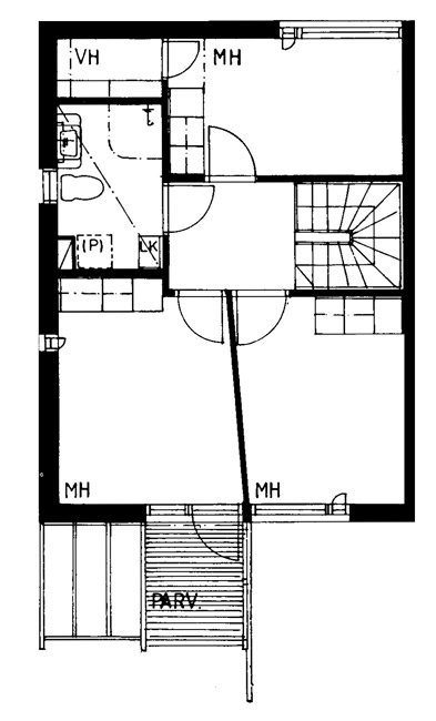
Huoneistot ja pohjakuvat: Sissosentie 11, Paritalo, Piharakennus
Lisää hakemukselle kaikki haluamasi asuntotyypit. Mahdollisuutesi asunnon saamiseksi paranevat, kun voimme tarjota sinulle kaikkia valitsemasi asuntotyypin asuntoja, jotka mahdollisesti vapautuvat myöhemmin tästä kohteesta. Olet automaattisesti näiden asuntotyyppien hakuprosessissa.
Sissosentie 11 A 1
2h+k+s
, Paritalo
60 m2
1/1
Sissosentie 11 A 1
2h+k+s
, Paritalo
60 m2
Kerros 1/1
Sissosentie 11 A 2
2h+k+s
, Paritalo
60 m2
1/1
Sissosentie 11 A 2
2h+k+s
, Paritalo
60 m2
Kerros 1/1
Sissosentie 11 B 4
3h+k+s
, Paritalo
79.5 m2
1-2/2
Sissosentie 11 B 4
3h+k+s
, Paritalo
79.5 m2
Kerros 1-2/2
Sissosentie 11 C 6
3h+k+s
, Paritalo
79.5 m2
1/2
Sissosentie 11 C 6
3h+k+s
, Paritalo
79.5 m2
Kerros 1/2
Sissosentie 11 B 3
4h+k+s
, Paritalo
79.5 m2
1-2/2
Sissosentie 11 B 3
4h+k+s
, Paritalo
79.5 m2
Kerros 1-2/2
Sissosentie 11 C 5
4h+k+s
, Paritalo
79.5 m2
1/2
Sissosentie 11 C 5
4h+k+s
, Paritalo
79.5 m2
Kerros 1/2
Sissosentie 11 D 7
4h+k+s
, Paritalo
86 m2
1/2
Sissosentie 11 D 7
4h+k+s
, Paritalo
86 m2
Kerros 1/2
Sissosentie 11 E 9
4h+k+s
, Paritalo
86 m2
1/2
Sissosentie 11 E 9
4h+k+s
, Paritalo
86 m2
Kerros 1/2
Sissosentie 11 F 11
4h+k+s
, Paritalo
86 m2
1/2
Sissosentie 11 F 11
4h+k+s
, Paritalo
86 m2
Kerros 1/2
Sissosentie 11 H 15
4h+k+s
, Paritalo
86 m2
1/2
Sissosentie 11 H 15
4h+k+s
, Paritalo
86 m2
Kerros 1/2
Sissosentie 11 G 13
4h+k+s
, Paritalo
86 m2
1/2
Sissosentie 11 G 13
4h+k+s
, Paritalo
86 m2
Kerros 1/2
Sissosentie 11 D 8
4h+k+s
, Paritalo
86.5 m2
1/2
Sissosentie 11 D 8
4h+k+s
, Paritalo
86.5 m2
Kerros 1/2
Sissosentie 11 E 10
4h+k+s
, Paritalo
86.5 m2
1/2
Sissosentie 11 E 10
4h+k+s
, Paritalo
86.5 m2
Kerros 1/2
Sissosentie 11 H 16
5h+k+s
, Paritalo
99.5 m2
1/2
Sissosentie 11 H 16
5h+k+s
, Paritalo
99.5 m2
Kerros 1/2
Sissosentie 11 G 14
5h+k+s
, Paritalo
99.5 m2
1/2
Sissosentie 11 G 14
5h+k+s
, Paritalo
99.5 m2
Kerros 1/2
Sissosentie 11 F 12
5h+k+s
, Paritalo
99.5 m2
1/2
Sissosentie 11 F 12
5h+k+s
, Paritalo
99.5 m2
Kerros 1/2