Kohteen esittely
Kodikas paritalokohde vehreällä pientalovaltaisella alueella. Talojen sijoittelu ja puut sekä istutukset tuovat yksityisyyttä piha-alueille.
Lähellä on päiväkoti, koulut lukioon saakka, ruokakauppa, puistoja ja paljon mahdollisuuksia urheiluharrastuksille. Liikkuminen sujuu niin kävellen, omalla autolla kuin julkisillakin. Puistolan juna-asemalle 1,5 km.
Miksi Asuntosäätiö?
Me uskomme, että onnellinen koti ja laadukas asuminen kuuluvat kaikille. Emme tavoittele voittoa, vaan käytämme kaikki vastikkeista ja vuokrista saadut tulot toimintamme kehittämiseen. Jo yli 33 000 suomalaista on valinnut Asuntosäätiön tarjoaman kodin. Tiesithän, että myös lemmikit ovat tervetulleita kaikkiin koteihimme!
Rakennuksen tiedot
- Asumismuoto Asokoti
- Keskimääräinen asumisoikeusmaksu / jm² 421,61€
- Hissit Ei
- Talosauna Ei
- Asuntoja 9
- Asuinrakennuksia 6
- Käyttövastike / kk / jm² 18,23€
- Valmistumisvuosi 1997
- Energialuokka C, D
- Lämmitysmuoto Kauko
- Autopaikat 9
- Laajakaista DNA 4G
- Antennijärjestelmä Harava
- Kattomateriaali Tiili
- Runkomateriaali Betoni
- Lemmikit Sallittu
Huoneistot ja pohjakuvat: Rintamasotilaantie 2, Piharakennus, Omakotitalo, Paritalo
Lisää hakemukselle kaikki haluamasi asuntotyypit. Mahdollisuutesi asunnon saamiseksi paranevat, kun voimme tarjota sinulle kaikkia valitsemasi asuntotyypin asuntoja, jotka mahdollisesti vapautuvat myöhemmin tästä kohteesta. Olet automaattisesti näiden asuntotyyppien hakuprosessissa.
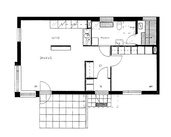
Rintamasotilaantie 2 A 3
2h+k+s
, Omakotitalo
54.5 m2
1/1
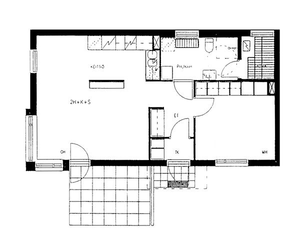
Rintamasotilaantie 2 A 3
2h+k+s
, Omakotitalo
54.5 m2
Kerros 1/1
Rintamasotilaantie 2 B 3
2h+k+s
, Omakotitalo
54.5 m2
1/1
Rintamasotilaantie 2 B 3
2h+k+s
, Omakotitalo
54.5 m2
Kerros 1/1
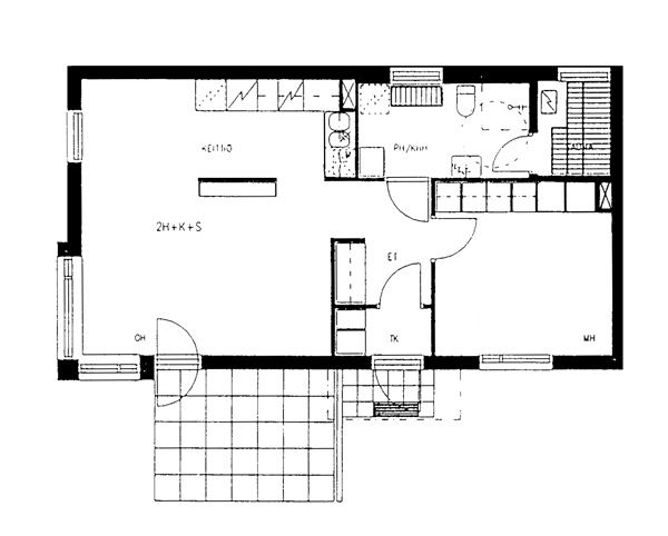
Rintamasotilaantie 2 C 3
2h+k+s
, Omakotitalo
55 m2
1/1
Rintamasotilaantie 2 C 3
2h+k+s
, Omakotitalo
55 m2
Kerros 1/1
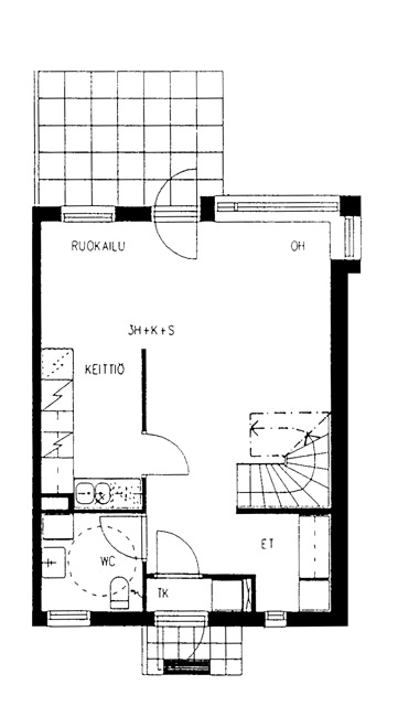
Rintamasotilaantie 2 B 1
3h+k+s
, Paritalo
78 m2
1-2/2
Rintamasotilaantie 2 B 1
3h+k+s
, Paritalo
78 m2
Kerros 1-2/2
Rintamasotilaantie 2 B 2
3h+k+s
, Paritalo
78 m2
1-2/2
Rintamasotilaantie 2 B 2
3h+k+s
, Paritalo
78 m2
Kerros 1-2/2
Rintamasotilaantie 2 A 1
3h+k+s
, Paritalo
78 m2
1-2/2
Rintamasotilaantie 2 A 1
3h+k+s
, Paritalo
78 m2
Kerros 1-2/2
Rintamasotilaantie 2 A 2
3h+k+s
, Paritalo
78 m2
1-2/2
Rintamasotilaantie 2 A 2
3h+k+s
, Paritalo
78 m2
Kerros 1-2/2
Rintamasotilaantie 2 C 2
3h+k+s
, Paritalo
78 m2
1-2/2
Rintamasotilaantie 2 C 2
3h+k+s
, Paritalo
78 m2
Kerros 1-2/2
Rintamasotilaantie 2 C 1
3h+k+s
, Paritalo
78 m2
1-2/2
Rintamasotilaantie 2 C 1
3h+k+s
, Paritalo
78 m2
Kerros 1-2/2