Kohteen esittely
Suutarilan alueella sijaitseva viihtyisä erillistaloyhtiö. Isommat asunnot kahdessa tasossa, kaksiot yhdessä tasossa. Kaukolämmitys. Kohteessa on omatoimiviherhoito ja omatoimihuolto.
Lähellä ruokakauppa, Keravanjoen ulkoilureitit, Heurekan tiedepuisto, Tikkurilan rantapuisto sekä leikkipaikkoja ja koirapuisto. Lisää palveluita löytyy Tikkurilasta. Omalla autolla olet hetkessä kehä kolmosella. Lähin juna-asema on Puistolassa, mutta myös pitkän matkan junien pysähdyspaikka Tikkurila lähellä.
Miksi Asuntosäätiö?
Me uskomme, että onnellinen koti ja laadukas asuminen kuuluvat kaikille. Emme tavoittele voittoa, vaan käytämme kaikki vastikkeista ja vuokrista saadut tulot toimintamme kehittämiseen. Jo yli 33 000 suomalaista on valinnut Asuntosäätiön tarjoaman kodin. Tiesithän, että myös lemmikit ovat tervetulleita kaikkiin koteihimme!
Rakennuksen tiedot
- Asumismuoto Asokoti
- Keskimääräinen asumisoikeusmaksu / jm² 323,88€
- Hissit Ei
- Talosauna Ei
- Asuntoja 6
- Asuinrakennuksia 3
- Käyttövastike / kk / jm² 15,58€
- Valmistumisvuosi 1995
- Peruskorjattu 2025
- Energialuokka C
- Lämmitysmuoto Kauko
- Autopaikat 6
- Laajakaista DNA 4G
- Antennijärjestelmä Harava
- Kattomateriaali Pelti
- Lemmikit Sallittu
Huoneistot ja pohjakuvat: Suvanne 2 ja 4, Paritalo, Piharakennus
Lisää hakemukselle kaikki haluamasi asuntotyypit. Mahdollisuutesi asunnon saamiseksi paranevat, kun voimme tarjota sinulle kaikkia valitsemasi asuntotyypin asuntoja, jotka mahdollisesti vapautuvat myöhemmin tästä kohteesta. Olet automaattisesti näiden asuntotyyppien hakuprosessissa.
Suvanne 2 ja 4 C 3
2h+kk+s
, Paritalo
51 m2
1/1
Suvanne 2 ja 4 C 3
2h+kk+s
, Paritalo
51 m2
Kerros 1/1
Suvanne 2 ja 4 D 4
2h+kk+s
, Paritalo
51 m2
1/1
Suvanne 2 ja 4 D 4
2h+kk+s
, Paritalo
51 m2
Kerros 1/1
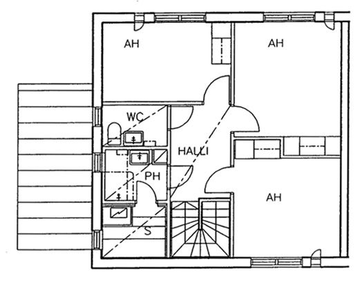
Suvanne 2 ja 4 A 1
4h+k+s
, Paritalo
94 m2
1-2/2
Suvanne 2 ja 4 A 1
4h+k+s
, Paritalo
94 m2
Kerros 1-2/2
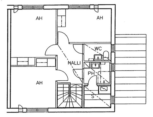
Suvanne 2 ja 4 B 2
4h+k+s
, Paritalo
94 m2
1-2/2
Suvanne 2 ja 4 B 2
4h+k+s
, Paritalo
94 m2
Kerros 1-2/2
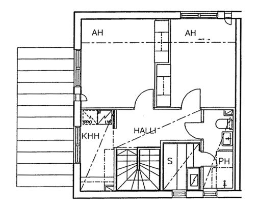
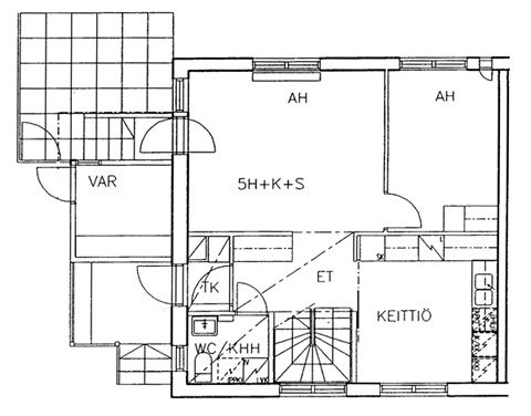
Suvanne 2 ja 4 E 5
5h+k+s
, Paritalo
107.5 m2
1-2/2
Suvanne 2 ja 4 E 5
5h+k+s
, Paritalo
107.5 m2
Kerros 1-2/2
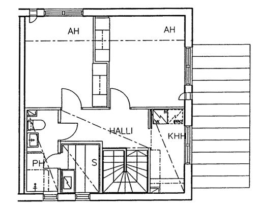
Suvanne 2 ja 4 F 6
5h+k+s
, Paritalo
107.5 m2
1-2/2
Suvanne 2 ja 4 F 6
5h+k+s
, Paritalo
107.5 m2
Kerros 1-2/2