Kohteen esittely
Viihtyisä kerrostalokohde vehreässä Puistolassa pientaloalueen vieressä. Useimmat isot asunnot ovat käteviä läpitalon huoneistoja, joissa on tilava olohuone, iso avokeittiö, reilun kokoiset makuuhuoneet, oma ikkunallinen sauna, kylpyhuoneesta erillinen wc-tila ja kodinhoitohuone sekä parveke. Kohteessa on talopesula ja kuivaushuone. Runsaasti autopaikkoja. Kohteessa on omatoimiviherhoito.
Alueella on päiväkoteja, koulu ja medialukio. Palvelut lähellä, mm. apteekki, kirjasto, terveysasema ja ruokakauppa. Puistojen lisäksi ulkoilemaan kutsuvat esimerkiksi urheilukentät ja ulkokuntosali. Bussipysäkki talon edessä, juna-asemalle parinsadan metrin kävelymatka. Tikkurilan palvelut muutaman junapysäkin päässä.
Miksi Asuntosäätiö?
Me uskomme, että onnellinen koti ja laadukas asuminen kuuluvat kaikille. Emme tavoittele voittoa, vaan käytämme kaikki vastikkeista ja vuokrista saadut tulot toimintamme kehittämiseen. Jo yli 33 000 suomalaista on valinnut Asuntosäätiön tarjoaman kodin. Tiesithän, että myös lemmikit ovat tervetulleita kaikkiin koteihimme!
Rakennuksen tiedot
- Asumismuoto Asokoti
- Keskimääräinen asumisoikeusmaksu / jm² 473,7€
- Hissit 3
- Talosauna Ei
- Pyykkitupa Kyllä
- Kuivaushuone Kyllä
- Asuntoja 66
- Asuinrakennuksia 1
- Käyttövastike / kk / jm² 15,22€
- Valmistumisvuosi 2001
- Porrashuoneet 3
- Energialuokka E
- Lämmitysmuoto Kauko
- Autopaikat 55
- Laajakaista DNA Welho
- Antennijärjestelmä Kaapeli
- KaapeliTV DNA
- Kattomateriaali Huopa
- Runkomateriaali Betoni
- Lemmikit Sallittu
Huoneistot ja pohjakuvat: Tapulikaupungintie 15, Piharakennus, Kerrostalo
Lisää hakemukselle kaikki haluamasi asuntotyypit. Mahdollisuutesi asunnon saamiseksi paranevat, kun voimme tarjota sinulle kaikkia valitsemasi asuntotyypin asuntoja, jotka mahdollisesti vapautuvat myöhemmin tästä kohteesta. Olet automaattisesti näiden asuntotyyppien hakuprosessissa.
Tapulikaupungintie 15 A 20
1h+k
, Kerrostalo
35 m2
6/7
Tapulikaupungintie 15 A 20
1h+k
, Kerrostalo
35 m2
Kerros 6/7
Tapulikaupungintie 15 B 41
1h+tk+s
, Kerrostalo
35 m2
6/7
Tapulikaupungintie 15 B 41
1h+tk+s
, Kerrostalo
35 m2
Kerros 6/7
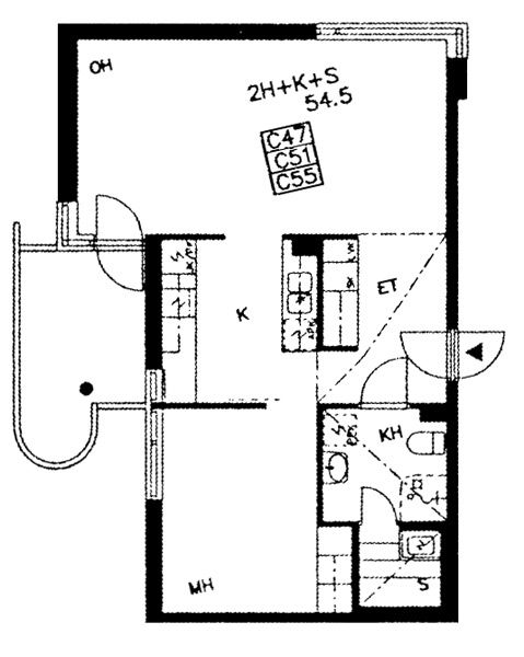
Tapulikaupungintie 15 C 55
2h+k+s
, Kerrostalo
54.5 m2
4/7
Tapulikaupungintie 15 C 55
2h+k+s
, Kerrostalo
54.5 m2
Kerros 4/7
Tapulikaupungintie 15 C 59
2h+k+s
, Kerrostalo
54.5 m2
5/7
Tapulikaupungintie 15 C 59
2h+k+s
, Kerrostalo
54.5 m2
Kerros 5/7
Tapulikaupungintie 15 C 51
2h+k+s
, Kerrostalo
54.5 m2
3/7
Tapulikaupungintie 15 C 51
2h+k+s
, Kerrostalo
54.5 m2
Kerros 3/7
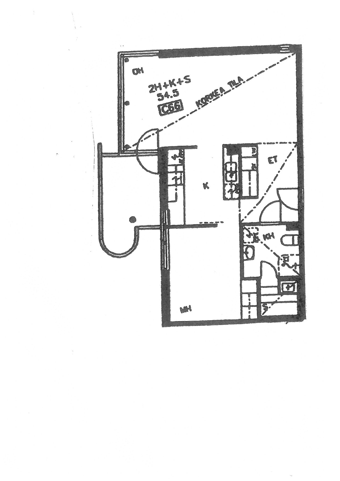
Tapulikaupungintie 15 C 66
2h+k+s
, Kerrostalo
54.5 m2
7/7
Tapulikaupungintie 15 C 66
2h+k+s
, Kerrostalo
54.5 m2
Kerros 7/7
Tapulikaupungintie 15 C 47
2h+k+s
, Kerrostalo
54.5 m2
2/7
Tapulikaupungintie 15 C 47
2h+k+s
, Kerrostalo
54.5 m2
Kerros 2/7
Tapulikaupungintie 15 C 63
2h+k+s
, Kerrostalo
54.5 m2
6/7
Tapulikaupungintie 15 C 63
2h+k+s
, Kerrostalo
54.5 m2
Kerros 6/7
Tapulikaupungintie 15 C 48
2h+k+s
, Kerrostalo
57 m2
3/7
Tapulikaupungintie 15 C 48
2h+k+s
, Kerrostalo
57 m2
Kerros 3/7
Tapulikaupungintie 15 C 60
2h+k+s
, Kerrostalo
57 m2
6/7
Tapulikaupungintie 15 C 60
2h+k+s
, Kerrostalo
57 m2
Kerros 6/7
Tapulikaupungintie 15 C 56
2h+k+s
, Kerrostalo
57 m2
5/7
Tapulikaupungintie 15 C 56
2h+k+s
, Kerrostalo
57 m2
Kerros 5/7
Tapulikaupungintie 15 C 44
2h+k+s
, Kerrostalo
57 m2
2/7
Tapulikaupungintie 15 C 44
2h+k+s
, Kerrostalo
57 m2
Kerros 2/7
Tapulikaupungintie 15 C 52
2h+k+s
, Kerrostalo
57 m2
4/7
Tapulikaupungintie 15 C 52
2h+k+s
, Kerrostalo
57 m2
Kerros 4/7
Tapulikaupungintie 15 B 37
2h+kk+s
, Kerrostalo
42.5 m2
5/7
Tapulikaupungintie 15 B 37
2h+kk+s
, Kerrostalo
42.5 m2
Kerros 5/7
Tapulikaupungintie 15 A 12
2h+kk+s
, Kerrostalo
42.5 m2
4/7
Tapulikaupungintie 15 A 12
2h+kk+s
, Kerrostalo
42.5 m2
Kerros 4/7
Tapulikaupungintie 15 A 8
2h+kk+s
, Kerrostalo
42.5 m2
3/7
Tapulikaupungintie 15 A 8
2h+kk+s
, Kerrostalo
42.5 m2
Kerros 3/7
Tapulikaupungintie 15 B 22
2h+kk+s
, Kerrostalo
42.5 m2
1/7
Tapulikaupungintie 15 B 22
2h+kk+s
, Kerrostalo
42.5 m2
Kerros 1/7
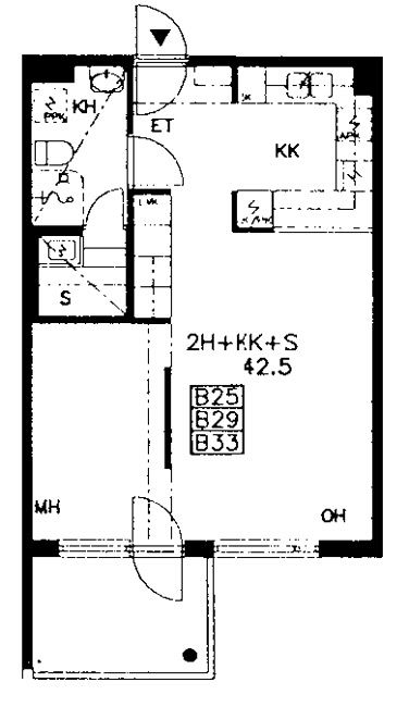
Tapulikaupungintie 15 B 25
2h+kk+s
, Kerrostalo
42.5 m2
2/7
Tapulikaupungintie 15 B 25
2h+kk+s
, Kerrostalo
42.5 m2
Kerros 2/7
Tapulikaupungintie 15 A 16
2h+kk+s
, Kerrostalo
42.5 m2
5/7
Tapulikaupungintie 15 A 16
2h+kk+s
, Kerrostalo
42.5 m2
Kerros 5/7
Tapulikaupungintie 15 B 33
2h+kk+s
, Kerrostalo
42.5 m2
4/7
Tapulikaupungintie 15 B 33
2h+kk+s
, Kerrostalo
42.5 m2
Kerros 4/7
Tapulikaupungintie 15 B 29
2h+kk+s
, Kerrostalo
42.5 m2
3/7
Tapulikaupungintie 15 B 29
2h+kk+s
, Kerrostalo
42.5 m2
Kerros 3/7
Tapulikaupungintie 15 A 1
2h+kk+s
, Kerrostalo
42.5 m2
1/7
Tapulikaupungintie 15 A 1
2h+kk+s
, Kerrostalo
42.5 m2
Kerros 1/7
Tapulikaupungintie 15 A 4
2h+kk+s
, Kerrostalo
42.5 m2
2/7
Tapulikaupungintie 15 A 4
2h+kk+s
, Kerrostalo
42.5 m2
Kerros 2/7
Tapulikaupungintie 15 A 5
2h+kk+s
, Kerrostalo
51.5 m2
2/7
Tapulikaupungintie 15 A 5
2h+kk+s
, Kerrostalo
51.5 m2
Kerros 2/7
Tapulikaupungintie 15 B 26
2h+kk+s
, Kerrostalo
51.5 m2
2/7
Tapulikaupungintie 15 B 26
2h+kk+s
, Kerrostalo
51.5 m2
Kerros 2/7
Tapulikaupungintie 15 B 30
2h+kk+s
, Kerrostalo
51.5 m2
3/7
Tapulikaupungintie 15 B 30
2h+kk+s
, Kerrostalo
51.5 m2
Kerros 3/7
Tapulikaupungintie 15 B 38
2h+kk+s
, Kerrostalo
51.5 m2
5/7
Tapulikaupungintie 15 B 38
2h+kk+s
, Kerrostalo
51.5 m2
Kerros 5/7
Tapulikaupungintie 15 B 34
2h+kk+s
, Kerrostalo
51.5 m2
4/7
Tapulikaupungintie 15 B 34
2h+kk+s
, Kerrostalo
51.5 m2
Kerros 4/7
Tapulikaupungintie 15 A 17
2h+kk+s
, Kerrostalo
51.5 m2
5/7
Tapulikaupungintie 15 A 17
2h+kk+s
, Kerrostalo
51.5 m2
Kerros 5/7
Tapulikaupungintie 15 A 9
2h+kk+s
, Kerrostalo
51.5 m2
3/7
Tapulikaupungintie 15 A 9
2h+kk+s
, Kerrostalo
51.5 m2
Kerros 3/7
Tapulikaupungintie 15 A 13
2h+kk+s
, Kerrostalo
51.5 m2
4/7
Tapulikaupungintie 15 A 13
2h+kk+s
, Kerrostalo
51.5 m2
Kerros 4/7
Tapulikaupungintie 15 C 53
2h+kk+s
, Kerrostalo
52 m2
4/7
Tapulikaupungintie 15 C 53
2h+kk+s
, Kerrostalo
52 m2
Kerros 4/7
Tapulikaupungintie 15 C 49
2h+kk+s
, Kerrostalo
52 m2
3/7
Tapulikaupungintie 15 C 49
2h+kk+s
, Kerrostalo
52 m2
Kerros 3/7
Tapulikaupungintie 15 C 57
2h+kk+s
, Kerrostalo
52 m2
5/7
Tapulikaupungintie 15 C 57
2h+kk+s
, Kerrostalo
52 m2
Kerros 5/7
Tapulikaupungintie 15 C 61
2h+kk+s
, Kerrostalo
52 m2
6/7
Tapulikaupungintie 15 C 61
2h+kk+s
, Kerrostalo
52 m2
Kerros 6/7
Tapulikaupungintie 15 C 45
2h+kk+s
, Kerrostalo
52 m2
2/7
Tapulikaupungintie 15 C 45
2h+kk+s
, Kerrostalo
52 m2
Kerros 2/7
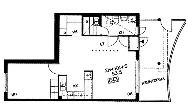
Tapulikaupungintie 15 C 43
2h+kk+s
, Kerrostalo
53.5 m2
1/7
Tapulikaupungintie 15 C 43
2h+kk+s
, Kerrostalo
53.5 m2
Kerros 1/7
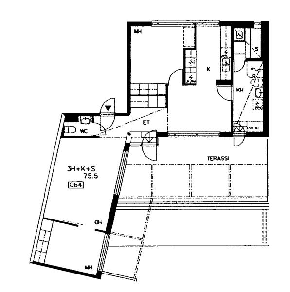
Tapulikaupungintie 15 C 64
3h+k+s
, Kerrostalo
75.5 m2
7/7
Tapulikaupungintie 15 C 64
3h+k+s
, Kerrostalo
75.5 m2
Kerros 7/7
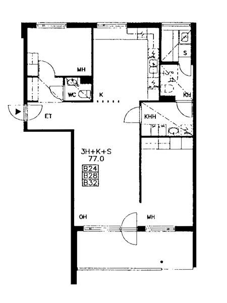
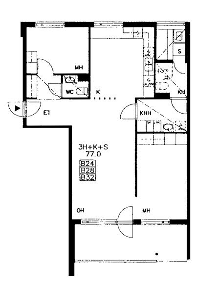
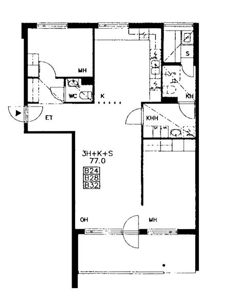
Tapulikaupungintie 15 B 24
3h+k+s
, Kerrostalo
77 m2
2/7
Tapulikaupungintie 15 B 24
3h+k+s
, Kerrostalo
77 m2
Kerros 2/7
Tapulikaupungintie 15 A 7
3h+k+s
, Kerrostalo
77 m2
3/7
Tapulikaupungintie 15 A 7
3h+k+s
, Kerrostalo
77 m2
Kerros 3/7
Tapulikaupungintie 15 B 32
3h+k+s
, Kerrostalo
77 m2
4/7
Tapulikaupungintie 15 B 32
3h+k+s
, Kerrostalo
77 m2
Kerros 4/7
Tapulikaupungintie 15 A 11
3h+k+s
, Kerrostalo
77 m2
4/7
Tapulikaupungintie 15 A 11
3h+k+s
, Kerrostalo
77 m2
Kerros 4/7
Tapulikaupungintie 15 A 15
3h+k+s
, Kerrostalo
77 m2
5/7
Tapulikaupungintie 15 A 15
3h+k+s
, Kerrostalo
77 m2
Kerros 5/7
Tapulikaupungintie 15 A 3
3h+k+s
, Kerrostalo
77 m2
2/7
Tapulikaupungintie 15 A 3
3h+k+s
, Kerrostalo
77 m2
Kerros 2/7
Tapulikaupungintie 15 B 36
3h+k+s
, Kerrostalo
77 m2
5/7
Tapulikaupungintie 15 B 36
3h+k+s
, Kerrostalo
77 m2
Kerros 5/7
Tapulikaupungintie 15 B 28
3h+k+s
, Kerrostalo
77 m2
3/7
Tapulikaupungintie 15 B 28
3h+k+s
, Kerrostalo
77 m2
Kerros 3/7
Tapulikaupungintie 15 A 2
3h+kk+s
, Kerrostalo
63.5 m2
1/7
Tapulikaupungintie 15 A 2
3h+kk+s
, Kerrostalo
63.5 m2
Kerros 1/7
Tapulikaupungintie 15 B 23
3h+kk+s
, Kerrostalo
64.5 m2
1/7
Tapulikaupungintie 15 B 23
3h+kk+s
, Kerrostalo
64.5 m2
Kerros 1/7
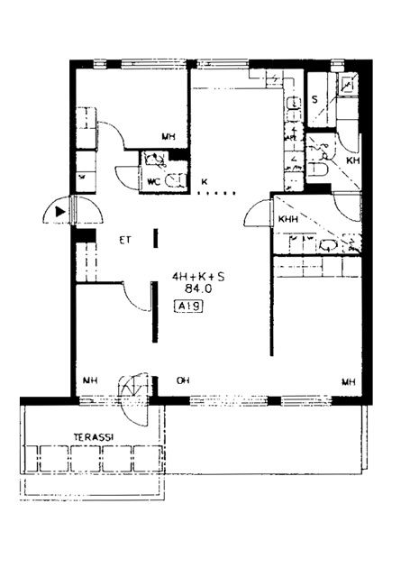
Tapulikaupungintie 15 B 40
4h+k+s
, Kerrostalo
84 m2
6/7
Tapulikaupungintie 15 B 40
4h+k+s
, Kerrostalo
84 m2
Kerros 6/7
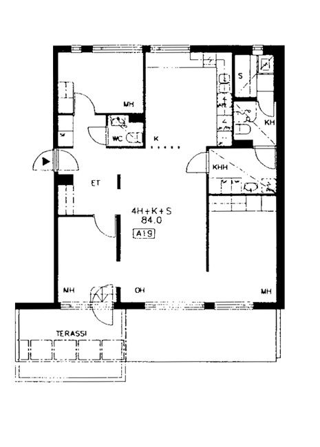
Tapulikaupungintie 15 A 19
4h+k+s
, Kerrostalo
84 m2
6/7
Tapulikaupungintie 15 A 19
4h+k+s
, Kerrostalo
84 m2
Kerros 6/7
Tapulikaupungintie 15 A 10
4h+k+s
, Kerrostalo
91 m2
3/7
Tapulikaupungintie 15 A 10
4h+k+s
, Kerrostalo
91 m2
Kerros 3/7
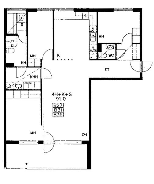
Tapulikaupungintie 15 B 27
4h+k+s
, Kerrostalo
91 m2
2/7
Tapulikaupungintie 15 B 27
4h+k+s
, Kerrostalo
91 m2
Kerros 2/7
Tapulikaupungintie 15 B 35
4h+k+s
, Kerrostalo
91 m2
4/7
Tapulikaupungintie 15 B 35
4h+k+s
, Kerrostalo
91 m2
Kerros 4/7
Tapulikaupungintie 15 A 6
4h+k+s
, Kerrostalo
91 m2
2/7
Tapulikaupungintie 15 A 6
4h+k+s
, Kerrostalo
91 m2
Kerros 2/7
Tapulikaupungintie 15 A 18
4h+k+s
, Kerrostalo
91 m2
5/7
Tapulikaupungintie 15 A 18
4h+k+s
, Kerrostalo
91 m2
Kerros 5/7
Tapulikaupungintie 15 B 39
4h+k+s
, Kerrostalo
91 m2
5/7
Tapulikaupungintie 15 B 39
4h+k+s
, Kerrostalo
91 m2
Kerros 5/7
Tapulikaupungintie 15 A 14
4h+k+s
, Kerrostalo
91 m2
4/7
Tapulikaupungintie 15 A 14
4h+k+s
, Kerrostalo
91 m2
Kerros 4/7
Tapulikaupungintie 15 B 31
4h+k+s
, Kerrostalo
91 m2
3/7
Tapulikaupungintie 15 B 31
4h+k+s
, Kerrostalo
91 m2
Kerros 3/7
Tapulikaupungintie 15 C 62
4h+k+s
, Kerrostalo
91.5 m2
6/7
Tapulikaupungintie 15 C 62
4h+k+s
, Kerrostalo
91.5 m2
Kerros 6/7
Tapulikaupungintie 15 C 58
4h+k+s
, Kerrostalo
91.5 m2
5/7
Tapulikaupungintie 15 C 58
4h+k+s
, Kerrostalo
91.5 m2
Kerros 5/7
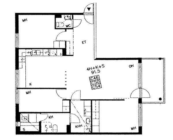
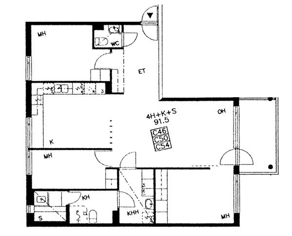
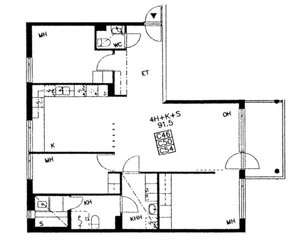
Tapulikaupungintie 15 C 46
4h+k+s
, Kerrostalo
91.5 m2
2/7
Tapulikaupungintie 15 C 46
4h+k+s
, Kerrostalo
91.5 m2
Kerros 2/7
Tapulikaupungintie 15 C 65
4h+k+s
, Kerrostalo
91.5 m2
7/7
Tapulikaupungintie 15 C 65
4h+k+s
, Kerrostalo
91.5 m2
Kerros 7/7
Tapulikaupungintie 15 C 50
4h+k+s
, Kerrostalo
91.5 m2
3/7
Tapulikaupungintie 15 C 50
4h+k+s
, Kerrostalo
91.5 m2
Kerros 3/7
Tapulikaupungintie 15 C 54
4h+k+s
, Kerrostalo
91.5 m2
4/7
Tapulikaupungintie 15 C 54
4h+k+s
, Kerrostalo
91.5 m2
Kerros 4/7
Tapulikaupungintie 15 A 21
5h+k+s
, Kerrostalo
97.5 m2
6/7
Tapulikaupungintie 15 A 21
5h+k+s
, Kerrostalo
97.5 m2
Kerros 6/7
Tapulikaupungintie 15 B 42
5h+k+s
, Kerrostalo
97.5 m2
6/7
Tapulikaupungintie 15 B 42
5h+k+s
, Kerrostalo
97.5 m2
Kerros 6/7


