Kohteen esittely
Täällä voit kuunnella kesäaamuisin lintujen laulua. Päättyvän tien päässä oleva rivitalokohde, jossa maalämpö. Kohteessa on tupakointikielto.
Lähellä on päiväkodit ja koulut, Puistolan juna-asema, kirjasto, terveysasema, leikkipuistoja ja paljon liikuntapaikkoja.
Miksi Asuntosäätiö?
Me uskomme, että onnellinen koti ja laadukas asuminen kuuluvat kaikille. Emme tavoittele voittoa, vaan käytämme kaikki vastikkeista ja vuokrista saadut tulot toimintamme kehittämiseen. Jo yli 33 000 suomalaista on valinnut Asuntosäätiön tarjoaman kodin. Tiesithän, että myös lemmikit ovat tervetulleita kaikkiin koteihimme!
Rakennuksen tiedot
- Asumismuoto Asokoti
- Keskimääräinen asumisoikeusmaksu / jm² 284,7€
- Hissit Ei
- Talosauna Ei
- Asuntoja 20
- Asuinrakennuksia 4
- Käyttövastike / kk / jm² 17,29€
- Valmistumisvuosi 1994
- Energialuokka C
- Lämmitysmuoto Maalämpö
- Autopaikat 22
- Laajakaista DNA 4G
- Antennijärjestelmä Harava
- Kattomateriaali Tiili
- Runkomateriaali Betoni, Puu
- Lemmikit Sallittu
Huoneistot ja pohjakuvat: Lähdeniityntie 13, Luhtikäytävätalo, Rivitalo, Piharakennus
Lisää hakemukselle kaikki haluamasi asuntotyypit. Mahdollisuutesi asunnon saamiseksi paranevat, kun voimme tarjota sinulle kaikkia valitsemasi asuntotyypin asuntoja, jotka mahdollisesti vapautuvat myöhemmin tästä kohteesta. Olet automaattisesti näiden asuntotyyppien hakuprosessissa.
Lähdeniityntie 13 B 7
2h+k+s
, Rivitalo
62.5 m2
1/1
Lähdeniityntie 13 B 7
2h+k+s
, Rivitalo
62.5 m2
Kerros 1/1
Lähdeniityntie 13 B 6
2h+k+s
, Rivitalo
62.5 m2
1/1
Lähdeniityntie 13 B 6
2h+k+s
, Rivitalo
62.5 m2
Kerros 1/1
Lähdeniityntie 13 B 5
2h+k+s
, Rivitalo
63.5 m2
1/1
Lähdeniityntie 13 B 5
2h+k+s
, Rivitalo
63.5 m2
Kerros 1/1
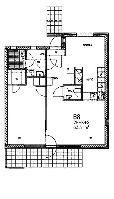
Lähdeniityntie 13 B 8
2h+k+s
, Rivitalo
63.5 m2
1/1
Lähdeniityntie 13 B 8
2h+k+s
, Rivitalo
63.5 m2
Kerros 1/1
Lähdeniityntie 13 D 16
2h+kk+s
, Luhtikäytävätalo
46.5 m2
1/2
Lähdeniityntie 13 D 16
2h+kk+s
, Luhtikäytävätalo
46.5 m2
Kerros 1/2
Lähdeniityntie 13 C 13
2h+kk+s
, Luhtikäytävätalo
46.5 m2
2/2
Lähdeniityntie 13 C 13
2h+kk+s
, Luhtikäytävätalo
46.5 m2
Kerros 2/2
Lähdeniityntie 13 D 20
2h+kk+s
, Luhtikäytävätalo
46.5 m2
2/2
Lähdeniityntie 13 D 20
2h+kk+s
, Luhtikäytävätalo
46.5 m2
Kerros 2/2
Lähdeniityntie 13 D 17
2h+kk+s
, Luhtikäytävätalo
46.5 m2
1/2
Lähdeniityntie 13 D 17
2h+kk+s
, Luhtikäytävätalo
46.5 m2
Kerros 1/2
Lähdeniityntie 13 D 19
2h+kk+s
, Luhtikäytävätalo
46.5 m2
2/2
Lähdeniityntie 13 D 19
2h+kk+s
, Luhtikäytävätalo
46.5 m2
Kerros 2/2
Lähdeniityntie 13 C 14
2h+kk+s
, Luhtikäytävätalo
46.5 m2
2/2
Lähdeniityntie 13 C 14
2h+kk+s
, Luhtikäytävätalo
46.5 m2
Kerros 2/2
Lähdeniityntie 13 C 11
2h+kk+s
, Luhtikäytävätalo
46.5 m2
1/2
Lähdeniityntie 13 C 11
2h+kk+s
, Luhtikäytävätalo
46.5 m2
Kerros 1/2
Lähdeniityntie 13 C 10
2h+kk+s
, Luhtikäytävätalo
46.5 m2
1/2
Lähdeniityntie 13 C 10
2h+kk+s
, Luhtikäytävätalo
46.5 m2
Kerros 1/2
Lähdeniityntie 13 A 3
2h+kk+s
, Rivitalo
47.5 m2
1/1
Lähdeniityntie 13 A 3
2h+kk+s
, Rivitalo
47.5 m2
Kerros 1/1
Lähdeniityntie 13 A 2
2h+kk+s
, Rivitalo
47.5 m2
1/1
Lähdeniityntie 13 A 2
2h+kk+s
, Rivitalo
47.5 m2
Kerros 1/1
Lähdeniityntie 13 A 4
2h+kk+s
, Rivitalo
48.5 m2
1/1
Lähdeniityntie 13 A 4
2h+kk+s
, Rivitalo
48.5 m2
Kerros 1/1
Lähdeniityntie 13 A 1
2h+kk+s
, Rivitalo
48.5 m2
1/1
Lähdeniityntie 13 A 1
2h+kk+s
, Rivitalo
48.5 m2
Kerros 1/1
Lähdeniityntie 13 D 15
3h+k+s
, Luhtikäytävätalo
82.5 m2
1-2/2
Lähdeniityntie 13 D 15
3h+k+s
, Luhtikäytävätalo
82.5 m2
Kerros 1-2/2
Lähdeniityntie 13 D 18
3h+k+s
, Luhtikäytävätalo
82.5 m2
1-2/2
Lähdeniityntie 13 D 18
3h+k+s
, Luhtikäytävätalo
82.5 m2
Kerros 1-2/2
Lähdeniityntie 13 C 12
3h+k+s
, Luhtikäytävätalo
82.5 m2
1-2/2
Lähdeniityntie 13 C 12
3h+k+s
, Luhtikäytävätalo
82.5 m2
Kerros 1-2/2
Lähdeniityntie 13 C 9
3h+k+s
, Luhtikäytävätalo
82.5 m2
1-2/2
Lähdeniityntie 13 C 9
3h+k+s
, Luhtikäytävätalo
82.5 m2
Kerros 1-2/2
